- Typ projektuWolnostojący
- StylDworkowy
- Powierzchnia użytkowa342.25 m²
- Kondygnacjez piwnicą
- GarażDwustanowiskowy
- DachWielospadowy
- Kąt nach. dachu30°
- Odbicie lustrzaneNie
- Czas realizacjimax. czas realizacji 10 dni Zobacz więcej >
Opis
Zgodność z WT 2021 i Eurokodami
Ze względu na dostosowywanie projektu do standardu WT 2021, czas realizacji może się różnić od standardowego.
Skontaktuj się z nami aby poznać szczegóły dotyczące wybranego projektu.
Opis projektu
Wariant projektu z innym układem pomieszczeń, z dodatkową piwnicą oraz dodane zostały wole oka w dachu.
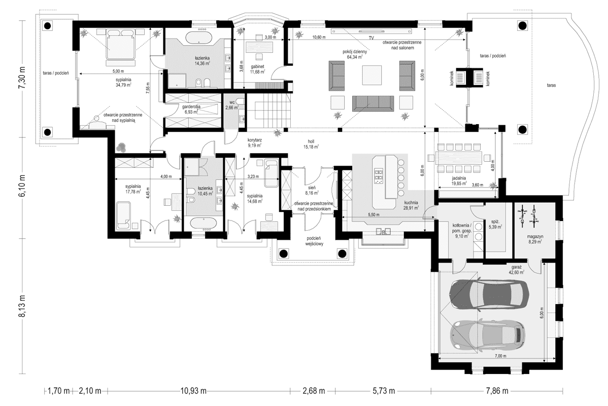
Projekt domu Rezydencja Parkowa to piękną parterowa willa, przeznaczoną dla szczęściarzy posiadających dużą działkę, którym marzy się wygodne mieszkanie na parterze, bez bieganiny po schodach. Dom zbudowany jest na planie dwóch przenikających się prostokątów - części mieszkalnej i części garażowo-gospodarczej. Budynek jest przykryty wielospadowym łagodnym dachem, kryjącym pod sobą dodatkowy strych, który można zaadaptować na poddasze użytkowe. Dom zaprojektowano z luzem i rozmachem charakterystycznym dla podmiejskich rezydencji. Wszystko jest tutaj duże i wygodne. Reprezentacyjnego szyku dodaje dworkowa architektura, czerpiąca z tradycji polskiej, ale również amerykańskiej i europejskiej. Dzięki dyskretnym detalom i harmonii bryły dom doskonale wpasuje się zarówno w otoczenie willowego osiedla, jak również w wiejską przyrodę. Front domu to wjazdowy dziedziniec, z wyeksponowanym wysokim portykiem wejściowym wiodącym do obszernego westybulu. Elewacje od strony ogrodowej z kolei urozmaicone są tarasami i podcieniami dostępnymi z salonu, oraz z apartamentu państwa domu. Wnętrze Rezydencji Parkowej podzielono na trzy części. Część dzienna - z bardzo dużym wysokim salonem, jasna, otwartą na ogród jadalnią, oraz piękną kuchnią z wyspą, gdzie skupiać się będzie zapewne rodzinne życie. Część z sypialniami - z apartamentem rodziców z własnym pokojem kąpielowym, oraz garderobą, z wysokim sufitem, oraz dwie dodatkowe sypialnie z łazienką. Dodatkowo zaprojektowano tutaj gabinet dostępny z salonu, oraz dodatkowe wc dla gości. Wreszcie część garażowo-gospodarcza, z garażem i pomieszczeniami technicznymi domu. Dodatkowo można z powodzeniem zagospodarować strych nad parterem na poddasze użytkowe. Jest tam około 70 m2 powierzchni, z której można zrobić dodatkowe dwie lub trzy sypialnie, lub pokój hobby : sportowy, czy na przykład domowe kino. Strych można też zostawić jako przydatny magazyn. Dom będzie optymalnym luksusowym miejscem do życia dla Inwestorów, którzy pragnął wygód rezydencji, ale nie chcą budować tysiącmetrowego domu z trzydziestoma pokojami, jak to często robiono jeszcze dziesięć lat temu. Jest to praktyczna, nowoczesna rezydencja na miarę XXI wieku. Rezydencja Parkowa dostępna jest również w odbiciu lustrzanym oraz w kilku wersjach: pomniejszona (rezydencja Parkowa 2), z poddaszem użytkowym (rezydencja Parkowa 3)
Konstrukcja
- Fundamentybetonowe ławy i ściany fundamentowe z bloczków betonowych
- Ściany zewnętrzneściany murowane - pustaki porotherm 25 + styropian + tynk cienkowarstwowy
- Stropdrewniany belkowy
- Elewacjetynk cienkowarstwowy na styropianie
- Pokrycie dachudachówka ceramiczna
Rzuty
Dane techniczne
- Powierzchnia użytkowa342.25 m²
- Powierzchnia netto350.2 m²
- Powierzchnia zabudowy384.81 m²
- KominekTak
- Liczba łazienek3
- Liczba pokoi5
- Powierzchnia dachu560.98 m²
- Kubatura1690 m³
- Długość domu21.52 m
- Szerokość domu31 m
- Wysokość domu7.68 m
- Poddaszedo adaptacji
- Minimalne wymiary działki29.52 x 38m
- GarażDwustanowiskowy
- Rodzaj dachuWielospadowy
- Kąt nach. dachu30°
Koszty budowy
- Stan surowy357400 zł
- Stan surowy zamknięty503176 zł
- Koszt wykończenia446896 zł
- Koszt instalacji96677 zł
Zawartość projektu
W komplecie nowej wersji dokumentacji projektowej znajdują się 3 egzemplarze projektu architektoniczno-budowlanego oraz 3 egzemplarze projektu technicznego
Projekt architektoniczno-budowlany zawierający:
-opis architektoniczny z elementami konstrukcji,
-część rysunkowa: rzut parteru, poddasza/piętra, rzut dachu w skali 1:100, przekroje skala 1:50,
elewacje skala 1:100.
Projekt techniczny zawierający:
-opis techniczny i konstrukcyjny (obliczenia statyczne - w zależności od projektu włączone w projekt lub stanowiące odrębną teczkę).
Część rysunkowa architektura i konstrukcja:
-rzuty fundamentów, parteru, poddasza, stropu, więźby, dachu / w skali 1:50,
-przekroje przez budynek / budynek skali 1:50,
-elewacje budynku / w skali 1:50 (*niektóre projekty posiadają rysunki w skali 1:100 lub 1:75),
-zestawienie stolarki budowlanej okiennej i drzwiowej,
-szczegóły konstrukcji i ewentualne szczegóły budowlane,
Część instalacyjna:
-część opisowa do projektów instalacji elektrycznych, wodno-kanalizacyjnych, grzewczych, gazowych (jeśli występują).
Część rysunkowa do projektów instalacji:
-schematy instalacji elektrycznych, schemat rozdzielni, plan instalacji odgromowej,
-schematy instalacji wodno-kanalizacyjnej i ciepłej wody,
-schematy instalacji grzewczych,
-schemat instalacji gazowej (jeśli występują).
Do projektu dołączane jest zestawienie materiałowe, z wykazem elementów drewnianych oraz stali budowlanej.
Do projektu dołączone są kopie uprawnień wszystkich projektantów, oraz aktualne zaświadczenia o przynależności do izb zawodowych.
Projekt zawiera oświadczenie projektantów o poprawności projektu w świetle Prawa Budowlanego, a także zawiera informację dotyczącą bezpieczeństwa i ochrony zdrowia ( BIOZ).
Do projektu dołączona jest także zgoda na zmiany adaptacyjne. Zgoda dołączana jest do każdego projektu bezpłatnie. Na Państwa życzenie zakres zgody na zmiany możemy dowolnie rozszerzyć.
Pracownia zezwala na następujące zmiany i odstępstwa od projektu architektoniczno-budowlanego w trakcie jego przystosowywania do lokalizacji:
- Zmianę obrysu zewnętrznego ścian zewnętrznych.
- Zmianę obrysu wewnętrznego ścian zewnętrznych.
- Zmianę układu ścian wewnętrznych działowych.
- Zmianę funkcji, ilości i usytuowania poszczególnych pomieszczeń na dowolnej kondygnacji w projekcie.
- Zmianę ukształtowania, ilości i kąta nachylenia połaci dachowych.
- Zmianę ilości, umiejscowienia i wielkości otworów okiennych i drzwiowych.
- Zmianę rodzaju materiału i technologii wykonania ścian zewnętrznych oraz wewnętrznych oraz ścian fundamentowych.
- Zmianę rodzaju i technologii wykonania stropów nad dowolną kondygnacją.
- Zmianę umiejscowienia, kształtu i materiału wykonania schodów w budynku.
- Zmianę wielkości, kształtu i materiałów, bądź likwidacja: tarasów, podestów i balkonów.
- Likwidację lub dodanie dowolnej ilości:
- lukarn,
- wykuszy,
- podcieni,
- balkonów,
- loggii,
- kolumn,
- pilastrów,
- ganków,
- werand.
- Zmianę materiałów wykończeniowych, instalacyjnych, izolacyjnych.
- Zmianę rodzaju pokrycia dachowego.
- Doprojektowanie bądź likwidacja podpiwniczenia - częściowego lub całkowitego.
Dodatki
Bezpłatne dodatki
GratisZestaw umów
GratisZmiany w projekcie
PromocjaProjekt szamba szczelnego
GratisTablica budowy
GratisDziennik budowy
Płatne dodatki

Pakiet wentylacja mechaniczna i kominek DGP
550 zł

Kosztorys inwestorski
600 zł

Pakiet odkurzacz centralny
550 zł

Wersja elektroniczna projektu
600 zł

Pakiet instalacja solarna
550 zł

Pakiet ogrzewanie podłogowe
550 zł

Pakiet powietrzna pompa ciepła
550 zł

Pakiet płaszcz wodny
550 zł

Pakiet kotłownia na paliwo stałe
550 zł

Pakiet klimatyzacja w domu
550 zł

Projekt ogrodzenia
750 zł

Pakiet instalacja fotowoltaiczna
550 zł

Pakiet kominek z DGP
500 zł

Pakiet gruntowa pompa ciepła
550 zł

Projekt altan i grilów ogrodowych
850 zł

Dodatkowy egzemplarz do projektu
650 zł






























