- Typ projektuWolnostojący
 - StylNowoczesny
 - Powierzchnia użytkowa148.4 m²
 - KondygnacjeParterowy, z poddaszem
 - GarażJednostanowiskowy
 - DachDwuspadowy
 - Kąt nach. dachu35°
 - Odbicie lustrzaneTak
 - Czas realizacji30 dni Zobacz więcej >
 
Opis
Zgodność z WT 2021 i Eurokodami
Ze względu na dostosowywanie projektu do standardu WT 2021, czas realizacji może się różnić od standardowego.
Skontaktuj się z nami aby poznać szczegóły dotyczące wybranego projektu.
Opis projektu
Rio jest domem zaprojektowanym do potrzeb 4-5-osobowej rodziny. Charakterystyczną cechą tego projektu zwarta i prosta bryła oraz nowoczesne rozwiązania materiałowe. Dom zaliczany jest do serii projektów domów energooszczędnych. Budynek jest przykryty dwuspadowym dachem o kącie nachylenia połaci równym 35 stopni. Program funkcjonalny rozkłada się na dwie kondygnacje. Jasna fasada z jasną szalówką drewnianą bardzo dobrze komponuje się z grafitowym dachem, a grafitowa cegła na części garażowej nadaje bryle charakteru.Konstrukcja
Ściany: 2-warstwowe - pustak ceramiczny + styropian, Stropy: żelbetowe, wylewane, Dach: dachówka ceramiczna CREATON,Rzuty
Usytuowanie na działce
parter
- wiatrołap5.43
 - korytarz/komunikacja8.73
 - salon/jadalnia26.72
 - kuchnia8.5
 - pokój10.47
 - łazienka2.72
 - pomieszczenie gospodarcze1.08
 - kotłownia11.25
 - garaż19.99
 
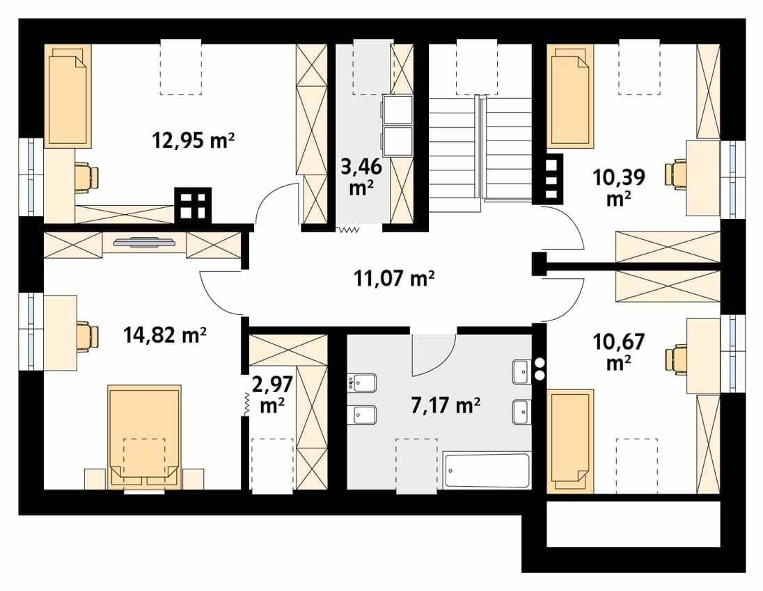
poddasze
Dane techniczne
- Powierzchnia użytkowa148.4 m²
 - Powierzchnia zabudowy136.52 m²
 - Liczba pokoi5
 - Powierzchnia dachu230.78 m²
 - Kubatura833 m³
 - Długość domu12.2 m
 - Szerokość domu13.89 m
 - Wysokość domu7.6 m
 - PoddaszeUżytkowe
 - Minimalne wymiary działki21.2 x 21.89m
 - GarażJednostanowiskowy
 - Rodzaj dachuDwuspadowy
 - Kąt nach. dachu35°
 
Zawartość projektu
PROJEKT SKŁADA SIĘ Z:
- Projekt architektoniczno-budowlany wraz z projektem zagospodarowania działki lub terenu - 3 egzemplarze,
 - Projekt techniczny - 2 egzemplarze.
 
Projekt architektoniczno-budowlany
Projekt zawiera rysunki architektoniczne w skali 1:50 lub 1:100:
- rzuty poziome poszczególnych kondygnacji (parter, poddasze lub piętro),
 - rzut dachu,
 - przekroje,
 - opisy przegród,
 - elewacje budynku,
 - wykaz stolarki okiennej i drzwiowej,
 - detale rozwiązań architektonicznych.
 
Projekt zawiera również opis techniczny, który wskazuje:
- zamierzony sposób użytkowania obiektu budowlanego,
 - charakterystyczne parametry techniczne obiektu budowlanego (zestawienie powierzchni, kubatury, wysokość, wymiary, liczba kondygnacji),
 - informację o sposobie posadowienia obiektu budowlanego,
 - projektowane rozwiązania materiałowe i techniczne, mające wpływ na otoczenie, w tym środowisko,
 - informację o wyposażeniu technicznym budynku, w tym projektowanym źródle ciepła do ogrzewania i przygotowania ciepłej wody użytkowej,
 - inne wymagane opinie, uzgodnienia i pozwolenia.
 
Projekt Techniczny
Projekt techniczny zawiera:
- Opis techniczny i konstrukcyjny,
 - Część architektoniczną (rzuty, przekroje, elewacje, wykaz stolarki w skali 1:50 lub 1:100),
 - Część konstrukcyjną (rysunki w skali 1:25 lub 1:50) na którą składa się:
- rzuty fundamentów,
 - rzuty konstrukcyjne poszczególnych kondygnacji,
 - wykaz drewna na więźbę dachową i jej rzut,
 - wykaz stali zbrojeniowej,
 - szczegółowe rysunki detali konstrukcyjnych wraz z rozrysowanym zbrojeniem w skali 1:10 lub 1:20.
 
 - Instalacje sanitarne, które zwierają:
- opis techniczny,
 - niezbędne obliczenia,
 - schematy instalacyjne przebiegu instalacji wodno-kanalizacyjnej,
 - schemat instalacji CO wraz z doborem grzejników,
 - schemat i rozwinięcie instalacji gazowej,
 - schemat kotłowni wraz z doborem kotła,
 - schemat podłączenia wodomierza i gazomierza.
 
 - Instalacje elektryczne zawierające:
- opis techniczny i obliczenia instalacji elektrycznej i odgromowej,
 - schemat rozmieszczenia elementów instalacji elektrycznej,
 - schemat szafki bezpiecznikowej,
 - schemat tablicy bezpiecznikowej,
 - schemat instalacji telefonicznej.
 
 
Celem uniemożliwienia dekompletacji projektu, otrzymany projekt jest zabezpieczony plombą oraz hologramem, które świadczą o jego oryginalności. Zerwanie plomby lub naruszenie hologramów oznacza wykorzystanie projektu, co będzie jednoznaczne z brakiem możliwości jego zwrotu. Aby ułatwić zapoznanie się projektem, do kompletu dokumentacji dołączamy egzemplarz okazowy w formacie A4. Egzemplarz okazowy projektu umożliwi sprawdzenie projektu pod kątem warunków zabudowy oraz dopasowania projektu do działki i jest wystarczający do ewentualnej oceny przydatności projektu dla zamierzonej inwestycji.
Autor projektu wyraża zgodę na zmiany, które dopuszczają następujący zakres adaptacji:
- odbicie lustrzane,
 - zmianę materiałów ściennych i wykończeniowych,
 - dostosowanie fundamentów,
 - zmianę kąta nachylenia dachu - do 5°,
 - zmianę typu ogrzewania i stropów (jeśli nie wpływa to na konstrukcję),
 - zmianę instalacji wewnętrznych,
 - zmianę układu ścian działowych i otworów wewnętrznych,
 - zmianę wymiarów budynku w granicach 5%,
 - zmianę pokrycia dachowego,
 - podpiwniczenie lub rezygnację z piwnicy,
 - zmianę okien i drzwi.
 
Powyższe zamiany muszą być dokonane z zachowaniem obowiązujących norm i przepisów prawa budowlanego przez osoby posiadające odpowiednie uprawnienia. Wszelkie pozostałe zmiany w projektach wymagają odrębnej zgody autorów.
Dodatkowo do zakupionego projektu dołączone są
- Uprawnienia projektantów,
 - Standardową zgodę na zmiany,
 - Projektowaną charakterystykę energetyczną,
 - Rzut w skali 1:500 do projektu zagospodarowania działki,
 - Informację BIOZ (Bezpieczeństwo i Ochrona Zdrowia w czasie budowy).
 
*Cena dodatków wymieniona poniżej zależna jest od projektu:
- dodatkowy egzemplarz projektu,
 - elektroniczna wersja projektu,
 - schemat rekuperacji,
 - kosztorys.
 
Dodatki
Bezpłatne dodatki
GratisZestaw umów
GratisZmiany w projekcie
GratisTablica budowy
GratisDziennik budowy
GratisCharakterystyka energetyczna
Płatne dodatki

Schemat szamba
70 zł60 zł














