- Typ projektuWolnostojący
- StylNowoczesny
- Powierzchnia użytkowa214.39 m²
- KondygnacjePiętrowy
- GarażDwustanowiskowy
- DachWielospadowy
- Kąt nach. dachu30°
- Odbicie lustrzaneNie
- Czas realizacjimax. czas realizacji 10 dni Zobacz więcej >
Opis
Zgodność z WT 2021 i Eurokodami
Ze względu na dostosowywanie projektu do standardu WT 2021, czas realizacji może się różnić od standardowego.
Skontaktuj się z nami aby poznać szczegóły dotyczące wybranego projektu.
Opis projektu
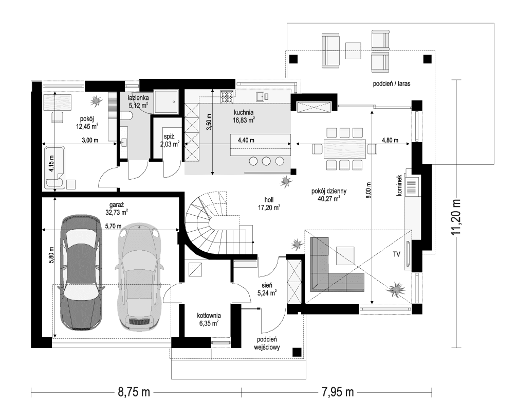
Projekt domu Riwiera 3 to kolejna wersja popularnego projektu „Riwiera” - tym razem wariant domu poszerzonego, o mniejszej głębokości, nadającego się naszerszą i płytszą działkę, z ogródkiem w tylnym bocznym narożniku. Projekt domu Riwiera 3 to wygodny komfortowy dom dla cztero-sześcioosobowej rodziny. Na parterze mieszczą się pomieszczenia dzienne, jak salon, hol z reprezentacyjnymi ozdobnymi schodami, czy kuchnia, oraz część gospodarcza z garażem i kotłownią i dodatkowy pokój - gabinet lub sypialnia gościnna. Piętro mieści cztery pokoje, z oddzielnym apartamentem rodziców z łazienką i dużą garderobą. Obie kondygnacje łączy otwarta pustka nad salonem i antresola obszernego holu na piętrze. Dzięki temu wnętrze domu jest wyjątkowo atrakcyjne i wydaje się jeszcze większe. Wygląd zewnętrzny budynku to nowoczesna bryła przekryta wielospadowym dachem, z elewacją rozdzieloną poziomymi pasami gzymsów, urozmaiconą dużymi przeszkleniami okien. Architektura domu jest jednocześnie nowoczesna i bezpretensjonalna. Budynek szczególnie przypadnie do gustu osobom, które mają trudną działkę - z drogą od nasłonecznionej strony. Osobom, które z jednej strony muszą wpuścić możliwie dużo światła do salonu i pokoi od południa, z drugiej strony nie chcą mieć tarasu od frontu domu, tylko ogródek za domem lub z jego boku. Projekt domu Riwiera 3 dostępny jest również w odbiciu lustrzanym. Zapraszamy do zapoznania się z pełną ofertą pracowni MG Projekt tej serii: bazowa (Projekt domu Riwiera), pomniejszonej (Projekt domu Riwiera 2), pomniejszonej ze zmienionym układem wewnętrznym (Projekt domu Riwiera 4) oraz zmodyfikowana i ulepszona wersja bazowego projektu (Projekt domu Riwiera 5). Zapraszamy!
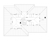
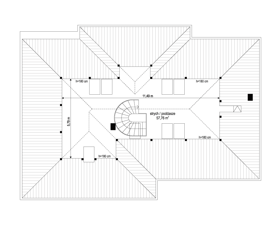
Wariant projektu ze zmienionym stropem nad piętrem z drewnianego na płytę żelbetową. Podniesienie kąta dachu na 35st. Adaptacja strychu na pomieszczenie użytkowe – przedłużona klatka schodowa.
Konstrukcja
- Fundamentybetonowe ławy i ściany fundamentowe z bloczków betonowych
- Ściany zewnętrzneściany murowane - pustaki porotherm 25 + styropian + tynk cienkowarstwowy
- StropTeriva
- Elewacjetynk cienkowarstwowy na styropianie
- Pokrycie dachudachówka ceramiczna
Rzuty
Dane techniczne
- Powierzchnia użytkowa214.39 m²
- Powierzchnia netto220.74 m²
- Powierzchnia zabudowy168.43 m²
- KominekTak
- Liczba łazienek3
- Liczba pokoi6
- Powierzchnia dachu230.56 m²
- Kubatura1277 m³
- Długość domu11.2 m
- Szerokość domu16.7 m
- Wysokość domu9.53 m
- Poddaszedo adaptacji
- Minimalne wymiary działki19.2 x 23.3m
- GarażDwustanowiskowy
- Rodzaj dachuWielospadowy
- Kąt nach. dachu30°
Koszty budowy
- Stan surowy289124 zł
- Stan surowy zamknięty402376 zł
- Koszt wykończenia388891 zł
- Koszt instalacji114315 zł
Zawartość projektu
W komplecie nowej wersji dokumentacji projektowej znajdują się 3 egzemplarze projektu architektoniczno-budowlanego oraz 3 egzemplarze projektu technicznego
Projekt architektoniczno-budowlany zawierający:
-opis architektoniczny z elementami konstrukcji,
-część rysunkowa: rzut parteru, poddasza/piętra, rzut dachu w skali 1:100, przekroje skala 1:50,
elewacje skala 1:100.
Projekt techniczny zawierający:
-opis techniczny i konstrukcyjny (obliczenia statyczne - w zależności od projektu włączone w projekt lub stanowiące odrębną teczkę).
Część rysunkowa architektura i konstrukcja:
-rzuty fundamentów, parteru, poddasza, stropu, więźby, dachu / w skali 1:50,
-przekroje przez budynek / budynek skali 1:50,
-elewacje budynku / w skali 1:50 (*niektóre projekty posiadają rysunki w skali 1:100 lub 1:75),
-zestawienie stolarki budowlanej okiennej i drzwiowej,
-szczegóły konstrukcji i ewentualne szczegóły budowlane,
Część instalacyjna:
-część opisowa do projektów instalacji elektrycznych, wodno-kanalizacyjnych, grzewczych, gazowych (jeśli występują).
Część rysunkowa do projektów instalacji:
-schematy instalacji elektrycznych, schemat rozdzielni, plan instalacji odgromowej,
-schematy instalacji wodno-kanalizacyjnej i ciepłej wody,
-schematy instalacji grzewczych,
-schemat instalacji gazowej (jeśli występują).
Do projektu dołączane jest zestawienie materiałowe, z wykazem elementów drewnianych oraz stali budowlanej.
Do projektu dołączone są kopie uprawnień wszystkich projektantów, oraz aktualne zaświadczenia o przynależności do izb zawodowych.
Projekt zawiera oświadczenie projektantów o poprawności projektu w świetle Prawa Budowlanego, a także zawiera informację dotyczącą bezpieczeństwa i ochrony zdrowia ( BIOZ).
Do projektu dołączona jest także zgoda na zmiany adaptacyjne. Zgoda dołączana jest do każdego projektu bezpłatnie. Na Państwa życzenie zakres zgody na zmiany możemy dowolnie rozszerzyć.
Pracownia zezwala na następujące zmiany i odstępstwa od projektu architektoniczno-budowlanego w trakcie jego przystosowywania do lokalizacji:
- Zmianę obrysu zewnętrznego ścian zewnętrznych.
- Zmianę obrysu wewnętrznego ścian zewnętrznych.
- Zmianę układu ścian wewnętrznych działowych.
- Zmianę funkcji, ilości i usytuowania poszczególnych pomieszczeń na dowolnej kondygnacji w projekcie.
- Zmianę ukształtowania, ilości i kąta nachylenia połaci dachowych.
- Zmianę ilości, umiejscowienia i wielkości otworów okiennych i drzwiowych.
- Zmianę rodzaju materiału i technologii wykonania ścian zewnętrznych oraz wewnętrznych oraz ścian fundamentowych.
- Zmianę rodzaju i technologii wykonania stropów nad dowolną kondygnacją.
- Zmianę umiejscowienia, kształtu i materiału wykonania schodów w budynku.
- Zmianę wielkości, kształtu i materiałów, bądź likwidacja: tarasów, podestów i balkonów.
- Likwidację lub dodanie dowolnej ilości:
- lukarn,
- wykuszy,
- podcieni,
- balkonów,
- loggii,
- kolumn,
- pilastrów,
- ganków,
- werand.
- Zmianę materiałów wykończeniowych, instalacyjnych, izolacyjnych.
- Zmianę rodzaju pokrycia dachowego.
- Doprojektowanie bądź likwidacja podpiwniczenia - częściowego lub całkowitego.
Dodatki
Bezpłatne dodatki
GratisZestaw umów
GratisZmiany w projekcie
PromocjaProjekt szamba szczelnego
GratisTablica budowy
GratisDziennik budowy
Płatne dodatki

Pakiet wentylacja mechaniczna i kominek DGP
550 zł

Kosztorys inwestorski
600 zł

Pakiet odkurzacz centralny
550 zł

Wersja elektroniczna projektu
600 zł

Pakiet instalacja solarna
550 zł

Pakiet ogrzewanie podłogowe
550 zł

Pakiet powietrzna pompa ciepła
550 zł

Pakiet płaszcz wodny
550 zł

Pakiet kotłownia na paliwo stałe
550 zł

Pakiet klimatyzacja w domu
550 zł

Projekt ogrodzenia
750 zł

Pakiet instalacja fotowoltaiczna
550 zł

Pakiet kominek z DGP
500 zł

Pakiet gruntowa pompa ciepła
550 zł

Projekt altan i grilów ogrodowych
850 zł

Dodatkowy egzemplarz do projektu
650 zł











































