- Typ projektuWolnostojący
- StylNowoczesny
- Powierzchnia użytkowa180.03 m²
- KondygnacjePiętrowy
- GarażDwustanowiskowy
- DachWielospadowy
- Kąt nach. dachu25°
- Odbicie lustrzaneNie
- Czas realizacjimax. czas realizacji 10 dni Zobacz więcej >
Opis
Zgodność z WT 2021 i Eurokodami
Ze względu na dostosowywanie projektu do standardu WT 2021, czas realizacji może się różnić od standardowego.
Skontaktuj się z nami aby poznać szczegóły dotyczące wybranego projektu.
Opis projektu
Wariant projektu ze zmienionymi obydwoma stropami na płytę żelbetową. Likwidacja antresoli. Zmiana układu pomieszczeń na piętrze.
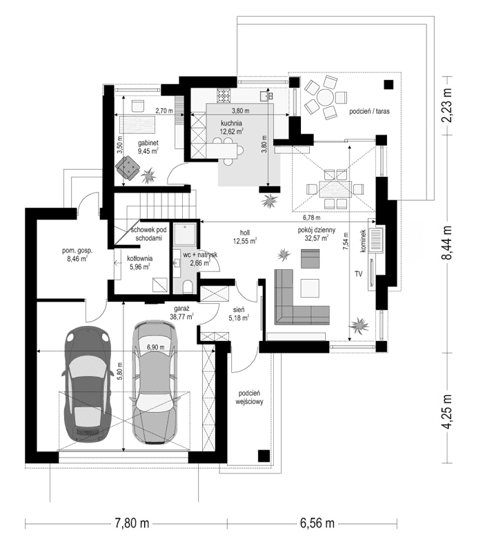
Projekt domu Riwiera 4 to wariant popularnego projektu Riwiera 2 - tym razem z dwustanowiskowym garażem. Projekt domu Riwiera 4 to piętrowy budynek, przewidziany dla 4-5 osobowej rodziny, przekryty łagodnym wielospadowym dachem, z wbudowanym - częściowo wystającym poza obrys bryły domu - podwójnym garażem. Budynek zaprojektowano w stylu miejskiej nowoczesnej willi, z łagodnymi dachami i dużymi przeszkleniami. Elewacje podzielone zostały na poziome pasy, a ściany urozmaicone różno materiałowymi okładzinami. Charakterystycznym elementem domu są piękne duże okna , których część sięga od podłogi do sufitu, zapewniając dużo światła i piękne widoki na ogród z części dziennej. Wnętrze domu podzielono na część dzienną na parterze, oraz sypialnie na piętrze. Parter to otwarta duża przestrzeń dzienna, z salonem, holem i kuchnią, z wydzieloną częściowo jadalnią. Otwarty hol stanowi centrum domu. Z niego dostajemy się reprezentacyjnymi schodami na górę, lub obszernym przedsionkiem na zewnątrz , albo do części gospodarczej domu - do kotłowni i garażu. Na parterze znajduje się dodatkowy pokój (gabinet lub sypialnia gościnna), oraz wc z natryskiem. Nad jadalnią zostawiono otwarty sufit na antresolę piętra, z oknami o wysokości dwóch kondygnacji, z widokiem na ogródek. Reprezentacyjna ściana kominkowo-telewizyjna będzie ozdobą całego domu. Z salonu wychodzimy na częściowo zadaszony taras i do ogrodu. Na piętrze przewidziano cztery sypialnie, w tym apartament rodziców w osobnej części domu, z własną łazienką i garderobą. Sypialnie dziecięce mają dodatkową łazienkę - z holu. Istnieje możliwość zamknięcia pustki nad salonem i zaprojektowania piątego pokoju na piętrze. Projekt domu Riwiera 4 to przemyślany, bardzo funkcjonalny, energooszczędny dom jednorodzinny. Jego koszt budowy wypada korzystnie w stosunku do uzyskanej powierzchni (pozbawionej skosów), oraz komfortu i wygody mieszkania. Dostępna jest opcja w projekcie ze stropem monolitycznym nad parterem i piętrem, wersja w odbiciu lustrzanym projektu oraz inne wersje: bazowa (projekt Riwiera), wersja najmniejsza (projekt domu Riwiera 2) wersja poszerzona (projekt domu Riwiera 3) oraz zmodyfikowana i ulepszona wersja bazowego projektu (Projekt domu Riwiera 5). Zapraszamy!
Konstrukcja
- Fundamentybetonowe ławy i ściany fundamentowe z bloczków betonowych
- Ściany zewnętrzneściany murowane - pustaki porotherm 25 + styropian + tynk cienkowarstwowy
- Strop monolityczny żelbetowy
- Elewacjetynk cienkowarstwowy na styropianie
- Pokrycie dachudachówka ceramiczna
Rzuty
Dane techniczne
- Powierzchnia użytkowa180.03 m²
- Powierzchnia netto185.99 m²
- Powierzchnia zabudowy160.32 m²
- KominekTak
- Liczba łazienek3
- Liczba pokoi6
- Powierzchnia dachu184.22 m²
- Kubatura1007 m³
- Długość domu14.92 m
- Szerokość domu14.36 m
- Wysokość domu8.68 m
- Minimalne wymiary działki22.92 x 21m
- GarażDwustanowiskowy
- Rodzaj dachuWielospadowy
- Kąt nach. dachu25°
Koszty budowy
- Stan surowy299405 zł
- Stan surowy zamknięty393811 zł
- Koszt wykończenia319799 zł
- Koszt instalacji94356 zł
Zawartość projektu
W komplecie nowej wersji dokumentacji projektowej znajdują się 3 egzemplarze projektu architektoniczno-budowlanego oraz 3 egzemplarze projektu technicznego
Projekt architektoniczno-budowlany zawierający:
-opis architektoniczny z elementami konstrukcji,
-część rysunkowa: rzut parteru, poddasza/piętra, rzut dachu w skali 1:100, przekroje skala 1:50,
elewacje skala 1:100.
Projekt techniczny zawierający:
-opis techniczny i konstrukcyjny (obliczenia statyczne - w zależności od projektu włączone w projekt lub stanowiące odrębną teczkę).
Część rysunkowa architektura i konstrukcja:
-rzuty fundamentów, parteru, poddasza, stropu, więźby, dachu / w skali 1:50,
-przekroje przez budynek / budynek skali 1:50,
-elewacje budynku / w skali 1:50 (*niektóre projekty posiadają rysunki w skali 1:100 lub 1:75),
-zestawienie stolarki budowlanej okiennej i drzwiowej,
-szczegóły konstrukcji i ewentualne szczegóły budowlane,
Część instalacyjna:
-część opisowa do projektów instalacji elektrycznych, wodno-kanalizacyjnych, grzewczych, gazowych (jeśli występują).
Część rysunkowa do projektów instalacji:
-schematy instalacji elektrycznych, schemat rozdzielni, plan instalacji odgromowej,
-schematy instalacji wodno-kanalizacyjnej i ciepłej wody,
-schematy instalacji grzewczych,
-schemat instalacji gazowej (jeśli występują).
Do projektu dołączane jest zestawienie materiałowe, z wykazem elementów drewnianych oraz stali budowlanej.
Do projektu dołączone są kopie uprawnień wszystkich projektantów, oraz aktualne zaświadczenia o przynależności do izb zawodowych.
Projekt zawiera oświadczenie projektantów o poprawności projektu w świetle Prawa Budowlanego, a także zawiera informację dotyczącą bezpieczeństwa i ochrony zdrowia ( BIOZ).
Do projektu dołączona jest także zgoda na zmiany adaptacyjne. Zgoda dołączana jest do każdego projektu bezpłatnie. Na Państwa życzenie zakres zgody na zmiany możemy dowolnie rozszerzyć.
Pracownia zezwala na następujące zmiany i odstępstwa od projektu architektoniczno-budowlanego w trakcie jego przystosowywania do lokalizacji:
- Zmianę obrysu zewnętrznego ścian zewnętrznych.
- Zmianę obrysu wewnętrznego ścian zewnętrznych.
- Zmianę układu ścian wewnętrznych działowych.
- Zmianę funkcji, ilości i usytuowania poszczególnych pomieszczeń na dowolnej kondygnacji w projekcie.
- Zmianę ukształtowania, ilości i kąta nachylenia połaci dachowych.
- Zmianę ilości, umiejscowienia i wielkości otworów okiennych i drzwiowych.
- Zmianę rodzaju materiału i technologii wykonania ścian zewnętrznych oraz wewnętrznych oraz ścian fundamentowych.
- Zmianę rodzaju i technologii wykonania stropów nad dowolną kondygnacją.
- Zmianę umiejscowienia, kształtu i materiału wykonania schodów w budynku.
- Zmianę wielkości, kształtu i materiałów, bądź likwidacja: tarasów, podestów i balkonów.
- Likwidację lub dodanie dowolnej ilości:
- lukarn,
- wykuszy,
- podcieni,
- balkonów,
- loggii,
- kolumn,
- pilastrów,
- ganków,
- werand.
- Zmianę materiałów wykończeniowych, instalacyjnych, izolacyjnych.
- Zmianę rodzaju pokrycia dachowego.
- Doprojektowanie bądź likwidacja podpiwniczenia - częściowego lub całkowitego.
Dodatki
Bezpłatne dodatki
GratisZestaw umów
GratisZmiany w projekcie
PromocjaProjekt szamba szczelnego
GratisTablica budowy
GratisDziennik budowy
Płatne dodatki

Pakiet wentylacja mechaniczna i kominek DGP
550 zł

Kosztorys inwestorski
600 zł

Pakiet odkurzacz centralny
550 zł

Wersja elektroniczna projektu
600 zł

Pakiet instalacja solarna
550 zł

Pakiet ogrzewanie podłogowe
550 zł

Pakiet powietrzna pompa ciepła
550 zł

Pakiet płaszcz wodny
550 zł

Pakiet kotłownia na paliwo stałe
550 zł

Pakiet klimatyzacja w domu
550 zł

Projekt ogrodzenia
750 zł

Pakiet instalacja fotowoltaiczna
550 zł

Pakiet kominek z DGP
500 zł

Pakiet gruntowa pompa ciepła
550 zł

Projekt altan i grilów ogrodowych
850 zł

Dodatkowy egzemplarz do projektu
650 zł








































