Promocja ważna do
24-04-2026
- Typ projektuWolnostojący
- Powierzchnia użytkowa112.6 m²
- Kondygnacje
- GarażBez garażu
- DachDwuspadowy
- Kąt nach. dachu45°
- Odbicie lustrzaneTak
- Czas realizacjimax. czas realizacji 10 dni Zobacz więcej >
Opis
Zgodność z WT 2021 i Eurokodami
Ze względu na dostosowywanie projektu do standardu WT 2021, czas realizacji może się różnić od standardowego.
Skontaktuj się z nami aby poznać szczegóły dotyczące wybranego projektu.
Opis projektu
Rodzynka to projekt domu jednorodzinnego, Z dwuspadowym dachem w układzie kalenicowym względem frontu budynku. Dom dla czteroosobowej rodziny i wyróżnia się uniwersalnym wzornictwem.Wejście główne do domu prowadzi do wiatrołapu z praktycznymi szafami. Na parterze znajduje się dodatkowy pokój. Otwarta kuchnia obejmuje spiżarnię. Serce domu stanowi centralnie umieszczony kominek. Taras, ciągnący się przez cała elewację. Obok kuchni znajduje się miejsce na stół. Z holu można dotrzeć do małej łazienki i pomieszczenia technicznego. Pod drewnianymi schodami znajduje się garderoba. Na piętrze rozmieszczono trzy przytulne sypialnie oraz wspólną łazienkę.Ten projekt stanowi atrakcyjną propozycję ekonomicznego i ekologicznego domu, doskonale dostosowanego do stałego zamieszkania przez cały rok.
Konstrukcja
fundamenty: betonowe
ściany zewnętrzne: porotherm+styropian termo organika
ściany wewnętrzne: porotherm
rodzaj stropu: monolityczny
elewacje: tynk strukturalny
pokrycie dachu: dachówka ceramiczna
Rzuty
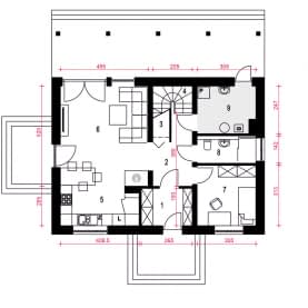
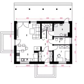
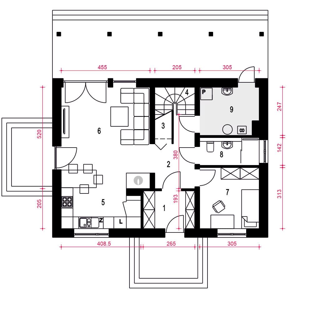
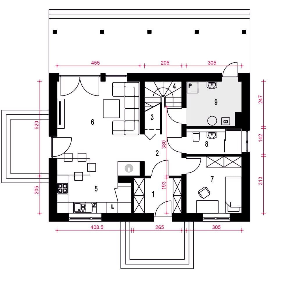
Parter
- m²
- 1. Wiatrołap5
- 2. Hol6.6
- 3. Garderoba1.6
- 4. Schody4
- 5. Kuchnia, spiżarnia8
- 6. Salon23.4
- 7. Pokój9.4
- 8. Łazienka4.2
- 9. Pom. techniczne CO*7.1
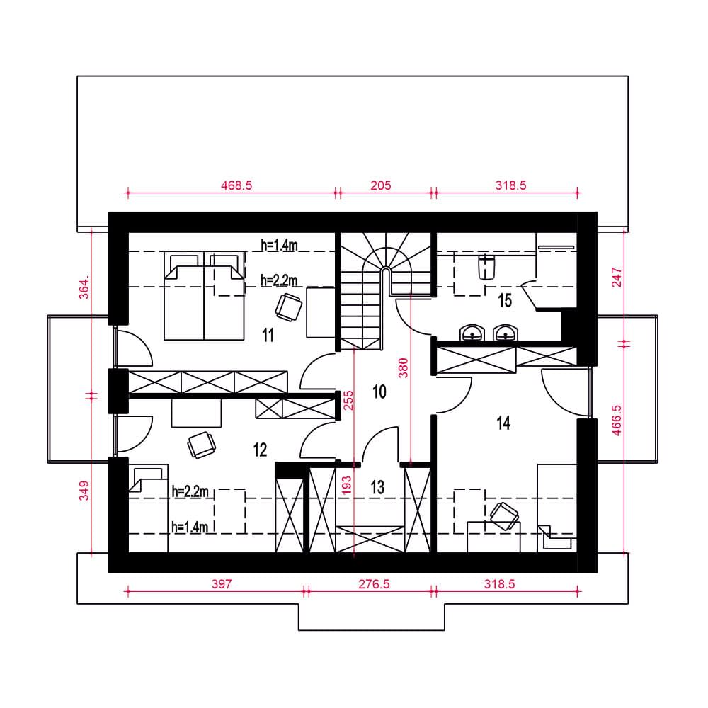
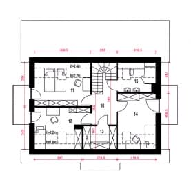
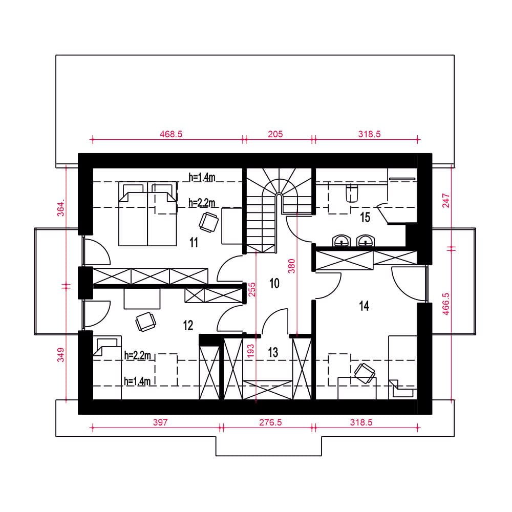
Piętro
Dane techniczne
- Powierzchnia użytkowa112.6 m²
- Powierzchnia zabudowy90.6 m²
- KominekTak
- Liczba łazienek2
- Liczba pokoi5
- Powierzchnia dachu201 m²
- Kubatura336 m³
- Długość domu8.3 m
- Szerokość domu11.2 m
- Wysokość domu8.7 m
- Minimalne wymiary działki16.9 x 19.2m
- GarażBez garażu
- Rodzaj dachuDwuspadowy
- Kąt nach. dachu45°
Instalacja grzewcza
- Instalacja grzewczaGaz
Zawartość projektu
Zgodnie ze znowelizowaną Ustawą Prawo Budowlane art.34 ust.3, na projekt budowlany składają się trzy części:
- projekt zagospodarowania działki lub terenu
- projekt architektoniczno-budowlany
- projekt techniczny
Nasze projekty oferujemy w 3 egzemplarzach, zawierających projekt architektoniczno-budowlany i projekt techniczny. Projekt zagospodarowania działki lub terenu nie wchodzi w skład projektu oferowanego do sprzedaży. Projekt ten należy zlecić we własnym zakresie lokalnemu projektantowi, który opracuje go na podstawie danych zawartych w projekcie architektoniczno-budowlanym i technicznym, po dostosowaniu projektu do warunków lokalnych i wymagań inwestora.
UWAGA: wszystkie egzemplarze projektu zabezpieczone są hologramami, w części rysunkowej posiadają nadruki zabezpieczające w kolorze zielonym. Zalecamy aby po otrzymaniu przesyłki kontrolować czy na pierwszych stronach projektu znajduje się hologram i czy na rysunkach widoczne są w/w nadruki potwierdzające oryginalność projektu.
Wyrażamy zgodę na wszelkie zmiany zgodne z obowiązującymi przepisami pod warunkiem wprowadzenia ich przez uprawnioną osobę.
Wszystkie zmiany wymienione powyżej powinny być naniesione na oryginał projektu katalogowego trwałą techniką graficzną w kolorze czerwonym lub dołączone jako aneks i podpisane przez osobę uprawnioną dokonująca adaptacji.
**ważne informacje
Projekt w fazie koncepcji dostępny z wydłużonym terminem realizacji. Przy zamówieniu ustalamy termin i pobieramy zadatek 50% podstawowej ceny projektu (jako koszty usługi przygotowania dokumentacji do standardu projektu gotowego, w przypadku rezygnacji z usługi, zadatek nie podlega zwrotowi).
Cena za dodatkowy egzemplarz projektu jest zależna od nazwy projektu!
Dodatki
Bezpłatne dodatki
GratisZestaw umów
GratisZmiany w projekcie
GratisTablica budowy
GratisDziennik budowy
Płatne dodatki

Kosztorys - stan wykończony
540 zł

Projekt wentylacji mechanicznej
1 000 zł










