- Typ projektuWolnostojący
- Powierzchnia użytkowa116.5 m²
- KondygnacjeParterowy, z poddaszem
- GarażJednostanowiskowy
- DachDwuspadowy
- Kąt nach. dachu30°
- Odbicie lustrzaneTak
- Czas realizacjimax. czas realizacji 10 dni Zobacz więcej >
Opis
Zgodność z WT 2021 i Eurokodami
Ze względu na dostosowywanie projektu do standardu WT 2021, czas realizacji może się różnić od standardowego.
Skontaktuj się z nami aby poznać szczegóły dotyczące wybranego projektu.
Opis projektu
Uroczy, parterowy dom ze strychem i antresolą, z dużą kotłownią, idealny na działki z wjazdem od południaKonstrukcja
Pustak ceramiczny gr. 25 cm + ocieplenie 15cm w systemie Termo Organika. Pokrycie dachu dachówką cementową. Brama garażowa i drzwi zewnętrzne marki Hörmann.Rzuty
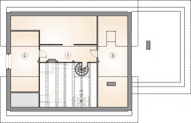
Parter
- przedsionek8.65
- hall11.30
- kuchnia8.30
- spiżarka0.75
- pokój dzienny z jadalnią30.00
- pokój z garderobą15.90
- łazienka7.40
- pokój10.90
- pokój10.30
- łazienka2.40
- kotłownia10.60
- garaż19.10
Poddasze
Dane techniczne
- Powierzchnia użytkowa116.5 m²
- Powierzchnia zabudowy197.9 m²
- KominekTak
- Liczba pokoi2
- Powierzchnia dachu288.4 m²
- Kubatura955.6 m³
- Wysokość domu6.9 m
- Minimalne wymiary działki19.53 x 25.88m
- GarażJednostanowiskowy
- Rodzaj dachuDwuspadowy
- Kąt nach. dachu30°
Instalacja grzewcza
- Instalacja grzewczaGaz, Elektryczne
Zawartość projektu
Zawartość dokumentacji projektowej:
- 3 egzemplarze projektu architektoniczno-budowlanego z częścią opisową
- 3 egzemplarze projektu technicznego (konstrukcja, charakterystyka energetyczna budynku oraz instalacje: centralnego ogrzewania, wodno-kanalizacyjna, gazowa [jeżeli w projekcie zastosowano takie rozwiązanie], elektryczna i odgromowa)
Do każdego projektu dołączone są zaświadczenia projektantów branż: architektonicznej, konstrukcyjnej, sanitarnej i elektrycznej dotyczące uprawnień zawodowych oraz przynależności do Izby Zawodowej na czas wykonania projektu oraz oświadczenie o sporządzeniu projektu zgodnie z obowiązującymi przepisami oraz zasadami wiedzy technicznej.
Zmiany w projekcie.
Na życzenie inwestora, wprowadzane są odpłatne zmiany w projekcie w następującym zakresie
- zmiany kąta nachylenia dachu,
- podpiwniczenie budynku,
- doprojektowanie garażu,
- likwidacja istniejącego garażu,
- przeprojektowanie garażu na dwustanowiskowy,
- zbliźniaczenie budynków.
Na pozostałe zmiany wydawana jest bezpłatna zgoda, na podstawie której lokalny projektant może wykonać adaptacje.
*ważne informacje dodatkowe z dnia 13.07.2023r.
- Dodatek Kosztorys - cena jest zależna od projektu
Dodatki
Bezpłatne dodatki
GratisZestaw umów
GratisZmiany w projekcie
GratisTablica budowy
GratisDziennik budowy
Płatne dodatki

Projekt osadnika
250 zł

Projekt altany ogrodowej
350 zł

Projekt ogrodzenia
320 zł

Projekt rekuperacji
300 zł

Projekt garażu
300 zł

Projekt instalacji fotowoltaicznej
300 zł

Schemat instalacji odkurzacza centralnego
100 zł

Dodatkowy egzemplarz projektu
150 zł

Projekt pompa ciepła
690 zł












