- Typ projektuWolnostojący
- Powierzchnia użytkowa592 m²
- KondygnacjeParterowy, Piętrowy, Dwupiętrowy i więcej, z poddaszem, z piwnicą
- GarażBez garażu
- DachDwuspadowy
- Kąt nach. dachu35°
- Odbicie lustrzaneTak
- Czas realizacjimax. czas realizacji 10 dni Zobacz więcej >
Opis
Zgodność z WT 2021 i Eurokodami
Ze względu na dostosowywanie projektu do standardu WT 2021, czas realizacji może się różnić od standardowego.
Skontaktuj się z nami aby poznać szczegóły dotyczące wybranego projektu.
Opis projektu
Budynek mieszkalny, wielorodzinny, z dwunastoma mieszkaniami, o czterech kondygnacjach nadziemnych, podpiwniczony, z dwuspadowym dachem.Konstrukcja
Technologia murowana: pustak ceramiczny gr. 30 cm + ocieplenie w systemie Termo Organika. Pokrycie dachu: dachówka.Rzuty
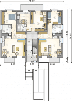
Parter
- hall8.20
- pokój dzienny z jadalnią i aneksem kuchennym30.00
- łazienka6.30
- pokój13.80
- hall4.00
- łazienka4.20
- kuchnia10.35
- pokój dzienny18.80
- wiatrołap5.85
- klatka schodowa18.20
Piętro
- hall8.20
- pokój dzienny z jadalnią i aneksem kuchennym30.00
- łazienka6.30
- pokój13.80
- hall4.00
- łazienka4.20
- kuchnia10.35
- pokój dzienny18.80
- klatka schodowa22.15
Piętro
- hall8.20
- pokój dzienny z jadalnią i aneksem kuchennym30.00
- łazienka6.30
- pokój13.80
- hall4.00
- łazienka4.20
- kuchnia10.35
- pokój dzienny18.80
- klatka schodowa22.15
Poddasze
- hall8.10
- pokój dzienny z jadalnią i aneksem kuchennym23.45
- łazienka5.55
- pokój10.50
- hall3.50
- łazienka4.20
- pokój dzienny z jadalnią i aneksem kuchennym27.25
- klatka schodowa13.15
Piwnica
Dane techniczne
- Powierzchnia użytkowa592 m²
- Powierzchnia zabudowy219.8 m²
- KominekTak
- Liczba pokoi6
- Powierzchnia dachu341 m²
- Kubatura3466.7 m³
- Wysokość domu16.13 m
- Minimalne wymiary działki30.55 x 24.8m
- GarażBez garażu
- Rodzaj dachuDwuspadowy
- Kąt nach. dachu35°
Instalacja grzewcza
- Instalacja grzewczaGaz, Elektryczne
Zawartość projektu
Zawartość dokumentacji projektowej:
- 3 egzemplarze projektu architektoniczno-budowlanego z częścią opisową
- 3 egzemplarze projektu technicznego (konstrukcja, charakterystyka energetyczna budynku oraz instalacje: centralnego ogrzewania, wodno-kanalizacyjna, gazowa [jeżeli w projekcie zastosowano takie rozwiązanie], elektryczna i odgromowa)
Do każdego projektu dołączone są zaświadczenia projektantów branż: architektonicznej, konstrukcyjnej, sanitarnej i elektrycznej dotyczące uprawnień zawodowych oraz przynależności do Izby Zawodowej na czas wykonania projektu oraz oświadczenie o sporządzeniu projektu zgodnie z obowiązującymi przepisami oraz zasadami wiedzy technicznej.
Zmiany w projekcie.
Na życzenie inwestora, wprowadzane są odpłatne zmiany w projekcie w następującym zakresie
- zmiany kąta nachylenia dachu,
- podpiwniczenie budynku,
- doprojektowanie garażu,
- likwidacja istniejącego garażu,
- przeprojektowanie garażu na dwustanowiskowy,
- zbliźniaczenie budynków.
Na pozostałe zmiany wydawana jest bezpłatna zgoda, na podstawie której lokalny projektant może wykonać adaptacje.
*ważne informacje dodatkowe z dnia 13.07.2023r.
- Dodatek Kosztorys - cena jest zależna od projektu
Dodatki
Bezpłatne dodatki
GratisZestaw umów
GratisZmiany w projekcie
GratisTablica budowy
GratisDziennik budowy
Płatne dodatki

Projekt osadnika
250 zł

Projekt altany ogrodowej
350 zł

Projekt ogrodzenia
320 zł

Projekt rekuperacji
300 zł

Projekt garażu
300 zł

Projekt instalacji fotowoltaicznej
300 zł

Schemat instalacji odkurzacza centralnego
100 zł

Dodatkowy egzemplarz projektu
150 zł

Projekt pompa ciepła
690 zł














