- Typ projektuWolnostojący
- StylNowoczesny
- Powierzchnia użytkowa158.62 m²
- KondygnacjeParterowy, z poddaszem
- GarażDwustanowiskowy
- DachDwuspadowy
- Kąt nach. dachu40°
- Odbicie lustrzaneNie
- Czas realizacjimax. czas realizacji 10 dni Zobacz więcej >
Opis
Zgodność z WT 2021 i Eurokodami
Ze względu na dostosowywanie projektu do standardu WT 2021, czas realizacji może się różnić od standardowego.
Skontaktuj się z nami aby poznać szczegóły dotyczące wybranego projektu.
Opis projektu
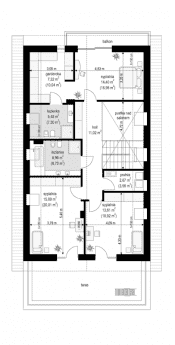
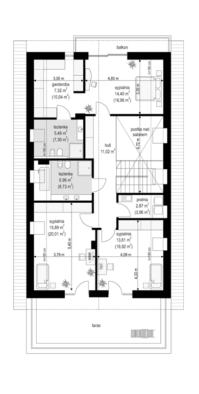
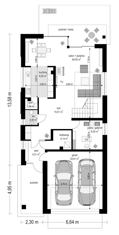
Projekt domu Salsa to jeden z projektów z serii domów wywodzących się z projektu „Party”. Salsa to dom jednorodzinny przeznaczony dla cztero-sześcioosobowej rodziny. Dom parterowy z poddaszem użytkowym, o prostej bryle przykrytej dwuspadowym dachem, z wystającą nieco poza główną bryłę parterową częścią garażu. Projekt przeznaczony jest na wąską działkę, która nie pozwala na budowę budynku o szerokiej elewacji frontowej. Minimalna szerokość działki to 16,9 metrów, ale zamieniając w jednej z bocznych elewacji okna na luksfery możemy posadowić dom na działce o szerokości poniżej 16-tu metrów (nawet na działce o szerokości 14,6 m - jeśli jest zgoda na zbliżenie się ścianą bez okien na 1,5 m od granicy). Prosta spokojna bryła domu połączona z nowoczesną formą i zastosowanymi materiałami daje atrakcyjną sylwetkę „Salsy”. Front domu ozdabia duży podcień wejściowy, z reprezentacyjnymi drzwiami. Od strony ogrodu mamy z kolei częściowo zadaszony taras, piękne przeszklone otwarcie przestrzeni dziennej na ogród, oraz taras –balkon poddasza. Nowoczesna stonowana kolorystyka domu pozwoli „Salsie” właściwie wkomponować się w dowolne sąsiedztwo. Wnętrze domu zaprojektowano sytuując garaż obok wejścia, od frontu. Z sieni przechodzimy szerokimi szklanymi drzwiami do holu. Hol ma bardzo poręczną wnękę z dużą szafą przy przedsionku. Z holu otwiera się nam piękny widok na salon z pustką nad częścią jego powierzchni i nad schodami będącymi ozdobą wnętrza. Obok mamy bardzo praktyczną kuchnią typu „wagon”, oraz przestronny aneks jadalny. Salon i jadalnia łączą się przeszklonymi drzwiami z tarasem i ogrodem. Z holu możemy dostać się jeszcze do dodatkowego pokoju (np. gabinet), oraz wc. Na poddaszu mamy piękny holl - antresolę, widoczną z salonu na dole. Antresola stanowi most łączący apartament rodziców (z sypialnią, bardzo ładną garderobą, łazienką i balkonem-tarasem ogrodowym), z częścią poddasza przeznaczoną na dwie sypialnie dzieci, łazienkę i pralnię. Sypialnie dziecięce również mają wyjście na drugi balkon-taras. Dom ma prostą bryłę, nowoczesną architekturę, piękne wnętrze z pustką nad salonem - no i przede wszystkim jest to doskonały projekt na wąską działkę. Do tego projekt domu Salsa ma prostą konstrukcję - będzie niedrogi w budowie i późniejszym utrzymaniu. Wąska działka nie musi być wcale wadą - wystarczy zdecydować się na właściwy projekt - oczywiście najlepsza jest Salsa :) Zapraszamy do zapoznania się z całą serią "roztańczonych domów": https://www.mgprojekt.com.pl/makarena, https://www.mgprojekt.com.pl/bolero, https://www.mgprojekt.com.pl/lambada, https://www.mgprojekt.com.pl/party, https://www.mgprojekt.com.pl/party-2, https://www.mgprojekt.com.pl/biba, https://www.mgprojekt.com.pl/tango, https://www.mgprojekt.com.pl/salsa, https://www.mgprojekt.com.pl/rumba, https://www.mgprojekt.com.pl/mambo, https://www.mgprojekt.com.pl/mambo, https://www.mgprojekt.com.pl/fokstrot, https://www.mgprojekt.com.pl/samba.
Konstrukcja
- Fundamentybetonowe ławy i ściany fundamentowe z bloczków betonowych
- Ściany zewnętrzneściany murowane - pustaki porotherm 25 + styropian
- Strop żelbetowy monolityczny
- Elewacjetynk cienkowarstwowy na styropianie
- Pokrycie dachudachówka ceramiczna
Rzuty
Dane techniczne
- Powierzchnia użytkowa158.62 m²
- Powierzchnia netto162.78 m²
- Powierzchnia zabudowy150.59 m²
- KominekTak
- Liczba łazienek3
- Liczba pokoi5
- Powierzchnia dachu219.57 m²
- Kubatura726 m³
- Długość domu18.53 m
- Szerokość domu8.94 m
- Wysokość domu8.55 m
- Poddaszeużytkowe
- Minimalne wymiary działki26.53 x 16.94m
- GarażDwustanowiskowy
- Rodzaj dachuDwuspadowy
- Kąt nach. dachu40°
Koszty budowy
- Stan surowy248856 zł
- Stan surowy zamknięty335773 zł
- Koszt wykończenia351346 zł
- Koszt instalacji101999 zł
Zawartość projektu
W komplecie nowej wersji dokumentacji projektowej znajdują się 3 egzemplarze projektu architektoniczno-budowlanego oraz 3 egzemplarze projektu technicznego
Projekt architektoniczno-budowlany zawierający:
-opis architektoniczny z elementami konstrukcji,
-część rysunkowa: rzut parteru, poddasza/piętra, rzut dachu w skali 1:100, przekroje skala 1:50,
elewacje skala 1:100.
Projekt techniczny zawierający:
-opis techniczny i konstrukcyjny (obliczenia statyczne - w zależności od projektu włączone w projekt lub stanowiące odrębną teczkę).
Część rysunkowa architektura i konstrukcja:
-rzuty fundamentów, parteru, poddasza, stropu, więźby, dachu / w skali 1:50,
-przekroje przez budynek / budynek skali 1:50,
-elewacje budynku / w skali 1:50 (*niektóre projekty posiadają rysunki w skali 1:100 lub 1:75),
-zestawienie stolarki budowlanej okiennej i drzwiowej,
-szczegóły konstrukcji i ewentualne szczegóły budowlane,
Część instalacyjna:
-część opisowa do projektów instalacji elektrycznych, wodno-kanalizacyjnych, grzewczych, gazowych (jeśli występują).
Część rysunkowa do projektów instalacji:
-schematy instalacji elektrycznych, schemat rozdzielni, plan instalacji odgromowej,
-schematy instalacji wodno-kanalizacyjnej i ciepłej wody,
-schematy instalacji grzewczych,
-schemat instalacji gazowej (jeśli występują).
Do projektu dołączane jest zestawienie materiałowe, z wykazem elementów drewnianych oraz stali budowlanej.
Do projektu dołączone są kopie uprawnień wszystkich projektantów, oraz aktualne zaświadczenia o przynależności do izb zawodowych.
Projekt zawiera oświadczenie projektantów o poprawności projektu w świetle Prawa Budowlanego, a także zawiera informację dotyczącą bezpieczeństwa i ochrony zdrowia ( BIOZ).
Do projektu dołączona jest także zgoda na zmiany adaptacyjne. Zgoda dołączana jest do każdego projektu bezpłatnie. Na Państwa życzenie zakres zgody na zmiany możemy dowolnie rozszerzyć.
Pracownia zezwala na następujące zmiany i odstępstwa od projektu architektoniczno-budowlanego w trakcie jego przystosowywania do lokalizacji:
- Zmianę obrysu zewnętrznego ścian zewnętrznych.
- Zmianę obrysu wewnętrznego ścian zewnętrznych.
- Zmianę układu ścian wewnętrznych działowych.
- Zmianę funkcji, ilości i usytuowania poszczególnych pomieszczeń na dowolnej kondygnacji w projekcie.
- Zmianę ukształtowania, ilości i kąta nachylenia połaci dachowych.
- Zmianę ilości, umiejscowienia i wielkości otworów okiennych i drzwiowych.
- Zmianę rodzaju materiału i technologii wykonania ścian zewnętrznych oraz wewnętrznych oraz ścian fundamentowych.
- Zmianę rodzaju i technologii wykonania stropów nad dowolną kondygnacją.
- Zmianę umiejscowienia, kształtu i materiału wykonania schodów w budynku.
- Zmianę wielkości, kształtu i materiałów, bądź likwidacja: tarasów, podestów i balkonów.
- Likwidację lub dodanie dowolnej ilości:
- lukarn,
- wykuszy,
- podcieni,
- balkonów,
- loggii,
- kolumn,
- pilastrów,
- ganków,
- werand.
- Zmianę materiałów wykończeniowych, instalacyjnych, izolacyjnych.
- Zmianę rodzaju pokrycia dachowego.
- Doprojektowanie bądź likwidacja podpiwniczenia - częściowego lub całkowitego.
Dodatki
Bezpłatne dodatki
GratisZestaw umów
GratisZmiany w projekcie
PromocjaProjekt szamba szczelnego
GratisTablica budowy
GratisDziennik budowy
Płatne dodatki

Pakiet wentylacja mechaniczna i kominek DGP
550 zł

Kosztorys inwestorski
600 zł

Pakiet odkurzacz centralny
550 zł

Wersja elektroniczna projektu
600 zł

Pakiet instalacja solarna
550 zł

Pakiet ogrzewanie podłogowe
550 zł

Pakiet powietrzna pompa ciepła
550 zł

Pakiet płaszcz wodny
550 zł

Pakiet kotłownia na paliwo stałe
550 zł

Pakiet klimatyzacja w domu
550 zł

Projekt ogrodzenia
750 zł

Pakiet instalacja fotowoltaiczna
550 zł

Pakiet kominek z DGP
500 zł

Pakiet gruntowa pompa ciepła
550 zł

Projekt altan i grilów ogrodowych
850 zł

Dodatkowy egzemplarz do projektu
650 zł


















