Projekt domu SANTA CRUZ bale
- Typ projektuWolnostojący
- Powierzchnia użytkowa132.16 m²
- Kondygnacjez poddaszem
- GarażBez garażu
- DachDwuspadowy
- Kąt nach. dachu40°
- Odbicie lustrzaneTak
- Czas realizacjido 10 dni roboczych Zobacz więcej >
Opis
Opis projektu
Santa Cruz - bale - dom z bali Urokliwy i ekologiczny dom w w technologii balowej, jego zwarta bryła wyróżnia się klasyczną prostotą i wyważonymi proporcjami. Szeroka wejściowa wnęka, symetrycznie rozmieszczone okna parteru i poddasza, dwuspadowy dach i zgrabna wiata tworzą efektowną całość. Na tyłach domu znajduje się taras, prowadzący bezpośrednio do ogrodu. Miejscem, gdzie koncentruje się życie domowników jest pokój dzienny połączony z kuchnią, w której wydzielono kącik jadalny. Na parterze jest także pomieszczenie idealne na zaciszny gabinet. Oprócz tego na parterze znajduje się łazienka i kotłownia, z której wchodzi się do praktycznego, przydatnego w każdym domu pomieszczenia gospodarczego, stamtąd zaś prowadzi wyjście na zewnątrz pod wiatę. Trzy kameralne i przytulne pokoje na poddaszu zapewnią mieszkańcom domu, tak potrzebną każdemu atmosferę spokoju i prywatności. Na górze jest także łazienka. Powierzchnię użytkową poddasza policzono do 1,9m.
Santa Cruz to projekt, który łączy tradycję z nowoczesnością. Zastosowanie bali drewnianych nadaje konstrukcji uroku i naturalności. Realizacja tego projektu w górach, na wsi, nad jeziorem – pozwoli w pełni wydobyć piękno Santa Cruz z bali.
Projekt składa się z części architektonicznej, konstrukcyjnej, wewnętrznych instalacji wod.-kan, c. o. i elektrycznej. W projekcie załączone są podstawowe zestawienie stali, drewna i stolarki okienno-drzwiowej. Do projektu dołączamy bezpłatną zgodę na wprowadzenie zmian, oświadczenie projektantów o wykonaniu projektu zgodnie z obowiązującymi normami i przepisami oraz kserokopie uprawnień projektantów wraz z aktualnym wpisem do izby. W przypadku zamówienia projektu w technologii lekkiej, drewnianej konstrukcji szkieletowej, powierzchnia użytkowa budynku jest o około 7% większa.
Wysokość ściany kolankowej 1.20m
Konstrukcja
Budynek zaprojektowano w technologii z bali drewnianych fi 230, układanych krzyżowo na zaciosy , konstrukcję nośną stanowią stopy fundamentowe zazbrojone konstrukcyjnie, słupy nośne, płatwie, oraz dach wielospadowy o konstrukcji krokwiowej z belka wiązara, drewno klasy co najmniej C-24 o wilgotnościi
Rzuty
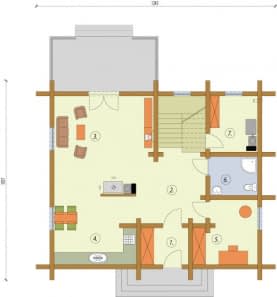
Rzut przyziemia
- 3. Salon24.55
- 2. Komunikacja12.46
- 7. Kotłownia7.21
- 8. Taras16.13
- 1. Przedsionek4.72
- 4. Kuchnia/Jadalnia15.38
- 5. Gabinet10.55
- 6. Łazienka4.99
Rzut poddasza
Dane techniczne
- Powierzchnia użytkowa132.16 m²
- Powierzchnia zabudowy103.82 m²
- Liczba pokoi12
- Powierzchnia dachu187 m²
- Kubatura636.43 m³
- Wysokość domu8.1 m
- PoddaszeUżytkowe
- Minimalne wymiary działki22.43 x 18.37m
- GarażBez garażu
- Rodzaj dachuDwuspadowy
- Kąt nach. dachu40°
Zawartość projektu
Projekty są dostępne w wersji książkowej, drukowanej w tak zwanym w nowym trybie 3 egzemplarze projektu architektoniczno-budowlanego oraz 3 egzemplarze projektu technicznego. Na życzenie przesyłamy rzuty i przekroje wersji podstawowych dokumentacji w formacie PDF
Każdy projekt architektoniczno-budowlany domu składa się z następujących części:
- strona tytułowa,
- oświadczenie
- część opisowa projektu architektoniczno-budowlanego,
- projektowana charakterystyka energetyczna z analizą,
- część rysunkowej projektu architektoniczno-budowlanego,
- zaświadczenia i uprawnienia.
Każdy projekt techniczny domu składa się z:
- strony tytułowej,
- oświadczenia,
- części opisowej projektu technicznego,
- części rysunkowej projektu technicznego,
- części konstrukcyjnej,
- zaświadczenia i uprawnień,
- zestawień drewna i stali,
-instalacji elektrycznej i odgromowej,
-instalacji sanitarnych, gazowych i centralnego ogrzewania.
Do projektu na życzenie dołączamy obliczenia statyczno-wytrzymałościowe.
Inwestor otrzymuje 3 opieczętowane sztuki projektu architektoniczno-budowlanego oraz 3 egzemplarze projektu technicznego tworzące komplet, każdy z plombą zabezpieczającą i oryginalnym hologramem biura.
Pierwszy egzemplarz tomu I zawiera zgodę in blanco na wszystkie zmiany wprowadzane do projektu po zakupie przez lokalnego wybranego na własną rękę przez Inwestora architekta adaptującego/kierownika budowy. Do teczki projektów dołączamy także zaświadczenia i aktualne wpisy do Izb autorów projektu oraz wpisy aktualne na czas sporządzenia projektu.
Dodatki
Bezpłatne dodatki
GratisZestaw umów
GratisZmiany w projekcie
GratisTablica budowy
GratisDziennik budowy
Płatne dodatki

Kosztorys
370 zł

Dodatkowy egzemplarz projektu
450 zł

Projekt wentylacji mechanicznej z rekuperatorem
450 zł

Projekt fotowoltaiki dla domu
750 zł

Projekt instalacji z ogrzewaniem podłogowym
400 zł








