Projekt domu SARAGOSSA
- Typ projektuWolnostojący
- Powierzchnia użytkowa125.37 m²
- KondygnacjeParterowy, z poddaszem
- GarażJednostanowiskowy
- DachDwuspadowy
- Kąt nach. dachu43°
- Odbicie lustrzaneTak
- Czas realizacjido 10 dni roboczych Zobacz więcej >
Opis
Opis projektu
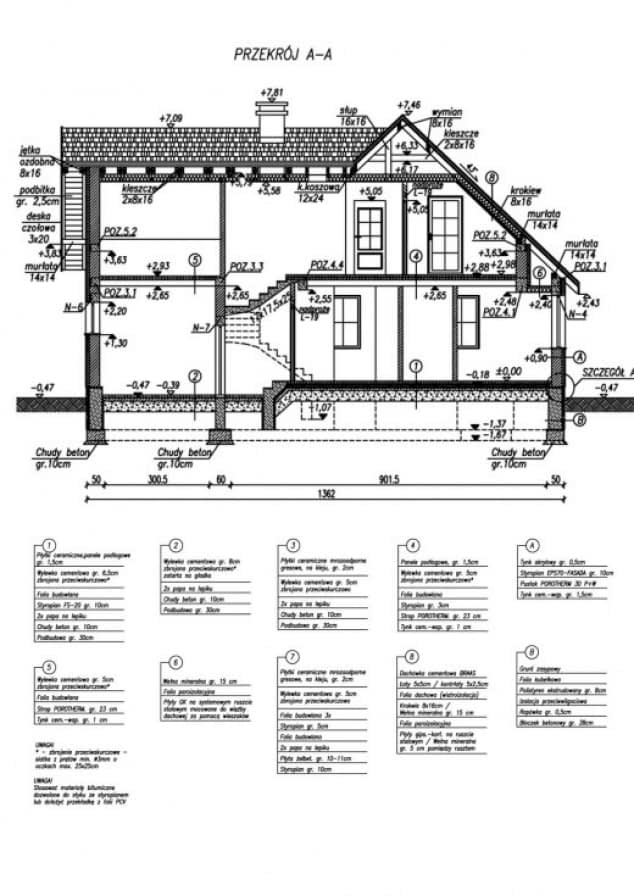
Konstrukcja
- powierzchnia zabudowy - 106,72m2
- kubatura - 565,00m3
- ściany zewnętrzne murowane grubości 30 cm + 10 cm styropian
- ściany wewnętrzne (nośne) gr. 25 cm i działowe gr. 12 cm
- wszystkie ściany wykonane z pustaków ceramicznych "POROTHERM"
- strop gęstożebrowy "POROTHERM" o gr. 23 cm
- konstrukcja więźby dachowej drewniana w układzie krokwiowo-jętkowym
- pokrycie dachówka ceramiczna
- projekt posiada kominek
- instalacja grzewcza: kocioł gazowy w kotłowni
Rzuty
parter
- 8. Przedsionek2.16
- 2. Komunikacja10.25
- 3. Łazienka3.06
- 4. Spiżarnia1.4
- 1. Wiatrołap2.89
- 5. Kuchnia7.22
- 6. Jadalnia6.42
- 7. Pokój dzienny25.77
- 9. Kotłownia5.14
- 10. Garaż18.92
- 11. Skład drewna kominkowego2
- 1. Komunikacja7.5
- 2. Łazienka5.32
- 3. Pokój8
- 4. Pokój10.78
- 5. Sypialnia11.02
- 6. Garderoby3.53
- 7. Strych12.91
Przekrój A-A
Przekrój B-B
Dane techniczne
- Powierzchnia użytkowa125.37 m²
- Powierzchnia zabudowy106.72 m²
- Liczba pokoi16
- Powierzchnia dachu215 m²
- Kubatura656 m³
- Wysokość domu7.93 m
- PoddaszeUżytkowe
- Minimalne wymiary działki21.7 x 17.45m
- GarażJednostanowiskowy
- Rodzaj dachuDwuspadowy
- Kąt nach. dachu43°
Zawartość projektu
Projekty są dostępne w wersji książkowej, drukowanej w tak zwanym w nowym trybie 3 egzemplarze projektu architektoniczno-budowlanego oraz 3 egzemplarze projektu technicznego. Na życzenie przesyłamy rzuty i przekroje wersji podstawowych dokumentacji w formacie PDF
Każdy projekt architektoniczno-budowlany domu składa się z następujących części:
- strona tytułowa,
- oświadczenie
- część opisowa projektu architektoniczno-budowlanego,
- projektowana charakterystyka energetyczna z analizą,
- część rysunkowej projektu architektoniczno-budowlanego,
- zaświadczenia i uprawnienia.
Każdy projekt techniczny domu składa się z:
- strony tytułowej,
- oświadczenia,
- części opisowej projektu technicznego,
- części rysunkowej projektu technicznego,
- części konstrukcyjnej,
- zaświadczenia i uprawnień,
- zestawień drewna i stali,
-instalacji elektrycznej i odgromowej,
-instalacji sanitarnych, gazowych i centralnego ogrzewania.
Do projektu na życzenie dołączamy obliczenia statyczno-wytrzymałościowe.
Inwestor otrzymuje 3 opieczętowane sztuki projektu architektoniczno-budowlanego oraz 3 egzemplarze projektu technicznego tworzące komplet, każdy z plombą zabezpieczającą i oryginalnym hologramem biura.
Pierwszy egzemplarz tomu I zawiera zgodę in blanco na wszystkie zmiany wprowadzane do projektu po zakupie przez lokalnego wybranego na własną rękę przez Inwestora architekta adaptującego/kierownika budowy. Do teczki projektów dołączamy także zaświadczenia i aktualne wpisy do Izb autorów projektu oraz wpisy aktualne na czas sporządzenia projektu.
Dodatki
Bezpłatne dodatki
GratisZestaw umów
GratisZmiany w projekcie
GratisTablica budowy
GratisDziennik budowy
Płatne dodatki

Kosztorys
370 zł

Dodatkowy egzemplarz projektu
450 zł

Projekt wentylacji mechanicznej z rekuperatorem
450 zł

Projekt fotowoltaiki dla domu
750 zł

Projekt instalacji z ogrzewaniem podłogowym
400 zł










