- Typ projektuLetniskowy
- StylTradycyjny
- Powierzchnia użytkowa53.43 m²
- KondygnacjeParterowy, z poddaszem
- GarażBez garażu
- DachDwuspadowy
- Kąt nach. dachu45°
- Odbicie lustrzaneNie
- Czas realizacjimax. czas realizacji 10 dni Zobacz więcej >
Opis
Zgodność z WT 2021 i Eurokodami
Ze względu na dostosowywanie projektu do standardu WT 2021, czas realizacji może się różnić od standardowego.
Skontaktuj się z nami aby poznać szczegóły dotyczące wybranego projektu.
Opis projektu
Projekt domu Sosenka to mały, zgrabny domek, mogący pełnić funkcję letniskowego, ale również całorocznego domostwa dla małej rodziny. Jego zaletami są właściwe proporcje, nadające estetyczny wygląd budynku, funkcjonalne wnętrze oraz prosta, tania w budowie konstrukcja. Pracownia MGProjekt zaprojektowała kilka wersji domku Sosenka: powiększoną o 1 metr, z dobudowanym garażem lub wiatą, z gankiem wejściowym, z balkonem i z podcieniem nad tarasem, czy z pomieszczeniem gospodarczym. Dom można wykonać w technologii murowanej i szkieletowej. Projekt domu Sosenka dostępny jest w odbiciu lustrzanym oraz w kilku wersjach wariantowych. Zapraszamy do zapoznania się także z innymi projektami domów z tej serii: domkiem z zadaszonym tarasem (projekt domu Sosenka 2), z gankiem wejściowym i pomieszczeniem gospodarczym (projekt domu Sosenka 3), w technologii drewnianej i większej powierzchni (projekt domu Sosenka 4, komfortowej (projekt domu Sosenka 5), w technologii drewnianej o mniejszych gabarytach (projekt domu Sosenka drewniana).
Konstrukcja
- Fundamentymonolityczne betonowe
- Ściany zewnętrznebeton komórkowy + styropian lub szkielet drewniany
- Ściany wewnętrznebeton komórkowy lub drewniane
- Stropdrewniany
- Elewacjetynk cienkopowłokowy lub szalówka
- Pokrycie dachudachówka lub blacha dachówkowa
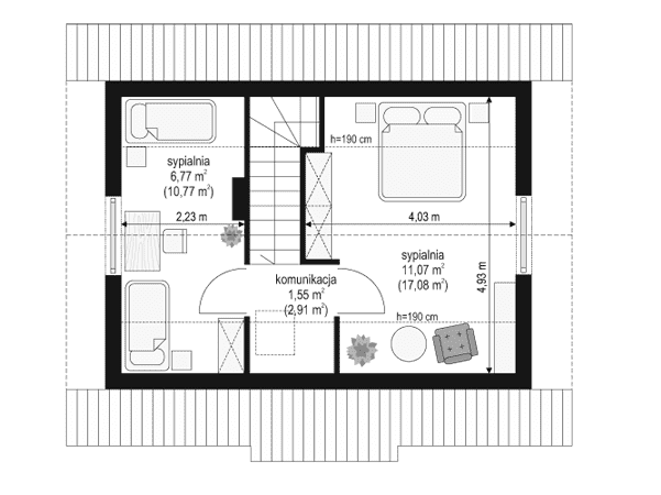
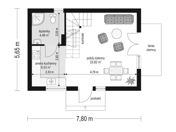
Rzuty
Dane techniczne
- Powierzchnia użytkowa53.43 m²
- Powierzchnia netto53.43 m²
- Powierzchnia zabudowy44.07 m²
- KominekTak
- Liczba łazienek1
- Liczba pokoi3
- Powierzchnia dachu96.96 m²
- Kubatura193 m³
- Długość domu5.65 m
- Szerokość domu7.8 m
- Wysokość domu6.88 m
- Poddaszeużytkowe
- Minimalne wymiary działki13.65 x 15.8m
- GarażBez garażu
- Rodzaj dachuDwuspadowy
- Kąt nach. dachu45°
Koszty budowy
- Stan surowy54844 zł
- Stan surowy zamknięty86717 zł
- Koszt wykończenia126107 zł
- Koszt instalacji41779 zł
Zawartość projektu
W komplecie nowej wersji dokumentacji projektowej znajdują się 3 egzemplarze projektu architektoniczno-budowlanego oraz 3 egzemplarze projektu technicznego
Projekt architektoniczno-budowlany zawierający:
-opis architektoniczny z elementami konstrukcji,
-część rysunkowa: rzut parteru, poddasza/piętra, rzut dachu w skali 1:100, przekroje skala 1:50,
elewacje skala 1:100.
Projekt techniczny zawierający:
-opis techniczny i konstrukcyjny (obliczenia statyczne - w zależności od projektu włączone w projekt lub stanowiące odrębną teczkę).
Część rysunkowa architektura i konstrukcja:
-rzuty fundamentów, parteru, poddasza, stropu, więźby, dachu / w skali 1:50,
-przekroje przez budynek / budynek skali 1:50,
-elewacje budynku / w skali 1:50 (*niektóre projekty posiadają rysunki w skali 1:100 lub 1:75),
-zestawienie stolarki budowlanej okiennej i drzwiowej,
-szczegóły konstrukcji i ewentualne szczegóły budowlane,
Część instalacyjna:
-część opisowa do projektów instalacji elektrycznych, wodno-kanalizacyjnych, grzewczych, gazowych (jeśli występują).
Część rysunkowa do projektów instalacji:
-schematy instalacji elektrycznych, schemat rozdzielni, plan instalacji odgromowej,
-schematy instalacji wodno-kanalizacyjnej i ciepłej wody,
-schematy instalacji grzewczych,
-schemat instalacji gazowej (jeśli występują).
Do projektu dołączane jest zestawienie materiałowe, z wykazem elementów drewnianych oraz stali budowlanej.
Do projektu dołączone są kopie uprawnień wszystkich projektantów, oraz aktualne zaświadczenia o przynależności do izb zawodowych.
Projekt zawiera oświadczenie projektantów o poprawności projektu w świetle Prawa Budowlanego, a także zawiera informację dotyczącą bezpieczeństwa i ochrony zdrowia ( BIOZ).
Do projektu dołączona jest także zgoda na zmiany adaptacyjne. Zgoda dołączana jest do każdego projektu bezpłatnie. Na Państwa życzenie zakres zgody na zmiany możemy dowolnie rozszerzyć.
Pracownia zezwala na następujące zmiany i odstępstwa od projektu architektoniczno-budowlanego w trakcie jego przystosowywania do lokalizacji:
- Zmianę obrysu zewnętrznego ścian zewnętrznych.
- Zmianę obrysu wewnętrznego ścian zewnętrznych.
- Zmianę układu ścian wewnętrznych działowych.
- Zmianę funkcji, ilości i usytuowania poszczególnych pomieszczeń na dowolnej kondygnacji w projekcie.
- Zmianę ukształtowania, ilości i kąta nachylenia połaci dachowych.
- Zmianę ilości, umiejscowienia i wielkości otworów okiennych i drzwiowych.
- Zmianę rodzaju materiału i technologii wykonania ścian zewnętrznych oraz wewnętrznych oraz ścian fundamentowych.
- Zmianę rodzaju i technologii wykonania stropów nad dowolną kondygnacją.
- Zmianę umiejscowienia, kształtu i materiału wykonania schodów w budynku.
- Zmianę wielkości, kształtu i materiałów, bądź likwidacja: tarasów, podestów i balkonów.
- Likwidację lub dodanie dowolnej ilości:
- lukarn,
- wykuszy,
- podcieni,
- balkonów,
- loggii,
- kolumn,
- pilastrów,
- ganków,
- werand.
- Zmianę materiałów wykończeniowych, instalacyjnych, izolacyjnych.
- Zmianę rodzaju pokrycia dachowego.
- Doprojektowanie bądź likwidacja podpiwniczenia - częściowego lub całkowitego.
Dodatki
Bezpłatne dodatki
GratisZestaw umów
GratisZmiany w projekcie
PromocjaProjekt szamba szczelnego
GratisTablica budowy
GratisDziennik budowy
Płatne dodatki

Pakiet wentylacja mechaniczna i kominek DGP
550 zł

Kosztorys inwestorski
600 zł

Pakiet odkurzacz centralny
550 zł

Wersja elektroniczna projektu
600 zł

Pakiet instalacja solarna
550 zł

Pakiet ogrzewanie podłogowe
550 zł

Pakiet powietrzna pompa ciepła
550 zł

Pakiet płaszcz wodny
550 zł

Pakiet kotłownia na paliwo stałe
550 zł

Pakiet klimatyzacja w domu
550 zł

Projekt ogrodzenia
750 zł

Pakiet instalacja fotowoltaiczna
550 zł

Pakiet kominek z DGP
500 zł

Pakiet gruntowa pompa ciepła
550 zł

Projekt altan i grilów ogrodowych
850 zł

Dodatkowy egzemplarz do projektu
650 zł















