- Typ projektuWolnostojący
- StylNowoczesny
- Powierzchnia użytkowa137.5 m²
- KondygnacjeParterowy, z poddaszem
- GarażJednostanowiskowy
- DachDwuspadowy
- Odbicie lustrzaneTak
- Czas realizacjimax. czas realizacji 10 dni Zobacz więcej >
Opis
Zgodność z WT 2021 i Eurokodami
Ze względu na dostosowywanie projektu do standardu WT 2021, czas realizacji może się różnić od standardowego.
Skontaktuj się z nami aby poznać szczegóły dotyczące wybranego projektu.
Opis projektu
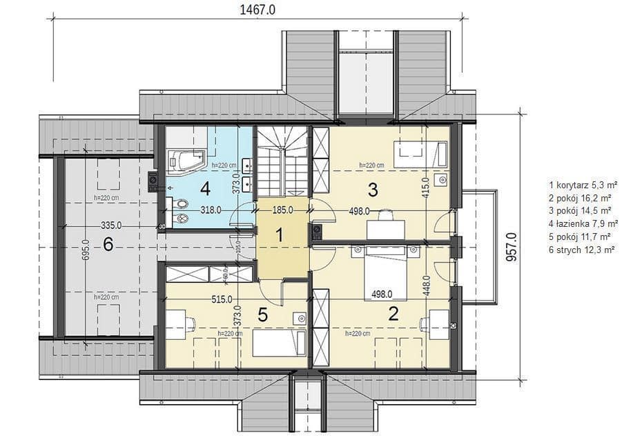
Dom został zaprojektowany dla potrzeb 4-ro lub 5-cio osobowej rodziny. Kompaktowa, zwarta bryła domu jest przekryta dwuspadowym dachem o bardzo prostej konstrukcji drewnianej. Dom zaprojektowano dodatkowo z zadaszeniem nad wejściem głównym i tarasem oraz dobudowanym garażem jednostanowiskowym. Proste i funkcjonalne wnętrze zakłada strefę dzienną wraz z pokojem gościnnym na parterze oraz w pełni rozkładową strefę nocną na poddaszu. Przestronny, otwierający się na ogród salon z jadalnią dopełniono zaprojektowanym zadaszonym tarasem, który doskonale sprawdzi się jako miejsce na letnie posiłki. Możliwość adaptacji pomieszczenia strychu nad garażem na dodatkowy pokój mieszkalny jest dodatkowym atutem tego budynku. Optymalna wysokość ścianki kolankowej, jaka została zaprojektowana, pozwala na uzyskanie komfortowej powierzchni mieszkalnej na poddaszu i zachowanie idealnych proporcji bryły obiektu. Budynek stanowi kompromis tradycyjnej formy, współczesnej estetyki oraz regionalnych materiałów, takich jak elewacyjna okładzina drewniana, cegła klinkierowa, czy szlachetna dachówka. Ponadczasowa architektura tego średniej wielkości domu sprawia, że z łatwością wpisze się w niemal każdy krajobraz.
Konstrukcja
Posadowienie bezpośrednie na zbrojonych ławach i stopach fundamentowych wykonanych z betonu B 20. Ściany fundamentowe: murowane z bloczków betonowych M6. Ściany zewnętrzne: bloczki gazobetonowe gr. 25cm na zaprawie systemowej, ciepłochronnej, ocieplony styropianem fasadowym gr. 15cm. Do ocieplenia budynku zaprojektowano użycie styropianu grafitowego gr. 15 cm, o współczynniku „lambda” nie przekraczającym 0,035 W(mK) i „oporze cieplnym” nie mniejszym niż Rd – 4,0 m2k/W. Zastosowanie materiałów budowlanych (ocieplenie ścian, dachu, podłogi na gruncie, okien i drzwi zewnętrznych) użytych w projekcie odpowiada nowym wymaganiom obowiązującym od stycznia 2021 roku (WT2021). Ściany nośne wewnętrzne: bloczki gazobetonowe gr. 25cm na zaprawie cementowo-wapiennej lub systemowej. Ściany wewnętrzne działowe: bloczki gazobetonowe gr. 12cm. Strop gęstożebrowy z wypełnieniem pustakami betonowymi, zalewany wraz z wieńcami betonem B 20. Konstrukcja dachu: drewniana, drewno klasy C24, więźba dachowa krokwiowo-jętkowa. Budynek, w wersji podstawowej, jest zaprojektowany z pomieszczeniem kotłowni wyposażonej w kocioł ekologiczny na paliwo stałe „pellet” i spełnia wszystkie wymagania dotyczące WT2021. Na etapie adaptacji projektu jest możliwość zaprojektowania ogrzewania gazowego ze wspomaganiem instalacją solarną lub ogrzewania nowoczesną pompa ciepła typu powietrze – woda. Projekt pod względem konstrukcyjnym spełnia normy zgodne z Eurokodami.
Rzuty
Dane techniczne
- Powierzchnia użytkowa137.5 m²
- Powierzchnia zabudowy133.8 m²
- Liczba pokoi5
- Kubatura459.3 m³
- Wysokość domu8.45 m
- Minimalne wymiary działki21.67 x 17.57m
- GarażJednostanowiskowy
- Rodzaj dachuDwuspadowy
Instalacja grzewcza
- Instalacja opcjonalna
Zawartość projektu
* ważne informacje
Każda wersja standardowa projektu została zaprojektowana pod ogrzewanie za pomocą kotła na Pellet.
W przypadku zmiany wersji ogrzewania np:
- gaz + solar to dodatkowo 350 zł do ceny projektu,
- pompa ciepła powietrze-woda + ogrzewanie podłogowe to dodatkowo 350 zł do ceny projektu.
Dodatki
Bezpłatne dodatki
GratisZestaw umów
GratisZmiany w projekcie
GratisTablica budowy
GratisDziennik budowy












