- Typ projektuWolnostojący
- StylNowoczesny
- Powierzchnia użytkowa136.3 m²
- KondygnacjeParterowy, z poddaszem
- GarażBez garażu
- DachDwuspadowy
- Odbicie lustrzaneTak
- Czas realizacjimax. czas realizacji 10 dni Zobacz więcej >
Opis
Zgodność z WT 2021 i Eurokodami
Ze względu na dostosowywanie projektu do standardu WT 2021, czas realizacji może się różnić od standardowego.
Skontaktuj się z nami aby poznać szczegóły dotyczące wybranego projektu.
Opis projektu
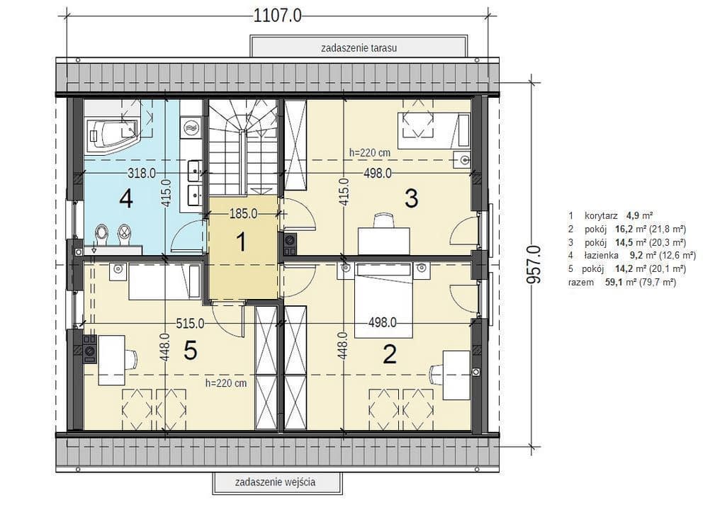
Sowa 16 bez garażu to prosty i wygodny dom utrzymany w ponadczasowej stylistyce, przeznaczony dla 4-5 osobowej rodziny. Kompaktowa bryła oparta na rzucie zbliżonym do kwadratu, pozwoliła na czytelny podział funkcjonalny wnętrza domu. Na przestronną strefę dzienną składają się przede wszystkim pokój dzienny z jadalnią oraz przyległa do nich kuchnia wraz z funkcjonalną spiżarnią. Na parterze zaprojektowano również dodatkowy pokój z widokiem na stronę ogrodową. Poddasze w całości stanowi część prywatną domu z trzema ustawnymi pokojami oraz dużą łazienką. Zaprojektowano optymalną wysokość ścianki kolankowej, co umożliwia uzyskanie komfortowej powierzchni mieszkalnej na poddaszu i zachowanie idealnych proporcji bryły obiektu. Stonowana kolorystyka elewacji przełamana kamienną okładziną pozwoli na wpisanie się Sowy 16 bez garażu w niemal każde otoczenie.
Konstrukcja
Posadowienie bezpośrednie na zbrojonych ławach i stopach fundamentowych wykonanych z betonu B 20. Ściany fundamentowe: murowane z bloczków betonowych M6. Ściany zewnętrzne: bloczki gazobetonowe gr. 25cm na zaprawie systemowej, ciepłochronnej, ocieplony styropianem fasadowym gr. 15cm. Do ocieplenia budynku zaprojektowano użycie styropianu grafitowego gr. 15 cm, o współczynniku „lambda” nie przekraczającym 0,035 W(mK) i „oporze cieplnym” nie mniejszym niż Rd – 4,0 m2k/W. Zastosowanie materiałów budowlanych (ocieplenie ścian, dachu, podłogi na gruncie, okien i drzwi zewnętrznych) użytych w projekcie odpowiada nowym wymaganiom obowiązującym od stycznia 2021 roku (WT2021). Ściany nośne wewnętrzne: bloczki gazobetonowe gr. 25cm na zaprawie cementowo-wapiennej lub systemowej. Ściany wewnętrzne działowe: bloczki gazobetonowe gr. 12cm. Strop gęstożebrowy z wypełnieniem pustakami betonowymi, zalewany wraz z wieńcami betonem B 20. Konstrukcja dachu: drewniana, drewno klasy C24, więźba dachowa krokwiowo-jętkowa. Budynek, w wersji podstawowej, jest zaprojektowany z pomieszczeniem kotłowni wyposażonej w kocioł ekologiczny na paliwo stałe „pellet” i spełnia wszystkie wymagania dotyczące WT2021. Na etapie adaptacji projektu jest możliwość zaprojektowania ogrzewania gazowego ze wspomaganiem instalacją solarną lub ogrzewania nowoczesną pompa ciepła typu powietrze – woda. Projekt pod względem konstrukcyjnym spełnia normy zgodne z Eurokodami.
Rzuty
Dane techniczne
- Powierzchnia użytkowa136.3 m²
- Powierzchnia zabudowy105.95 m²
- Liczba pokoi4
- Powierzchnia dachu155.2 m²
- Kubatura368.6 m³
- Wysokość domu8.45 m
- Minimalne wymiary działki19.07 x 17.57m
- GarażBez garażu
- Rodzaj dachuDwuspadowy
Instalacja grzewcza
- Instalacja opcjonalna
Zawartość projektu
* ważne informacje
Każda wersja standardowa projektu została zaprojektowana pod ogrzewanie za pomocą kotła na Pellet.
W przypadku zmiany wersji ogrzewania np:
- gaz + solar to dodatkowo 350 zł do ceny projektu,
- pompa ciepła powietrze-woda + ogrzewanie podłogowe to dodatkowo 350 zł do ceny projektu.
Polecane projekty
Dodatki
Bezpłatne dodatki
GratisZestaw umów
GratisZmiany w projekcie
GratisTablica budowy
GratisDziennik budowy














