Projekt domu Spiralis I G1
- Typ projektuWolnostojący
- StylTradycyjny
- Powierzchnia użytkowa129.65 m²
- KondygnacjeParterowy, z poddaszem
- GarażJednostanowiskowy
- DachDwuspadowy
- Kąt nach. dachu42°
- Odbicie lustrzaneTak
- Czas realizacji5 dni roboczych Zobacz więcej >
Opis
Zgodność z WT 2021 i Eurokodami
Ze względu na dostosowywanie projektu do standardu WT 2021, czas realizacji może się różnić od standardowego.
Skontaktuj się z nami aby poznać szczegóły dotyczące wybranego projektu.
Opis projektu
Dom jednorodzinny, wolnostojący, niepodpiwniczony z poddaszem użytkowym i garażem. Salon z kuchnią, jadalnią i wyjściem na taras, sześć pokojów, dwie łazienki, WC, garaż, pomieszczenie gospodarcze.
Konstrukcja
Ściany zewnętrzne: pustak ceramiczny firmy LEIER o gr. 25cm + styropian Termo Organika o gr. 20cm + tynk.
Schody: parter - poddasze, żelbetowe, zabiegowe; zewnętrzne, spiralne stalowe;
Strop: płyta żelbetowa.
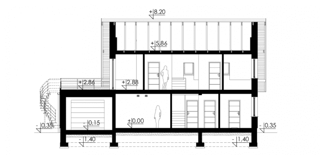
Ściana kolankowa: wysokość 75,5cm;
Dach: dwuspadowy, konstrukcja drewniana, pokryty dachówką ceramiczną.
Źródło ciepła: kocioł gazowy, kominek z płaszczem wodnym na biomasę i zestaw solarny (c.w.u.).
Pomieszczenie gospodarcze spełnia wymagania kotłowni na paliwo stałe,
w związku z czym na etapie adaptacji istnieje możliwość zmiany sposobu ogrzewania.
Wentylacja: grawitacyjna.
Stolarka okienna i drzwiowa: okna i drzwi PVC, rolety zewnętrzne, brama garażowa segmentowa.
Rzuty
Parter
- 01 Wiatrolap5.33
- 02 Komunikacja6.55
- 03 WC0.56
- 04 Pokoj12.35
- 05 Lazienka3.08
- 06 Sypialnia13.57
- 07 Salon z jadalnia i kuchnia30.16
- 08 Garaz20.42
- 09 Pom. gosp.6.70
Poddasze
Przekrój
Usytuowanie na działce
Dane techniczne
- Powierzchnia użytkowa129.65 m²
- Powierzchnia zabudowy135.22 m²
- Liczba pokoi6
- Kubatura783.18 m³
- Długość domu9.65 m
- Szerokość domu14.9 m
- Wysokość domu8.53 m
- PoddaszeUżytkowe
- Minimalne wymiary działki17.65 x 22.9m
- GarażJednostanowiskowy
- Rodzaj dachuDwuspadowy
- Kąt nach. dachu42°
Instalacja grzewcza
- Instalacja opcjonalna
Zawartość projektu
GOTOWY PROJEKT BUDYNKU ZAWIERA 3 (TRZY) EGZEMPLARZE DOKUMENTACJI PROJEKTOWEJ, W SKŁAD KTÓREJ WCHODZI:
- projekt architektoniczno-budowlany branży architektonicznej wraz z oświadczeniem projektanta, kserokopią uprawnień budowlanych i zaświadczeniem o przynależności projektantów do Izby Architektów, szablonem informacji dotyczącej bezpieczeństwa i ochrony zdrowia i analizą ekonomiczną i ekologiczną przyjętych rozwiązań projektowych.
- projekt techniczny w skład, którego wchodzi: projekt techniczny architektury, projekt techniczny konstrukcji, projekt techniczny instalacji sanitarnych (wodnej, kanalizacyjnej, centralnego ogrzewania, a w niektórych gotowych projektach budynków również gazowej i/lub wentylacji mechanicznej, jeśli wymienione wcześniej instalacje wymagane są ze względu na funkcję obiektu), projekt techniczny instalacji elektrycznej, oświadczenia projektantów, kserokopie uprawnień budowlanych i zaświadczeń o przynależności projektantów do Izby Architektów lub Izby Inżynierów Budownictwa, i charakterystyka energetyczna budynku.
Każdy z powyżej wyszczególnionych projektów składa się z części opisowej oraz z części rysunkowej.
PROJEKT ARCHITEKTONICZNO-BUDOWLANY
Część opisowa do projektu architektoniczno-budowlanego zawiera i określa:
- Rodzaj i kategorię obiektu budowlanego,
- Zamierzony sposób użytkowania i program użytkowy obiektu budowlanego,
- Układ przestrzenny i formę architektoniczną,
- Charakterystyczne parametry obiektu budowlanego,
- Opinię geotechniczną i sposób posadowienia obiektu budowlanego,
- Liczbę lokali mieszkalnych i użytkowych,
- Warunki do korzystania z obiektu przez osoby ze szczególnymi potrzebami,
- Parametry techniczne obiektu budowlanego charakteryzujące wpływ obiektu budowlanego na środowisko i jego wykorzystywanie oraz na zdrowie ludzi i obiekty sąsiednie,
- Analizę technicznych i ekonomicznych możliwości wykorzystania urządzeń, które automatycznie regulują temperaturę,
- Informację o zasadniczych elementach wyposażenia budowlano-instalacyjnego,
- Warunki ochrony przeciwpożarowej,
- Analizę technicznych i ekonomicznych, środowiskowych i ekonomicznych możliwości realizacji wysoce wydajnych systemów alternatywnych zaopatrzenia w energię i ciepło
- W stosunku do projektu usługowego określa również wymagania sanitarne i BHP.
Część rysunkowa do projektu architektoniczno-budowlanego zawiera:
- elewacje wyjaśniające formę architektoniczną obiektu budowlanego oraz jego wygląd zewnętrzny ze wszystkich widocznych stron, z określeniem graficznym lub opisowym na rysunku wyrobów wykończeniowych i kolorystyki elewacji,
- rzuty wszystkich charakterystycznych poziomów obiektu budowlanego, w tym widok dachu lub przekrycia, przedstawiające również układ funkcjonalno-przestrzenny obiektu budowlanego,
- przekroje, rozwinięcia lub profile przeprowadzone w charakterystycznych miejscach obiektu budowlanego.
PROJEKT TECHNICZNY
Część opisowa do projektu technicznego architektury określa:
- Rodzaj i kategorię obiektu budowlanego,
- Zamierzony sposób użytkowania i program użytkowy obiektu budowlanego,
- Układ przestrzenny i formę architektoniczną,
- Charakterystyczne parametry obiektu budowlanego,
- Rozwiązania konstrukcyjno-materiałowe,
- W stosunku do projektu usługowego określa również Podstawowe parametry technologiczne oraz współzależności urządzeń i wyposażenia związanego z przeznaczeniem obiektu i jego rozwiązaniami budowlanymi.
Część opisowa do projektu technicznego konstrukcji określa:
- układ konstrukcyjny obiektu budowlanego, zastosowane schematy statyczne, założenia przyjęte do obliczeń konstrukcji, w tym dotyczące obciążeń oraz podstawowe wyniki tych obliczeń, rozwiązania konstrukcyjno-materiałowe podstawowych elementów konstrukcji obiektu, kategorię geotechniczną obiektu budowlanego, warunki i sposób jego posadowienia, rozwiązania konstrukcyjno-materiałowe wewnętrznych i zewnętrznych przegród budowlanych,
Część opisowa do projektu technicznego instalacji sanitarnych określa:
- rozwiązania zasadniczych elementów wyposażenia budowlano-instalacyjnego, zapewniając użytkowanie obiektu budowlanego zgodnie z przeznaczeniem, w szczególności instalacji i urządzeń budowlanych: wodociągowych i kanalizacyjnych, ogrzewczych, a w niektórych gotowych projektach budynków również gazowej i/lub wentylacji mechanicznej, jeśli wymienione wcześniej instalacje wymagane są ze względu na funkcję obiektu, a także sposób powiązania instalacji obiektu budowlanego z sieciami zewnętrznymi wraz z punktami pomiarowymi, założenia przyjęte do obliczeń instalacji oraz podstawowe wyniki tych obliczeń.
Część opisowa do projektu technicznego instalacji elektrycznych określa: - rozwiązania zasadniczych elementów wyposażenia budowlano-instalacyjnego, zapewniając użytkowanie obiektu budowlanego zgodnie z przeznaczeniem, w szczególności instalacji i urządzeń budowlanych: elektrycznych i piorunochronnych, a także sposób powiązania instalacji obiektu budowlanego z sieciami zewnętrznymi wraz z punktami pomiarowymi, założenia przyjęte do obliczeń instalacji oraz podstawowe wyniki tych obliczeń.
Część rysunkowa do projektu technicznego zawiera:
- elewacje wyjaśniające formę architektoniczną obiektu budowlanego oraz jego wygląd zewnętrzny ze wszystkich widocznych stron, z określeniem graficznym lub opisowym na rysunku wyrobów wykończeniowych i kolorystyki elewacji,
- rzuty wszystkich charakterystycznych poziomów obiektu budowlanego, w tym widok dachu lub przekrycia, przedstawiające również układ funkcjonalno-przestrzenny obiektu budowlanego,
- przekroje, rozwinięcia lub profile przeprowadzone w charakterystycznych miejscach obiektu budowlanego,
- rozwiązania budowlano-konstrukcyjne obiektu budowlanego i jego powiązania z podłożem,
- położenie sytuacyjno-wysokościowe,
- skrajne parametry instalacji i urządzeń, związanych lub mających wpływ na konstrukcję obiektu budowlanego,
- funkcjonowanie instalacji i urządzeń oraz bezpieczeństwo ich użytkowania,
- zasadnicze elementy wyposażenia technicznego, ogólnobudowlanego, umożliwiającego użytkowanie obiektu budowlanego zgodnie z jego przeznaczeniem, w tym instalacje wodociągowe, kanalizacyjne, ogrzewcze i gazowe, instalacje i urządzenia budowlane elektryczne i instalację piorunochronną.
ZMIANY MOŻESZ WYKONAĆ W KAŻDYM NASZYM PROJEKCIE!
Dla uproszczenia procedury związanej z prawami autorskimi, na życzenie wysyłamy bezpłatną zgodę na wprowadzenie zmian w naszym projekcie.
*ważne informacje z dnia: 28.02.2024r.
Kosztorys do projektu: EFFICAX I, LAESUS I, LAESUS II, LAESUS III, OPPIDANUS I P, RENOVATIUS I - 1500 zł.
Kosztorys do projektu: PAULUS I, VEHICULUM I G2, VEHICULUM II G1, VEHICULUM III G2, VEHICULUM IV G2,
VEHICULUM V G2, VEHICULUM VII G2 - 800 zł.
Dodatki
Bezpłatne dodatki
GratisZestaw umów
GratisZmiany w projekcie
GratisTablica budowy
GratisDziennik budowy
Płatne dodatki

Kosztorys
1 100 zł

Dodatkowy egzemplarz projektu
600 zł

Wersja elektroniczna projektu - format pdf.
700 zł














