X

Korzystając z portalu wbudowie.pl bez zmiany ustawień przeglądarki, zgadzasz się na użycie plików cookies i podobnych technologii w celach: świadczenia usług, analiz, statystyk, reklamy. Przeglądając serwis bez zmiany ustawień wyrażasz zgodę na użycie plików cookies. Więcej w Polityce Prywatności i Cookies. Pamiętaj, że zawsze możesz zmienić te ustawienia.

wbudowie.pl

SZCZEGÓLNY D78

5 449 zł

Projekt domu SZCZEGÓLNY D78

Autor projektu:EG-domy
Gratis do projektów: zestaw umów, zgoda na zmiany w projekcie. Darmowa dostawa za 0 zł.
5 999 zł5 449 zł
Oszczędź: 550,00zł
Najniższa cena z 30 dni: 5 449,00 zł

Promocja ważna do

23-02-2026

Zadaj pytanie
  • Typ projektuWolnostojący
  • StylNowoczesny
  • Powierzchnia użytkowa130 m²
  • KondygnacjeParterowy
  • GarażDwustanowiskowy
  • DachWielospadowy
  • Odbicie lustrzaneTak
  • Czas realizacjimax. czas realizacji 15 dni
  • Zobacz więcej >

Zadzwoń do konsultanta

Godziny pracy: Pon. - Pt.8:00 - 16:00

Opis

Zgodność z WT 2021 i Eurokodami

Ze względu na dostosowywanie projektu do standardu WT 2021, czas realizacji może się różnić od standardowego.

Skontaktuj się z nami aby poznać szczegóły dotyczące wybranego projektu.

Opis projektu

SZCZEGÓLNY D78 to parterowy dom z dachem wielospadowym. W tym projekcie elegancja została połączona z funkcjonalnością.

Dla komfortu mieszkańców dom podzielono na trzy strefy.

Strefa dzienna to wygodny salon z jadalnią, kominkiem i wyjściem na zadaszony taras oraz kuchnia z narożnym oknem i wyspą na środku, spiżarnia. Tej strefie dedykowana jest łazienka z prysznicem.

Do strefy nocnej prowadzi korytarz, w którym zaprojektowano schody do ewentualnej adaptacji poddasza na cele użytkowe. W tej strefie znajdują się 3 pokoje/sypialnie oraz łazienka z wanną i prysznicem. Od strony ogrodu znajduje się sypialnia gospodarzy z prywatną garderobą i jeszcze jeden pokój. Drugi pokój usytuowano na wprost wejścia z korytarza.

Strefa techniczna to dwustanowiskowy garaż z wejściem z wiatrołapu oraz pomieszczenie techniczne.

Dom charakteryzuje się zwartą bryłą w kolorach szarości i bieli przełamanymi wstawkami z okładziny z drewna.


Konstrukcja

Technologia:

Fundamenty - ławy fundamentowe żelbetowe monolityczne
Ściany fundamentowe - bloczki betonowe
Ściany konstrukcyjne - pustaki gazobetonowe o grubości 24 cm
Ściany działowe - pustaki gazobetonowe o grubości 12 cm
Stropy - żelbetowe monolityczne
Dach - wielospadowy pokryty dachówką ceramiczną

Rzuty

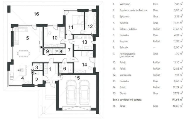
Rzut parteru

Rzut projektu SZCZEGÓLNY D78 - Rzut parteru

Rzut poddasza

  • Poddasze nieużytkowe104.50
Rzut projektu SZCZEGÓLNY D78 - Rzut poddasza

Usytuowanie na działce

Rzut projektu SZCZEGÓLNY D78 - Usytuowanie na działce

Dane techniczne

  • Powierzchnia użytkowa130 m²
  • Powierzchnia netto171.68 m²
  • Powierzchnia zabudowy270.22 m²
  • Liczba łazienek2
  • Liczba pokoi3
  • Kubatura444.78 m³
  • Wysokość domu8.23 m
  • Minimalne wymiary działki26.64 x 23.24m
  • GarażDwustanowiskowy
  • Rodzaj dachuWielospadowy

Instalacja grzewcza

  • Instalacja opcjonalna

Zawartość projektu

Gotowy projekt domu, który Ci dostarczamy, składa się z kilku działów, są to:

Projekt architektoniczno-budowlany (3 egzemplarze) w wersji papierowej

  • Opis architektoniczny z elementami konstrukcji.
  • Część rysunkowa (rzuty parteru, poddasza, piętra i dachu, przekroje i elewacje budynku).

Projekt techniczny (3 egzemplarze) w wersji papierowej

  • Opisy branżowe (konstrukcja, branża sanitarna i elektryczna).
  • Część rysunkowa – konstrukcja (rzuty fundamentów, stropu, więźby, dachu oraz przekroje, szczegóły konstrukcji i ewentualne szczegóły budowlane).
  • Część rysunkowa do projektów instalacji (schematy: instalacji elektrycznych, instalacji wodno-kanalizacyjnej i ciepłej wody, instalacji grzewczych, ew. instalacji gazowej).

Materiały dodatkowe dodawane do projektu w wersji papierowej

  • Bezpłatna zgoda na zmiany, która jest potrzebna dla architekta adaptującego aby mógł dokonać modyfikacji w projekcie.
  • Charakterystyka energetyczna (dla projektów domów).
  • Kopie uprawnień architektów i branżystów.

Płatne Dodatki do projektów sprzedawane w formie elektronicznej na płycie (z wyjątkiem dodatkowego egzemplarza projektu) i bez prawa zwrotu.

Wykaz dokumentów zawartych w projekcie sauny

Projekt techniczny

  • Opisy techniczny wszystkich części składowych sauny
  • Część rysunkowa – konstrukcja (rzut sauny, rzut fundamentów, rzut podłogi, rzut dachu, przekroje, elewacje zewnętrzne, elewacja pomieszczenia sauny, szkielety – elewacji południowej, wschodniej, północnej, zachodniej, detale konstrukcyjne, zestawienie stolarki okienno-drzwiowej, zestawienie materiałów)
  • Część rysunkowa do projektów instalacji (schematy: instalacji elektrycznej i wodno-kanalizacyjnej)

Projekty saun sprzedawane w formie elektronicznej (w formacie PDF) na płycie (z wyjątkiem dodatkowego egzemplarza projektu) i bez prawa zwrotu.

Płatne Dodatki do projektów sauny sprzedawane są w formie elektronicznej na płycie czyli kosztorys inwestorski (z wyjątkiem dodatkowego egzemplarza projektu) i bez prawa zwrotu.

 

Standardowy zakres zmian

Aby dopasować projekt do swoich potrzeb, otrzymasz bezpłatne pozwolenie na zmiany. Standardowo obejmuje ono m.in. przesunięcie drzwi, okien, zmianę funkcji pomieszczeń czy rodzaju ogrzewania. Jeśli taka zgoda to za mało, skontaktuj się z nami.

Dodatki

Bezpłatne dodatki

Gratis

Zestaw umów

Gratis

Zmiany w projekcie

Gratis

Tablica budowy

Gratis

Dziennik budowy

Płatne dodatki

Pakiet ogrzewanie podłogowe

620 zł

Pakiet powietrznej / gruntowej pompy ciepła

590 zł

Projekt wentylacji mechanicznej

860 zł

Dodatkowy egzemplarz

590 zł

Wersja elektroniczna projektu

590 zł

Kosztorys

620 zł

Zapisz sie na newsletter i otrzymuj informacje o nowościach i promocjach.