- Typ projektuWolnostojący
- Powierzchnia użytkowa162.08 m²
- KondygnacjePiętrowy
- GarażDwustanowiskowy
- DachWielospadowy
- Kąt nach. dachu25°
- Odbicie lustrzaneNie
- Czas realizacjimax. czas realizacji 10 dni Zobacz więcej >
Opis
Zgodność z WT 2021 i Eurokodami
Ze względu na dostosowywanie projektu do standardu WT 2021, czas realizacji może się różnić od standardowego.
Skontaktuj się z nami aby poznać szczegóły dotyczące wybranego projektu.
Opis projektu
Wariant projektu ze stropami żelbetowym nad parterem i piętrami.
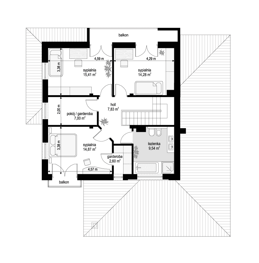
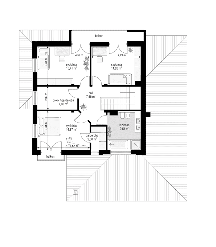
Projekt domu Szmaragd 5 Prezentujemy kolejną wersję wariantową domu z serii Szmaragd. Tym razem jest to Szmaragd 5. Projekt domu jednorodzinnego piętrowego, z garażem częściowo wbudowanym w bryłę. Projekt domu Szmaragd 5 przeznaczony dla 4-5cioosobowej rodziny. Dom ma nowoczesną, ale nie agresywną architekturę. Bryła budynku jest zwarta, przykryta kopertowym dachem. Dzięki temu dom będzie łatwy i niedrogi zarówno w budowie, jak i późniejszym utrzymaniu. Parter domu to otwarta część dzienna, z salonem, holem, jadalnią i otwartą kuchnią. Razem pomieszczenia tworzą dużą wspólną przestrzeń. Dodatkowo na parterze przewidziano pokój - gabinet lub sypialnię gościnną, łazienkę, oraz duży garaż i kotłownię. Przy kuchni zmieściła się niewielka spiżarka. Na piętrze mamy trzy ładne sypialnie (sypialnia rodziców z garderobą), oraz bardzo ładną łazienkę. Jest też dodatkowe pomieszczenie, które może służyć jako pokój, albo domowe biuro, lub pralnię – garderobę. Nad piętrem mamy jeszcze sporej wielkości strych - magazyn domowych rupieci. Projekt domu Szmaragd 5 to komfortowy, wygodny dom. Ma w sobie wszystko czego można potrzebować od prawdziwego domu. Nowoczesny wygląd domu, kolorystyka i materiały tworzą spójną całość z przestronnym wnętrzem. Dom jest energooszczędny. Dobre ocieplenia i nowoczesne instalacje pozwalają go w łatwy sposób przystosować do standardu NF40. Projekt dostępny jest w odbiciu lustrzanym jak i w kilku innych wersjach : wersja bazowa (projekt domu Szmaragd), zbliźniaczona (projekt domu Szmaragd 2), wersja z dodatkowym pokojem na parterze (projekt domu Szmaragd 3), komfortowa ( projekt domu Szmaragd 4), oraz najnowszą (projekt domu Szmaragd 6). Zapraszamy !
Konstrukcja
- Fundamentybetonowe ławy i ściany fundamentowe z bloczków betonowych
- Ściany zewnętrzneściany murowane – pustaki porotherm 25 cm + styropian 22 cm
- Stroppłyta żelbetowa
- Elewacjetynk cienkowarstwowy
- Pokrycie dachudachówka
Rzuty
Dane techniczne
- Powierzchnia użytkowa162.08 m²
- Powierzchnia netto168.32 m²
- Powierzchnia zabudowy165.48 m²
- KominekTak
- Liczba łazienek2
- Liczba pokoi6
- Powierzchnia dachu240.7 m²
- Kubatura749 m³
- Długość domu14.39 m
- Szerokość domu13.64 m
- Wysokość domu9.1 m
- Minimalne wymiary działki22.39 x 21.64m
- GarażDwustanowiskowy
- Rodzaj dachuWielospadowy
- Kąt nach. dachu25°
Koszty budowy
- Stan surowy240603 zł
- Stan surowy zamknięty331192 zł
- Koszt wykończenia344977 zł
- Koszt instalacji101826 zł
Zawartość projektu
W komplecie nowej wersji dokumentacji projektowej znajdują się 3 egzemplarze projektu architektoniczno-budowlanego oraz 3 egzemplarze projektu technicznego
Projekt architektoniczno-budowlany zawierający:
-opis architektoniczny z elementami konstrukcji,
-część rysunkowa: rzut parteru, poddasza/piętra, rzut dachu w skali 1:100, przekroje skala 1:50,
elewacje skala 1:100.
Projekt techniczny zawierający:
-opis techniczny i konstrukcyjny (obliczenia statyczne - w zależności od projektu włączone w projekt lub stanowiące odrębną teczkę).
Część rysunkowa architektura i konstrukcja:
-rzuty fundamentów, parteru, poddasza, stropu, więźby, dachu / w skali 1:50,
-przekroje przez budynek / budynek skali 1:50,
-elewacje budynku / w skali 1:50 (*niektóre projekty posiadają rysunki w skali 1:100 lub 1:75),
-zestawienie stolarki budowlanej okiennej i drzwiowej,
-szczegóły konstrukcji i ewentualne szczegóły budowlane,
Część instalacyjna:
-część opisowa do projektów instalacji elektrycznych, wodno-kanalizacyjnych, grzewczych, gazowych (jeśli występują).
Część rysunkowa do projektów instalacji:
-schematy instalacji elektrycznych, schemat rozdzielni, plan instalacji odgromowej,
-schematy instalacji wodno-kanalizacyjnej i ciepłej wody,
-schematy instalacji grzewczych,
-schemat instalacji gazowej (jeśli występują).
Do projektu dołączane jest zestawienie materiałowe, z wykazem elementów drewnianych oraz stali budowlanej.
Do projektu dołączone są kopie uprawnień wszystkich projektantów, oraz aktualne zaświadczenia o przynależności do izb zawodowych.
Projekt zawiera oświadczenie projektantów o poprawności projektu w świetle Prawa Budowlanego, a także zawiera informację dotyczącą bezpieczeństwa i ochrony zdrowia ( BIOZ).
Do projektu dołączona jest także zgoda na zmiany adaptacyjne. Zgoda dołączana jest do każdego projektu bezpłatnie. Na Państwa życzenie zakres zgody na zmiany możemy dowolnie rozszerzyć.
Pracownia zezwala na następujące zmiany i odstępstwa od projektu architektoniczno-budowlanego w trakcie jego przystosowywania do lokalizacji:
- Zmianę obrysu zewnętrznego ścian zewnętrznych.
- Zmianę obrysu wewnętrznego ścian zewnętrznych.
- Zmianę układu ścian wewnętrznych działowych.
- Zmianę funkcji, ilości i usytuowania poszczególnych pomieszczeń na dowolnej kondygnacji w projekcie.
- Zmianę ukształtowania, ilości i kąta nachylenia połaci dachowych.
- Zmianę ilości, umiejscowienia i wielkości otworów okiennych i drzwiowych.
- Zmianę rodzaju materiału i technologii wykonania ścian zewnętrznych oraz wewnętrznych oraz ścian fundamentowych.
- Zmianę rodzaju i technologii wykonania stropów nad dowolną kondygnacją.
- Zmianę umiejscowienia, kształtu i materiału wykonania schodów w budynku.
- Zmianę wielkości, kształtu i materiałów, bądź likwidacja: tarasów, podestów i balkonów.
- Likwidację lub dodanie dowolnej ilości:
- lukarn,
- wykuszy,
- podcieni,
- balkonów,
- loggii,
- kolumn,
- pilastrów,
- ganków,
- werand.
- Zmianę materiałów wykończeniowych, instalacyjnych, izolacyjnych.
- Zmianę rodzaju pokrycia dachowego.
- Doprojektowanie bądź likwidacja podpiwniczenia - częściowego lub całkowitego.
Dodatki
Bezpłatne dodatki
GratisZestaw umów
GratisZmiany w projekcie
PromocjaProjekt szamba szczelnego
GratisTablica budowy
GratisDziennik budowy
Płatne dodatki

Pakiet wentylacja mechaniczna i kominek DGP
550 zł

Kosztorys inwestorski
600 zł

Pakiet odkurzacz centralny
550 zł

Wersja elektroniczna projektu
600 zł

Pakiet instalacja solarna
550 zł

Pakiet ogrzewanie podłogowe
550 zł

Pakiet powietrzna pompa ciepła
550 zł

Pakiet płaszcz wodny
550 zł

Pakiet kotłownia na paliwo stałe
550 zł

Pakiet klimatyzacja w domu
550 zł

Projekt ogrodzenia
750 zł

Pakiet instalacja fotowoltaiczna
550 zł

Pakiet kominek z DGP
500 zł

Pakiet gruntowa pompa ciepła
550 zł

Projekt altan i grilów ogrodowych
850 zł

Dodatkowy egzemplarz do projektu
650 zł

































