Projekt domu Tetris z garażem
- Typ projektuWolnostojący
- Powierzchnia użytkowa123.1 m²
- KondygnacjeParterowy
- GarażJednostanowiskowy
- DachDwuspadowy
- Kąt nach. dachu40°
- Odbicie lustrzaneTak
- Czas realizacjido 10 dni roboczych Zobacz więcej >
Opis
Zgodność z WT 2021 i Eurokodami
Ze względu na dostosowywanie projektu do standardu WT 2021, czas realizacji może się różnić od standardowego.
Skontaktuj się z nami aby poznać szczegóły dotyczące wybranego projektu.
Opis projektu
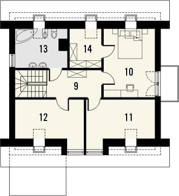
Tetris to średniej wielkości dom jednorodzinny z garażem jednostanowiskowym, wysuniętym nieco przed pozostałą część budynku. Ozdobą budynku jest lukarna z dużymi szkleniami, jak również strefa wejściowa, ładnie zaakcentowana okładziną z płytek. W elewacji bocznej pojawił się balkon. Domek obłożony jest tynkiem w kolorze białym, urozmaiceniem są fragmenty ścian w szarym kolorze. Parter, którego część zajmuje jednostanowiskowy garaż, zaprojektowano z myślą o przestronnej, ustawnej strefie dziennej. Z wiatrołapu przejść można do holu, a dalej – do salonu z jadalnią i otwartą kuchnią. Przewidziano również łazienkę, pomieszczenie gospodarcze oraz funkcjonalną spiżarkę. Na piętrze znalazły się trzy sypialnie, z których jedna posiada wydzieloną garderobę i balkon oraz komfortowa, duża łazienka.Rzuty
Parter
- 1. wiatrołap4.4
- 2. hall12.5
- 3. pokój dzienny z jadalnią29
- 4. kuchnia9.1
- 5. łazienka2.9
- 6. spiżarka1.7
- 7. pom. gospodarcze6.2
- 8. garaż17.9
Piętro
Rzut na działce
Dane techniczne
- Powierzchnia użytkowa123.1 m²
- Powierzchnia zabudowy108.4 m²
- Kubatura664 m³
- Wysokość domu8.41 m
- Minimalne wymiary działki20.3 x 18.2m
- GarażJednostanowiskowy
- Rodzaj dachuDwuspadowy
- Kąt nach. dachu40°
Zawartość projektu
Dokumentacja projektowa dostarczana jest Państwu w trzech identycznych egzemplarzach projektu architektoniczno-budowlanego służących do uzyskania pozwolenia na budowę jednego domu wraz z jednym, dwutomowym egzemplarzem projektu technicznego, który nie jest załączany do wniosku o pozwolenie na budowę i nie podlega urzędowemu zatwierdzeniu. Wszystkie projekty domów są zgodne z warunkami technicznymi WT 2021.
W projekcie architektoniczno-budowlanym opisane zostały podstawowe dane budynku, takie jak: zestawienie powierzchni pomieszczeń, warstwy budowlane, materiały wykończeniowe, dane dotyczące warunków ochrony przeciwpożarowej. Rysunki przedstawiają elewacje, rzuty fundamentów i wszystkich kondygnacji, rzut dachu oraz przekrój. Wykonane są w skali 1:100 za wyjątkiem przekrojów pokazanych w większej skali - 1:50.
Pierwszy tom projektu technicznego zawiera opis branż konstrukcyjnej, instalacji sanitarnych oraz wewnętrznych instalacji elektrycznych, a także charakterystykę energetyczną oraz analizę środowiskowo-ekonomiczną. Na rysunkach konstrukcyjnych pokazane są fundamenty wraz z przekrojami szczegółowymi oraz rzut konstrukcji i stropu, na którym zlokalizowane są wszystkie elementy z podaniem sposobu ich zbrojenia, więźba wraz z zestawieniem drewna oraz zestawienie stolarki otworowej. Projekt instalacji elektrycznych obejmuje rozdzielnicę budynku i lokalizację wszystkich gniazd wtykowych, źródeł światła i wyłączników, fotowoltaikę oraz schematy instalacji odgromowej. W części instalacji sanitarnych zawarte są rzuty kondygnacji z poszczególnymi instalacjami (w zakresie wewnętrznej instalacji wod.-kan, c.o., gazu i wentylacji mechanicznej z rekuperacją) oraz rozwinięcia. Drugi tom projektu technicznego stanowią obliczenia konstrukcyjne.
Darmowy zielony pakiet do projektu oznacza, że w tej samej cenie można otrzymać wariant z ogrzewaniem przy zastosowaniu ekologicznej pompy ciepła powietrze-woda i podłogówką we wszystkich pomieszczeniach, zamiast standardowego pieca gazowego zasilającego stalowe grzejniki płytowe.
Prosimy podczas składania zamówienia poinformować nas o wybranej opcji centralnego ogrzewania, która ma znaleźć się w dokumentacji.
Bezpłatna zgoda na zmiany na etapie adaptacji: do każdego z projektów wydajemy całkowicie bezpłatną zgodę na wprowadzenie praktycznie dowolnych zmian dopasowujących domek do indywidualnych wymagań inwestora. Radzimy jednak bezwzględnie wprowadzić je jeszcze przed uzyskaniem pozwolenia na budowę i przy udziale adaptujących też inne branże, nie tylko architekturę. Szczególne polecany jest udział konstruktora, jeżeli zmieniane są poszczególne elementy konstrukcyjne lub wręcz cały schemat konstrukcji. Prosimy nie zapomnieć o podaniu planowanych zmian podczas składania zamówienia na projekt, ale można też o zgodę wystąpić w dowolnym terminie już po jego zakupie.
Dodatki
Bezpłatne dodatki
GratisZestaw umów
GratisZmiany w projekcie
GratisZielony pakiet z pompą ciepła
GratisTablica budowy
GratisDziennik budowy
Płatne dodatki

Kosztorys stanu deweloperskiego
950 zł












