Projekt domu TOSKANIA (zabudowa szeregowa)
- Typ projektuBliźniak
- Powierzchnia użytkowa114.63 m²
- KondygnacjeParterowy, z poddaszem
- GarażJednostanowiskowy
- DachDwuspadowy
- Kąt nach. dachu43°
- Odbicie lustrzaneTak
- Czas realizacjido 10 dni roboczych Zobacz więcej >
Opis
Konstrukcja
- powierzchnia zabudowy - 114,13m2
- powierzchnia schodów zewnętrznych -17,57m2
- powierzchnia całkowita - 193,47m2
- kubatura - 720m3
- ściany zewnętrzne murowane grubości 30 cm + 10 cm styropian
- ściany wewnętrzne (nośne) gr. 25 cm i działowe gr. 12 cm
- wszystkie ściany wykonane z pustaków ceramicznych "POROTHERM"
- strop gęstożebrowy "POROTHERM" o gr. 27 cm
- konstrukcja więźby dachowej drewniana w układzie krokwiowo-jętkowym
- pokrycie dachówka ceramiczna
- projekt posiada kominek
- instalacja grzewcza: kocioł kondensacyjny w kotłowni
Wysokość ściany kolankowej 1m
Rzuty
Parter
- 4. Jadalnia4.2
- 5. Pokój dzienny26.91
- 8 Garaż26.18
- 6. Kotłownia7.64
- 7. Łazienka3.43
- 9. Skład na drewno1.2
- 1. Wiatrołap2.91
- 2. Komunikacja10.29
- 3. Kuchnia6.44
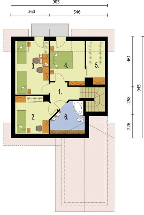
Poddasze
Dane techniczne
- Powierzchnia użytkowa114.63 m²
- Powierzchnia zabudowy114.13 m²
- Liczba pokoi14
- Powierzchnia dachu183 m²
- Kubatura735 m³
- Wysokość domu8.98 m
- PoddaszeUżytkowe
- Minimalne wymiary działki15.05 x 23.7m
- GarażJednostanowiskowy
- Rodzaj dachuDwuspadowy
- Kąt nach. dachu43°
Zawartość projektu
Projekty są dostępne w wersji książkowej, drukowanej w tak zwanym w nowym trybie 3 egzemplarze projektu architektoniczno-budowlanego oraz 3 egzemplarze projektu technicznego. Na życzenie przesyłamy rzuty i przekroje wersji podstawowych dokumentacji w formacie PDF
Każdy projekt architektoniczno-budowlany domu składa się z następujących części:
- strona tytułowa,
- oświadczenie
- część opisowa projektu architektoniczno-budowlanego,
- projektowana charakterystyka energetyczna z analizą,
- część rysunkowej projektu architektoniczno-budowlanego,
- zaświadczenia i uprawnienia.
Każdy projekt techniczny domu składa się z:
- strony tytułowej,
- oświadczenia,
- części opisowej projektu technicznego,
- części rysunkowej projektu technicznego,
- części konstrukcyjnej,
- zaświadczenia i uprawnień,
- zestawień drewna i stali,
-instalacji elektrycznej i odgromowej,
-instalacji sanitarnych, gazowych i centralnego ogrzewania.
Do projektu na życzenie dołączamy obliczenia statyczno-wytrzymałościowe.
Inwestor otrzymuje 3 opieczętowane sztuki projektu architektoniczno-budowlanego oraz 3 egzemplarze projektu technicznego tworzące komplet, każdy z plombą zabezpieczającą i oryginalnym hologramem biura.
Pierwszy egzemplarz tomu I zawiera zgodę in blanco na wszystkie zmiany wprowadzane do projektu po zakupie przez lokalnego wybranego na własną rękę przez Inwestora architekta adaptującego/kierownika budowy. Do teczki projektów dołączamy także zaświadczenia i aktualne wpisy do Izb autorów projektu oraz wpisy aktualne na czas sporządzenia projektu.
Dodatki
Bezpłatne dodatki
GratisZestaw umów
GratisZmiany w projekcie
GratisTablica budowy
GratisDziennik budowy
Płatne dodatki

Kosztorys
370 zł

Dodatkowy egzemplarz projektu
450 zł

Projekt wentylacji mechanicznej z rekuperatorem
450 zł

Projekt fotowoltaiki dla domu
750 zł

Projekt instalacji z ogrzewaniem podłogowym
400 zł








