- Typ projektuWolnostojący
- Powierzchnia użytkowa88.2 m²
- Kondygnacje
- GarażBez garażu
- DachDwuspadowy
- Kąt nach. dachu45°
- Odbicie lustrzaneTak
- Czas realizacjimax. czas realizacji 10 dni Zobacz więcej >
Opis
Zgodność z WT 2021 i Eurokodami
Ze względu na dostosowywanie projektu do standardu WT 2021, czas realizacji może się różnić od standardowego.
Skontaktuj się z nami aby poznać szczegóły dotyczące wybranego projektu.
Opis projektu
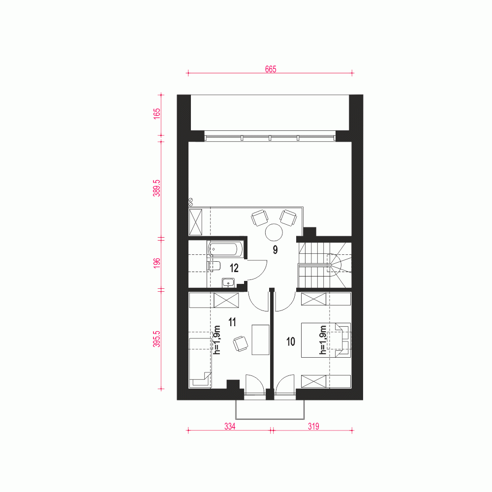
Projekt nowoczesnego domu, wpisujący się idealnie w trendy, oryginalny i nietuzinkowy. To właśnie Vikka, wyjątkowy dom w stylu skandynawskim, imponująca nowoczesna stodoła, idealny dla rodziny ceniącej sobie funkcjonalność i design. Duże przeszklenia gwarantują wspaniały widok na otaczającą dom przestrzeń i naturalne światło w pomieszczeniach. Vikka to projekt dla ludzi pragnących domu praktycznego i zarazem pięknego, lubiących oszczędność w formie, nowoczesny design, elegancję, połączenie naturalnych materiałów i kolorów. Dom tworzą parter i poddasze użytkowe, a także niewielki balkon i duży taras. Łączna powierzchnia to 87,5 metry kwadratowe, w tym 56,5 to parter, a 31,2 to pierwsze piętro. Na parterze znajduje się duży salon z kuchnią, pokój który może pełnić rolę gabinetu lub dodatkowej sypialni, łazienka, kotłownia oraz spiżarnia. Wchodząc na piętro widzimy antresolę z widokiem na salon i taras za jego oknami i dalej dwie sypialnie oraz łazienka. Tym, co wyróżnia projekt Vikka, jest z pewnością doskonale doświetlony, przeszkolony salon, pokój na parterze, dwie wygodne łazienki, nadające charakteru nowoczesnej bryle drewno na elewacji oraz antresola nad salonem. Vikka to projekt domu, który spełni oczekiwania rodziny 2+1 lub 2+2. Trzy zamknięte sypialnie, a także duży salon, w którym spędza się większość wolnego czasu spowoduje, że każdy będzie czuł się swobodnie. Podział na strefy dzienną na parterze i nocną na piętrze pozwala na zachowanie spokoju i balansu wtedy, gdy tego potrzebujemy. Imponujący taras okalający Vikkę stanowi przedłużenie salonu i sprawdzi się jako miejsce spotkań z przyjaciółmi lub odpoczynku.
Konstrukcja
fundamenty: betonowe
ściany zewnętrzne: porotherm+styropian termo organika
rodzaj stropu: żelbetowy
elewacje: tynk strukturalny
pokrycie dachu: blacha
Rzuty
Parter
- m²
- 1. Wiatrołap2.7
- 2. Kotłownia*4.8
- 3. Łazienka3.5
- 4. Pokój10.5
- 5. Hol7.8
- 6. Spiżarnia3.1
- 7. Salon z kuchnią23.8
- 8. Schody4
Piętro
Przekrój
Usytuowanie na działce
Dane techniczne
- Powierzchnia użytkowa88.2 m²
- Powierzchnia zabudowy81.7 m²
- KominekTak
- Liczba łazienek2
- Liczba pokoi4
- Powierzchnia dachu131 m²
- Kubatura347 m³
- Długość domu12.4 m
- Szerokość domu7.6 m
- Wysokość domu8.6 m
- Minimalne wymiary działki20.4 x 15.6m
- GarażBez garażu
- Rodzaj dachuDwuspadowy
- Kąt nach. dachu45°
Instalacja grzewcza
- Instalacja grzewczaGaz
- Instalacja opcjonalna
Zawartość projektu
Zgodnie ze znowelizowaną Ustawą Prawo Budowlane art.34 ust.3, na projekt budowlany składają się trzy części:
- projekt zagospodarowania działki lub terenu
- projekt architektoniczno-budowlany
- projekt techniczny
Nasze projekty oferujemy w 3 egzemplarzach, zawierających projekt architektoniczno-budowlany i projekt techniczny. Projekt zagospodarowania działki lub terenu nie wchodzi w skład projektu oferowanego do sprzedaży. Projekt ten należy zlecić we własnym zakresie lokalnemu projektantowi, który opracuje go na podstawie danych zawartych w projekcie architektoniczno-budowlanym i technicznym, po dostosowaniu projektu do warunków lokalnych i wymagań inwestora.
UWAGA: wszystkie egzemplarze projektu zabezpieczone są hologramami, w części rysunkowej posiadają nadruki zabezpieczające w kolorze zielonym. Zalecamy aby po otrzymaniu przesyłki kontrolować czy na pierwszych stronach projektu znajduje się hologram i czy na rysunkach widoczne są w/w nadruki potwierdzające oryginalność projektu.
Wyrażamy zgodę na wszelkie zmiany zgodne z obowiązującymi przepisami pod warunkiem wprowadzenia ich przez uprawnioną osobę.
Wszystkie zmiany wymienione powyżej powinny być naniesione na oryginał projektu katalogowego trwałą techniką graficzną w kolorze czerwonym lub dołączone jako aneks i podpisane przez osobę uprawnioną dokonująca adaptacji.
**ważne informacje
Projekt w fazie koncepcji dostępny z wydłużonym terminem realizacji. Przy zamówieniu ustalamy termin i pobieramy zadatek 50% podstawowej ceny projektu (jako koszty usługi przygotowania dokumentacji do standardu projektu gotowego, w przypadku rezygnacji z usługi, zadatek nie podlega zwrotowi).
Cena za dodatkowy egzemplarz projektu jest zależna od nazwy projektu!
Dodatki
Bezpłatne dodatki
GratisZestaw umów
GratisZmiany w projekcie
GratisTablica budowy
GratisDziennik budowy
Płatne dodatki

Kosztorys - stan wykończony
540 zł

Projekt wentylacji mechanicznej
1 000 zł








