Promocja ważna do
10-03-2026
- Typ projektuWolnostojący
- Powierzchnia użytkowa198.56 m²
- KondygnacjeParterowy, z poddaszem
- GarażBez garażu
- DachDwuspadowy
- Kąt nach. dachu40°
- Odbicie lustrzaneTak
- Czas realizacjido 7 dni roboczych Zobacz więcej >
Opis
Zgodność z WT 2021 i Eurokodami
Ze względu na dostosowywanie projektu do standardu WT 2021, czas realizacji może się różnić od standardowego.
Skontaktuj się z nami aby poznać szczegóły dotyczące wybranego projektu.
Opis projektu
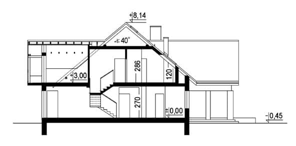
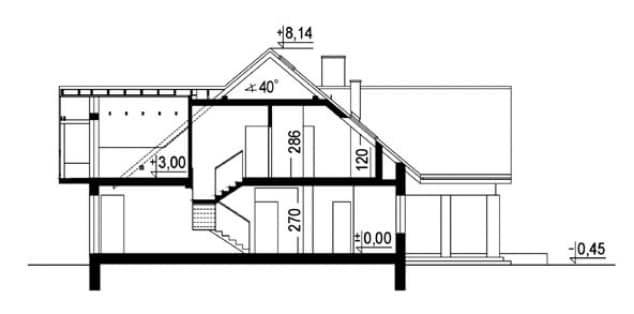
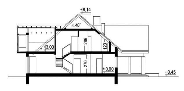
Budynek jednorodzinny, parterowy, z poddaszem mieszkalnym, niepodpiwniczonyKonstrukcja
Ściany zewnętrzne: gr. 36,5 cm z bloczków YTONG; strop: FERT; schody: żelbetowe; dach: dwuspadowy o nachyleniu 40 stopni, więźba drewniana, krycie dachówkąRzuty
Dane techniczne
- Powierzchnia użytkowa198.56 m²
- Powierzchnia zabudowy150.41 m²
- Liczba pokoi6
- Kubatura939.35 m³
- Wysokość domu8.5 m
- PoddaszeUżytkowe
- Minimalne wymiary działki18.6 x 18.6m
- GarażBez garażu
- Rodzaj dachuDwuspadowy
- Kąt nach. dachu40°
Zawartość projektu
Dokumentacja projektowa dostosowana do obecnych przepisów. Każdy z nich, to „gotowy projekt wykonany zgodnie z przepisami „Prawa budowlanego” oraz innymi obowiązującymi przepisami dotyczącymi tego typu opracowań. Dokumentacja obejmuje opracowania projektowe następujących branż:
- architektury
- konstrukcji
- instalacji elektrycznej
- instalacji odgromowej
- instalacji wodno-kanalizacyjnej
- instalacji centralnego ogrzewania
- instalacji gazowej, a w przypadku obiektów inwentarskich i niektórych gospodarczych również technologii.
Nie dokonując dodatkowych uzgodnień z naszym Autorem projektu, w ramach adaptacji można wprowadzić do projektu zmiany dotyczące:
- fundamentów, wynikające z dostosowania do nośności gruntu
- podpiwniczenia lub rezygnacji z niego
- programu użytkowego – np. korekta układu ścianek działowych i funkcji pomieszczeń oraz wewnętrznych otworów drzwiowych
- rodzaju stropu przy zachowaniu koncepcji układu konstrukcyjnego
- likwidacji okien w lukarnach i ich zamianie na okna połaciowe lub odwrotnie
- dobudowy garażu lub wiaty do elewacji bocznej budynku lub rezygnacji z nich
- materiałów budowlanych – również zastosowanie innej technologii realizacji pod warunkiem zachowania obowiązujących norm i przepisów (np. wytrzymałości, ciepłochronności itd.)
- instalacji wodnej, kanalizacyjnej, gazowej, centralnego ogrzewania i elektrycznej, pod warunkiem zachowania obowiązujących norm technicznych i przepisów „Prawa
- realizacji obiektu według jego lustrzanego odbicia.
Pozostałe zmiany wymagają akceptacji jednostki autorskiej i uzyskania odrębnej zgody naszego Biura. Zgody te są wydawane nieodpłatnie i indywidualnie – dla konkretnego inwestora i realizacji.
Dodatki
Bezpłatne dodatki
GratisZestaw umów
GratisZmiany w projekcie
GratisTablica budowy
GratisDziennik budowy






