- Typ projektuDwurodzinny
- StylNowoczesny
- Powierzchnia użytkowa315.17 m²
- KondygnacjePiętrowy
- GarażDwustanowiskowy
- DachCzterospadowy
- Kąt nach. dachu30°
- Odbicie lustrzaneNie
- Czas realizacjimax. czas realizacji 10 dni Zobacz więcej >
Opis
Zgodność z WT 2021 i Eurokodami
Ze względu na dostosowywanie projektu do standardu WT 2021, czas realizacji może się różnić od standardowego.
Skontaktuj się z nami aby poznać szczegóły dotyczące wybranego projektu.
Opis projektu
Wariant projektu z poszerzonym garażem, przesuniętym wejściem do domu, powiększoną kotłownią, zmienionym usytuowaniem komina, przesuniętym WC. Na piętrze zmiana układu pomieszczeń.
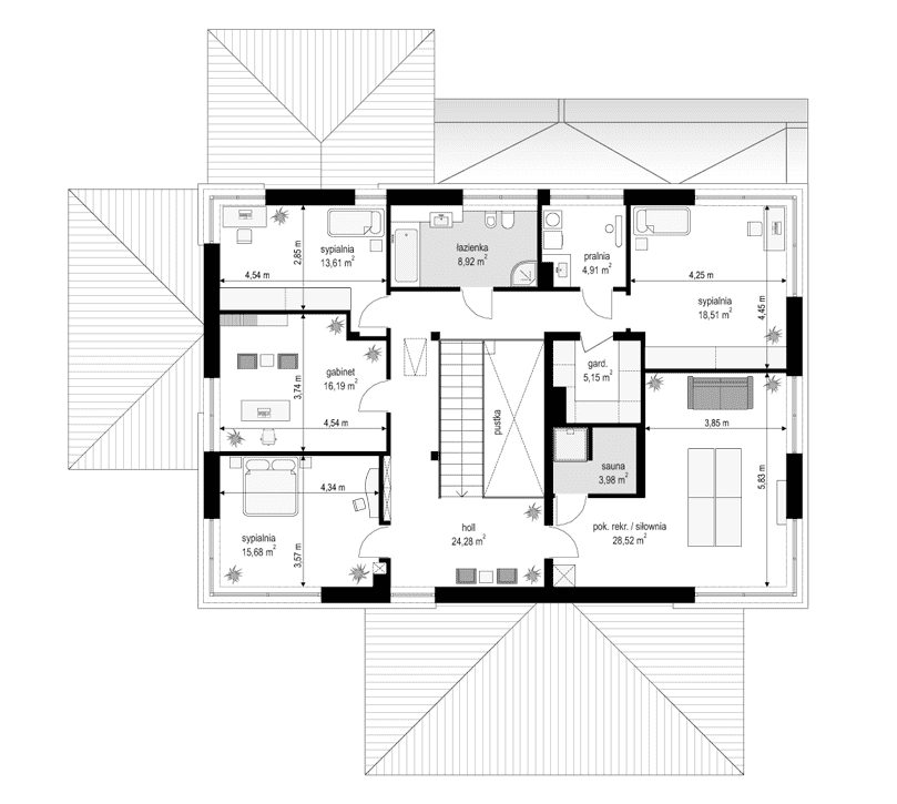
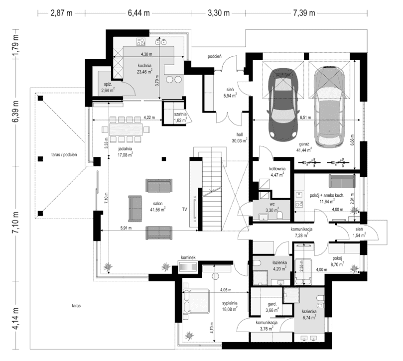
Projekt domu Willa komfortowa jest siostrzanym projektem naszego popularnego projektu „Willa z basenem”. Różni się jednak od swojego protoplasty przede wszystkim tym, że nie ma części basenowej. Projekt domu Willa komfortowa jest wygodną rezydencją dla dwu- lub trzypokoleniowej rodziny. Na piętrze mamy pięć sypialni, a na parterze mamy apartament rodziców, oraz dodatkowe osobne mieszkanko - dla seniorów, lub niani czy też gosposi mieszkającej w domu. Naprawdę wnętrze jest bardzo obszerne i można je na wiele sposobów zagospodarować. Dodatkowe mieszkanie może też być biurem, gabinetem czy przydomową firmą. Architektura domu : budynek jest piętrowy, jego główną bryłę przykrywa czterospadowy dach. Do głównej bryły domu dobudowane są parterowe dobudówki. Elewacje podzielone są na poziome pasy wykończone różnymi materiałami - kamieniem i tynkiem. Okna, przeważnie narożne podkreślają nowoczesny willowy styl. Całość tworzy bardzo atrakcyjną, reprezentacyjną rezydencję miejską. Prawdziwą siedzibę. Do domu wchodzimy przez szerokie drzwi wejściowe z naświetlami, obserwowani z narożnego okna w kuchni do przedsionka i dalej do holu. Hol z reprezentacyjnymi schodami łączy się tutaj z pięknym salonem połączonym z jadalnią. Z salonu przez narożne przeszklenia rozpościera się widok na otaczające tarasy i ogród. Kuchnia jest nieco oddzielona od reszty domu - może być zamknięta przesuwnymi chowanymi drzwiami. Z jadalni przechodzimy do pięknego ogrodowego zadaszonego tarasu. Z drugiej strony domu mamy część garażowo-gospodarczą z podwójnym garażem i kotłownią, dodatkowy lokal – mieszkanie, oraz apartament rodziców z łazienką i podwójną garderoba. Na piętrze przewidziano aż pięć pokoi, dwie łazienki i garderobę. Hol na piętrze jest połączony z holem na parterze pustką obok schodów. To dodaje wnętrzu sznytu i reprezentacyjnego wyglądu i poczucia dużej przestrzeni. Projekt domu Willa komfortowa do świetna propozycja dla Inwestorów, którzy potrzebują rozbudowanego programu użytkowego i wielu pomieszczeń i - co tu dużo mówić – dla szczęściarzy, którzy mogą sobie pozwolić na duży dom. Jeśli szukają Państwo domu o powierzchni powyżej 300 m2, to nasz projekt może być dobrym wyborem. Budynek ma w sumie dość prostą bryłę, nie ma bardzo skomplikowanej konstrukcji, jest dobrze ocieplony, ma nowoczesne instalacje. Będzie raczej nietrudny z budowie i dość niedrogi w późniejszej eksploatacji. Zapraszamy !
Konstrukcja
- Fundamentybetonowe ławy i ściany fundamentowe z bloczków betonowych
- Ściany zewnętrzneściany murowane – pustaki porotherm 25 + styropian
- Stropmonolityczny betonowy
- Elewacjetynk cienkowarstwowy
- Pokrycie dachudachówka
Rzuty
Dane techniczne
- Powierzchnia użytkowa315.17 m²
- Powierzchnia netto326.42 m²
- Powierzchnia zabudowy273.27 m²
- KominekTak
- Liczba łazienek4
- Liczba pokoi9
- Powierzchnia dachu377.88 m²
- Kubatura1462 m³
- Długość domu19.42 m
- Szerokość domu17.13 m
- Wysokość domu9.57 m
- Minimalne wymiary działki27.42 x 27m
- GarażDwustanowiskowy
- Rodzaj dachuCzterospadowy
- Kąt nach. dachu30°
Koszty budowy
- Stan surowy383107 zł
- Stan surowy zamknięty470989 zł
- Koszt wykończenia545650 zł
- Koszt instalacji152389 zł
Zawartość projektu
W komplecie nowej wersji dokumentacji projektowej znajdują się 3 egzemplarze projektu architektoniczno-budowlanego oraz 3 egzemplarze projektu technicznego
Projekt architektoniczno-budowlany zawierający:
-opis architektoniczny z elementami konstrukcji,
-część rysunkowa: rzut parteru, poddasza/piętra, rzut dachu w skali 1:100, przekroje skala 1:50,
elewacje skala 1:100.
Projekt techniczny zawierający:
-opis techniczny i konstrukcyjny (obliczenia statyczne - w zależności od projektu włączone w projekt lub stanowiące odrębną teczkę).
Część rysunkowa architektura i konstrukcja:
-rzuty fundamentów, parteru, poddasza, stropu, więźby, dachu / w skali 1:50,
-przekroje przez budynek / budynek skali 1:50,
-elewacje budynku / w skali 1:50 (*niektóre projekty posiadają rysunki w skali 1:100 lub 1:75),
-zestawienie stolarki budowlanej okiennej i drzwiowej,
-szczegóły konstrukcji i ewentualne szczegóły budowlane,
Część instalacyjna:
-część opisowa do projektów instalacji elektrycznych, wodno-kanalizacyjnych, grzewczych, gazowych (jeśli występują).
Część rysunkowa do projektów instalacji:
-schematy instalacji elektrycznych, schemat rozdzielni, plan instalacji odgromowej,
-schematy instalacji wodno-kanalizacyjnej i ciepłej wody,
-schematy instalacji grzewczych,
-schemat instalacji gazowej (jeśli występują).
Do projektu dołączane jest zestawienie materiałowe, z wykazem elementów drewnianych oraz stali budowlanej.
Do projektu dołączone są kopie uprawnień wszystkich projektantów, oraz aktualne zaświadczenia o przynależności do izb zawodowych.
Projekt zawiera oświadczenie projektantów o poprawności projektu w świetle Prawa Budowlanego, a także zawiera informację dotyczącą bezpieczeństwa i ochrony zdrowia ( BIOZ).
Do projektu dołączona jest także zgoda na zmiany adaptacyjne. Zgoda dołączana jest do każdego projektu bezpłatnie. Na Państwa życzenie zakres zgody na zmiany możemy dowolnie rozszerzyć.
Pracownia zezwala na następujące zmiany i odstępstwa od projektu architektoniczno-budowlanego w trakcie jego przystosowywania do lokalizacji:
- Zmianę obrysu zewnętrznego ścian zewnętrznych.
- Zmianę obrysu wewnętrznego ścian zewnętrznych.
- Zmianę układu ścian wewnętrznych działowych.
- Zmianę funkcji, ilości i usytuowania poszczególnych pomieszczeń na dowolnej kondygnacji w projekcie.
- Zmianę ukształtowania, ilości i kąta nachylenia połaci dachowych.
- Zmianę ilości, umiejscowienia i wielkości otworów okiennych i drzwiowych.
- Zmianę rodzaju materiału i technologii wykonania ścian zewnętrznych oraz wewnętrznych oraz ścian fundamentowych.
- Zmianę rodzaju i technologii wykonania stropów nad dowolną kondygnacją.
- Zmianę umiejscowienia, kształtu i materiału wykonania schodów w budynku.
- Zmianę wielkości, kształtu i materiałów, bądź likwidacja: tarasów, podestów i balkonów.
- Likwidację lub dodanie dowolnej ilości:
- lukarn,
- wykuszy,
- podcieni,
- balkonów,
- loggii,
- kolumn,
- pilastrów,
- ganków,
- werand.
- Zmianę materiałów wykończeniowych, instalacyjnych, izolacyjnych.
- Zmianę rodzaju pokrycia dachowego.
- Doprojektowanie bądź likwidacja podpiwniczenia - częściowego lub całkowitego.
Dodatki
Bezpłatne dodatki
GratisZestaw umów
GratisZmiany w projekcie
PromocjaProjekt szamba szczelnego
GratisTablica budowy
GratisDziennik budowy
Płatne dodatki

Pakiet wentylacja mechaniczna i kominek DGP
550 zł

Kosztorys inwestorski
600 zł

Pakiet odkurzacz centralny
550 zł

Wersja elektroniczna projektu
600 zł

Pakiet instalacja solarna
550 zł

Pakiet ogrzewanie podłogowe
550 zł

Pakiet powietrzna pompa ciepła
550 zł

Pakiet płaszcz wodny
550 zł

Pakiet kotłownia na paliwo stałe
550 zł

Pakiet klimatyzacja w domu
550 zł

Projekt ogrodzenia
750 zł

Pakiet instalacja fotowoltaiczna
550 zł

Pakiet kominek z DGP
500 zł

Pakiet gruntowa pompa ciepła
550 zł

Projekt altan i grilów ogrodowych
850 zł

Dodatkowy egzemplarz do projektu
650 zł














