- Typ projektuWolnostojący
- Powierzchnia użytkowa207.29 m²
- KondygnacjeParterowy, z poddaszem
- GarażDwustanowiskowy
- DachWielospadowy
- Kąt nach. dachu30°
- Odbicie lustrzaneNie
- Czas realizacjimax. czas realizacji 10 dni Zobacz więcej >
Opis
Zgodność z WT 2021 i Eurokodami
Ze względu na dostosowywanie projektu do standardu WT 2021, czas realizacji może się różnić od standardowego.
Skontaktuj się z nami aby poznać szczegóły dotyczące wybranego projektu.
Opis projektu
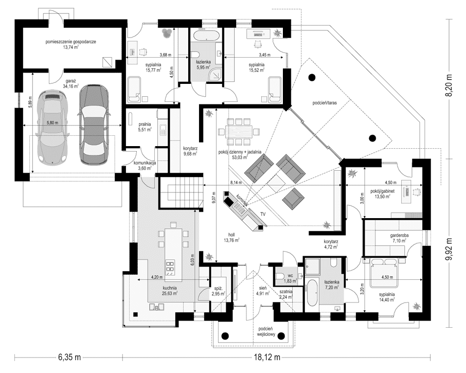
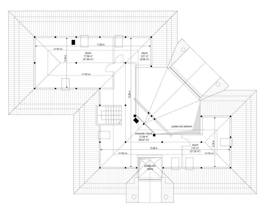
Projekt domu Willa Parkowa 6 jest kolejną wersją projektu z cieszącej się popularnością serii "Willi Parkowych". Dom nawiązuje stylistycznie do pozostałych "Wilii Parkowych", ale ma zdecydowanie inny, ciekawy rzut i układ funkcjonalny. Dom jest parterowy, z dodatkowym strychem- poddaszem, które może pozostać pustą przestrzenią nad parterem, ale też może pełnić rolę poddasza użytkowego. Bryłę zaprojektowano na planie litery "L" z dobudowaną częścią garażową. Dzięki takiemu kształtowi domostwo będzie pasowało zarówno na działkę z ogrodem z tyłu domu, jak i z ogrodem z boku. Projekt domu Willa Parkowa 6 może też być dobrą propozycją dla działki narożnej. Wewnętrzny dziedziniec od frontu przed garażami pozwoli domownikom na swobodne parkowanie autami na podjeździe, jak też na odseparowanie garażu od reprezentacyjnego wejścia do willi - zupełnie jak w amerykańskich rezydencjach. Wewnętrzne patio od strony ogrodu tworzy zamkniętą intymną przestrzeń tarasową z pięknym zadaszeniem nad tarasem i dwukondygnacyjnymi oknami łączącymi salon z ogrodem. Do budynku dostajemy się szerokimi drzwiami, z naświetlami bocznymi i górnymi do podwyższonego przedsionka z szatnią, skąd trafiamy do przestrzeni dziennej domu. Na środku domu stoi prostopadłościenna bryła ściany kominkowej ustawiona pod kątem, która oddziela hol od salonu. Na lewo od wejścia mamy piękną kuchnię z wykuszowym narożnym oknem z widokiem na wejście i dziedziniec wjazdowy. Kuchnia z wyspą i mini-jadalnią do codziennych posiłków. Z kuchni przedostajemy się – po amerykańsku – do części gospodarczej - z kotłownią i pralnią, oraz do garażu. W dwóch bocznych skrzydłach budynku mieszczą się pokoje mieszkańców - dwie sypialnie dziecięce z łazienką w jednym, oraz apartament rodziców z łazienką i garderobą, oraz gabinetem do pracy w drugim. Pośrodku domu, w centralnym miejscu mamy piękny wysoki salon a dużym oknem na taras i ogród. Na górnej kondygnacji zaprojektowano antresolę nad salonem, oraz dodatkową przestrzeń, w której bez problemu można urządzić dodatkowe trzy pokoje, albo wydzielić przestrzeń magazynową domu, czy przeznaczyć całe poddasze na rekreację - dowolnie. Projekt domu Willa Parkowa 6 to reprezentacyjna luksusowa podmiejska rezydencja, stylowej i ponadczasowej architekturze. Dom nie jest mały, ale jego wielkość nie jest przesadzona. Budynek jest energooszczędny i ma sensownie zaprojektowaną konstrukcję. Zapraszamy do obejrzenia wszystkich projektów domów z serii Willa Parkowa: https://www.mgprojekt.com.pl/willa-parkowa, https://www.mgprojekt.com.pl/willa-parkowa-2, https://www.mgprojekt.com.pl/willa-parkowa-3, https://www.mgprojekt.com.pl/willa-parkowa-4, https://www.mgprojekt.com.pl/willa-parkowa-5, https://www.mgprojekt.com.pl/willa-parkowa-6, https://www.mgprojekt.com.pl/willa-parkowa-6-d, https://www.mgprojekt.com.pl/willa-parkowa-7, https://www.mgprojekt.com.pl/willa-parkowa-8-a, https://www.mgprojekt.com.pl/willa-parkowa-8-b, https://www.mgprojekt.com.pl/willa-parkowa-9, https://www.mgprojekt.com.pl/willa-parkowa-10, https://www.mgprojekt.com.pl/willa-parkowa-b, https://www.mgprojekt.com.pl/willa-parkowa-c, https://www.mgprojekt.com.pl/willa-parkowa-d.
Konstrukcja
- Fundamentybetonowe ławy i ściany fundamentowe z bloczków betonowych
- Ściany zewnętrzneściany murowane - pustaki porotherm 25 + styropian
- Stropmonolityczny betonowy
- Elewacjetynk cienkowarstwowy
- Pokrycie dachudachówka
Rzuty
Dane techniczne
- Powierzchnia użytkowa207.29 m²
- Powierzchnia netto221.03 m²
- Powierzchnia zabudowy314.68 m²
- KominekTak
- Liczba łazienek3
- Liczba pokoi5
- Powierzchnia dachu435.6 m²
- Kubatura1304 m³
- Długość domu18.12 m
- Szerokość domu24.47 m
- Wysokość domu6.65 m
- Poddaszedo adaptacji
- Minimalne wymiary działki26.12 x 31.47m
- GarażDwustanowiskowy
- Rodzaj dachuWielospadowy
- Kąt nach. dachu30°
Koszty budowy
- Stan surowy370331 zł
- Stan surowy zamknięty514152 zł
- Koszt wykończenia480527 zł
- Koszt instalacji133567 zł
Zawartość projektu
W komplecie nowej wersji dokumentacji projektowej znajdują się 3 egzemplarze projektu architektoniczno-budowlanego oraz 3 egzemplarze projektu technicznego
Projekt architektoniczno-budowlany zawierający:
-opis architektoniczny z elementami konstrukcji,
-część rysunkowa: rzut parteru, poddasza/piętra, rzut dachu w skali 1:100, przekroje skala 1:50,
elewacje skala 1:100.
Projekt techniczny zawierający:
-opis techniczny i konstrukcyjny (obliczenia statyczne - w zależności od projektu włączone w projekt lub stanowiące odrębną teczkę).
Część rysunkowa architektura i konstrukcja:
-rzuty fundamentów, parteru, poddasza, stropu, więźby, dachu / w skali 1:50,
-przekroje przez budynek / budynek skali 1:50,
-elewacje budynku / w skali 1:50 (*niektóre projekty posiadają rysunki w skali 1:100 lub 1:75),
-zestawienie stolarki budowlanej okiennej i drzwiowej,
-szczegóły konstrukcji i ewentualne szczegóły budowlane,
Część instalacyjna:
-część opisowa do projektów instalacji elektrycznych, wodno-kanalizacyjnych, grzewczych, gazowych (jeśli występują).
Część rysunkowa do projektów instalacji:
-schematy instalacji elektrycznych, schemat rozdzielni, plan instalacji odgromowej,
-schematy instalacji wodno-kanalizacyjnej i ciepłej wody,
-schematy instalacji grzewczych,
-schemat instalacji gazowej (jeśli występują).
Do projektu dołączane jest zestawienie materiałowe, z wykazem elementów drewnianych oraz stali budowlanej.
Do projektu dołączone są kopie uprawnień wszystkich projektantów, oraz aktualne zaświadczenia o przynależności do izb zawodowych.
Projekt zawiera oświadczenie projektantów o poprawności projektu w świetle Prawa Budowlanego, a także zawiera informację dotyczącą bezpieczeństwa i ochrony zdrowia ( BIOZ).
Do projektu dołączona jest także zgoda na zmiany adaptacyjne. Zgoda dołączana jest do każdego projektu bezpłatnie. Na Państwa życzenie zakres zgody na zmiany możemy dowolnie rozszerzyć.
Pracownia zezwala na następujące zmiany i odstępstwa od projektu architektoniczno-budowlanego w trakcie jego przystosowywania do lokalizacji:
- Zmianę obrysu zewnętrznego ścian zewnętrznych.
- Zmianę obrysu wewnętrznego ścian zewnętrznych.
- Zmianę układu ścian wewnętrznych działowych.
- Zmianę funkcji, ilości i usytuowania poszczególnych pomieszczeń na dowolnej kondygnacji w projekcie.
- Zmianę ukształtowania, ilości i kąta nachylenia połaci dachowych.
- Zmianę ilości, umiejscowienia i wielkości otworów okiennych i drzwiowych.
- Zmianę rodzaju materiału i technologii wykonania ścian zewnętrznych oraz wewnętrznych oraz ścian fundamentowych.
- Zmianę rodzaju i technologii wykonania stropów nad dowolną kondygnacją.
- Zmianę umiejscowienia, kształtu i materiału wykonania schodów w budynku.
- Zmianę wielkości, kształtu i materiałów, bądź likwidacja: tarasów, podestów i balkonów.
- Likwidację lub dodanie dowolnej ilości:
- lukarn,
- wykuszy,
- podcieni,
- balkonów,
- loggii,
- kolumn,
- pilastrów,
- ganków,
- werand.
- Zmianę materiałów wykończeniowych, instalacyjnych, izolacyjnych.
- Zmianę rodzaju pokrycia dachowego.
- Doprojektowanie bądź likwidacja podpiwniczenia - częściowego lub całkowitego.
Dodatki
Bezpłatne dodatki
GratisZestaw umów
GratisZmiany w projekcie
PromocjaProjekt szamba szczelnego
GratisTablica budowy
GratisDziennik budowy
Płatne dodatki

Pakiet wentylacja mechaniczna i kominek DGP
550 zł

Kosztorys inwestorski
600 zł

Pakiet odkurzacz centralny
550 zł

Wersja elektroniczna projektu
600 zł

Pakiet instalacja solarna
550 zł

Pakiet ogrzewanie podłogowe
550 zł

Pakiet powietrzna pompa ciepła
550 zł

Pakiet płaszcz wodny
550 zł

Pakiet kotłownia na paliwo stałe
550 zł

Pakiet klimatyzacja w domu
550 zł

Projekt ogrodzenia
750 zł

Pakiet instalacja fotowoltaiczna
550 zł

Pakiet kominek z DGP
500 zł

Pakiet gruntowa pompa ciepła
550 zł

Projekt altan i grilów ogrodowych
850 zł

Dodatkowy egzemplarz do projektu
650 zł



















