- Typ projektuWolnostojący
- StylDworkowy
- Powierzchnia użytkowa244.75 m²
- KondygnacjeParterowy, z poddaszem
- GarażDwustanowiskowy
- DachWielospadowy
- Kąt nach. dachu35°
- Odbicie lustrzaneNie
- Czas realizacjimax. czas realizacji 10 dni Zobacz więcej >
Opis
Zgodność z WT 2021 i Eurokodami
Ze względu na dostosowywanie projektu do standardu WT 2021, czas realizacji może się różnić od standardowego.
Skontaktuj się z nami aby poznać szczegóły dotyczące wybranego projektu.
Opis projektu
Wariant projektu z zadaszonym tarasem na bocznej elewacji, z szerszym korytarzem, odbiciem lustrzanym schodów, ze zmienionym układem pomieszczeń i zagospodarowanym poddaszem. Zapraszamy do obejrzenia wszystkich projektów domów z serii Willa Parkowa: https://www.mgprojekt.com.pl/willa-parkowa, https://www.mgprojekt.com.pl/willa-parkowa-2, https://www.mgprojekt.com.pl/willa-parkowa-3, https://www.mgprojekt.com.pl/willa-parkowa-4, https://www.mgprojekt.com.pl/willa-parkowa-5, https://www.mgprojekt.com.pl/willa-parkowa-6, https://www.mgprojekt.com.pl/willa-parkowa-6-d, https://www.mgprojekt.com.pl/willa-parkowa-7, https://www.mgprojekt.com.pl/willa-parkowa-8-a, https://www.mgprojekt.com.pl/willa-parkowa-8-b, https://www.mgprojekt.com.pl/willa-parkowa-9, https://www.mgprojekt.com.pl/willa-parkowa-10, https://www.mgprojekt.com.pl/willa-parkowa-b, https://www.mgprojekt.com.pl/willa-parkowa-c, https://www.mgprojekt.com.pl/willa-parkowa-d.
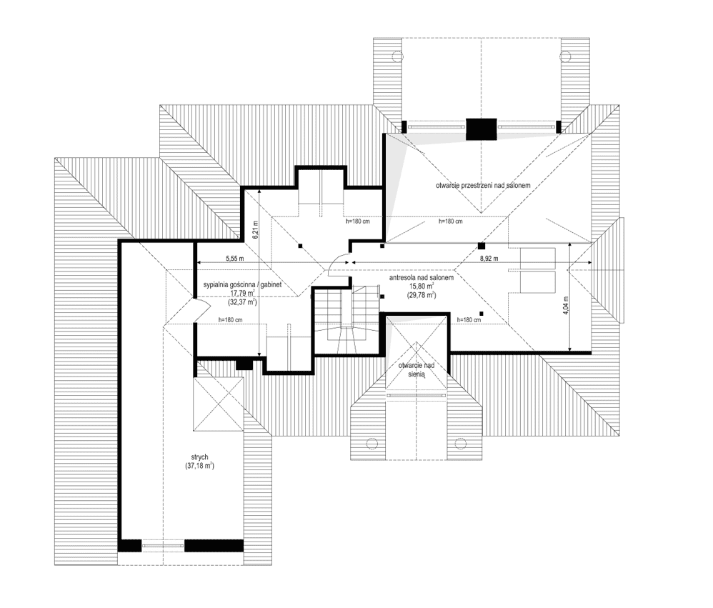
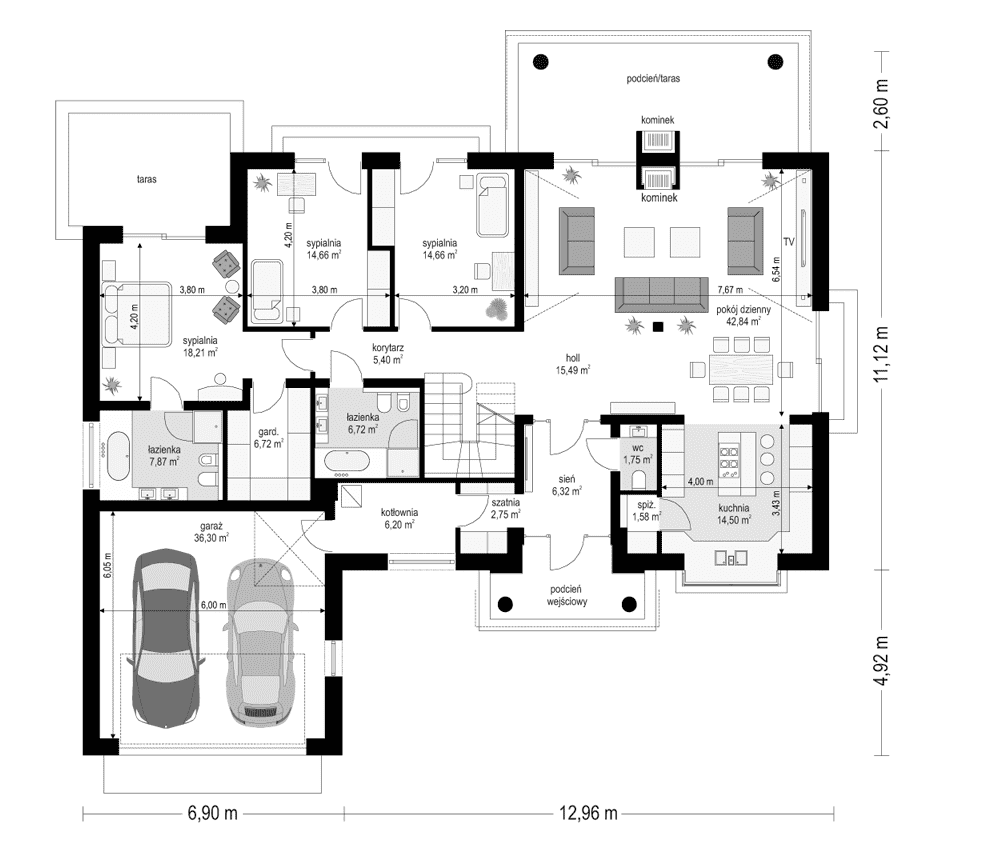
Projekt domu Willa Parkowa to projekt stylowej willi jednorodzinnej, przeznaczonej dla 4-5 osobowej rodziny, parterowej, z niewielkim poddaszem użytkowym.Dom jest kontynuacją projektów domów z serii Rezydencja parkowa, jednak tym razem chociaż projekt Willa Parkowa jest mniejszy - mieści niemal te same funkcje i ilość pomieszczeń, jednak na powierzchni użytkowej parteru 160 m2 plus dwustanowiskowy duży garaż.Rozłożysta bryła projektu Willa Parkowa przykryta wielospadowym dachem łączy główną bryłę, oraz dobudowany garaż od frontu i duży zadaszony taras od strony ogrodowej.Elewację frontową domostwa ozdabia reprezentacyjny portyk wejściowy z kolumnami. Projekt parterowego domu jednorodzinnego Willa Parkowa utrzymany jest w stylistyce podmiejskiej rezydencji. Detale architektoniczne podkreślają klasyczny styl projektu domu Willa Parkowa.Wnętrze Willi Parkowej zaprojektowano nowocześnie i funkcjonalnie. Część dzienna to jednoprzestrzenna powierzchnia uzytkowa salonu, jadalni, holu i kuchni. Nad częścią salonu zaprojektowano otwarcie przestrzenne - pustkę. W domu Willa Parkowa nad salonem przewidziano antresolę. Z holu i salonu widzimy reprezentacyjne zabiegowe schody na poddasze.Drugą część budynku w projekcie domu Willa Parkowa zajmują sypialnie, oddzielone od części dziennej.W tym domu przewidziano również apartament rodziców - z łazienką i garderobą i własnym oddzielnym tarasem, oraz dwie sypialnie dziecięce z łazienką. Na poddaszu zaprojektowano dodatkowy pokój - może to być gabinet, lub jeszcze jedna sypialnia.W części gospodarczej projektanci MGProjekt zaplanowali kotłownię i dwustanowiskowy garaż. Staraliśmy się oszczędnie gospodarować przestrzenią i "wycisnąć" z niej jak najwięcej. Dzięki temu projekt Willa Parkowa to komfortowy, ale jednocześnie ekonomiczny budynek, z którego przyszli domownicy będą dumni. Willa Parkowa to dom, który nie zrujnuje na całe życie kosztami budowy i utrzymania.W projekcie domu Willa Parkowa zostały zastosowane energooszczędne rozwiązania, koszty życia w tej mini-rezydencji będą więc kształtowały się na sensownym poziomie.Zgodnie z kosztorysem MGProjekt projekt Willa Parkowa budowy domu willa parkowa do stanu surowego zamkniętego będzie kosztować 294903 zł.Zapraszamy do obejrzenia wszystkich projektów domów z serii Willa Parkowa: https://www.mgprojekt.com.pl/willa-parkowa, https://www.mgprojekt.com.pl/willa-parkowa-2, https://www.mgprojekt.com.pl/willa-parkowa-3, https://www.mgprojekt.com.pl/willa-parkowa-4, https://www.mgprojekt.com.pl/willa-parkowa-5, https://www.mgprojekt.com.pl/willa-parkowa-6, https://www.mgprojekt.com.pl/willa-parkowa-6-d, https://www.mgprojekt.com.pl/willa-parkowa-7, https://www.mgprojekt.com.pl/willa-parkowa-8-a, https://www.mgprojekt.com.pl/willa-parkowa-8-b, https://www.mgprojekt.com.pl/willa-parkowa-9, https://www.mgprojekt.com.pl/willa-parkowa-10, https://www.mgprojekt.com.pl/willa-parkowa-b, https://www.mgprojekt.com.pl/willa-parkowa-c, https://www.mgprojekt.com.pl/willa-parkowa-d.
Konstrukcja
- Fundamentybetonowe ławy i ściany fundamentowe z bloczków betonowych
- Ściany zewnętrzneściany murowane - pustaki porotherm 25 + styropian + tynk cienkowarstwowy
- Stropmonolityczny żelbetowy
- Elewacjetynk cienkowarstwowy na styropianie
- Pokrycie dachudachówka ceramiczna
Rzuty
Dane techniczne
- Powierzchnia użytkowa244.75 m²
- Powierzchnia netto251.43 m²
- Powierzchnia zabudowy263.98 m²
- KominekTak
- Liczba łazienek3
- Liczba pokoi4
- Powierzchnia dachu356.5 m²
- Kubatura862 m³
- Długość domu16.04 m
- Szerokość domu19.86 m
- Wysokość domu7.86 m
- Poddaszeużytkowe
- Minimalne wymiary działki25.64 x 31.96m
- GarażDwustanowiskowy
- Rodzaj dachuWielospadowy
- Kąt nach. dachu35°
Koszty budowy
- Stan surowy201405 zł
- Stan surowy zamknięty290390 zł
- Koszt wykończenia274128 zł
- Koszt instalacji79863 zł
Zawartość projektu
W komplecie nowej wersji dokumentacji projektowej znajdują się 3 egzemplarze projektu architektoniczno-budowlanego oraz 3 egzemplarze projektu technicznego
Projekt architektoniczno-budowlany zawierający:
-opis architektoniczny z elementami konstrukcji,
-część rysunkowa: rzut parteru, poddasza/piętra, rzut dachu w skali 1:100, przekroje skala 1:50,
elewacje skala 1:100.
Projekt techniczny zawierający:
-opis techniczny i konstrukcyjny (obliczenia statyczne - w zależności od projektu włączone w projekt lub stanowiące odrębną teczkę).
Część rysunkowa architektura i konstrukcja:
-rzuty fundamentów, parteru, poddasza, stropu, więźby, dachu / w skali 1:50,
-przekroje przez budynek / budynek skali 1:50,
-elewacje budynku / w skali 1:50 (*niektóre projekty posiadają rysunki w skali 1:100 lub 1:75),
-zestawienie stolarki budowlanej okiennej i drzwiowej,
-szczegóły konstrukcji i ewentualne szczegóły budowlane,
Część instalacyjna:
-część opisowa do projektów instalacji elektrycznych, wodno-kanalizacyjnych, grzewczych, gazowych (jeśli występują).
Część rysunkowa do projektów instalacji:
-schematy instalacji elektrycznych, schemat rozdzielni, plan instalacji odgromowej,
-schematy instalacji wodno-kanalizacyjnej i ciepłej wody,
-schematy instalacji grzewczych,
-schemat instalacji gazowej (jeśli występują).
Do projektu dołączane jest zestawienie materiałowe, z wykazem elementów drewnianych oraz stali budowlanej.
Do projektu dołączone są kopie uprawnień wszystkich projektantów, oraz aktualne zaświadczenia o przynależności do izb zawodowych.
Projekt zawiera oświadczenie projektantów o poprawności projektu w świetle Prawa Budowlanego, a także zawiera informację dotyczącą bezpieczeństwa i ochrony zdrowia ( BIOZ).
Do projektu dołączona jest także zgoda na zmiany adaptacyjne. Zgoda dołączana jest do każdego projektu bezpłatnie. Na Państwa życzenie zakres zgody na zmiany możemy dowolnie rozszerzyć.
Pracownia zezwala na następujące zmiany i odstępstwa od projektu architektoniczno-budowlanego w trakcie jego przystosowywania do lokalizacji:
- Zmianę obrysu zewnętrznego ścian zewnętrznych.
- Zmianę obrysu wewnętrznego ścian zewnętrznych.
- Zmianę układu ścian wewnętrznych działowych.
- Zmianę funkcji, ilości i usytuowania poszczególnych pomieszczeń na dowolnej kondygnacji w projekcie.
- Zmianę ukształtowania, ilości i kąta nachylenia połaci dachowych.
- Zmianę ilości, umiejscowienia i wielkości otworów okiennych i drzwiowych.
- Zmianę rodzaju materiału i technologii wykonania ścian zewnętrznych oraz wewnętrznych oraz ścian fundamentowych.
- Zmianę rodzaju i technologii wykonania stropów nad dowolną kondygnacją.
- Zmianę umiejscowienia, kształtu i materiału wykonania schodów w budynku.
- Zmianę wielkości, kształtu i materiałów, bądź likwidacja: tarasów, podestów i balkonów.
- Likwidację lub dodanie dowolnej ilości:
- lukarn,
- wykuszy,
- podcieni,
- balkonów,
- loggii,
- kolumn,
- pilastrów,
- ganków,
- werand.
- Zmianę materiałów wykończeniowych, instalacyjnych, izolacyjnych.
- Zmianę rodzaju pokrycia dachowego.
- Doprojektowanie bądź likwidacja podpiwniczenia - częściowego lub całkowitego.
Dodatki
Bezpłatne dodatki
GratisZestaw umów
GratisZmiany w projekcie
PromocjaProjekt szamba szczelnego
GratisTablica budowy
GratisDziennik budowy
Płatne dodatki

Pakiet wentylacja mechaniczna i kominek DGP
550 zł

Kosztorys inwestorski
600 zł

Pakiet odkurzacz centralny
550 zł

Wersja elektroniczna projektu
600 zł

Pakiet instalacja solarna
550 zł

Pakiet ogrzewanie podłogowe
550 zł

Pakiet powietrzna pompa ciepła
550 zł

Pakiet płaszcz wodny
550 zł

Pakiet kotłownia na paliwo stałe
550 zł

Pakiet klimatyzacja w domu
550 zł

Projekt ogrodzenia
750 zł

Pakiet instalacja fotowoltaiczna
550 zł

Pakiet kominek z DGP
500 zł

Pakiet gruntowa pompa ciepła
550 zł

Projekt altan i grilów ogrodowych
850 zł

Dodatkowy egzemplarz do projektu
650 zł




























