- Typ projektuWolnostojący
- Powierzchnia użytkowa172.01 m²
- KondygnacjeParterowy, z poddaszem
- GarażDwustanowiskowy
- DachWielospadowy
- Kąt nach. dachu35°
- Odbicie lustrzaneNie
- Czas realizacjimax. czas realizacji 10 dni Zobacz więcej >
Opis
Zgodność z WT 2021 i Eurokodami
Ze względu na dostosowywanie projektu do standardu WT 2021, czas realizacji może się różnić od standardowego.
Skontaktuj się z nami aby poznać szczegóły dotyczące wybranego projektu.
Opis projektu
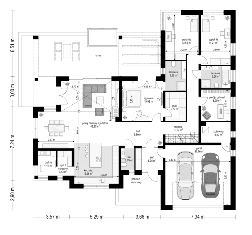
Projekt domu Willa Parterowa to reprezentacyjny, parterowy dom jednorodzinny dla 4-5 osobowej rodziny. Projekt domu Willa Parterowa to prawdziwa komfortowa willa o nieprzeciętnej funkcjonalności przeznaczona dla Inwestorów zdecydowanych żyć na parterze - bez biegania po schodach.Projekt domu Willa ParterowaDom jednorodzinny Willa Parterowa, mimo, że nie jest wielki i jego powierzchnia użytkowa to nieco ponad 170 m2, zaprojektowano z amerykańskim rozmachem. Od samego wejścia Willa Parterowa wita nas szeroka efektowna elewacja frontowa, z pięknie zaakcentowanymi drzwiami wejściowymi. Od strony ogrodowej jest jeszcze lepiej - układająca się w literę "L" bryła domostwa z tarasem – z wewnętrznym patio, częściowym zadaszeniem oraz pergolą. Świetne miejsce na domowe przyjęcia, ale też na spokojny wieczorny relaks dla wszystkich domowników. Budynek Willa Parterowa zaprojektowaliśmy na planie litery "T", z główną prostokątną bryłą przykrytą czterospadowym dachem i dobudowanymi częściami dużego garażu i sypialni.Wnętrze domu Willa ParterowaStyl Willi Parterowej to umiarkowana nowoczesność. Dzięki dużym przeszkleniom, kolorystyce i zastosowanym materiałom budowlanym dom Willa Parterowa wygląda nowocześnie, ale nie ekstrawagancko. Do wnętrza projektu Willa Parterowa wchodzimy przez przedsionek do holu i stamtąd w jedną stronę do części dziennej - z pięknym pokojem dziennym, jadalnią i kuchnią, a w drugą stronę do części nocnej domu. Salon ze ścianą kominkowo – telewizyjną połączony jest z tarasem szerokimi przesuwnymi przeszkleniami. Nad salonem projektu Willa Parterowa zaplanowano otwarcie przestrzenne – pustkę, dzięki której wnętrze domu wydaje się znacznie większe. W wersji domku z zagospodarowanym strychem na poddaszu zaplanowano powyżej balustradę i antresolę. W wersji budynku ze strychem nieużytkowym - po prostu pustkę nad salonem. W jadalni zaplanowano całą ścianę na kredens – rzadko spotykaną wygodę. W kuchni zaprojektowano dużą centralną wyspę, a obok kuchni pomieszczenia spiżarki i pralni - po amerykańsku, Pani domu ma pod ręką wszystkie urządzenia. W części nocnej domu mieści się apartament rodziców z garderobą i łazienką, dwie sypialnie dzieci z szafami wbudowanymi i łazienką, oraz dodatkowy pokój, który może być sypialnią albo gabinetem.Projekt Willa Parterowa - część gospodarczaW gotowym projekcie domu Willa Parterowa, od frontu domu przewidziano jeszcze duży garaż na dwa samochody i kotłownię. Strych budynku Willa Parterowa może pozostać przestrzenią nieużytkową - domowym magazynem rzeczy różnych, albo można go zaadaptować na powierzchnię użytkową, uzyskując tym samym dodatkowe 35 m2.Projekt domu Willa Parterowa - budowaGotowy projekt domu jednorodzinnego Willa Parterowa to dzięki optymalnie dobranym materiałom budowlanym i izolacji budynek energooszczędny. Dzięki temu będzie niedrogi w użytkowaniu przez domowników. Konstrukcja domu Willa Parterowa jest nieskomplikowana, więc koszty budowy domu Willa Parterowa są niskie. Według naszych kosztorysantów koszt budowy domu Willa Parterowa to 343971 zł za stan surowy zamknięty, a koszty budowy za stan pod klucz to 695 tys zł. Projekt Willa Parterowa to świetna propozycja dla Inwestorów marzących o kontakcie z ogrodem i przyrodą, o komfortowym domostwie na jednej podłodze - bez chodzenia po schodach. Z pewnością dom jednorodzinny Willa Parterowa przeznaczony jest dla osób mających trochę większą działkę o wymiarach min 24,75x24,84m i powierzchni minimum 700-800 m2.
Konstrukcja
- Fundamentybetonowe ławy i ściany fundamentowe z bloczków betonowych
- Ściany zewnętrzneściany murowane - pustaki porotherm 25 + styropian 22 cm
- Stroppłyta żelbetowa
- Elewacjetynk cienkowarstwowy z elementami z cegły klinkierowej
- Pokrycie dachudachówka
Rzuty
Dane techniczne
- Powierzchnia użytkowa172.01 m²
- Powierzchnia netto177.63 m²
- Powierzchnia zabudowy267.84 m²
- KominekTak
- Liczba łazienek3
- Liczba pokoi5
- Powierzchnia dachu417.72 m²
- Kubatura1091 m³
- Długość domu19.65 m
- Szerokość domu19.86 m
- Wysokość domu7.57 m
- Minimalne wymiary działki27.65 x 27.86m
- GarażDwustanowiskowy
- Rodzaj dachuWielospadowy
- Kąt nach. dachu35°
Instalacja grzewcza
- Instalacja opcjonalna
Koszty budowy
- Stan surowy327218 zł
- Stan surowy zamknięty442151 zł
- Koszt wykończenia425948 zł
- Koszt instalacji119608 zł
Zawartość projektu
W komplecie nowej wersji dokumentacji projektowej znajdują się 3 egzemplarze projektu architektoniczno-budowlanego oraz 3 egzemplarze projektu technicznego
Projekt architektoniczno-budowlany zawierający:
-opis architektoniczny z elementami konstrukcji,
-część rysunkowa: rzut parteru, poddasza/piętra, rzut dachu w skali 1:100, przekroje skala 1:50,
elewacje skala 1:100.
Projekt techniczny zawierający:
-opis techniczny i konstrukcyjny (obliczenia statyczne - w zależności od projektu włączone w projekt lub stanowiące odrębną teczkę).
Część rysunkowa architektura i konstrukcja:
-rzuty fundamentów, parteru, poddasza, stropu, więźby, dachu / w skali 1:50,
-przekroje przez budynek / budynek skali 1:50,
-elewacje budynku / w skali 1:50 (*niektóre projekty posiadają rysunki w skali 1:100 lub 1:75),
-zestawienie stolarki budowlanej okiennej i drzwiowej,
-szczegóły konstrukcji i ewentualne szczegóły budowlane,
Część instalacyjna:
-część opisowa do projektów instalacji elektrycznych, wodno-kanalizacyjnych, grzewczych, gazowych (jeśli występują).
Część rysunkowa do projektów instalacji:
-schematy instalacji elektrycznych, schemat rozdzielni, plan instalacji odgromowej,
-schematy instalacji wodno-kanalizacyjnej i ciepłej wody,
-schematy instalacji grzewczych,
-schemat instalacji gazowej (jeśli występują).
Do projektu dołączane jest zestawienie materiałowe, z wykazem elementów drewnianych oraz stali budowlanej.
Do projektu dołączone są kopie uprawnień wszystkich projektantów, oraz aktualne zaświadczenia o przynależności do izb zawodowych.
Projekt zawiera oświadczenie projektantów o poprawności projektu w świetle Prawa Budowlanego, a także zawiera informację dotyczącą bezpieczeństwa i ochrony zdrowia ( BIOZ).
Do projektu dołączona jest także zgoda na zmiany adaptacyjne. Zgoda dołączana jest do każdego projektu bezpłatnie. Na Państwa życzenie zakres zgody na zmiany możemy dowolnie rozszerzyć.
Pracownia zezwala na następujące zmiany i odstępstwa od projektu architektoniczno-budowlanego w trakcie jego przystosowywania do lokalizacji:
- Zmianę obrysu zewnętrznego ścian zewnętrznych.
- Zmianę obrysu wewnętrznego ścian zewnętrznych.
- Zmianę układu ścian wewnętrznych działowych.
- Zmianę funkcji, ilości i usytuowania poszczególnych pomieszczeń na dowolnej kondygnacji w projekcie.
- Zmianę ukształtowania, ilości i kąta nachylenia połaci dachowych.
- Zmianę ilości, umiejscowienia i wielkości otworów okiennych i drzwiowych.
- Zmianę rodzaju materiału i technologii wykonania ścian zewnętrznych oraz wewnętrznych oraz ścian fundamentowych.
- Zmianę rodzaju i technologii wykonania stropów nad dowolną kondygnacją.
- Zmianę umiejscowienia, kształtu i materiału wykonania schodów w budynku.
- Zmianę wielkości, kształtu i materiałów, bądź likwidacja: tarasów, podestów i balkonów.
- Likwidację lub dodanie dowolnej ilości:
- lukarn,
- wykuszy,
- podcieni,
- balkonów,
- loggii,
- kolumn,
- pilastrów,
- ganków,
- werand.
- Zmianę materiałów wykończeniowych, instalacyjnych, izolacyjnych.
- Zmianę rodzaju pokrycia dachowego.
- Doprojektowanie bądź likwidacja podpiwniczenia - częściowego lub całkowitego.
Dodatki
Bezpłatne dodatki
GratisZestaw umów
GratisZmiany w projekcie
PromocjaProjekt szamba szczelnego
GratisTablica budowy
GratisDziennik budowy
Płatne dodatki

Pakiet wentylacja mechaniczna i kominek DGP
550 zł

Kosztorys inwestorski
600 zł

Pakiet odkurzacz centralny
550 zł

Wersja elektroniczna projektu
600 zł

Pakiet instalacja solarna
550 zł

Pakiet ogrzewanie podłogowe
550 zł

Pakiet powietrzna pompa ciepła
550 zł

Pakiet płaszcz wodny
550 zł

Pakiet kotłownia na paliwo stałe
550 zł

Pakiet klimatyzacja w domu
550 zł

Projekt ogrodzenia
750 zł

Pakiet instalacja fotowoltaiczna
550 zł

Pakiet kominek z DGP
500 zł

Pakiet gruntowa pompa ciepła
550 zł

Projekt altan i grilów ogrodowych
850 zł

Dodatkowy egzemplarz do projektu
650 zł































