Promocja ważna do
19-03-2026
- Typ projektuWolnostojący
- Powierzchnia użytkowa156.67 m²
- KondygnacjeParterowy, z poddaszem, z piwnicą
- GarażDwustanowiskowy
- DachWielospadowy
- Kąt nach. dachu35°
- Odbicie lustrzaneTak
- Czas realizacjimax. czas realizacji 10 dni Zobacz więcej >
Opis
Zgodność z WT 2021 i Eurokodami
Ze względu na dostosowywanie projektu do standardu WT 2021, czas realizacji może się różnić od standardowego.
Skontaktuj się z nami aby poznać szczegóły dotyczące wybranego projektu.
Opis projektu
Dom z bali. Częściowo podpiwniczony. Duży salon z aneksem kuchennym, kominkiem i wyjściem na taras. Dwa pokoje, łazienka, sauna, wc, wiatrołap, kotłownia, komunikacja, korytarz i garaż. Na poddaszu dwa pokoje, garderoba, łazienka, komunikacja i antresola. W części podpiwniczonej: trzy piwnice, komunikacja i schody na parter.Rzuty
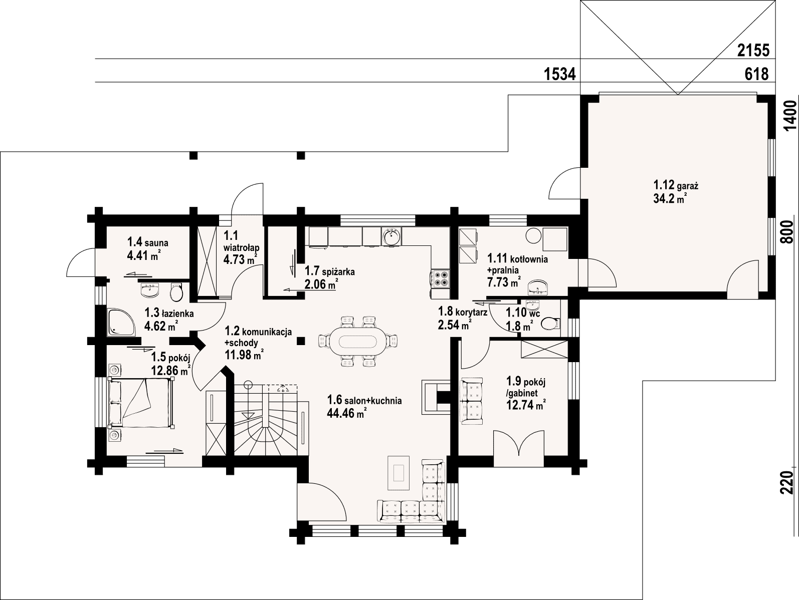
Parter
- 1.1 - wiatrołap4.73 m²
- 1.2 - komunikacja11.98 m²
- 1.3 - łazienka4.62 m²
- 1.4 - sauna4.41 m²
- 1.5 - pokój12.86 m²
- 1.6 - salon+kuchnia44.46 m²
- 1.7 - spiżarka2.06 m²
- 1.8 - korytarz2.54 m²
- 1.9 - pokój12.74 m²
- 1.1 - wc1.8 m²
- 1.11 - kotłownia+pralnia7.73 m²
- 1.12 - garaż34.2 m²
Poddasze
- 2.1 - komunikacja4.74 m²
- 2.2 - łazienka6.89 m²
- 2.3 - garderoba3.11 m²
- 2.4 - pokój12.38 m²
- 2.5 - antresola10.73 m²
- 2.6 - pokój rekreacyjny18.68 m²
Piwnica
Sytuacja
Dane techniczne
- Powierzchnia użytkowa156.67 m²
- Powierzchnia netto267.63 m²
- Powierzchnia zabudowy174.75 m²
- KominekTak
- Liczba łazienek2
- Liczba pokoi4
- Powierzchnia dachu337.07 m²
- Kubatura998.76 m³
- Wysokość domu7.1 m
- Energia pierwotna54.09 kWh/m²/rok
- Minimalne wymiary działki30.05 x 22m
- GarażDwustanowiskowy
- Rodzaj dachuWielospadowy
- Kąt nach. dachu35°
Instalacja grzewcza
- Instalacja grzewczakomplet instalacji, pompa ciepła, instalacja solarna
Zawartość projektu
Zamówiony u nas projekt gotowy otrzymacie Państwo w komplecie składającym się z trzech egzemplarzy projektu architektoniczno-budowlanego wykonanego zgodnie z przepisami Prawa budowlanego (Prawo budowlane - tekst jednolity, Dz. U. 2020 poz. 1333).
Część opisowa projektu architektoniczno-budowlanego składa się z:
opisu architektonicznego zawierającego m.in. opis przyjętych rozwiązań, zestawienia powierzchni (użytkowej, zabudowy, netto), kubatury oraz powierzchni poszczególnych pomieszczeń.
Część rysunkowa projektu architektoniczno-budowlanego składa się między innymi z:
rzutów kondygnacji użytkowych (parteru i jeśli występują: poddasza, piętra, piwnic),
rzutu dachu,
przekroi poprzecznych i ewentualnie podłużnych,
elewacji,
zestawienia stolarki okiennej i drzwiowej.
Ponadto projekt gotowy obejmuje trzy egzemplarze opracowań branżowych stanowiące części projektu technicznego, a mianowicie:
projekt konstrukcji,
projekt instalacji wodno-kanalizacyjnej,
projekt instalacji centralnego ogrzewania,
projekt instalacji gazowej (jeżeli występuje),
projekt instalacji elektrycznej i odgromowej.
Część opisowa projektu technicznego składa się z:
- opisu konstrukcyjnego zawierającego m.in. opis materiałów, z których wykonane są elementy konstrukcyjne, obliczenia statyczne wraz z przyjętymi obciążeniami, zestawienia drewna konstrukcyjnego i zestawienie stali,
- opisu instalacji centralnego ogrzewania, wod-kan, gazowej (jeżeli występuje), elektrycznej i odgromowej precyzującego przyjęte w tych branżach rozwiązania, sposób wykonania instalacji i zapotrzebowania na poszczególne media.
Część rysunkowa projektu technicznego składa się między innymi z:
- rzutu fundamentów,
- rzutów konstrukcyjnych poszczególnych kondygnacji,
- rysunków niezbędnych elementów konstrukcyjnych, zbrojenia płyt oraz innych elementów żelbetowych,
- rzutu więźby dachowej,
- rzutów instalacji centralnego ogrzewania oraz schematu technologicznego kotłowni (jeżeli występują),
- rzutów instalacji wod-kan,
- rzutów oraz rozwinięcia instalacji gazowej (jeżeli występuje),
- rzutów instalacji elektrycznej,
- schematu tablicy TM,
- rzutu instalacji odgromowej.
Do dokumentacji dołączone są projektowana charakterystyka energetyczna, kopie uprawnień oraz przynależności do izb zawodowych projektantów oraz standardowa zgoda na zmiany w projekcie. Komplet dokumentacji znajduje się w praktycznej i estetycznej teczce.
Dodatki
Bezpłatne dodatki
GratisZestaw umów
GratisZmiany w projekcie
GratisTablica budowy
GratisDziennik budowy
Płatne dodatki

Dodatkowy egzemplarz projektu
400 zł
































