- Typ projektuWolnostojący
- Powierzchnia użytkowa110.81 m²
- KondygnacjeParterowy
- GarażBez garażu
- DachDwuspadowy
- Kąt nach. dachu30°
- Odbicie lustrzaneNie
- Czas realizacjimax. czas realizacji 10 dni Zobacz więcej >
Opis
Zgodność z WT 2021 i Eurokodami
Ze względu na dostosowywanie projektu do standardu WT 2021, czas realizacji może się różnić od standardowego.
Skontaktuj się z nami aby poznać szczegóły dotyczące wybranego projektu.
Opis projektu
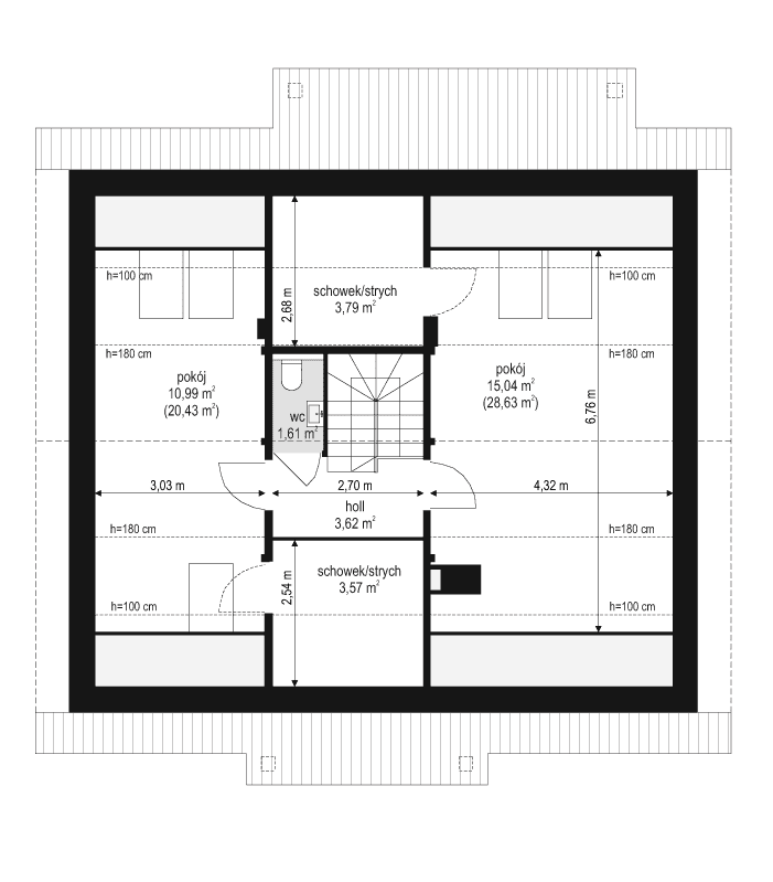
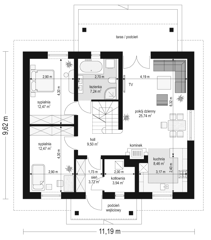
Projekt domu Żabka 2 to dom jednorodzinny dla 3-5osobowej rodziny, parterowego, z poddaszem użytkowym. Projekt domu Żabka 2 to wersja wariantowa projektu Żabka, z zagospodarowanym poddaszem nad parterem. Dzięki zwartej bryle, prostej konstrukcji i wykorzystanemu poddaszu, dom jest bardzo ekonomiczny. Stosunek uzyskanej powierzchni użytkowej domu, do kosztu budowy jest atrakcyjny w porównaniu do podobnych projektów. Jednocześnie prostota i zwartość bryły idzie w parze z łatwością wybudowania domu, a dzięki temu uzyskać można niedrogi koszt realizacji. Projekt domu Żabka 2 przy tym nie ustępuje urodą, ani stylem innym konkurencyjnym projektom. Domek prezentuje się bardzo okazale. Wejście domu podkreślone jest zadaszeniem na kolumienkach. Z tyłu, od strony ogrodu elewację ozdabia podcień i taras. Tradycyjna forma architektoniczna łączy się z nowoczesnymi materiałami i detalem. Całość tworzy atrakcyjny wygląd budynku z zewnątrz. Wnętrze domu kryje na parterze : część dzienną, z holem, salonem i kuchnią, oraz dwa pokoje i łazienkę. Na poddaszu natomiast zaprojektowano dwa dodatkowe pokoje i wc. W sumie w tym niedużym domu udało się zaprojektować pięć wygodnych pokoi. Na parterze przy przedsionku z szafami mieści się pomieszczenie gospodarcze – kotłownia. Gazowa kotłownia może być również łatwo zastąpiona kotłem na paliwo stałe. Żabkę 2 wyróżnia bardzo ładny foremny hol, z reprezentacyjnie umieszczonymi w nim schodami. Zabiegowe drewniane schody stanowią urozmaicenie wnętrza. Projekt domu Żabka 2 to doskonała propozycja dla rozsądnych Inwestorów. Prosta konstrukcja pozwoli na zmieszczenie się w niskim budżecie z budową, a dobre izolacje, energooszczędne materiały i technologie zapewnią przyszłym użytkownikom niskie koszty utrzymania budynku. Pracownia posiada wersję podstawową - bez poddasza, lub wersję ze schodami i strychem do zaadaptowania. Posiadamy projekt w odbiciu lustrzanym oraz inne wersje: projekt domu Żabka, projekt domu Żabka 3. Zapraszamy!
Konstrukcja
- Fundamentybetonowe ławy i ściany fundamentowe z bloczków betonowych
- Ściany zewnętrzneściany murowane - pustaki porotherm 25 + styropian + tynk cienkowarstwowy
- Stropdrewniany belkowy
- Elewacjetynk cienkowarstwowy na styropianie
- Pokrycie dachudachówka ceramiczna
Rzuty
Dane techniczne
- Powierzchnia użytkowa110.81 m²
- Powierzchnia netto114.81 m²
- Powierzchnia zabudowy107.65 m²
- KominekTak
- Liczba łazienek2
- Liczba pokoi5
- Powierzchnia dachu163.5 m²
- Kubatura429 m³
- Długość domu9.62 m
- Szerokość domu11.19 m
- Wysokość domu6.4 m
- Poddaszeużytkowe
- Minimalne wymiary działki18.22 x 18.29m
- GarażBez garażu
- Rodzaj dachuDwuspadowy
- Kąt nach. dachu30°
Koszty budowy
- Stan surowy130938 zł
- Stan surowy zamknięty173458 zł
- Koszt wykończenia224273 zł
- Koszt instalacji71418 zł
Zawartość projektu
W komplecie nowej wersji dokumentacji projektowej znajdują się 3 egzemplarze projektu architektoniczno-budowlanego oraz 3 egzemplarze projektu technicznego
Projekt architektoniczno-budowlany zawierający:
-opis architektoniczny z elementami konstrukcji,
-część rysunkowa: rzut parteru, poddasza/piętra, rzut dachu w skali 1:100, przekroje skala 1:50,
elewacje skala 1:100.
Projekt techniczny zawierający:
-opis techniczny i konstrukcyjny (obliczenia statyczne - w zależności od projektu włączone w projekt lub stanowiące odrębną teczkę).
Część rysunkowa architektura i konstrukcja:
-rzuty fundamentów, parteru, poddasza, stropu, więźby, dachu / w skali 1:50,
-przekroje przez budynek / budynek skali 1:50,
-elewacje budynku / w skali 1:50 (*niektóre projekty posiadają rysunki w skali 1:100 lub 1:75),
-zestawienie stolarki budowlanej okiennej i drzwiowej,
-szczegóły konstrukcji i ewentualne szczegóły budowlane,
Część instalacyjna:
-część opisowa do projektów instalacji elektrycznych, wodno-kanalizacyjnych, grzewczych, gazowych (jeśli występują).
Część rysunkowa do projektów instalacji:
-schematy instalacji elektrycznych, schemat rozdzielni, plan instalacji odgromowej,
-schematy instalacji wodno-kanalizacyjnej i ciepłej wody,
-schematy instalacji grzewczych,
-schemat instalacji gazowej (jeśli występują).
Do projektu dołączane jest zestawienie materiałowe, z wykazem elementów drewnianych oraz stali budowlanej.
Do projektu dołączone są kopie uprawnień wszystkich projektantów, oraz aktualne zaświadczenia o przynależności do izb zawodowych.
Projekt zawiera oświadczenie projektantów o poprawności projektu w świetle Prawa Budowlanego, a także zawiera informację dotyczącą bezpieczeństwa i ochrony zdrowia ( BIOZ).
Do projektu dołączona jest także zgoda na zmiany adaptacyjne. Zgoda dołączana jest do każdego projektu bezpłatnie. Na Państwa życzenie zakres zgody na zmiany możemy dowolnie rozszerzyć.
Pracownia zezwala na następujące zmiany i odstępstwa od projektu architektoniczno-budowlanego w trakcie jego przystosowywania do lokalizacji:
- Zmianę obrysu zewnętrznego ścian zewnętrznych.
- Zmianę obrysu wewnętrznego ścian zewnętrznych.
- Zmianę układu ścian wewnętrznych działowych.
- Zmianę funkcji, ilości i usytuowania poszczególnych pomieszczeń na dowolnej kondygnacji w projekcie.
- Zmianę ukształtowania, ilości i kąta nachylenia połaci dachowych.
- Zmianę ilości, umiejscowienia i wielkości otworów okiennych i drzwiowych.
- Zmianę rodzaju materiału i technologii wykonania ścian zewnętrznych oraz wewnętrznych oraz ścian fundamentowych.
- Zmianę rodzaju i technologii wykonania stropów nad dowolną kondygnacją.
- Zmianę umiejscowienia, kształtu i materiału wykonania schodów w budynku.
- Zmianę wielkości, kształtu i materiałów, bądź likwidacja: tarasów, podestów i balkonów.
- Likwidację lub dodanie dowolnej ilości:
- lukarn,
- wykuszy,
- podcieni,
- balkonów,
- loggii,
- kolumn,
- pilastrów,
- ganków,
- werand.
- Zmianę materiałów wykończeniowych, instalacyjnych, izolacyjnych.
- Zmianę rodzaju pokrycia dachowego.
- Doprojektowanie bądź likwidacja podpiwniczenia - częściowego lub całkowitego.
Dodatki
Bezpłatne dodatki
GratisZestaw umów
GratisZmiany w projekcie
PromocjaProjekt szamba szczelnego
GratisTablica budowy
GratisDziennik budowy
Płatne dodatki

Pakiet wentylacja mechaniczna i kominek DGP
550 zł

Kosztorys inwestorski
600 zł

Pakiet odkurzacz centralny
550 zł

Wersja elektroniczna projektu
600 zł

Pakiet instalacja solarna
550 zł

Pakiet ogrzewanie podłogowe
550 zł

Pakiet powietrzna pompa ciepła
550 zł

Pakiet płaszcz wodny
550 zł

Pakiet kotłownia na paliwo stałe
550 zł

Pakiet klimatyzacja w domu
550 zł

Projekt ogrodzenia
750 zł

Pakiet instalacja fotowoltaiczna
550 zł

Pakiet kominek z DGP
500 zł

Pakiet gruntowa pompa ciepła
550 zł

Projekt altan i grilów ogrodowych
850 zł

Dodatkowy egzemplarz do projektu
650 zł























