Projekt domu domek na Miodowej 68-3s (003 ET 68-3s)
- Typ projektuWolnostojący
- StylTradycyjny
- Powierzchnia użytkowa68.12 m²
- KondygnacjeParterowy
- GarażBez garażu
- DachCzterospadowy
- Odbicie lustrzaneTak
- Czas realizacji7 dni Zobacz więcej >
Opis
Zgodność z WT 2021 i Eurokodami
Ze względu na dostosowywanie projektu do standardu WT 2021, czas realizacji może się różnić od standardowego.
Skontaktuj się z nami aby poznać szczegóły dotyczące wybranego projektu.
Rzuty
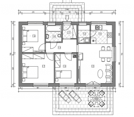
Rzut parteru
- 1.1 Przedsionek2.53
- 1.2 Spiżarnia i pralnia2.78
- 1.3 Komunikacja4.70
- 1.4 Aneks kuchenny5.56
- 1.5 Pokój dzienny18.60
- 1.6 Sypialnia 18.73
- 1.7 Sypialnia 213.07
- 1.8 Sypialnia 38.57
- 1.9 Łazienka3.58
Przekrój
Usytuowanie na działce
Dane techniczne
- Powierzchnia użytkowa68.12 m²
- Powierzchnia zabudowy87.78 m²
- Liczba łazienek1
- Liczba pokoi4
- Kubatura290.17 m³
- Długość domu7.66 m
- Szerokość domu11.46 m
- Wysokość domu5.85 m
- PoddaszeNie
- Minimalne wymiary działki18.46 x 15.66m
- GarażBez garażu
- Rodzaj dachuCzterospadowy
Instalacja grzewcza
- Instalacja opcjonalna
Zawartość projektu
Co zawiera projekt:
Projekt arch. - budowlany:
-część opisowa i rysunkowa:
- elewacje,
- rzuty,
- przekroje.
Projekt techniczny:
- konstrukcja:
- rzuty,
- przkroje,
- szczegóły konstrukcyjne
- zestawienie głównych materiałów konstr.
- założenia i wyniki obliczeń stat. – wytrz.
- instalacje: – schematy (z doborem urządzeń):
- ogrzewania,
- wentylacji,
- wody,
- kanalizacji,
- elektr.,
- dwie charakterystyki energetyczne dla dwóch źródeł ciepła.
Dodatki
Bezpłatne dodatki
GratisZestaw umów
GratisZmiany w projekcie
GratisTablica budowy
GratisDziennik budowy











