Projekt domu A-101 szkieletowy
Promocja ważna do
23-04-2026
- Typ projektuWolnostojący
- Powierzchnia użytkowa110.6 m²
- KondygnacjeParterowy, z poddaszem, z piwnicą
- GarażJednostanowiskowy
- Kąt nach. dachu40°
- Odbicie lustrzaneTak
- Czas realizacjido 10 dni roboczych Zobacz więcej >
Opis
Zgodność z WT 2021 i Eurokodami
Ze względu na dostosowywanie projektu do standardu WT 2021, czas realizacji może się różnić od standardowego.
Skontaktuj się z nami aby poznać szczegóły dotyczące wybranego projektu.
Opis projektu
Projekt domu A-101 „DOM KARSKA” – funkcjonalny dom rodzinny na wąską działkę Projekt A-101 „DOM KARSKA” to doskonała propozycja dla osób marzących o kameralnym domu parterowym z poddaszem mieszkalnym, który harmonijnie łączy tradycyjny styl z praktycznym układem wnętrz. Dzięki zwartej bryle i odpowiednio dobranemu dachowi projekt został stworzony z myślą o działkach o niewielkiej szerokości, gdzie liczy się każdy metr przestrzeni. Parter – serce życia rodzinnego Na parterze znajduje się otwarta strefa dzienna. Przestronny salon z kominkiem i dużymi przeszkleniami sprzyja rodzinnej atmosferze, a jadalnia połączona z kuchnią pozwala cieszyć się wspólnymi posiłkami. Dzięki wyjściu na ogród wnętrze domu płynnie łączy się z otoczeniem zewnętrznym, tworząc dodatkową przestrzeń do relaksu. Poddasze – prywatna strefa mieszkańców Na poddaszu użytkowym zaplanowano trzy komfortowe sypialnie, które zapewniają domownikom spokój i prywatność. Centralnym punktem tej kondygnacji jest łazienka, w której przewidziano miejsce na wannę oraz prysznic. Dzięki przemyślanym rozwiązaniom poddasze staje się wygodną i funkcjonalną przestrzenią do codziennego użytku. Garaż – wygoda na co dzień Integralną częścią projektu jest garaż jednostanowiskowy, połączony z bryłą budynku. To rozwiązanie nie tylko podnosi komfort życia, ale również pozwala zaoszczędzić przestrzeń na działce i zapewnia ochronę samochodu o każdej porze roku. Dom Karska – tradycja i funkcjonalność w kompaktowej formie Projekt domu A-101 „DOM KARSKA” to połączenie estetyki, komfortu i praktyczności. Niewielki, a jednocześnie dobrze zaplanowany, świetnie sprawdzi się jako dom rodzinny na wąską działkę. To idealna propozycja dla tych, którzy poszukują funkcjonalnego i przytulnego domu jednorodzinnego w klasycznej formie.Rzuty
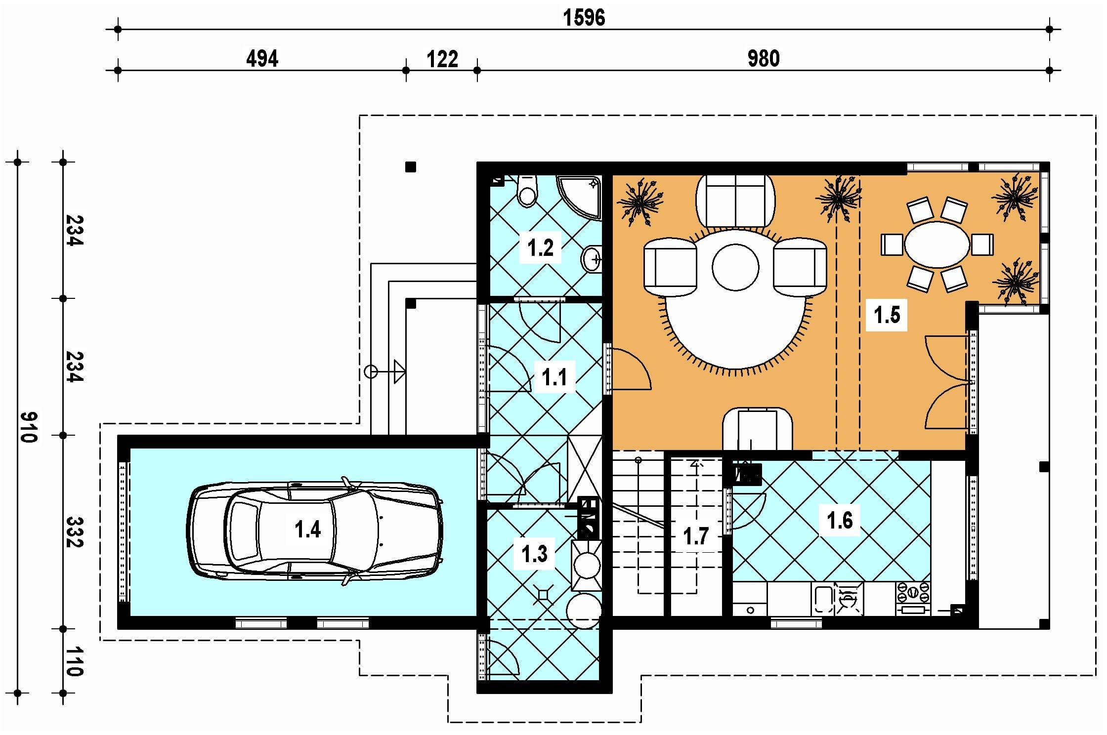
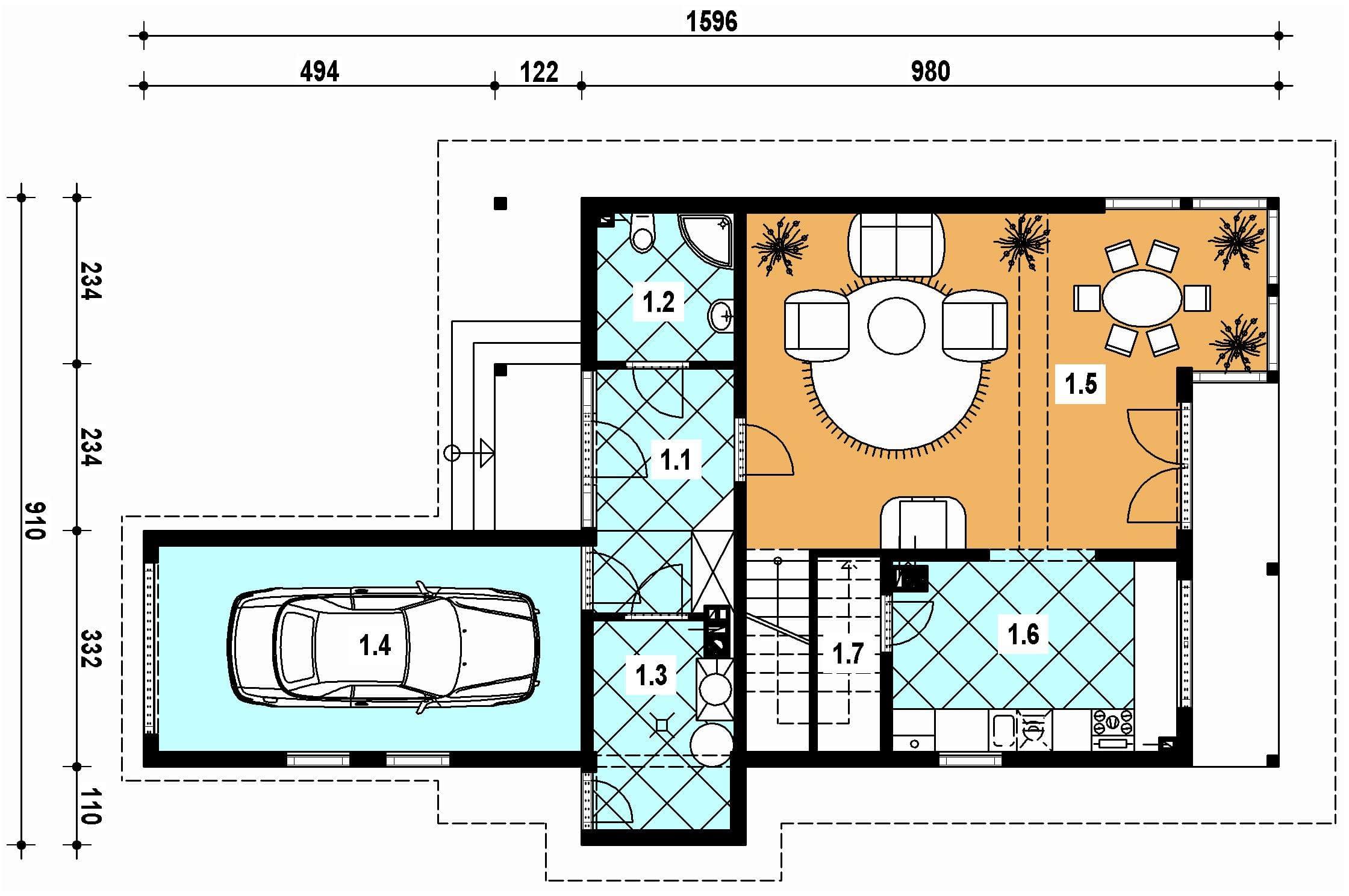
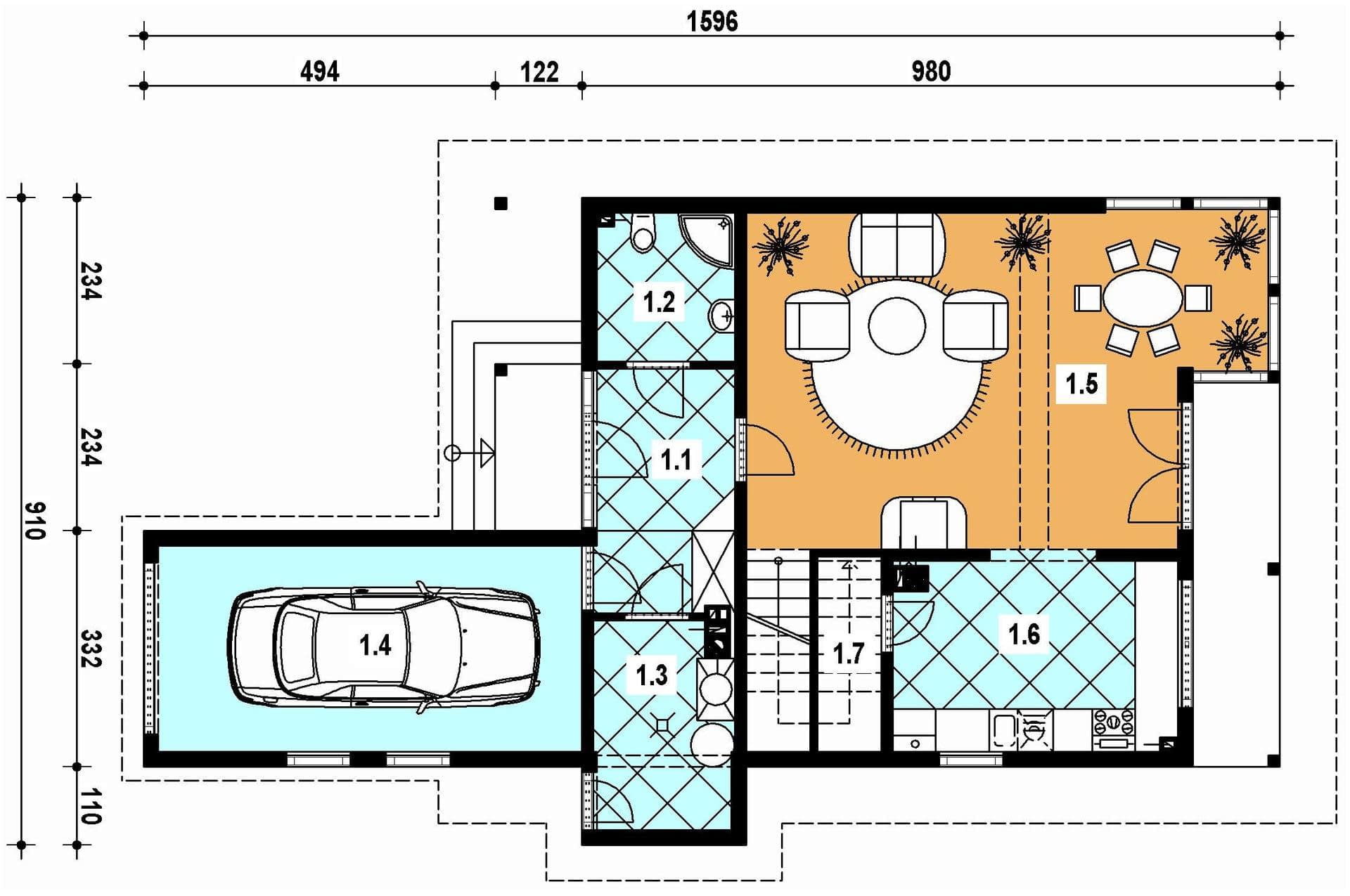
Parter
- wiatrołap 6.70 łazienka 4.00 kotłownia 5.50 garaż 0.00 pokój dzienny 31.60 kuchnia 10.50 klatka schodowa 1.200
Poddasze
Dane techniczne
- Powierzchnia użytkowa110.6 m²
- Powierzchnia zabudowy94.9 m²
- Kubatura552.2 m³
- Wysokość domu8.37 m
- Piwnicatak
- PoddaszeUżytkowe
- Minimalne wymiary działki17.5 x 24m
- GarażJednostanowiskowy
- Kąt nach. dachu40°
Zawartość projektu
Dokumentacja obejmuje 3 egzemplarze projektu architektoniczno-budowlanego oraz 3 teczki projektu technicznego.
Architektura
- Opis techniczny do części architektonicznej
- Część rysunkowa
- Zestawienie podstawowych materiałów
Konstrukcja
- Opis techniczny
- Obliczenia statyczne
- Schematy konstrukcyjne
Projekt wewnętrznej instalacji C.O.; WOD-KAN; GAZ
- Opis techniczny instalacji
- Zestawienie podstawowych materiałów
- Część rysunkowa
Projekt elektrycznych instalacji wewnętrznych
- Opis techniczny
- Część rysunkowa
Projektant dokonujący adaptacji projektu gotowego może wprowadzić w nim następujący zakres zmian bez naruszenia praw autorskich firmy:
- Zaprojektować użycie innych materiałów budowlanych na konstrukcję budynku {ściany i stropy} pod warunkiem zachowania wymagań konstrukcji i ochrony cieplnej budynku oraz jego elewacji.
- Wprowadzić zmiany w usytuowaniu niekonstrukcyjnych ścianek działowych i otworów drzwiowych wewnątrz domu.
- Wprowadzić zmiany materiałów wykończeniowych na zewnątrz oraz wewnątrz domu.
- Wprowadzić zmiany usytuowania i rodzaju armatury sanitarnej i instalacji elektrycznej.
- Wprowadzić częściowe lub całkowite podpiwniczenie budynku przy zachowaniu poziomu posadzki parteru na wysokości nie przekraczającej 60 cm ponad poziom terenu projektowanego.
- Przesuwać okna na elewacji pod warunkiem zachowania prawidłowej kompozycji elewacji polegające na zachowaniu wspólnej linii usytuowania okien nad sobą lub obok siebie.
- Projekt powiększenia lub zmniejszenia garażu może być wykonany przez projektanta adaptującego w zakresie adaptacji projektu gotowego do konkretnej działki budowlanej.
Wprowadzenie innych zmian do projektu wymaga uzyskania pisemnej zgody autora projektu, która jest wystawiana po uprzednim zgłoszeniu inwestora. Wszelkie zmiany należy nanieść na projekcie w kolorze czerwonym trwałą i czytelną techniką (lub wykonać rysunki zamienne)
Uwaga: Istnieje możliwość zakupu dodatkowego egzemplarza projektu.
Dodatki
Bezpłatne dodatki
GratisZestaw umów
GratisZmiany w projekcie
GratisTablica budowy
GratisDziennik budowy













