Projekt domu A-113 szkieletowy
Promocja ważna do
06-12-2025
- Typ projektuWolnostojący
- Powierzchnia użytkowa102.9 m²
- KondygnacjeParterowy, z poddaszem, z piwnicą
- GarażBez garażu
- Kąt nach. dachu40°
- Odbicie lustrzaneTak
- Czas realizacjido 10 dni roboczych Zobacz więcej >
Opis
Zgodność z WT 2021 i Eurokodami
Ze względu na dostosowywanie projektu do standardu WT 2021, czas realizacji może się różnić od standardowego.
Skontaktuj się z nami aby poznać szczegóły dotyczące wybranego projektu.
Opis projektu
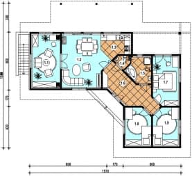
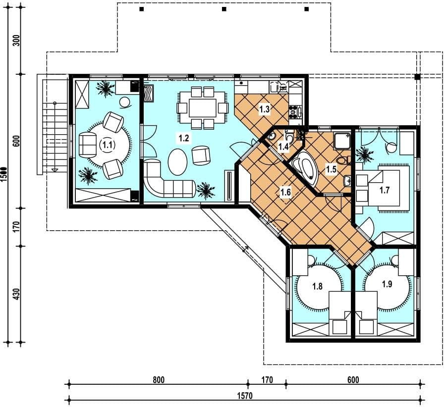
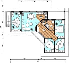
Projekt domu szkieletowego A-113 „DOM OLCHOWA” – elegancki parterowy dom w stylu dworku. Dom szkieletowy A-113 „DOM OLCHOWA” to projekt, który łączy styl polskiego dworku z nowoczesną technologią budowy. Parterowy budynek jednorodzinny w kształcie litery L został zaprojektowany tak, aby zapewnić funkcjonalność, energooszczędność i elegancję w jednym. Architektura domu szkieletowego Dom wyróżnia się klasyczną bryłą inspirowaną stylem dworkowym. Układ w kształcie litery L pozwala oddzielić strefę dzienną od prywatnej, Dwuspadowy dach dodaje budynkowi tradycyjnego uroku, Jasne elewacje można urozmaicić drewnianymi akcentami lub kamieniem. Układ pomieszczeń – komfort i funkcjonalność Dom zaplanowano jako parterowy, podpiwniczony, co czyni go jeszcze bardziej praktycznym: Parter: przestronny salon, oddzielna kuchnia, 5 pokoi, łazienki i pomieszczenia gospodarcze. Piwnica: miejsce na kotłownię, pralnię, spiżarnię czy przestrzeń rekreacyjną. Zalety domu szkieletowego A-113 „DOM OLCHOWA” Szybka budowa – technologia szkieletowa pozwala postawić dom w kilka miesięcy, Energooszczędność – świetna izolacja i niższe rachunki za ogrzewanie, Nowoczesna funkcjonalność – 5 pokoi, kuchnia i duży salon, Styl dworkowy – elegancki wygląd, który nadaje domowi prestiżowego charakteru. Projekt domu szkieletowego A-113 „DOM OLCHOWA” to propozycja dla osób, które chcą połączyć tradycyjny styl polskiego dworku z nowoczesną i ekonomiczną technologią szkieletową. To elegancki i funkcjonalny dom dla całej rodziny.Rzuty
Piwnica
Parter
Dane techniczne
- Powierzchnia użytkowa102.9 m²
- Powierzchnia zabudowy119.9 m²
- Kubatura688 m³
- Wysokość domu6.41 m
- Piwnicatak
- PoddaszeUżytkowe
- Minimalne wymiary działki24 x 23m
- GarażBez garażu
- Kąt nach. dachu40°
Zawartość projektu
Dokumentacja obejmuje 3 egzemplarze projektu architektoniczno-budowlanego oraz 3 teczki projektu technicznego.
Architektura
- Opis techniczny do części architektonicznej
- Część rysunkowa
- Zestawienie podstawowych materiałów
Konstrukcja
- Opis techniczny
- Obliczenia statyczne
- Schematy konstrukcyjne
Projekt wewnętrznej instalacji C.O.; WOD-KAN; GAZ
- Opis techniczny instalacji
- Zestawienie podstawowych materiałów
- Część rysunkowa
Projekt elektrycznych instalacji wewnętrznych
- Opis techniczny
- Część rysunkowa
Projektant dokonujący adaptacji projektu gotowego może wprowadzić w nim następujący zakres zmian bez naruszenia praw autorskich firmy:
- Zaprojektować użycie innych materiałów budowlanych na konstrukcję budynku {ściany i stropy} pod warunkiem zachowania wymagań konstrukcji i ochrony cieplnej budynku oraz jego elewacji.
- Wprowadzić zmiany w usytuowaniu niekonstrukcyjnych ścianek działowych i otworów drzwiowych wewnątrz domu.
- Wprowadzić zmiany materiałów wykończeniowych na zewnątrz oraz wewnątrz domu.
- Wprowadzić zmiany usytuowania i rodzaju armatury sanitarnej i instalacji elektrycznej.
- Wprowadzić częściowe lub całkowite podpiwniczenie budynku przy zachowaniu poziomu posadzki parteru na wysokości nie przekraczającej 60 cm ponad poziom terenu projektowanego.
- Przesuwać okna na elewacji pod warunkiem zachowania prawidłowej kompozycji elewacji polegające na zachowaniu wspólnej linii usytuowania okien nad sobą lub obok siebie.
- Projekt powiększenia lub zmniejszenia garażu może być wykonany przez projektanta adaptującego w zakresie adaptacji projektu gotowego do konkretnej działki budowlanej.
Wprowadzenie innych zmian do projektu wymaga uzyskania pisemnej zgody autora projektu, która jest wystawiana po uprzednim zgłoszeniu inwestora. Wszelkie zmiany należy nanieść na projekcie w kolorze czerwonym trwałą i czytelną techniką (lub wykonać rysunki zamienne)
Uwaga: Istnieje możliwość zakupu dodatkowego egzemplarza projektu.
Dodatki
Bezpłatne dodatki
GratisZestaw umów
GratisZmiany w projekcie
GratisTablica budowy
GratisDziennik budowy














