Projekt domu A-109 z bali
Promocja ważna do
23-04-2026
- Typ projektuWolnostojący
- Powierzchnia użytkowa158.3 m²
- KondygnacjeParterowy, z poddaszem, z piwnicą
- GarażBez garażu
- Kąt nach. dachu40°
- Odbicie lustrzaneTak
- Czas realizacjido 10 dni roboczych Zobacz więcej >
Opis
Zgodność z WT 2021 i Eurokodami
Ze względu na dostosowywanie projektu do standardu WT 2021, czas realizacji może się różnić od standardowego.
Skontaktuj się z nami aby poznać szczegóły dotyczące wybranego projektu.
Opis projektu
Projekt domu z bali A-109 „DOM WIĄZOWA” – nowoczesny dom z naturalnym klimatem A-109 „DOM WIĄZOWA” w technologii z bali to projekt domu jednorodzinnego, który łączy nowoczesną architekturę z tradycją drewnianego budownictwa. To budynek parterowy z poddaszem mieszkalnym, zaprojektowany z myślą o rodzinach ceniących wygodę, ekologię i wyjątkowy klimat naturalnego drewna. Architektura i elewacja – drewno i nowoczesność. Budynek zaprojektowano na planie prostokąta, z eleganckim dachem dwuspadowym. Elewacje to efektowne połączenie bali drewnianych i nowoczesnej blachy na rąbek, które nadają bryle unikatowego charakteru. Pergole wokół domu dodają mu nowoczesności, a jednocześnie tworzą przyjemną przestrzeń wypoczynkową i praktyczną wiatę garażową. Układ funkcjonalny domu z bali: Parter – otwarta przestrzeń dzienna: przestronny salon z centralnie umieszczonym kominkiem, jadalnia i otwarta kuchnia, miejsce do wspólnego spędzania czasu i relaksu, pergola jako taras rekreacyjny i wiata na samochód. Poddasze – strefa nocna: trzy wygodne sypialnie, funkcjonalna łazienka, garderoba i hall komunikacyjny. Atuty domu z bali A-109 „DOM WIĄZOWA”: naturalny mikroklimat sprzyjający zdrowiu mieszkańców, nowoczesne połączenie drewna i blachy na rąbek w elewacji, pergole jako przestrzeń rekreacyjna i praktyczna wiata garażowa, otwarta przestrzeń dzienna i trzy komfortowe sypialnie. Dom z bali A-109 „DOM WIĄZOWA” to idealny wybór dla osób, które marzą o nowoczesnym, a zarazem naturalnym domu. Drewno tworzy przyjazny mikroklimat, a elegancka forma i pergole wokół domu czynią go nie tylko funkcjonalnym, ale także wyjątkowo estetycznym.Rzuty
Parter
- pokój dzienny 43.10 kuchnia 11.70 hall 10.90 spiżarka 1.70 wiatrołap 5.00 łazienka 5.00 sauna 4.70 pom. gospodarcze 4.00 garderoba 4.400
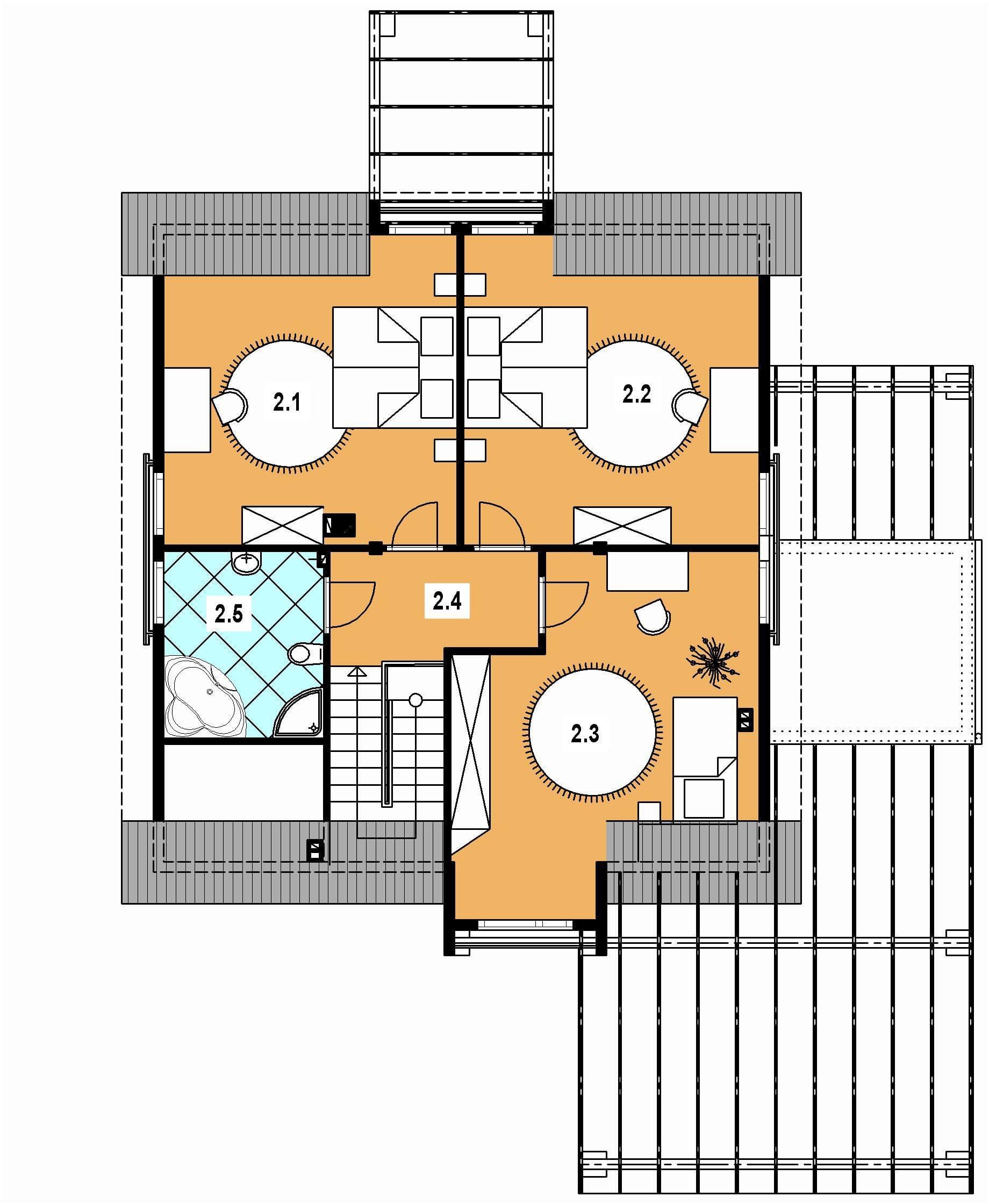
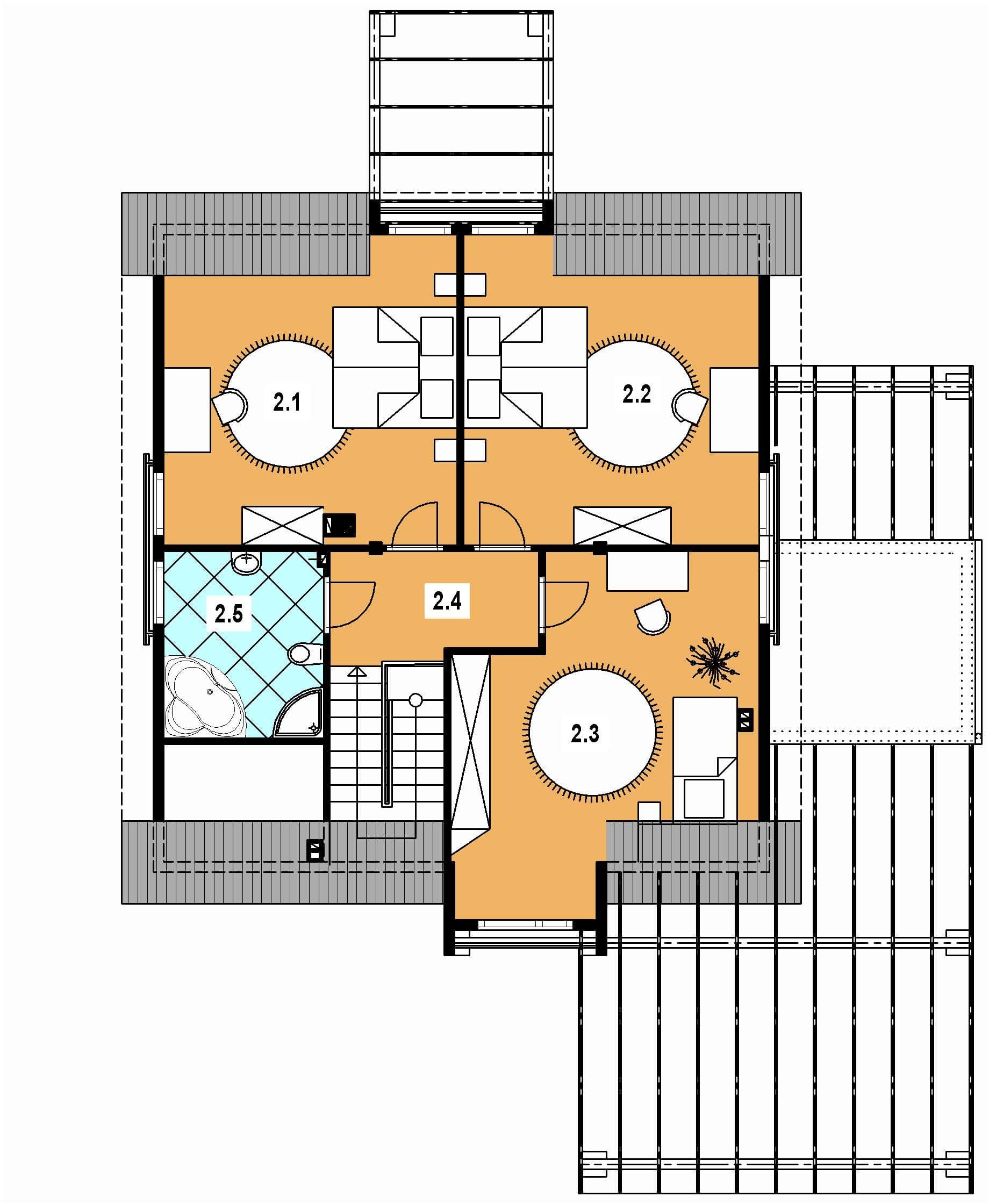
Poddasze
Dane techniczne
- Powierzchnia użytkowa158.3 m²
- Powierzchnia zabudowy112.6 m²
- Kubatura806.2 m³
- Wysokość domu8.2 m
- Piwnicatak
- PoddaszeUżytkowe
- Minimalne wymiary działki21 x 26.5m
- GarażBez garażu
- Kąt nach. dachu40°
Zawartość projektu
Dokumentacja obejmuje 3 egzemplarze projektu architektoniczno-budowlanego oraz 3 teczki projektu technicznego.
Architektura
- Opis techniczny do części architektonicznej
- Część rysunkowa
- Zestawienie podstawowych materiałów
Konstrukcja
- Opis techniczny
- Obliczenia statyczne
- Schematy konstrukcyjne
Projekt wewnętrznej instalacji C.O.; WOD-KAN; GAZ
- Opis techniczny instalacji
- Zestawienie podstawowych materiałów
- Część rysunkowa
Projekt elektrycznych instalacji wewnętrznych
- Opis techniczny
- Część rysunkowa
Projektant dokonujący adaptacji projektu gotowego może wprowadzić w nim następujący zakres zmian bez naruszenia praw autorskich firmy:
- Zaprojektować użycie innych materiałów budowlanych na konstrukcję budynku {ściany i stropy} pod warunkiem zachowania wymagań konstrukcji i ochrony cieplnej budynku oraz jego elewacji.
- Wprowadzić zmiany w usytuowaniu niekonstrukcyjnych ścianek działowych i otworów drzwiowych wewnątrz domu.
- Wprowadzić zmiany materiałów wykończeniowych na zewnątrz oraz wewnątrz domu.
- Wprowadzić zmiany usytuowania i rodzaju armatury sanitarnej i instalacji elektrycznej.
- Wprowadzić częściowe lub całkowite podpiwniczenie budynku przy zachowaniu poziomu posadzki parteru na wysokości nie przekraczającej 60 cm ponad poziom terenu projektowanego.
- Przesuwać okna na elewacji pod warunkiem zachowania prawidłowej kompozycji elewacji polegające na zachowaniu wspólnej linii usytuowania okien nad sobą lub obok siebie.
- Projekt powiększenia lub zmniejszenia garażu może być wykonany przez projektanta adaptującego w zakresie adaptacji projektu gotowego do konkretnej działki budowlanej.
Wprowadzenie innych zmian do projektu wymaga uzyskania pisemnej zgody autora projektu, która jest wystawiana po uprzednim zgłoszeniu inwestora. Wszelkie zmiany należy nanieść na projekcie w kolorze czerwonym trwałą i czytelną techniką (lub wykonać rysunki zamienne)
Uwaga: Istnieje możliwość zakupu dodatkowego egzemplarza projektu.
Dodatki
Bezpłatne dodatki
GratisZestaw umów
GratisZmiany w projekcie
GratisTablica budowy
GratisDziennik budowy














