Projekt domu A-113 z bali
Promocja ważna do
23-04-2026
- Typ projektuWolnostojący
- Powierzchnia użytkowa99.8 m²
- KondygnacjeParterowy, z poddaszem, z piwnicą
- GarażBez garażu
- Kąt nach. dachu40°
- Odbicie lustrzaneTak
- Czas realizacjido 10 dni roboczych Zobacz więcej >
Opis
Zgodność z WT 2021 i Eurokodami
Ze względu na dostosowywanie projektu do standardu WT 2021, czas realizacji może się różnić od standardowego.
Skontaktuj się z nami aby poznać szczegóły dotyczące wybranego projektu.
Opis projektu
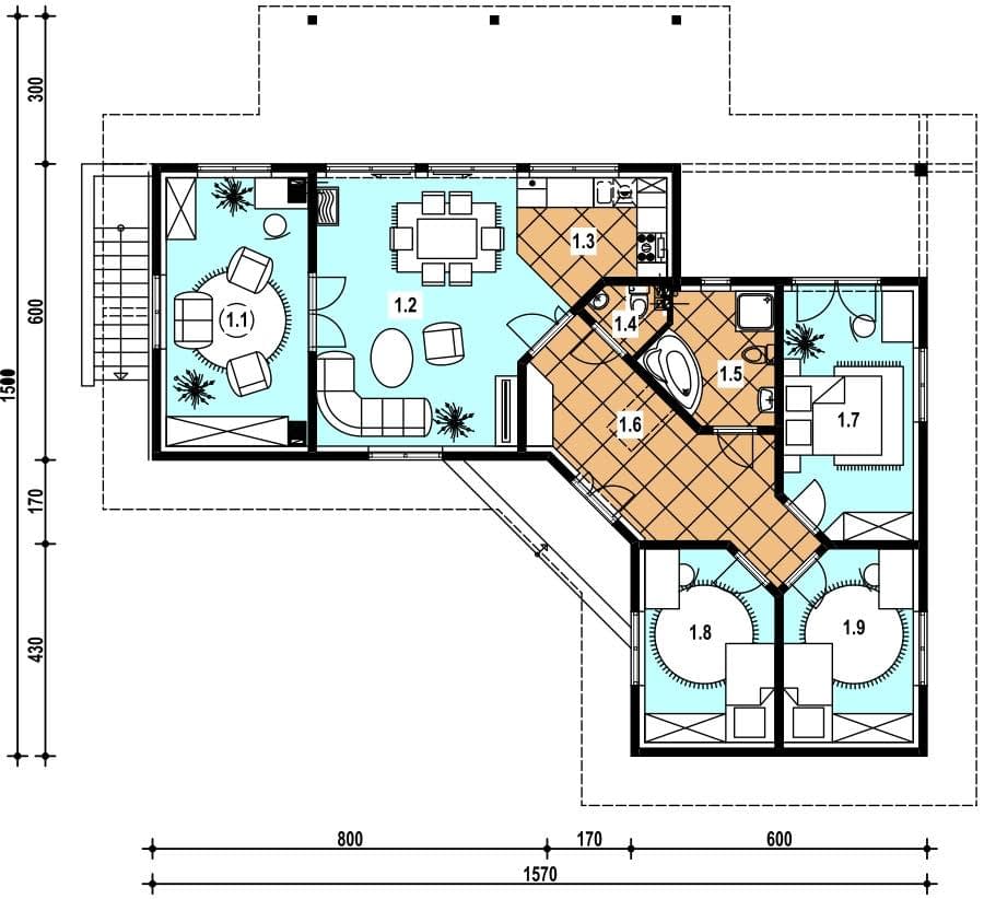
Projekt domu z bali A-113 „DOM OLCHOWA” – parterowy dom w stylu dworkowym. Dom z bali A-113 „DOM OLCHOWA” to propozycja dla osób ceniących połączenie tradycji z elegancją. Parterowy budynek jednorodzinny w kształcie litery L został zaprojektowany w klimacie polskiego dworku, a dzięki zastosowaniu naturalnych bali zyskał niepowtarzalny charakter i wyjątkowy mikroklimat wnętrza. Architektura i styl domu z bali Dom w kształcie litery L nawiązuje do klasycznej architektury dworskiej – symetrycznej i eleganckiej, a jednocześnie funkcjonalnej. Konstrukcja z bali podkreśla naturalne piękno drewna, Dwuspadowy dach nadaje bryle tradycyjnego wyglądu, Układ w kształcie litery L pozwala na stworzenie przytulnego ogrodu od strony tarasu. Układ pomieszczeń – przestrzeń dla całej rodziny Budynek został zaprojektowany jako parterowy, podpiwniczony, co pozwala na lepsze wykorzystanie przestrzeni: Parter: 5 pokoi, przestronny salon, wydzielona kuchnia w części dziennej, łazienki i pomieszczenia gospodarcze. Piwnica: dodatkowa przestrzeń użytkowa – idealna na kotłownię, spiżarnię lub domową siłownię. Atuty domu z bali A-113 „DOM OLCHOWA” Zdrowy mikroklimat – bale regulują wilgotność i zapewniają świeże powietrze. Energooszczędność – naturalne drewno gwarantuje świetną izolację cieplną. Elegancja i tradycja – architektura w stylu dworkowym nadaje domowi prestiżowego wyglądu. Funkcjonalność – 5 pokoi, kuchnia i piwnica zapewniają komfort nawet dużej rodzinie. Projekt domu z bali A-113 „DOM OLCHOWA” to idealna propozycja dla tych, którzy marzą o naturalnym, eleganckim i przestronnym domu w stylu dworkowym. To inwestycja łącząca tradycję polskiej architektury z zaletami budownictwa drewnianego.Rzuty
Piwnica
Parter
Dane techniczne
- Powierzchnia użytkowa99.8 m²
- Powierzchnia zabudowy119.9 m²
- Kubatura688 m³
- Wysokość domu6.41 m
- Piwnicatak
- PoddaszeUżytkowe
- Minimalne wymiary działki24 x 23m
- GarażBez garażu
- Kąt nach. dachu40°
Zawartość projektu
Dokumentacja obejmuje 3 egzemplarze projektu architektoniczno-budowlanego oraz 3 teczki projektu technicznego.
Architektura
- Opis techniczny do części architektonicznej
- Część rysunkowa
- Zestawienie podstawowych materiałów
Konstrukcja
- Opis techniczny
- Obliczenia statyczne
- Schematy konstrukcyjne
Projekt wewnętrznej instalacji C.O.; WOD-KAN; GAZ
- Opis techniczny instalacji
- Zestawienie podstawowych materiałów
- Część rysunkowa
Projekt elektrycznych instalacji wewnętrznych
- Opis techniczny
- Część rysunkowa
Projektant dokonujący adaptacji projektu gotowego może wprowadzić w nim następujący zakres zmian bez naruszenia praw autorskich firmy:
- Zaprojektować użycie innych materiałów budowlanych na konstrukcję budynku {ściany i stropy} pod warunkiem zachowania wymagań konstrukcji i ochrony cieplnej budynku oraz jego elewacji.
- Wprowadzić zmiany w usytuowaniu niekonstrukcyjnych ścianek działowych i otworów drzwiowych wewnątrz domu.
- Wprowadzić zmiany materiałów wykończeniowych na zewnątrz oraz wewnątrz domu.
- Wprowadzić zmiany usytuowania i rodzaju armatury sanitarnej i instalacji elektrycznej.
- Wprowadzić częściowe lub całkowite podpiwniczenie budynku przy zachowaniu poziomu posadzki parteru na wysokości nie przekraczającej 60 cm ponad poziom terenu projektowanego.
- Przesuwać okna na elewacji pod warunkiem zachowania prawidłowej kompozycji elewacji polegające na zachowaniu wspólnej linii usytuowania okien nad sobą lub obok siebie.
- Projekt powiększenia lub zmniejszenia garażu może być wykonany przez projektanta adaptującego w zakresie adaptacji projektu gotowego do konkretnej działki budowlanej.
Wprowadzenie innych zmian do projektu wymaga uzyskania pisemnej zgody autora projektu, która jest wystawiana po uprzednim zgłoszeniu inwestora. Wszelkie zmiany należy nanieść na projekcie w kolorze czerwonym trwałą i czytelną techniką (lub wykonać rysunki zamienne)
Uwaga: Istnieje możliwość zakupu dodatkowego egzemplarza projektu.
Dodatki
Bezpłatne dodatki
GratisZestaw umów
GratisZmiany w projekcie
GratisTablica budowy
GratisDziennik budowy














