Projekt domu A-154 szkieletowy
Promocja ważna do
23-04-2026
- Typ projektuWolnostojący
- Powierzchnia użytkowa113.6 m²
- KondygnacjeParterowy, z poddaszem, z piwnicą
- GarażBez garażu
- Kąt nach. dachu42°
- Odbicie lustrzaneTak
- Czas realizacjido 10 dni roboczych Zobacz więcej >
Opis
Zgodność z WT 2021 i Eurokodami
Ze względu na dostosowywanie projektu do standardu WT 2021, czas realizacji może się różnić od standardowego.
Skontaktuj się z nami aby poznać szczegóły dotyczące wybranego projektu.
Opis projektu
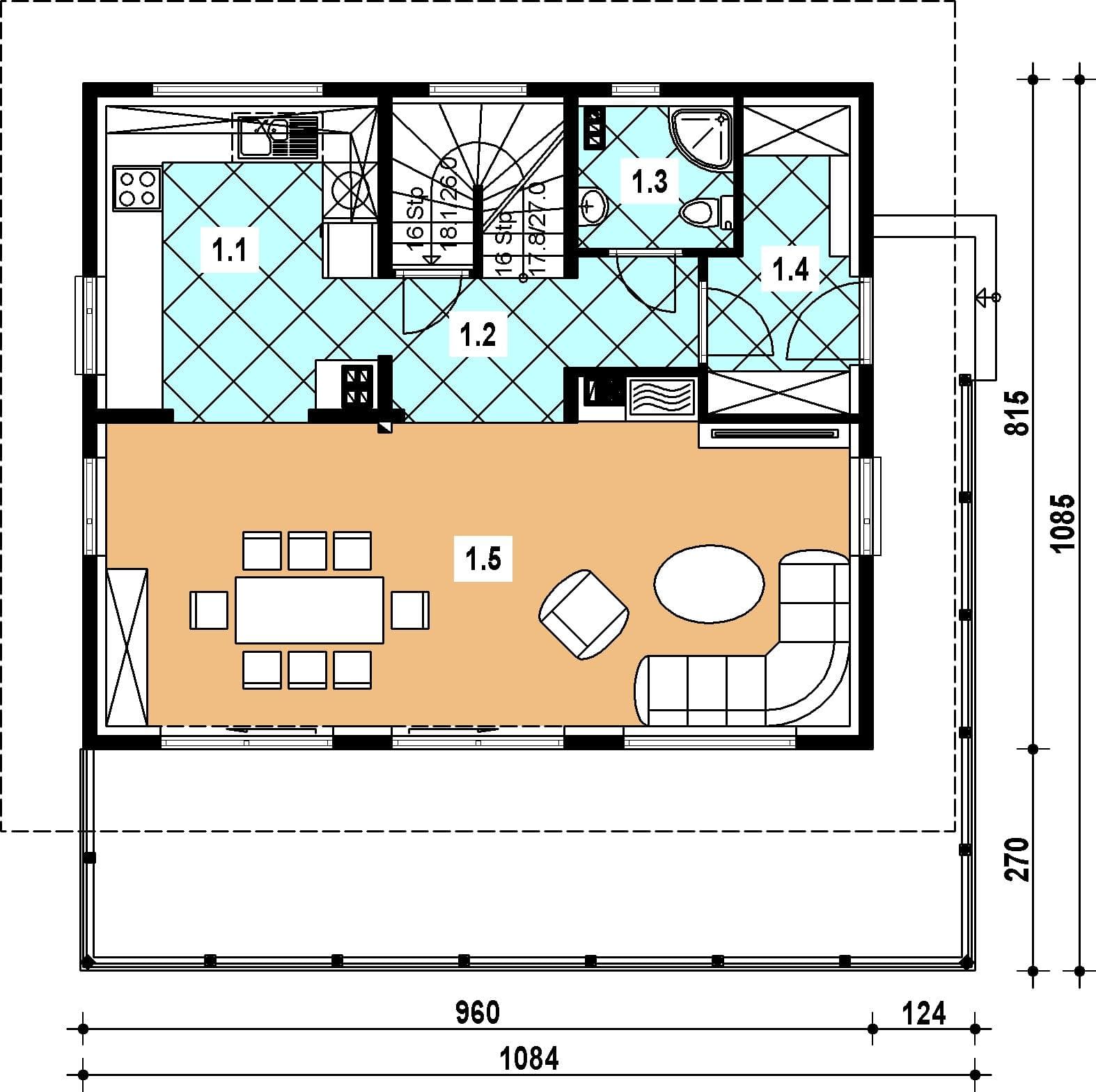
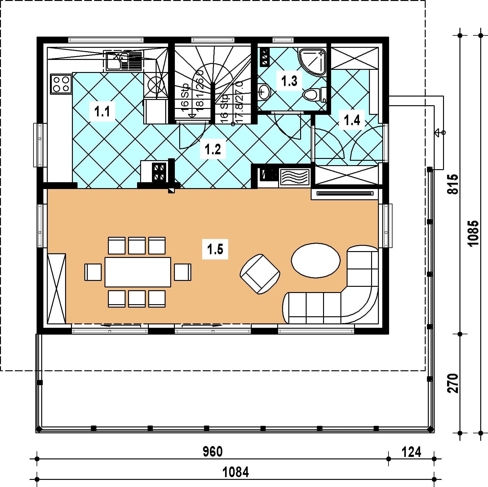
Projekt domu obejmuje dwa całkowicie niezależne lokale mieszkalne. Pierwsze mieszkanie znajduje się na parterze i poddaszu, natomiast drugie zostało zaprojektowane w przyziemiu. Dzięki takiemu układowi budynek może pełnić funkcję zarówno domu całorocznego, jak i komfortowego domu letniskowego. Budynek usytuowany jest na działce z dużym spadkiem terenu, co umożliwia podziwianie pięknych widoków z tarasu oraz z przestronnego, przeszklonego salonu połączonego z jadalnią. Dom zaprojektowano jako obiekt wolnostojący, parterowy, z użytkowym poddaszem i dachem dwuspadowym o kącie nachylenia 42°. Parter stanowi strefę dzienną – z wiatrołapu prowadzi wejście do hallu, z którego dostępny jest salon z miejscem na kominek i wyjściem na taras, kuchnia, łazienka oraz schody na poddasze. Na poddaszu zaplanowano część nocną: trzy sypialnie i łazienkę. W piwnicy mieści się drugi lokal mieszkalny z własnym pokojem dziennym, sypialnią, aneksem kuchennym i łazienką. Mieszkanie w przyziemiu ma także dodatkowe połączenie z parterem poprzez wewnętrzną klatkę schodową. Dom przewidziano w technologii z bala, co sprawia, że jest wyjątkowo przyjazny dla mieszkańców i w pełni wpisuje się w charakter budownictwa energooszczędnego.Rzuty
Poddasze
Parter
Dane techniczne
- Powierzchnia użytkowa113.6 m²
- Powierzchnia zabudowy83.2 m²
- Kubatura671 m³
- Wysokość domu7.88 m
- Piwnicatak
- PoddaszeUżytkowe
- Minimalne wymiary działki16.5 x 18m
- GarażBez garażu
- Kąt nach. dachu42°
Zawartość projektu
Dokumentacja obejmuje 3 egzemplarze projektu architektoniczno-budowlanego oraz 3 teczki projektu technicznego.
Architektura
- Opis techniczny do części architektonicznej
- Część rysunkowa
- Zestawienie podstawowych materiałów
Konstrukcja
- Opis techniczny
- Obliczenia statyczne
- Schematy konstrukcyjne
Projekt wewnętrznej instalacji C.O.; WOD-KAN; GAZ
- Opis techniczny instalacji
- Zestawienie podstawowych materiałów
- Część rysunkowa
Projekt elektrycznych instalacji wewnętrznych
- Opis techniczny
- Część rysunkowa
Projektant dokonujący adaptacji projektu gotowego może wprowadzić w nim następujący zakres zmian bez naruszenia praw autorskich firmy:
- Zaprojektować użycie innych materiałów budowlanych na konstrukcję budynku {ściany i stropy} pod warunkiem zachowania wymagań konstrukcji i ochrony cieplnej budynku oraz jego elewacji.
- Wprowadzić zmiany w usytuowaniu niekonstrukcyjnych ścianek działowych i otworów drzwiowych wewnątrz domu.
- Wprowadzić zmiany materiałów wykończeniowych na zewnątrz oraz wewnątrz domu.
- Wprowadzić zmiany usytuowania i rodzaju armatury sanitarnej i instalacji elektrycznej.
- Wprowadzić częściowe lub całkowite podpiwniczenie budynku przy zachowaniu poziomu posadzki parteru na wysokości nie przekraczającej 60 cm ponad poziom terenu projektowanego.
- Przesuwać okna na elewacji pod warunkiem zachowania prawidłowej kompozycji elewacji polegające na zachowaniu wspólnej linii usytuowania okien nad sobą lub obok siebie.
- Projekt powiększenia lub zmniejszenia garażu może być wykonany przez projektanta adaptującego w zakresie adaptacji projektu gotowego do konkretnej działki budowlanej.
Wprowadzenie innych zmian do projektu wymaga uzyskania pisemnej zgody autora projektu, która jest wystawiana po uprzednim zgłoszeniu inwestora. Wszelkie zmiany należy nanieść na projekcie w kolorze czerwonym trwałą i czytelną techniką (lub wykonać rysunki zamienne)
Uwaga: Istnieje możliwość zakupu dodatkowego egzemplarza projektu.
Dodatki
Bezpłatne dodatki
GratisZestaw umów
GratisZmiany w projekcie
GratisTablica budowy
GratisDziennik budowy













