Projekt domu A-154 z bali
Promocja ważna do
06-12-2025
- Typ projektuWolnostojący
- Powierzchnia użytkowa110.8 m²
- KondygnacjeParterowy, z poddaszem, z piwnicą
- GarażBez garażu
- Kąt nach. dachu42°
- Odbicie lustrzaneTak
- Czas realizacjido 10 dni roboczych Zobacz więcej >
Opis
Zgodność z WT 2021 i Eurokodami
Ze względu na dostosowywanie projektu do standardu WT 2021, czas realizacji może się różnić od standardowego.
Skontaktuj się z nami aby poznać szczegóły dotyczące wybranego projektu.
Opis projektu
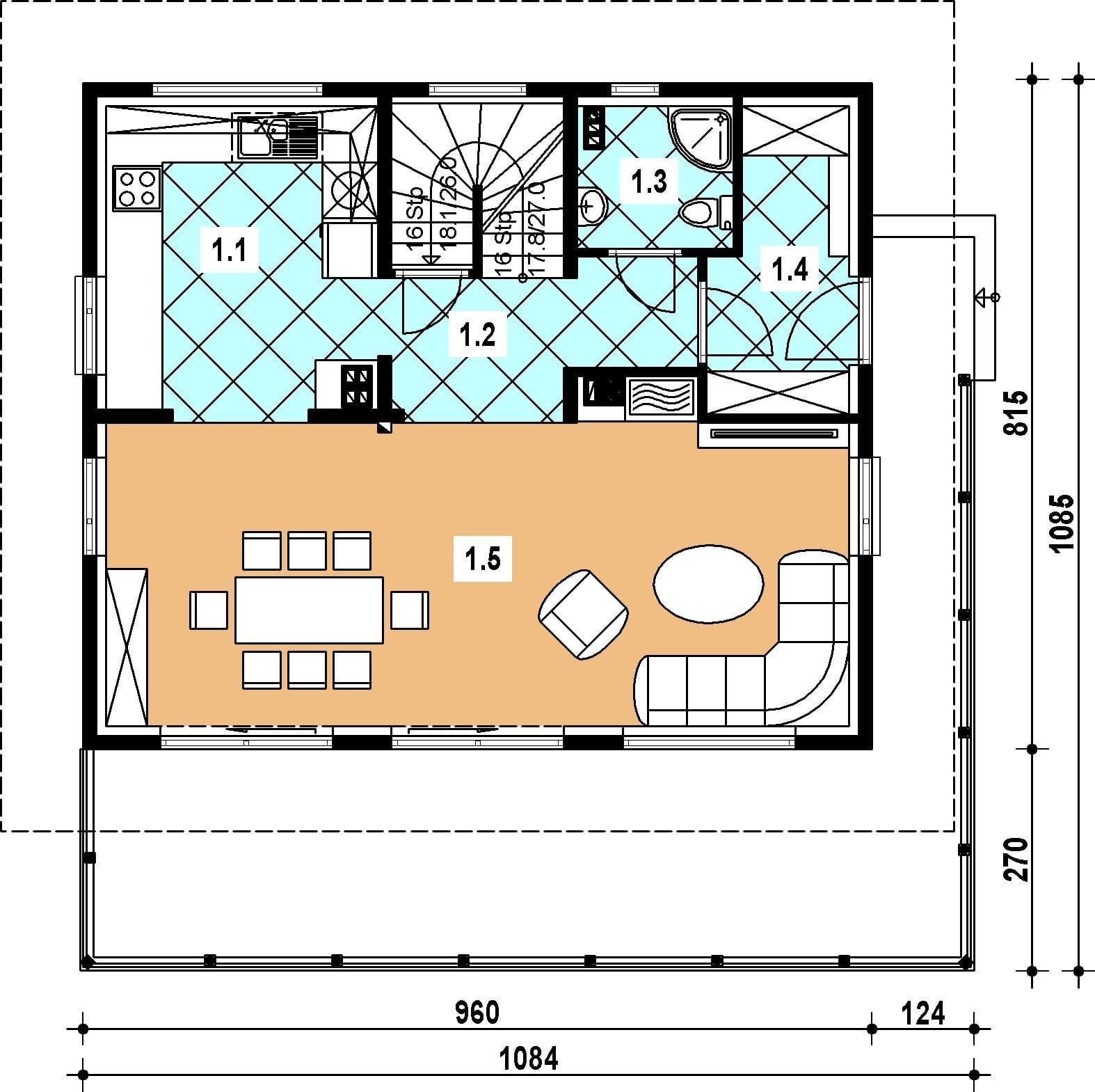
Nowoczesny projekt domu z bali oferuje dwa niezależne mieszkania – jedno rozmieszczone na parterze i poddaszu, a drugie w przyziemiu. Takie rozwiązanie pozwala na wygodne użytkowanie budynku zarówno jako domu jednorodzinnego z dodatkowym apartamentem, jak i jako obiektu wakacyjnego na wynajem. Dom zaplanowano na działce ze spadkiem, dzięki czemu taras oraz przeszklony salon z jadalnią zapewniają panoramiczny widok na otoczenie. Jest to budynek wolnostojący, parterowy, z poddaszem użytkowym i dachem dwuspadowym o kącie nachylenia 42°. Na parterze znajduje się część dzienna – hall łączący wszystkie pomieszczenia, przestronny salon z kominkiem i wyjściem na taras, kuchnia, łazienka oraz schody prowadzące na poddasze. Strefę nocną na poddaszu tworzą trzy wygodne sypialnie oraz łazienka. Drugi lokal mieszkalny umieszczono w przyziemiu. Składa się on z pokoju dziennego, sypialni, aneksu kuchennego i łazienki. Co ważne, dostęp do tego mieszkania możliwy jest także z parteru dzięki wewnętrznej klatce schodowej. Dom z bali to rozwiązanie ekologiczne i zdrowe, które gwarantuje mieszkańcom przytulny klimat, wysoką izolacyjność cieplną i możliwość użytkowania budynku przez cały rokRzuty
Poddasze
Parter
Dane techniczne
- Powierzchnia użytkowa110.8 m²
- Powierzchnia zabudowy83.2 m²
- Kubatura671 m³
- Wysokość domu7.88 m
- Piwnicatak
- PoddaszeUżytkowe
- Minimalne wymiary działki16.5 x 18m
- GarażBez garażu
- Kąt nach. dachu42°
Zawartość projektu
Dokumentacja obejmuje 3 egzemplarze projektu architektoniczno-budowlanego oraz 3 teczki projektu technicznego.
Architektura
- Opis techniczny do części architektonicznej
- Część rysunkowa
- Zestawienie podstawowych materiałów
Konstrukcja
- Opis techniczny
- Obliczenia statyczne
- Schematy konstrukcyjne
Projekt wewnętrznej instalacji C.O.; WOD-KAN; GAZ
- Opis techniczny instalacji
- Zestawienie podstawowych materiałów
- Część rysunkowa
Projekt elektrycznych instalacji wewnętrznych
- Opis techniczny
- Część rysunkowa
Projektant dokonujący adaptacji projektu gotowego może wprowadzić w nim następujący zakres zmian bez naruszenia praw autorskich firmy:
- Zaprojektować użycie innych materiałów budowlanych na konstrukcję budynku {ściany i stropy} pod warunkiem zachowania wymagań konstrukcji i ochrony cieplnej budynku oraz jego elewacji.
- Wprowadzić zmiany w usytuowaniu niekonstrukcyjnych ścianek działowych i otworów drzwiowych wewnątrz domu.
- Wprowadzić zmiany materiałów wykończeniowych na zewnątrz oraz wewnątrz domu.
- Wprowadzić zmiany usytuowania i rodzaju armatury sanitarnej i instalacji elektrycznej.
- Wprowadzić częściowe lub całkowite podpiwniczenie budynku przy zachowaniu poziomu posadzki parteru na wysokości nie przekraczającej 60 cm ponad poziom terenu projektowanego.
- Przesuwać okna na elewacji pod warunkiem zachowania prawidłowej kompozycji elewacji polegające na zachowaniu wspólnej linii usytuowania okien nad sobą lub obok siebie.
- Projekt powiększenia lub zmniejszenia garażu może być wykonany przez projektanta adaptującego w zakresie adaptacji projektu gotowego do konkretnej działki budowlanej.
Wprowadzenie innych zmian do projektu wymaga uzyskania pisemnej zgody autora projektu, która jest wystawiana po uprzednim zgłoszeniu inwestora. Wszelkie zmiany należy nanieść na projekcie w kolorze czerwonym trwałą i czytelną techniką (lub wykonać rysunki zamienne)
Uwaga: Istnieje możliwość zakupu dodatkowego egzemplarza projektu.
Dodatki
Bezpłatne dodatki
GratisZestaw umów
GratisZmiany w projekcie
GratisTablica budowy
GratisDziennik budowy













