- Typ projektuWolnostojący
- Powierzchnia użytkowa107.1 m²
- Kondygnacje
- GarażJednostanowiskowy
- DachDwuspadowy
- Kąt nach. dachu35°
- Odbicie lustrzaneTak
- Czas realizacjimax. czas realizacji 10 dni Zobacz więcej >
Opis
Zgodność z WT 2021 i Eurokodami
Ze względu na dostosowywanie projektu do standardu WT 2021, czas realizacji może się różnić od standardowego.
Skontaktuj się z nami aby poznać szczegóły dotyczące wybranego projektu.
Opis projektu
Projekt domu Aksel jest ciekawą propozycją dl a osób poszukujących domu z dwuspadowym dachem o tradycyjnej i nieskomplikowanej bryle. Dom został zaprojektowany z myślą o 4-5 osobowej rodzinie. Zwarta bryła i dwuspadowy dach obniżają koszty budowy i eksploatacji budynku. Na parterze domu znajduje się salon połączony z jadalnią i kuchnią, schowek umieszony pod schodami, łazienka oraz pokój, który może służyć także jako gabinet. Salon posiada kominek oraz wyjście na taras. Z wiatrołapu dostępny jest garaż, który prowadzi do kotłowni. Kotłownia ze względu na swoje wymiary umożliwia instalację pieca na paliwo stało. Na poddaszu ulokowano część nocną, w której skład wchodzi łazienka, schowek i trzy sypialnie, gdzie każda z nich ma własną garderobę oraz wyjście na balkon.
Konstrukcja
fundamenty: betonowe
ściany zewnętrzne: porotherm 25cm+styropian termo organika
rodzaj stropu: teriva i
elewacje: tynk strukturalny
pokrycie dachu: dachówka cem. lub cer.
Rzuty
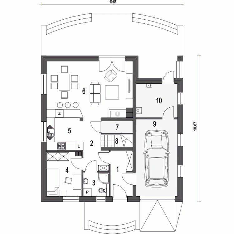
Parter
- m²
- 1. Wiatrołap5.4
- 2. Hol6
- 3. Łazienka3.3
- 4. Pokój8.2
- 5. Kuchnia6.5
- 6. Salon25.7
- 7. Schowek*1.4
- 8. Schody4.4
- 9. Garaż*17.6
- 10. Kotłownia*7.7
Piętro
- m²
- 11. Korytarz6.9
- 12. Łazienka6.9
- 13. Strych (Schowek)*2.1
- 14. Strych (Garderoba)*2.4
- 15. Sypialnia9.7
- 16. Sypialnia10.8
- 17. Strych (Garderoba)*2.5
- 18. Strych (Garderoba)*2.5
- 19. Sypialnia13.4
Przekrój
Usytuowanie na działce
Dane techniczne
- Powierzchnia użytkowa107.1 m²
- Powierzchnia zabudowy116.5 m²
- KominekTak
- Liczba łazienek2
- Liczba pokoi5
- Powierzchnia dachu178 m²
- Kubatura458 m³
- Długość domu10.9 m
- Szerokość domu10.7 m
- Wysokość domu8.2 m
- Minimalne wymiary działki18.9 x 18.7m
- GarażJednostanowiskowy
- Rodzaj dachuDwuspadowy
- Kąt nach. dachu35°
Instalacja grzewcza
- Instalacja grzewczaGaz, Paliwo stałe
Zawartość projektu
Zgodnie ze znowelizowaną Ustawą Prawo Budowlane art.34 ust.3, na projekt budowlany składają się trzy części:
- projekt zagospodarowania działki lub terenu
- projekt architektoniczno-budowlany
- projekt techniczny
Nasze projekty oferujemy w 3 egzemplarzach, zawierających projekt architektoniczno-budowlany i projekt techniczny. Projekt zagospodarowania działki lub terenu nie wchodzi w skład projektu oferowanego do sprzedaży. Projekt ten należy zlecić we własnym zakresie lokalnemu projektantowi, który opracuje go na podstawie danych zawartych w projekcie architektoniczno-budowlanym i technicznym, po dostosowaniu projektu do warunków lokalnych i wymagań inwestora.
UWAGA: wszystkie egzemplarze projektu zabezpieczone są hologramami, w części rysunkowej posiadają nadruki zabezpieczające w kolorze zielonym. Zalecamy aby po otrzymaniu przesyłki kontrolować czy na pierwszych stronach projektu znajduje się hologram i czy na rysunkach widoczne są w/w nadruki potwierdzające oryginalność projektu.
Wyrażamy zgodę na wszelkie zmiany zgodne z obowiązującymi przepisami pod warunkiem wprowadzenia ich przez uprawnioną osobę.
Wszystkie zmiany wymienione powyżej powinny być naniesione na oryginał projektu katalogowego trwałą techniką graficzną w kolorze czerwonym lub dołączone jako aneks i podpisane przez osobę uprawnioną dokonująca adaptacji.
**ważne informacje
Projekt w fazie koncepcji dostępny z wydłużonym terminem realizacji. Przy zamówieniu ustalamy termin i pobieramy zadatek 50% podstawowej ceny projektu (jako koszty usługi przygotowania dokumentacji do standardu projektu gotowego, w przypadku rezygnacji z usługi, zadatek nie podlega zwrotowi).
Cena za dodatkowy egzemplarz projektu jest zależna od nazwy projektu!
Dodatki
Bezpłatne dodatki
GratisZestaw umów
GratisZmiany w projekcie
GratisTablica budowy
GratisDziennik budowy
Płatne dodatki

Kosztorys - stan wykończony
540 zł

Projekt wentylacji mechanicznej
1 000 zł








