Promocja ważna do
14-12-2025
- Typ projektuWolnostojący
- Powierzchnia użytkowa133.2 m²
- KondygnacjeParterowy, z poddaszem
- GarażDwustanowiskowy
- DachDwuspadowy
- Kąt nach. dachu40°
- Odbicie lustrzaneTak
- Czas realizacjido 10 dni roboczych Zobacz więcej >
Opis
Zgodność z WT 2021 i Eurokodami
Ze względu na dostosowywanie projektu do standardu WT 2021, czas realizacji może się różnić od standardowego.
Skontaktuj się z nami aby poznać szczegóły dotyczące wybranego projektu.
Opis projektu
Dom z użytkowym poddaszem, niepodpiwniczony, przeznaczony dla 4-6-osobowej rodziny. Na parterze znajduje się część dzienna z obszernym salonem, kuchnią i jadalnią, gabinet z wyjściem na ogród, łazienka i pomieszczenia gospodarcze. Na poddaszu znajdują się trzy sypialnie, ogólnodostępna łazienka oraz strych, który można zaadaptować na dodatkowy pokój. Centralnie usytuowany kominek umożliwia zastosowanie ogrzewania kominkowego. Projekt dostępny w wersji z garażem jednostanowiskowym – Ambrozja I oraz w wersji bez garażu – Ambrozja III. Projekt dostępny w wersjach z inną aranżacją poddasza - Ambrozja Nowa (z garażem jednostanowiskowym), Ambrozja Nowa II (z garażem dwustanowiskowym) oraz Ambrozja Nowa III (bez garażu).
Konstrukcja
Ściany zewnętrzne z betonu komórkowego, posadowione na betonowych fundamentach. Ściany wewnętrzne z bloczków wapienno-piaskowych. Strop gęstożebrowy/żelbetowy. Instalacje Wentylacja grawitacyjna. Ogrzewanie gazowe z grzejnikami. Opcjonalnie można dokupić projekt wentylacji mechanicznej oraz projekt ogrzewania podłogowego za pomocą pompy ciepła.
Elewacje pokryte tynkiem strukturalnym w systemie ociepleń Termo Organika. W projekcie zastosowano okna dachowe marki Fakro. Pokrycie dachu - dachówka ceramiczna lub cementowa CREATON.
Rzuty
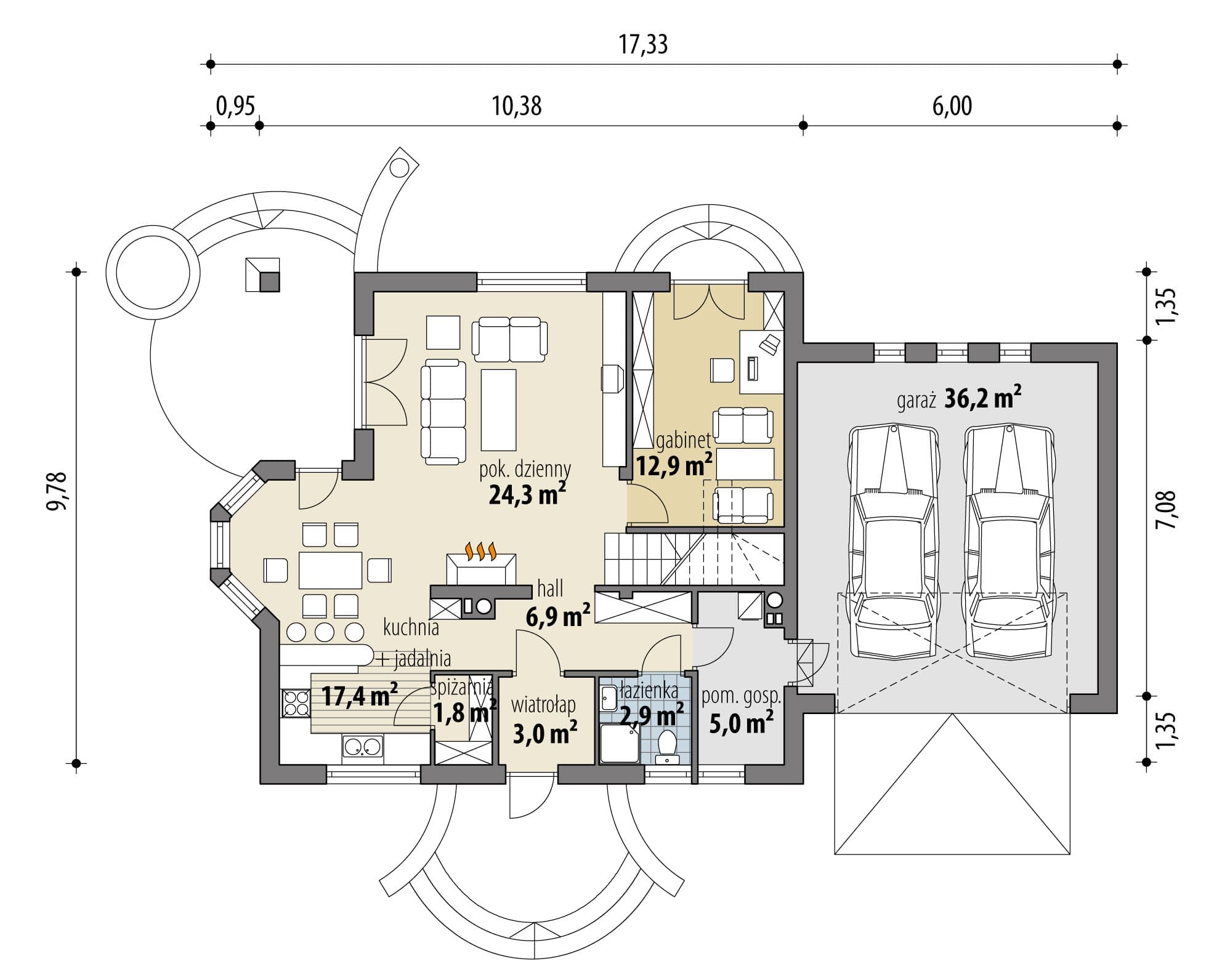
Parter
- 1/1 wiatrołap3
- 1/2 hall6.9
- 1/3 kuchnia + jadalnia17.4
- 1/4 spiżarnia1.8
- 1/5 pok. dzienny24.3
- 1/6 gabinet12.9
- 1/7 łazienka2.9
- 1/8 pom. gosp.5
- 1/9 garaż36.2
Poddasze
Dane techniczne
- Powierzchnia użytkowa133.2 m²
- Powierzchnia zabudowy148.9 m²
- Kominek1
- Liczba łazienek2
- Liczba pokoi4
- Powierzchnia dachu247.1 m²
- Kubatura548.4 m³
- Wysokość domu8.5 m
- PoddaszeUżytkowe
- Minimalne wymiary działki17.88 x 24.43m
- GarażDwustanowiskowy
- Rodzaj dachuDwuspadowy
- Kąt nach. dachu40°
Zawartość projektu
Komplet dokumentacji projektowej stanowi:
1. Trzy (3) egzemplarze projektu architektoniczno-budowlanego
- architektura – opis,
- architektura - rysunki.
2. Dwa (2) egzemplarze projektu technicznego:
- architektura - rysunki,
- konstrukcja - opis,
- konstrukcja - rysunki,
- instalacje sanitarne,
- instalacje sanitarne opis,
- instalacje elektryczne,
- instalacje elektryczne opis.
3. MATERIAŁY POMOCNICZE w 1 egzemplarzu.
- rysunki wykonawcze elementów żelbetowych,
- zestawienie stali zbrojeniowej,
- zestawienie elementów konstrukcyjnych więźby dachowej
- tabela elementów z kosztorysu stanu surowego zamkniętego (obejmującą robociznę, materiały i sprzęt).
Każda dokumentacja projektowa przygotowywana jest na indywidualne zlecenie zamawiającego oraz jest zabezpieczona specjalną plombą z hologramem, której zerwanie lub usunięcie jest jednoznaczne z wykorzystaniem projektu.
Uprawnienia - wszystkie projekty domów mają stosowne uprawnienia i zaświadczenia potwierdzające przynależność do izb wszystkich projektantów, będących autorami prezentowanych na tej stronie koncepcji domów.
Zmiany w projekcie domu, które nie naruszają jego konstrukcji , możecie Państwo wprowadzać we współpracy z projektantem adaptującym projekt gotowy, bez konieczności konsultowania tego z autorem dokumentacji.
Poniżej prezentujemy zakres zmian, które nie wymagają zgody ze strony naszej Pracowni:
- Zmiany wymiarów fundamentów wynikające z dostosowania budynku do lokalnych warunków gruntowych.
- Wprowadzenie całkowitego lub częściowego podpiwniczenia budynku pod warunkiem nie wynoszenia poziomu parteru w stosunku do poziomu terenu.
- Zaprojektowanie użycia innych materiałów na konstrukcję budynku (ściany stropy) przy zachowaniu wymaganych przepisami i normami parametrów oraz pod warunkiem zachowania walorów użytkowych budynku.
- Rodzaj stropów – przy zachowaniu układu konstrukcji i wymaganych przepisami oraz normami parametrów.
- Materiały ścian zewnętrznych i wykończeniowych (tynki, posadzki, dachówki, izolacja cieplna i przeciwwilgociowa) pod warunkiem utrzymania wymaganych parametrów (tj. np. wytrzymałość, ciepłochłonność).
- Program użytkowy wewnątrz budynku; np. przesunięcie lub likwidacja ścian działowych i zmiana lokalizacji, ilości i kształtu okien oraz drzwi, przy zachowaniu wymaganych przepisami i normami parametrów.
- Kąt nachylenia dachu do 10 proc. lub 5 stopni, pod warunkiem dostosowania konstrukcyjnego i zachowania formy architektonicznej.
- Zmiana przekrojów elementów konstrukcji dachowej wynikająca z dostosowania do materiałów pokrycia lub z dostosowania budynku do innych stref śniegowych i wiatrowych niż podano w projekcie.
- Kolorystyka elewacji, detali dekoracyjnych, kształtu podjazdów i tarasów.
- Instalacja: wodna, kanalizacyjna, gazowa, elektryczna i centralnego ogrzewania - pod warunkiem zachowania obowiązujących norm i przepisów prawa budowlanego.
- Realizacja projektu wg. lustrzanego odbicia.
Polecane projekty
Dodatki
Bezpłatne dodatki
GratisZestaw umów
GratisZmiany w projekcie
GratisTablica budowy
GratisDziennik budowy
Płatne dodatki

Projekt wentylacji mechanicznej
700 zł

Kosztorys
861 zł

Dodatkowy egzemplarz projektu
246 zł

Projekt instalacji centralnego ogrzewania zasilanego pompą ciepła
650 zł
















