- Typ projektuWolnostojący
- StylTradycyjny
- Powierzchnia użytkowa98.96 m²
- KondygnacjeParterowy
- GarażJednostanowiskowy
- DachDwuspadowy
- Kąt nach. dachu35°
- Odbicie lustrzaneNie
- Czas realizacjimax. czas realizacji 10 dni Zobacz więcej >
Opis
Zgodność z WT 2021 i Eurokodami
Ze względu na dostosowywanie projektu do standardu WT 2021, czas realizacji może się różnić od standardowego.
Skontaktuj się z nami aby poznać szczegóły dotyczące wybranego projektu.
Opis projektu
Wariant domku ze zmienionym układem pomieszczeń na parterze i zmienioną lokalizacją schodów na strych.
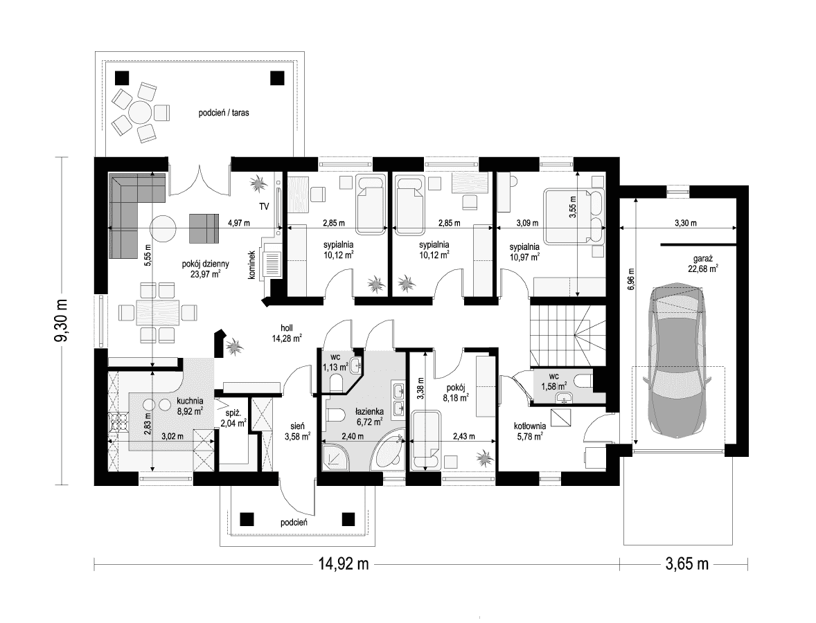
Projekt domu Anatol 2 to kolejna odsłona popularnego projektu domu jednorodzinnego Anatol. Jest to parterowy domek, przeznaczony do zamieszkania dla 4-6cioosobowej rodziny. Dzięki dużemu strychowi, który można zaadaptować na poddasze użytkowe, dom doskonale sprawdzi się dla rozwojowej, rosnącej rodziny, której potrzeby mogą się zwiększać. Dzięki strychowi do adaptacji w łatwy sposób można uzyskać dodatkową powierzchnię mieszkalną. Architektonicznie dom jest prostą ponadczasową bryłą, zbudowaną na planie prostokąta, przekrytą dwuspadowymi dachami. Dobrze dobrane proporcje elewacji, oraz nowoczesne materiały wykończeniowe, dają domowi atrakcyjny i przyjemny dla oka wygląd. Funkcjonalne wnętrze, mieszczące wszystkie pomieszczenia mieszkalne i techniczne na parterze, dopełnia atrakcyjności domu. Na parterze zmieszczono część dzienną z salonem, kuchnią i holem, oraz sypialnie domowników - trzy sypialnie i dodatkowy pokój do pracy. Prócz tego w domu zmieściły się łazienki, garderoba, spiżarnia i kotłownia, oraz garaż. Na strych dostajemy się schodkami z kotłowni. Strych można dowolnie zagospodarować - urządzić tam dodatkowe 2-3 pokoje, lub jednoprzestrzenną powierzchnię. Dom ma prostą konstrukcję, jest łatwy w budowie. Dzięki temu koszty realizacji nie powinny być wygórowane. Dzięki zwartej bryle i dobrym izolacjom dom jest ciepły i energooszczędny. Koszty utrzymania Anatola 2 nie będą wysokie. Zapraszamy do zapoznania się z pełną ofertą pracowni MG Projekt: projekt domu Anatol.
Konstrukcja
- Fundamentybetonowe ławy i ściany fundamentowe z bloczków betonowych
- Ściany zewnętrzneściany murowane - pustaki porotherm 25 + styropian + tynk cienkowarstwowy
- Stropmonolityczny żelbetowy
- Elewacjetynk cienkowarstwowy na styropianie
- Pokrycie dachudachówka
Rzuty
Dane techniczne
- Powierzchnia użytkowa98.96 m²
- Powierzchnia netto107.8 m²
- Powierzchnia zabudowy166.71 m²
- KominekTak
- Liczba łazienek3
- Liczba pokoi5
- Powierzchnia dachu275.36 m²
- Kubatura692 m³
- Długość domu9.3 m
- Szerokość domu18.57 m
- Wysokość domu7.15 m
- Poddaszedo adaptacji
- Minimalne wymiary działki18.87 x 25.57m
- GarażJednostanowiskowy
- Rodzaj dachuDwuspadowy
- Kąt nach. dachu35°
Koszty budowy
- Stan surowy204881 zł
- Stan surowy zamknięty270609 zł
- Koszt wykończenia300893 zł
- Koszt instalacji77279 zł
Zawartość projektu
W komplecie nowej wersji dokumentacji projektowej znajdują się 3 egzemplarze projektu architektoniczno-budowlanego oraz 3 egzemplarze projektu technicznego
Projekt architektoniczno-budowlany zawierający:
-opis architektoniczny z elementami konstrukcji,
-część rysunkowa: rzut parteru, poddasza/piętra, rzut dachu w skali 1:100, przekroje skala 1:50,
elewacje skala 1:100.
Projekt techniczny zawierający:
-opis techniczny i konstrukcyjny (obliczenia statyczne - w zależności od projektu włączone w projekt lub stanowiące odrębną teczkę).
Część rysunkowa architektura i konstrukcja:
-rzuty fundamentów, parteru, poddasza, stropu, więźby, dachu / w skali 1:50,
-przekroje przez budynek / budynek skali 1:50,
-elewacje budynku / w skali 1:50 (*niektóre projekty posiadają rysunki w skali 1:100 lub 1:75),
-zestawienie stolarki budowlanej okiennej i drzwiowej,
-szczegóły konstrukcji i ewentualne szczegóły budowlane,
Część instalacyjna:
-część opisowa do projektów instalacji elektrycznych, wodno-kanalizacyjnych, grzewczych, gazowych (jeśli występują).
Część rysunkowa do projektów instalacji:
-schematy instalacji elektrycznych, schemat rozdzielni, plan instalacji odgromowej,
-schematy instalacji wodno-kanalizacyjnej i ciepłej wody,
-schematy instalacji grzewczych,
-schemat instalacji gazowej (jeśli występują).
Do projektu dołączane jest zestawienie materiałowe, z wykazem elementów drewnianych oraz stali budowlanej.
Do projektu dołączone są kopie uprawnień wszystkich projektantów, oraz aktualne zaświadczenia o przynależności do izb zawodowych.
Projekt zawiera oświadczenie projektantów o poprawności projektu w świetle Prawa Budowlanego, a także zawiera informację dotyczącą bezpieczeństwa i ochrony zdrowia ( BIOZ).
Do projektu dołączona jest także zgoda na zmiany adaptacyjne. Zgoda dołączana jest do każdego projektu bezpłatnie. Na Państwa życzenie zakres zgody na zmiany możemy dowolnie rozszerzyć.
Pracownia zezwala na następujące zmiany i odstępstwa od projektu architektoniczno-budowlanego w trakcie jego przystosowywania do lokalizacji:
- Zmianę obrysu zewnętrznego ścian zewnętrznych.
- Zmianę obrysu wewnętrznego ścian zewnętrznych.
- Zmianę układu ścian wewnętrznych działowych.
- Zmianę funkcji, ilości i usytuowania poszczególnych pomieszczeń na dowolnej kondygnacji w projekcie.
- Zmianę ukształtowania, ilości i kąta nachylenia połaci dachowych.
- Zmianę ilości, umiejscowienia i wielkości otworów okiennych i drzwiowych.
- Zmianę rodzaju materiału i technologii wykonania ścian zewnętrznych oraz wewnętrznych oraz ścian fundamentowych.
- Zmianę rodzaju i technologii wykonania stropów nad dowolną kondygnacją.
- Zmianę umiejscowienia, kształtu i materiału wykonania schodów w budynku.
- Zmianę wielkości, kształtu i materiałów, bądź likwidacja: tarasów, podestów i balkonów.
- Likwidację lub dodanie dowolnej ilości:
- lukarn,
- wykuszy,
- podcieni,
- balkonów,
- loggii,
- kolumn,
- pilastrów,
- ganków,
- werand.
- Zmianę materiałów wykończeniowych, instalacyjnych, izolacyjnych.
- Zmianę rodzaju pokrycia dachowego.
- Doprojektowanie bądź likwidacja podpiwniczenia - częściowego lub całkowitego.
Dodatki
Bezpłatne dodatki
GratisZestaw umów
GratisZmiany w projekcie
PromocjaProjekt szamba szczelnego
GratisTablica budowy
GratisDziennik budowy
Płatne dodatki

Pakiet wentylacja mechaniczna i kominek DGP
550 zł

Kosztorys inwestorski
600 zł

Pakiet odkurzacz centralny
550 zł

Wersja elektroniczna projektu
600 zł

Pakiet instalacja solarna
550 zł

Pakiet ogrzewanie podłogowe
550 zł

Pakiet powietrzna pompa ciepła
550 zł

Pakiet płaszcz wodny
550 zł

Pakiet kotłownia na paliwo stałe
550 zł

Pakiet klimatyzacja w domu
550 zł

Projekt ogrodzenia
750 zł

Pakiet instalacja fotowoltaiczna
550 zł

Pakiet kominek z DGP
500 zł

Pakiet gruntowa pompa ciepła
550 zł

Projekt altan i grilów ogrodowych
850 zł

Dodatkowy egzemplarz do projektu
650 zł



































