Projekt domu Arnika II wiata z wiatą
Promocja ważna do
24-04-2026
- Typ projektuWolnostojący
- Powierzchnia użytkowa177.5 m²
- Kondygnacje
- GarażZ wiatą garażową
- DachWielospadowy
- Kąt nach. dachu30°
- Odbicie lustrzaneTak
- Czas realizacjimax. czas realizacji 10 dni Zobacz więcej >
Opis
Zgodność z WT 2021 i Eurokodami
Ze względu na dostosowywanie projektu do standardu WT 2021, czas realizacji może się różnić od standardowego.
Skontaktuj się z nami aby poznać szczegóły dotyczące wybranego projektu.
Opis projektu
Projekt gotowy Arnika II z wiatą to propozycja nowoczesnego domu parterowego.Dom jest przekryty dachem wielospadowym. Od przodu znajduje się wiata (pergola). Do wnętrza wchodzi się poprzez duży wiatrołap rozprowadzający do pomieszczenia technicznego oraz części mieszkalnej. Hol wraz z komunikacją łączy część dzienną i nocną budynku. Otwarta przestrzeni salonu, kuchni i jadalni to strefa dzienna. Bezpośrednio z jadalni można dostać się na zadaszony taras. W części indywidualnej mamy cztery sypialnie i komfortową łazienkę. Największa dwuosobowa sypialnia posiada własną garderobę i indywidualną łazienkę. Wszystkie pomieszczenia sypialne łączy długi korytarz. Z każdej sypialni można wyjść bezpośrednio na ogród dzięki drzwiom balkonowym.Arnika II to wygodny, nowoczesny dom dla dużej rodziny, w której każdy z domowników znajdzie dla siebie miłą przestrzeń.
Konstrukcja
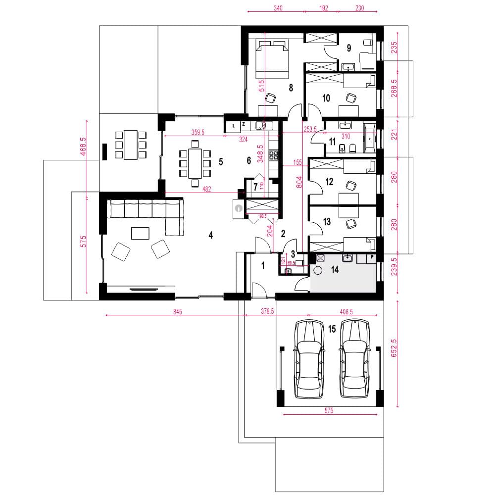
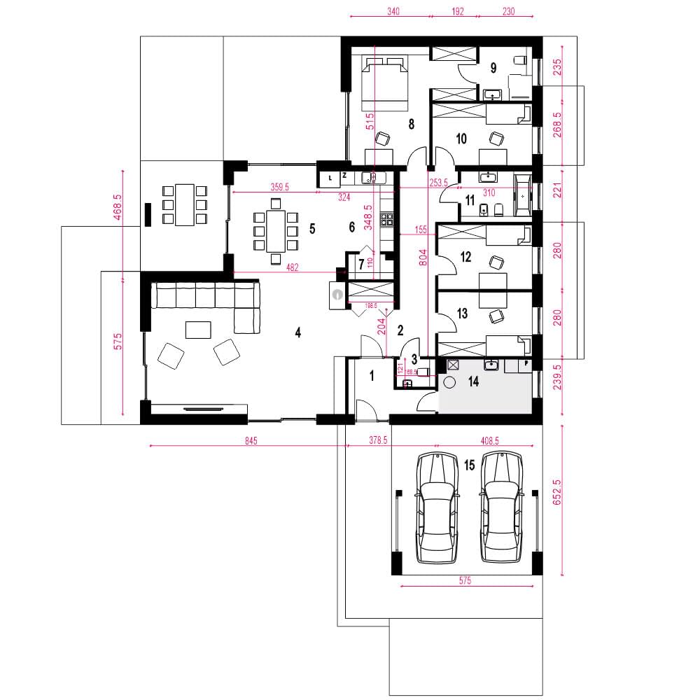
Rzuty
Parter
- m²
- 1. Wiatrołap6.5
- 2. Hol, garderoba, korytarz21.4
- 3. WC2
- 4. Salon48.2
- 5. Jadalnia18.8
- 6. Kuchnia11.1
- 7. Spiżarnia2
- 8. Pokój, garderoba21.8
- 9. Łazienka5.3
- 10. Pokój11.4
- 11. Łazienka6.7
- 12. Pokój11.2
- 13. Pokój11.2
- 14. Pom. techniczne + CO*9.4
Przekrój
Dane techniczne
- Powierzchnia użytkowa177.5 m²
- Powierzchnia zabudowy230.8 m²
- KominekTak
- Liczba łazienek2
- Liczba pokoi5
- Powierzchnia dachu344.9 m²
- Długość domu23.4 m
- Szerokość domu17.5 m
- Wysokość domu7.1 m
- Minimalne wymiary działki30.4 x 25.5m
- GarażZ wiatą garażową
- Rodzaj dachuWielospadowy
- Kąt nach. dachu30°
Instalacja grzewcza
- Instalacja grzewczaGaz
Zawartość projektu
Zgodnie ze znowelizowaną Ustawą Prawo Budowlane art.34 ust.3, na projekt budowlany składają się trzy części:
- projekt zagospodarowania działki lub terenu
- projekt architektoniczno-budowlany
- projekt techniczny
Nasze projekty oferujemy w 3 egzemplarzach, zawierających projekt architektoniczno-budowlany i projekt techniczny. Projekt zagospodarowania działki lub terenu nie wchodzi w skład projektu oferowanego do sprzedaży. Projekt ten należy zlecić we własnym zakresie lokalnemu projektantowi, który opracuje go na podstawie danych zawartych w projekcie architektoniczno-budowlanym i technicznym, po dostosowaniu projektu do warunków lokalnych i wymagań inwestora.
UWAGA: wszystkie egzemplarze projektu zabezpieczone są hologramami, w części rysunkowej posiadają nadruki zabezpieczające w kolorze zielonym. Zalecamy aby po otrzymaniu przesyłki kontrolować czy na pierwszych stronach projektu znajduje się hologram i czy na rysunkach widoczne są w/w nadruki potwierdzające oryginalność projektu.
Wyrażamy zgodę na wszelkie zmiany zgodne z obowiązującymi przepisami pod warunkiem wprowadzenia ich przez uprawnioną osobę.
Wszystkie zmiany wymienione powyżej powinny być naniesione na oryginał projektu katalogowego trwałą techniką graficzną w kolorze czerwonym lub dołączone jako aneks i podpisane przez osobę uprawnioną dokonująca adaptacji.
**ważne informacje
Projekt w fazie koncepcji dostępny z wydłużonym terminem realizacji. Przy zamówieniu ustalamy termin i pobieramy zadatek 50% podstawowej ceny projektu (jako koszty usługi przygotowania dokumentacji do standardu projektu gotowego, w przypadku rezygnacji z usługi, zadatek nie podlega zwrotowi).
Cena za dodatkowy egzemplarz projektu jest zależna od nazwy projektu!
Dodatki
Bezpłatne dodatki
GratisZestaw umów
GratisZmiany w projekcie
GratisTablica budowy
GratisDziennik budowy
Płatne dodatki

Kosztorys - stan wykończony
540 zł

Projekt wentylacji mechanicznej
1 000 zł









