- Typ projektuWolnostojący
- StylTradycyjny
- Powierzchnia użytkowa114.1 m²
- KondygnacjeParterowy, z poddaszem
- GarażJednostanowiskowy
- DachDwuspadowy
- Kąt nach. dachu35°
- Odbicie lustrzaneTak
- Czas realizacji1-5 dni Zobacz więcej >
Opis
Zgodność z WT 2021 i Eurokodami
Ze względu na dostosowywanie projektu do standardu WT 2021, czas realizacji może się różnić od standardowego.
Skontaktuj się z nami aby poznać szczegóły dotyczące wybranego projektu.
Opis projektu
Projekt zgodny z wymaganiami WT2024.
ATLANT 1A to wariant ATLANTA PS zaprojektowany dla 4-osobowej rodziny. Z wiatrołapu z miejscem na szafę, wchodzimy do przestronnego salonu połączonego z jadalnią. Kuchnię, otwartą na część dzienną mozna zamknąć, natomiast spiżarnię w zależności od upodobań można przeznaczyć na miejsce dla dodatkowych szaf kuchennych czy powiększenie przestrzeni na odzież w wiatrołapie. Przy przejściu do zacisznej części nocnej znajduje się dogodnie umiejscowiona toaleta, za którą znajdują się trzy obszerne sypialnie, kompleksowo wyposażona łazienka z przejściem do pralni, oraz garderoba przez która przechodzimy do garażu. Z garażu dostępna jest obszerna kotłownia z wyjściem do ogrodu. Zastosowanie stopu gęstożebrowego umożliwia ponadto bezproblemową aranżację pomieszczeń na poddaszu projektując schody w miejscu małej łazienki.
Projekt jest podobny do ATLANTA PS, ATLANTA 2 PS, ATLANTA 3 PS, LENY PS, ELIANA PS i GABRIELA PS.
Projekt w standardzie posiada dodatkowo projekt ogrzewania kominkiem z płaszczem wodnym.
Wizualizacja jest propozycją tego jak dany projekt domu oraz jego otoczenie można zaaranżować. Sposób prowadzenia tarasu, kształt murków i elementy małej architektury typu pergole, donice itp. nie są objęte zakresem projektu. W związku z powyższym na projekcie budowlanym elementy te mogą nie być uwzględnione w projekcie ( patrz pergole ) lub zmieniony może być ich kształt i sposób prowadzenia ( wielkości tarasów, profil murków )
Konstrukcja
Propozycje rozwiązań materiałowych:
| Fundamenty | bezpośrednie, na ławach fundamentowych |
| Ściany zewnętrzne | cegła silikatowa - 24 cm + styropian TERMO ORGANIKA typ Fasada 20 cm |
| Ściany wewnętrzne | cegła silikatowa - 24 cm (działowe - 12 cm) |
| Strop | gęstożebrowy Teriva E oraz żelbetowy monolityczny gr. 24 cm. |
| Elewacje | tynk - firmy TERMO ORGANIKA, okładzina z płytek elastycznych |
| Pokrycie dachu | blachodachówka (opcjonalnie dachówka) |
| Konstrukcja dachu | tradycyjna drewniana |
| Schody wewnętrzne | wyłaz na poddasze |
| Ogrzewanie | kocioł gazowy kondensacyjny lub kocioł na biomasę (pelety) dodatkowe źródło ciepła - kominek z płaszczem wodnym |
Projekt jest zgodny z wymaganiami WT2024, a konstrukcja była obliczana zgodnie z eurokodami.
Rzuty
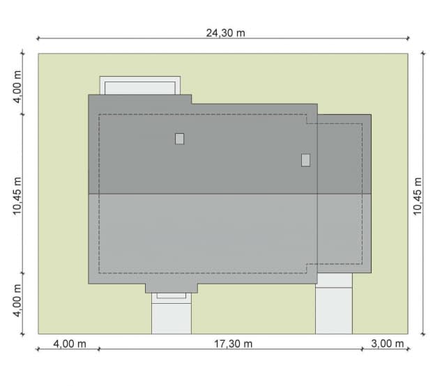
Rzut parteru
- Pow. użytkowa:114,1 m²
- Garaż:20,0 m²
- Kotłownia:6,7 m²
- 1. Wiatrołap:4,3 m²
- 2. Hall:9,0 m²
- 3. Kuchnia:9,0 m²
- 4. Spiżarnia:1,4 m²
- 5. Salon z jadalnią:32,9 m²
- 6. Łazienka:2,5 m²
- 7. Pokój:12,5 m²
- 8. Łazienka:8,0 m²
- 9. Pralnia:5,4 m²
- 10. Garderoba:4,8 m²
- 11. Pokój:12,2 m²
- 12. Pokój:12,1 m²
- 13. Kotłownia:6,7 m²
- 14. Garaż:20,0 m²
Rzut poddasza
Plan i przekrój (wersja podstawowa)
Plan i przekrój (wersja podstawowa)
Dane techniczne
- Powierzchnia użytkowa114.1 m²
- Powierzchnia dachu278.3 m²
- Długość domu10.44 m
- Szerokość domu17.29 m
- Wysokość domu7.69 m
- GarażJednostanowiskowy
- Rodzaj dachuDwuspadowy
- Kąt nach. dachu35°
Instalacja grzewcza
- Instalacja grzewczakocioł gazowy kondensacyjny lub kocioł na biomasę (pelety), dodatkowe źródło ciepła - kominek z płaszczem wodnym
Zawartość projektu
Dokonując zakupu w naszej Pracowni otrzymujecie Państwo 3 komplety dokumentacji architektoniczno – budowlanej zgodnej z normami budowlanymi, wykonanej przez doświadczonych inżynierów o uprawnieniach których zaświadczają dołączone do projektu dokumenty. Poszczególne egzemplarze są drukowane na wysokiej klasy sprzęcie i zapakowane w elegancką teczkę firmową.
Poszczególne elementy dokumentacji to kolejno części:
ARCHITEKTONICZNA– składają się na nią:
- opis techniczny – zawiera rozwiązania funkcjonalne projektu, wielkości powierzchni (całkowitej, zabudowy, użytkowej), kubatury, wysokość kalenicy itp., proponowane rozwiązania materiałowe i wykończeniowe,
- widoki elewacji obrazujące wygląd domu z każdej strony w skali 1:100,
- rzuty poziome kondygnacji (rozmieszczenie i zwymiarowane wielkości pomieszczeń, umiejscowienie kominów, wentylacji, urządzeń sanitarnych i kuchennych) w skali 1:100,
- rzut dachu w skali 1:100,
- przekroje pionowe ze szczególnym uwzględnieniem miejsc charakterystycznych budynku wykonane w skali 1:50,
- zestawienie stolarki drzwiowej i okiennej z ilościami i wymiarami,
- charakterystyka energetyczna wraz z analizą porównawczą systemów ogrzewania.
TECHNICZNA – składają się na nią części:
konstrukcyjna – zawiera rysunki techniczne w rozpiętości skal od 1:20 do 1:100
- opis techniczny rozwiązań konstrukcyjnych wraz z proponowanymi materiałami,
- rzuty fundamentów, stropów i więźby dachowej,
- rozwiązania detali konstrukcyjnych,
- obliczenia statyczne,
- zestawienia stali i drewna,
instalacyjna – to szereg projektów branżowych, których rysunki wykonano w skali 1:100 prezentujących miedzy innymi rozmieszczenie elementów instalacji:
- elektrycznej ,
- wodno-kanalizacyjnej,
- gazowej,
- centralnego ogrzewania,
- rekuperacji, solarnej - jeżeli występują w projekcie.
analiza porównawcza systemów alternatywnych – zgodna z najnowszymi normami
DODATKI – najczęściej są to:
- obliczenia statyczne,
- zestawienia stali i drewna.
Projektant adaptujący projekt gotowy może bez zgody autora wprowadzić następujące zmiany:
- Wynikające z dostosowania budynku do warunków gruntowych.
- Wymiarów fundamentów.
- Wprowadzenie częściowego lub całkowitego podpiwniczenia budynku przy zachowaniu poziomu posadzki parteru na wysokości nie przekraczającej 50cm ponad poziom terenu.
- Wymiarów przekrojów lub rozstawu elementów więźby dachowej wynikające z dostosowania budynku do strefy śniegowej lub wiatrowej.
- Użycia innych materiałów na elementy konstrukcyjne budynku (ściany, stropy) pod warunkiem zachowania wymagań konstrukcji i ochrony cieplnej budynku oraz jego elewacji.
- Warstw ścian zewnętrznych przy zachowaniu dopuszczalnego współczynnika przenikalności cieplnej
- Zmiana kąta nachylenia dachu, a także zmiana kształtu dachu i jego konstrukcji
- Zmiany sposobu ogrzewania domu i prowadzenia instalacji CO, zmiany instalacji wodno-kanalizacyjnej, gazowej, oraz elektrycznej (przy zachowaniu obowiązujących norm)
- Materiałów wykończeniowych: posadzek, tynków, dachówki, izolacji cieplnej i przeciwwilgociowej – przy zachowaniu niezbędnych parametrów wytrzymałości ( szczególnie dla zmiany pokrycia dachowego) oraz parametrów przenikania ciepła
- Rozwiązań funkcjonalnych wewnątrz budynku, oraz przesunięcia lub likwidacji ścian działowych
- Zmiana lokalizacji, ilości i kształtu okien oraz drzwi.
- Lustrzanego odbicia.
- Zmiany szerokości biegów schodowych, liczby stopni i wymiarów schodów wewnętrznych.
- Pokrycia dachowego z uwzględnieniem zaprojektowanych spadków i ciężaru pokrycia.
- Technologia budowy ścian, murów, nadproży. Zmiany z zachowaniem wytrzymałości i izolacyjności przegród.
- Zmiana kształtu, wielkości i usytuowania elementów takich jak tarasy, murki i donice przedstawione w projekcie oraz zmiany szerokości biegów schodowych, liczby stopni i wymiarów schodów zewnętrznych.
- Zmiana wysokości ścianki kolankowej.
- Zmiana usytuowania i ilości kominów.
- Dobudowanie garażu lub wiaty garażowej.
- Dobudowanie bądź usunięcie lukarny.
- Dobudowanie lub usunięcie balkonu.
- Dobudowanie lub usunięcie wykusza.
- Zabudowanie podcienia.
- Poszerzenie bądź zwężenie bryły budynku.
W przypadku gdy zmiany dokonywane w niniejszym projekcie wykraczają po za te, które zostały powyżej wyszczególnione należy uzyskać zgodę od autora projektu.
Wszelkie instalacje dodatkowe do projektów, funkcjonujące jako „dodatki”, będą sprzedawane w wersji elektronicznej. Pliku wysyłany bezpośrednio do Klienta.
Plik będzie opatrzony hasłem, służącym do jego otworzenia, którego częścią składową będzie imię i nazwisko inwestora. Tego typu dodatki nie podlegają zwrotowi ani wymianom.
Polecane projekty
Dodatki
Bezpłatne dodatki
GratisZestaw umów
GratisZmiany w projekcie
GratisTablica budowy
GratisDziennik budowy
Płatne dodatki

Ogrzewanie podłogowe
715 zł

Kosztorys inwestorski - wersja elektron.
500 zł

Dodatkowy egzemplarz projektu
550 zł

Instalacja solarna
450 zł

Pompa ciepła
550 zł

Pergola
300 zł

Projekt rekuperacji
520 zł
















