- Typ projektuWolnostojący
- StylNowoczesny
- Powierzchnia użytkowa104.31 m²
- KondygnacjePiętrowy
- GarażDwustanowiskowy
- DachPłaski
- Kąt nach. dachu1.2°
- Odbicie lustrzaneTak
- Czas realizacji7-10 dni roboczych Zobacz więcej >
Opis
Zgodność z WT 2021 i Eurokodami
Ze względu na dostosowywanie projektu do standardu WT 2021, czas realizacji może się różnić od standardowego.
Skontaktuj się z nami aby poznać szczegóły dotyczące wybranego projektu.
Opis projektu
Nowoczesny, energooszczędny dom, idealny dla miłośników prostoty i elegancji. Na parterze zlokalizowany został przeszklony salon z wyjściem do ogrodu i aneksem kuchennym i jedna sypialnia. Jest też łazienka z wc i dwustanowiskowy garaż wkomponowany w bryłę budynku, w którym wydzielono kotłownię. Piętro zajmują trzy sypialnie, garderoba i komfortowa łazienka. Ozdobą domu jest duży taras zlokalizowany na dachu garażu, na który można wyjść z jednej z sypialni. Dom idealnie nadaje się na wąską działkę.
Rzuty
Parter
- m²
- 1. Wiatrołap3.27
- 2. Komunikacja2.27
- 3. Schody2.11
- 4. Spiżarnia1.53
- 5. Pokój dzienny, kuchnia28.23
- 6. Pokój8.99
- 7. Łazienka2.75
- 8. Pom.gosp.2.41
- 9. Kotłownia2.8
- 10. Garaż35.95
- 11. Podest5.28
- 12. Taras18.96
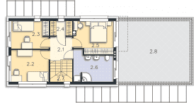
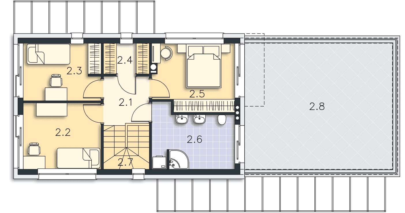
Piętro
- m²
- 1. Komunikacja4.72
- 2. Pokój10.68
- 3. Pokój9.27
- 4. Garderoba2.92
- 5. Pokój11.15
- 6. Łazienka9.85
- 7. Schody4.16
- 8. Taras39.32
Usytuowanie na działce
Przekrój
Dane techniczne
- Powierzchnia użytkowa104.31 m²
- Powierzchnia netto182.88 m²
- Powierzchnia zabudowy115.95 m²
- KominekTak
- Liczba łazienek1
- Liczba pokoi5
- Kubatura683 m³
- Minimalne wymiary działki15.5 x 25.7m
- GarażDwustanowiskowy
- Rodzaj dachuPłaski
- Kąt nach. dachu1.2°
Instalacja grzewcza
- Instalacja grzewczaGaz
- EUco36.1 kwH/m²/rok
Koszty budowy
- Koszt budowy528000 zł
- Stan surowy333600 zł
Zawartość projektu
Dokumentacje projektowe naszych domów są zgodne z Rozporządzeniem Ministra Rozwoju z dnia 11 września 2020 r. w sprawie szczegółowego zakresu i formy projektu budowlanego. Projekt gotowy, w skład którego wchodzi projekt architektoniczno-budowlany, projekt techniczny, charakterystyka energetyczna, wymaga przystosowania do warunków lokalnych przez projektanta adaptującego.
Projekt architektoniczno-budowlany i projekt techniczny stanowią zakres projektu gotowego i sprzedawane są w 3 egzemplarzach każdy – razem 6 zeszytów
Projekt architektoniczno-budowlany zawiera część opisową oraz część rysunkową.
Część opisowa projektu architektoniczno-budowlanego obejmuje następujący zakres:
- Przeznaczenie i program użytkowy budynku
- Charakterystyczne parametry techniczne
- Forma architektoniczna i funkcja obiektu
- Wpływ obiektu na środowisko
- Sposób posadowienia
- Technologia wykonania
- Warunki ochrony przeciwpożarowej
- Instalacje
Część rysunkowa projektu architektoniczno-budowlanego obejmuje następujące rysunki:
- Elewacje - frontowa, ogrodowa, boczne
- Rzut parteru - Rzut więźby dachowej
- Aksonometria więźby dachowej
- Rzut dachu
- Przekroje poprzeczne
- Zestawienie stolarki
Projekt techniczny zawiera część opisową, część rysunkową oraz charakterystykę energetyczną.
Część opisowa projektu technicznego obejmuje następujący zakres:
- Układ konstrukcyjny budynku w tym: schematy konstrukcyjne, obliczenia statyczne – założenia ogólne, podstawowe wyniki obliczeń , zestawienie obciążeń dopuszczalnych dla wiązarów dachowych- jeśli występują,
- Sposób posadowienia
- Rozwiązania konstrukcyjno-materiałowe: ściany, strop/stropy, nadproża okienne i drzwiowe, wieńce, dach, schody na poddasze nieużytkowe, kominy i wentylacje, izolacje, powłoki zabezpieczające, posadzki i podłogi, tynki i okładziny, stolarka okienna i drzwiowa, obróbki blacharskie, rynny i rury spustowe, taras i płyta wejściowa
- Zestawienia materiałów w tym: dane powierzchniowe przegród, zestawienie stali zbrojeniowej
- Opis instalacji sanitarnych w tym: instalacja wodociągowa, kanalizacja wewnętrzna, instalacja gazu – jeśli występuje, instalacja centralnego ogrzewania, dobór źródła ciepła,
- Opis instalacji elektrycznych w tym: zasilanie budynku, instalacje elektryczne, instalacja telefoniczna – jeśli występuje, instalacje wyrównawcze, ochrona przeciwpożarowa, ochrona instalacji, instalacja odgromowa, ochrona przeciwporażeniowa, obliczenia techniczne
Część rysunkowa obejmuje następujące rysunki:
- Rzut fundamentów
- Przekroje ław fundamentowych / płyty fundamentowej
- Stopy fundamentowe – jeśli występują
- Rysunek zestawczy konstrukcji
- Szczegóły wieńców – jeśli występują
- Rozwinięcie ścian zewnętrznych
- Rzuty kondygnacji - instalacja wod-kan., gazowa
- Aksonometria instalacji wodociągowej
- Aksonometria instalacji gazowej
- Rozwinięcie instalacji kanalizacyjnej
- Rzut parteru - instalacja c.o.
- Rozwinięcie instalacji c.o.
- Rzuty kondygnacji - instalacja elektryczna
- Schemat rozdziału energii
Charakterystyka energetyczna zawiera:
- wyniki obliczeń energetycznych określających całkowite zapotrzebowanie na energię
- analizę alternatywnych źródeł ciepła i wyniki optymalizacji energetycznej.
Dopuszczalne zmiany w ramach adaptacji nie wymagające zgody projektanta:
- dostosowanie fundamentów do warunków geotechnicznych występujących na danym terenie,
- zmiana programu funkcjonalnego budynku związana z likwidacją lub przesuwaniem ścianek działowych i otworów drzwiowych, również w ścianach nośnych,
- zmiana szerokości i kształtu schodów,
- zmiana technologii stropów przy zachowaniu koncepcji układu konstrukcyjnego,
- zmiana nachylenia połaci dachowych w granicach 5 st.,
- zmiana ilości, wielkości i rozmieszczenia otworów okiennych i drzwiowych,
- zmiana technologii budowlanych i materiałów wykończeniowych pod warunkiem nie pogorszenia ich jakości i parametrów termicznych,
- zmiana rodzaju ogrzewania i zmiany adaptacyjne projektów instalacyjnych,
- wykonanie projektu podpiwniczenia budynku lub jego likwidacji,
- zabudowanie wiaty garażowej lub rezygnacja z wiaty (jeśli występuje w projekcie),
- rezygnacja z balkonów przy ścianach szczytowych (jeśli występują w projekcie),
- realizacja projektu w wersji lewostronnej (lustrzanego odbicia).
Najczęściej pojawiające się zmiany, które wprowadzamy lub na które wydajemy bezpłatną zgodę to:
- zmiana kąta nachylenia dachu,
- podpiwniczenie budynku,
- zmiana technologii ścian, stropu, fundamentów,
- zmiana wymiarów domu,
- likwidacja, doprojektowanie lub poszerzenie garażu,
- podniesienie ścianki kolankowej,
- zmiany wielkości i usytuowania okien i drzwi,
- zmiany funkcji pomieszczeń,
- zmiana systemu ogrzewania (gaz/paliwo stałe/pompa ciepła oraz grzejniki/ogrzewanie podłogowe).
Dodatki
Bezpłatne dodatki
GratisDziennik budowy
GratisTablica budowy
GratisZestaw umów
GratisZmiany w projekcie
Płatne dodatki

Kosztorys ślepy
369 zł

Kosztorys inwestorski
738 zł

Dodatkowy egzemplarz projektu
492 zł








