Projekt domu BERGAMO 2 dom letniskowy
- Typ projektuLetniskowy
- Powierzchnia użytkowa64.28 m²
- KondygnacjeParterowy
- GarażJednostanowiskowy
- DachDwuspadowy
- Kąt nach. dachu35°
- Odbicie lustrzaneTak
- Czas realizacjido 10 dni roboczych Zobacz więcej >
Opis
Zgodność z WT 2021 i Eurokodami
Ze względu na dostosowywanie projektu do standardu WT 2021, czas realizacji może się różnić od standardowego.
Skontaktuj się z nami aby poznać szczegóły dotyczące wybranego projektu.
Opis projektu
Projekt dostępny również jako CAŁOROCZNY!!!
Zobacz czym różni się projekt domku letniskowego od domu całorocznego?
To dosyć obszerny niepodpiwniczony dom letniskowy, dostępny także w wersji całorocznej. Projekt został tak pomyślany, by stanowił niezwykle funkcjonalną bazę wypoczynkową dla całej rodziny. Budynek jest prosty, pokryty dwuspadowym dachem, wykonanym tak, by tworzyć zadaszenie nad mieszczącym się z tyłu domu uroczym tarasem.
By wejść do domu, trzeba pokonać kilka schodków, wzdłuż których, po prawej i lewej ich stronie, zostały poprowadzone niewielkie murki. Obok wejścia głównego, przewidziano wjazd do jednostanowiskowego garażu, zintegrowanego z resztą domu. Możliwość garażowania samochodu okaże się zapewne bardzo przydatnym rozwiązaniem, szczególnie, gdy zdecydujemy się na całoroczną wersję projektu i będziemy chcieli skorzystać z wypoczynku zimą. Wewnątrz domku, prosto z wiatrołapu możemy przejść na prawo – do garażu, gdzie znajduje się przejście do kotłowni.
Na uwagę zasługuje fakt, iż kotłownia w tym projekcie posiada osobne wyjście na taras, co ułatwi gromadzenie w niej opału. Kierując się z wiatrołapu na wprost, wchodzimy do najobszerniejszego pomieszczenia w całym domu. Ta niezwykła przestrzeń została podzielona na trzy obszary – pokój wypoczynkowy, przylegający do południowej ściany domu, aneks kuchenny i jadalnię. W centralnym miejscu całego pomieszczenia, mamy kominek. Tuż obok aneksu kuchennego, znajduje się wyjście na zadaszony taras. Ponadto do ściany północnej domu przylega także łazienka zaopatrzona w kabinę prysznicową, a do ściany wschodniej dwa pokoje, które można zaadaptować w zależności od potrzeb na sypialnie, pokoje gościnne czy gabinet, dla osób lubiących pracować, gdy mogą obserwować za oknem górski czy morski krajobraz. Projekt Bergamo 2 został stworzony po to, by stać się wygodnym miejscem wypoczynku. Korzystającym z niego osobom da poczucie bezpieczeństwa i komfortu.
Zobacz projekt Bergamo bez garażu.
Konstrukcja
- powierzchnia zabudowy -99,45m2
- kubatura - 524,00m3
- ściany zewnętrzne murowane grubości 30 cm
- ściany wewnętrzne działowe gr. 12 cm
- wszystkie ściany wykonane z pustaków ceramicznych "POROTHERM"
- sufit podwieszany z płyt GK na ruszcie stalowym przymocowanym za pomocą wieszaków
- konstrukcja więźby dachowej drewniana w układzie krokwiowo-jętkowym
- pokrycie dachówka ceramiczna
- projekt posiada kominek
Rzuty
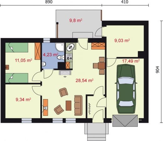
Rzut parteru
- 2. Pokój dzienny z aneksem kuchennym28.03
- 3. Łazienka4.27
- 4. Sypialnia10.85
- 5. Pokój9.16
- 6. Garaż17.23
- 7. Kotłownia8.95
- 8. Weranda10.24
- 1. Wiatrołap3.02
Przekrój A-A
Przekrój B-B
Dane techniczne
- Powierzchnia użytkowa64.28 m²
- Powierzchnia zabudowy99.45 m²
- Liczba pokoi8
- Powierzchnia dachu169 m²
- Kubatura524 m³
- Wysokość domu6.45 m
- Minimalne wymiary działki19.8 x 16.84m
- GarażJednostanowiskowy
- Rodzaj dachuDwuspadowy
- Kąt nach. dachu35°
Zawartość projektu
Projekty są dostępne w wersji książkowej, drukowanej w tak zwanym w nowym trybie 3 egzemplarze projektu architektoniczno-budowlanego oraz 3 egzemplarze projektu technicznego. Na życzenie przesyłamy rzuty i przekroje wersji podstawowych dokumentacji w formacie PDF
Każdy projekt architektoniczno-budowlany domu składa się z następujących części:
- strona tytułowa,
- oświadczenie
- część opisowa projektu architektoniczno-budowlanego,
- projektowana charakterystyka energetyczna z analizą,
- część rysunkowej projektu architektoniczno-budowlanego,
- zaświadczenia i uprawnienia.
Każdy projekt techniczny domu składa się z:
- strony tytułowej,
- oświadczenia,
- części opisowej projektu technicznego,
- części rysunkowej projektu technicznego,
- części konstrukcyjnej,
- zaświadczenia i uprawnień,
- zestawień drewna i stali,
-instalacji elektrycznej i odgromowej,
-instalacji sanitarnych, gazowych i centralnego ogrzewania.
Do projektu na życzenie dołączamy obliczenia statyczno-wytrzymałościowe.
Inwestor otrzymuje 3 opieczętowane sztuki projektu architektoniczno-budowlanego oraz 3 egzemplarze projektu technicznego tworzące komplet, każdy z plombą zabezpieczającą i oryginalnym hologramem biura.
Pierwszy egzemplarz tomu I zawiera zgodę in blanco na wszystkie zmiany wprowadzane do projektu po zakupie przez lokalnego wybranego na własną rękę przez Inwestora architekta adaptującego/kierownika budowy. Do teczki projektów dołączamy także zaświadczenia i aktualne wpisy do Izb autorów projektu oraz wpisy aktualne na czas sporządzenia projektu.
Dodatki
Bezpłatne dodatki
GratisZestaw umów
GratisZmiany w projekcie
GratisTablica budowy
GratisDziennik budowy
Płatne dodatki

Kosztorys
470 zł

Dodatkowy egzemplarz projektu
450 zł

Projekt wentylacji mechanicznej z rekuperatorem
450 zł

Projekt fotowoltaiki dla domu
750 zł

Projekt instalacji z ogrzewaniem podłogowym
400 zł

Elektroniczna wersja projektu
600 zł










