- Typ projektuBliźniak
- Powierzchnia użytkowa188.2 m²
- Kondygnacje
- GarażJednostanowiskowy
- DachDwuspadowy
- Kąt nach. dachu35°
- Odbicie lustrzaneTak
- Czas realizacjimax. czas realizacji 10 dni Zobacz więcej >
Opis
Zgodność z WT 2021 i Eurokodami
Ze względu na dostosowywanie projektu do standardu WT 2021, czas realizacji może się różnić od standardowego.
Skontaktuj się z nami aby poznać szczegóły dotyczące wybranego projektu.
Opis projektu
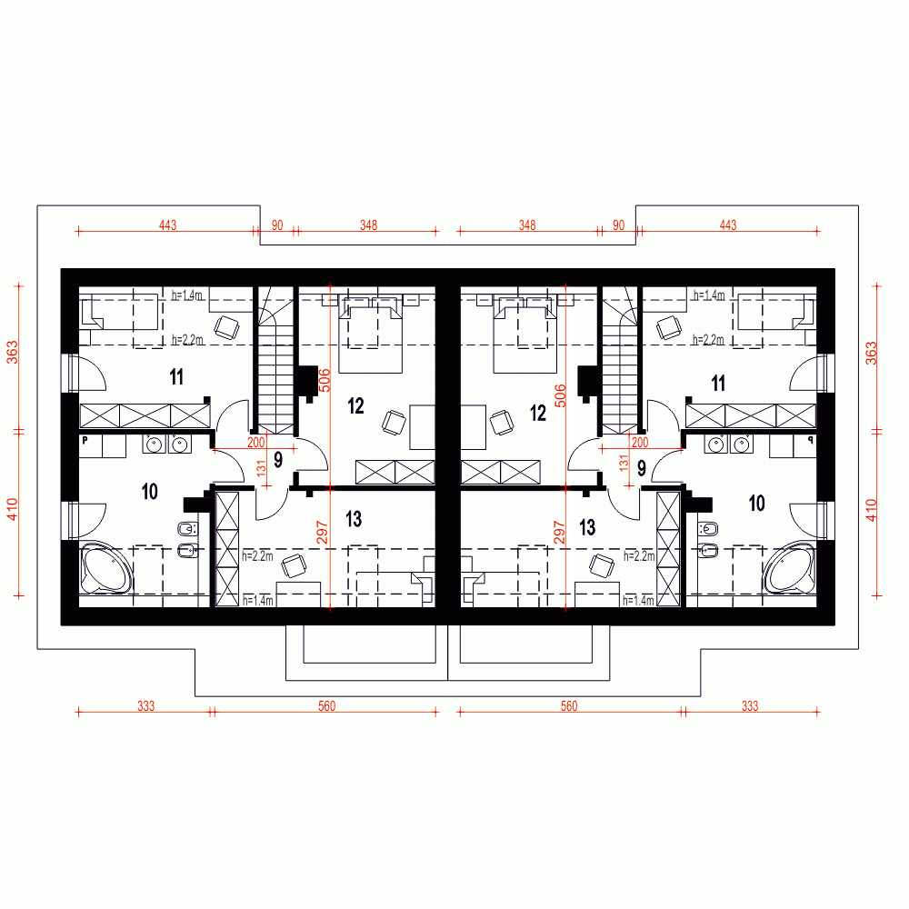
(Uwaga: projekty typu bliźniak oferujemy jako domy dwulokalowe, projekt można zamówić również w zabudowie bliźniaczej)Wariant Biała A-BL powstał poprzez połączenie dwóch segmentów od strony garaży.Poniższy opis dotyczy jednego segmentu:Projekt gotowy Biała to nieduży dom jednorodzinny z poddaszem użytkowym. Nieduża powierzchnia ( ok. 95 m2 - bez garażu) została wykorzystana efektywnie zyskując ustawną przestrzeń. Parter zawiera strefę wspólną, dzienną, gdzie mieści się prostokątny, ustawny salon z jadalnią i wyjściem na zadaszony taras oraz otwartą kuchnię a także schody na druga kondygnację. W centralnym punkcie salonu zaprojektowano komin, do którego można podłączyć kominek równomiernie rozprowadzający ciepło po domu. Miejsce na niewielką garderobę dostępną z holu zostało przewidziane pod schodami. Kuchnia wyposażona została w wygodną spiżarnię, a z wiatrołapu można dostać się do WC i garażu oraz dalej do kotłowni przewidzianej na paliwo gazowe. Na piętrze zaprojektowano trzy sypialnie, oraz duża łazienkę.Biała, to zgrabny domek z zadaszonym wejściem, praktycznym podcieniem za kotłownią oraz zadaszonym wyjściem na taras. W pokojach na piętrze przewidziano portfenetry i dodatkowo okna połaciowe co spowoduje ich doskonałe doświetlenie. Projekt ten szczególnie polecamy na wszystkie tereny zarówno podmiejskie, miejskie i wiejskie ze względu na jej uniwersalną architekturę. Oszczędna forma i optymalnie wykorzystana powierzchnia użytkowa sprawia że domek ten bedzie tani i ekonomiczny w eksploatacji oraz budowie.
Konstrukcja
Rzuty
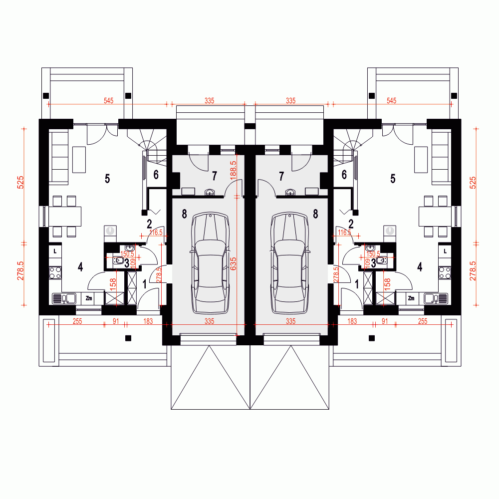
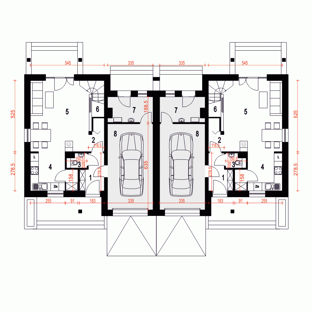
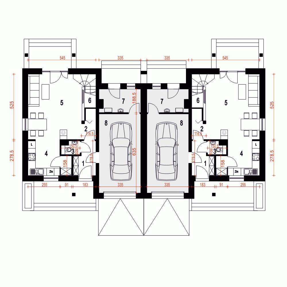
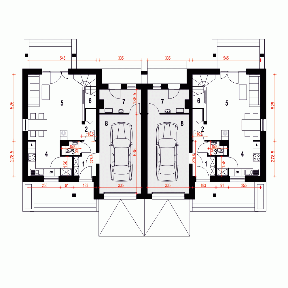
Parter
- m²
- 1. Wiatrołap4.1
- 2. Hol i garderoba2.3
- 3. WC1.4
- 4. Kuchnia, Spiżarnia8.7
- 5. Salon22.9
- 6. Schody3.9
- 7. Pom. tech.*5.9
- 8. Garaż*21
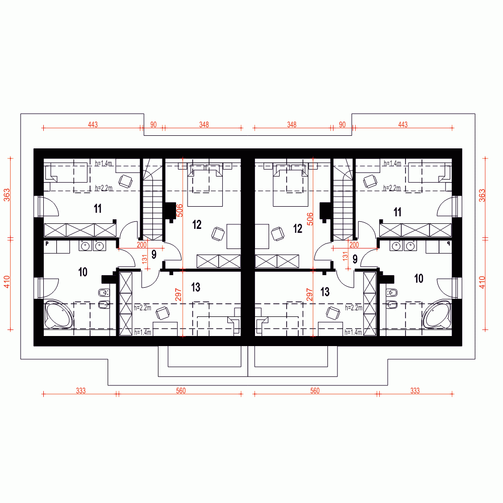
Piętro
Przekrój
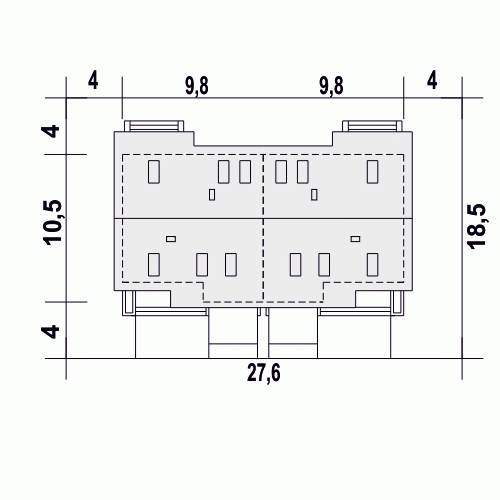
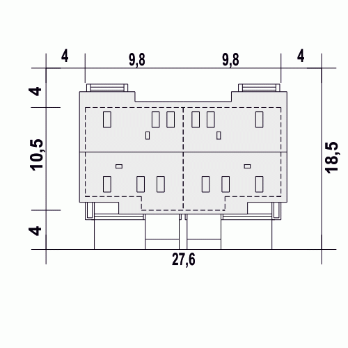
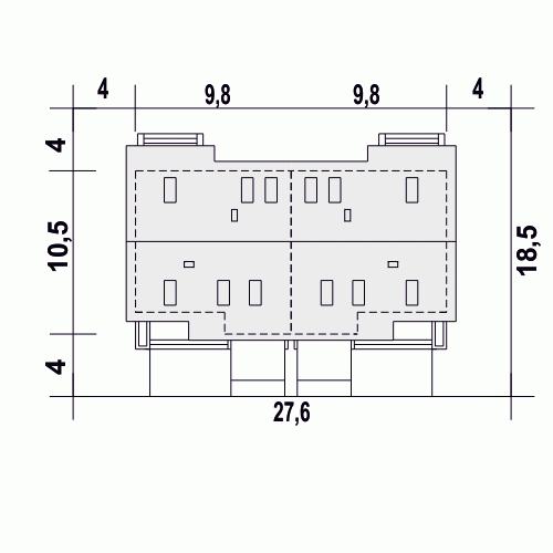
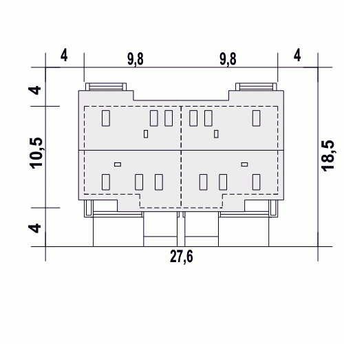
Usytuowanie na działce
Dane techniczne
- Powierzchnia użytkowa188.2 m²
- Powierzchnia zabudowy189.3 m²
- KominekTak
- Liczba łazienek2
- Liczba pokoi8
- Powierzchnia dachu295 m²
- Kubatura680 m³
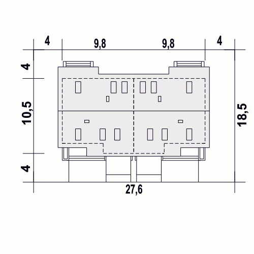
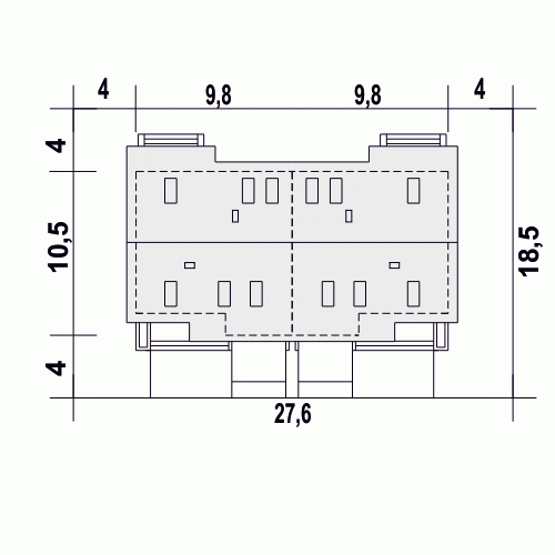
- Długość domu10.5 m
- Szerokość domu19.6 m
- Wysokość domu8.1 m
- Minimalne wymiary działki18.5 x 27.6m
- GarażJednostanowiskowy
- Rodzaj dachuDwuspadowy
- Kąt nach. dachu35°
Instalacja grzewcza
- Instalacja grzewczaGaz
- Instalacja opcjonalna
Zawartość projektu
Zgodnie ze znowelizowaną Ustawą Prawo Budowlane art.34 ust.3, na projekt budowlany składają się trzy części:
- projekt zagospodarowania działki lub terenu
- projekt architektoniczno-budowlany
- projekt techniczny
Nasze projekty oferujemy w 3 egzemplarzach, zawierających projekt architektoniczno-budowlany i projekt techniczny. Projekt zagospodarowania działki lub terenu nie wchodzi w skład projektu oferowanego do sprzedaży. Projekt ten należy zlecić we własnym zakresie lokalnemu projektantowi, który opracuje go na podstawie danych zawartych w projekcie architektoniczno-budowlanym i technicznym, po dostosowaniu projektu do warunków lokalnych i wymagań inwestora.
UWAGA: wszystkie egzemplarze projektu zabezpieczone są hologramami, w części rysunkowej posiadają nadruki zabezpieczające w kolorze zielonym. Zalecamy aby po otrzymaniu przesyłki kontrolować czy na pierwszych stronach projektu znajduje się hologram i czy na rysunkach widoczne są w/w nadruki potwierdzające oryginalność projektu.
Wyrażamy zgodę na wszelkie zmiany zgodne z obowiązującymi przepisami pod warunkiem wprowadzenia ich przez uprawnioną osobę.
Wszystkie zmiany wymienione powyżej powinny być naniesione na oryginał projektu katalogowego trwałą techniką graficzną w kolorze czerwonym lub dołączone jako aneks i podpisane przez osobę uprawnioną dokonująca adaptacji.
**ważne informacje
Projekt w fazie koncepcji dostępny z wydłużonym terminem realizacji. Przy zamówieniu ustalamy termin i pobieramy zadatek 50% podstawowej ceny projektu (jako koszty usługi przygotowania dokumentacji do standardu projektu gotowego, w przypadku rezygnacji z usługi, zadatek nie podlega zwrotowi).
Cena za dodatkowy egzemplarz projektu jest zależna od nazwy projektu!
Dodatki
Bezpłatne dodatki
GratisZestaw umów
GratisZmiany w projekcie
GratisTablica budowy
GratisDziennik budowy
Płatne dodatki

Kosztorys - stan wykończony
540 zł

Projekt wentylacji mechanicznej
1 000 zł
















