Projekt domu Bursztyn II A1 z garażem 2st.
- Typ projektuWolnostojący
- Powierzchnia użytkowa129 m²
- Kondygnacje
- GarażDwustanowiskowy
- DachWielospadowy
- Kąt nach. dachu25°
- Odbicie lustrzaneTak
- Czas realizacjimax. czas realizacji 10 dni Zobacz więcej >
Opis
Zgodność z WT 2021 i Eurokodami
Ze względu na dostosowywanie projektu do standardu WT 2021, czas realizacji może się różnić od standardowego.
Skontaktuj się z nami aby poznać szczegóły dotyczące wybranego projektu.
Opis projektu
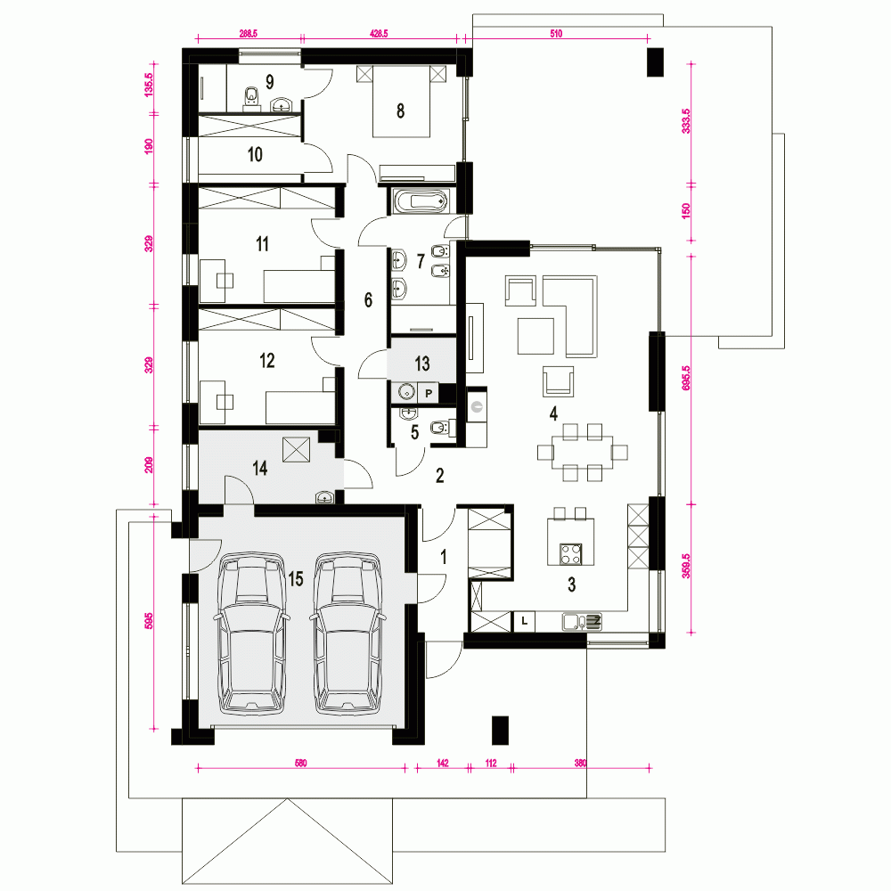
Projekt domu jednorodzinnego Bursztyn II A1 powstał jako wariant ze zmienioną geometrią dachu wariantu A. To propozycja wygodnego parterowego domu z dachem wielospadowym i dwustanowiskowym garażem. Projekt przewidziany jest dla czteroosobowej rodziny. Bursztyn II posiada sporych rozmiarów strefę dzienną (z dużym salonem z wyjściem na obszerny,zadaszony taras, dużą kuchnią z wyspą, sporą spiżarnią i WC dla gości) oraz funkcjonalną strefę nocną, na którą składają się: 3 sypialnie-w tym jedna posiada wewnętrzną łazienkę i garderobę, duża łazienka z oknem, pralnia oraz kotłownia z przejściem do garażu. Podcień z przodu domu chroni wejście główne przed opadami. Sporych rozmiarów kotłownia pomieści piec na paliwo stałe.
Konstrukcja
Rzuty
Parter
- m²
- 1. Wiatrołap z garderobą7.1
- 2. Hol4.9
- 3. Kuchnia ze spiżarnią15
- 4. Salon35.5
- 5. WC1.8
- 6. Korytarz8.5
- 7. Łazienka7.4
- 8. Sypialnia14.1
- 9. Łazienka3.8
- 10. Garderoba5.3
- 11. Sypialnia12.9
- 12. Sypialnia12.9
- 13. Pralnia*3.2
- 14. Kotłownia*7.9
- 15. Garaż*34.2
Przekrój
Usytuowanie na działce
Dane techniczne
- Powierzchnia użytkowa129 m²
- Powierzchnia zabudowy218.6 m²
- KominekTak
- Liczba łazienek2
- Liczba pokoi4
- Powierzchnia dachu326.5 m²
- Kubatura389 m³
- Długość domu19.6 m
- Szerokość domu13.6 m
- Wysokość domu7 m
- Minimalne wymiary działki27.6 x 21.6m
- GarażDwustanowiskowy
- Rodzaj dachuWielospadowy
- Kąt nach. dachu25°
Instalacja grzewcza
- Instalacja grzewczaGaz, Paliwo stałe
- Instalacja opcjonalna
Zawartość projektu
Zgodnie ze znowelizowaną Ustawą Prawo Budowlane art.34 ust.3, na projekt budowlany składają się trzy części:
- projekt zagospodarowania działki lub terenu
- projekt architektoniczno-budowlany
- projekt techniczny
Nasze projekty oferujemy w 3 egzemplarzach, zawierających projekt architektoniczno-budowlany i projekt techniczny. Projekt zagospodarowania działki lub terenu nie wchodzi w skład projektu oferowanego do sprzedaży. Projekt ten należy zlecić we własnym zakresie lokalnemu projektantowi, który opracuje go na podstawie danych zawartych w projekcie architektoniczno-budowlanym i technicznym, po dostosowaniu projektu do warunków lokalnych i wymagań inwestora.
UWAGA: wszystkie egzemplarze projektu zabezpieczone są hologramami, w części rysunkowej posiadają nadruki zabezpieczające w kolorze zielonym. Zalecamy aby po otrzymaniu przesyłki kontrolować czy na pierwszych stronach projektu znajduje się hologram i czy na rysunkach widoczne są w/w nadruki potwierdzające oryginalność projektu.
Wyrażamy zgodę na wszelkie zmiany zgodne z obowiązującymi przepisami pod warunkiem wprowadzenia ich przez uprawnioną osobę.
Wszystkie zmiany wymienione powyżej powinny być naniesione na oryginał projektu katalogowego trwałą techniką graficzną w kolorze czerwonym lub dołączone jako aneks i podpisane przez osobę uprawnioną dokonująca adaptacji.
**ważne informacje
Projekt w fazie koncepcji dostępny z wydłużonym terminem realizacji. Przy zamówieniu ustalamy termin i pobieramy zadatek 50% podstawowej ceny projektu (jako koszty usługi przygotowania dokumentacji do standardu projektu gotowego, w przypadku rezygnacji z usługi, zadatek nie podlega zwrotowi).
Cena za dodatkowy egzemplarz projektu jest zależna od nazwy projektu!
Polecane projekty
Dodatki
Bezpłatne dodatki
GratisZestaw umów
GratisZmiany w projekcie
GratisTablica budowy
GratisDziennik budowy
Płatne dodatki

Kosztorys - stan wykończony
540 zł

Projekt wentylacji mechanicznej
1 000 zł









