Projekt domu Chmiel z garażem
- Typ projektuWolnostojący
- Powierzchnia użytkowa115.1 m²
- Kondygnacje
- GarażJednostanowiskowy
- DachDwuspadowy
- Kąt nach. dachu45°
- Odbicie lustrzaneTak
- Czas realizacjimax. czas realizacji 10 dni Zobacz więcej >
Opis
Zgodność z WT 2021 i Eurokodami
Ze względu na dostosowywanie projektu do standardu WT 2021, czas realizacji może się różnić od standardowego.
Skontaktuj się z nami aby poznać szczegóły dotyczące wybranego projektu.
Opis projektu
Chmiel to ciekawy projekt domu jednorodzinnego, bardzo długiego i wąskiego. Dom jest przewidziany dla 3-4 osobowej rodziny. Bryła budynku oparta jest na prostokątnym rzucie i przekryta jest dachem dwuspadowym o kącie nachylenia 45 st. Obok budynku mieszkalnego zaproponowano część gospodarczą i garażową o podobnej architekturze zewnętrznej. Po wejściu do budynku wchodzimy do wiatrołapu, obok którego jest pomieszczenie techniczne z piecem CO. W części mieszkalnej na parterze są dwie sypialnie (jedna z nich ma indywidualna łazienkę), korytarz, schody.Na końcu budynku jest salon, kuchnia oraz jadalnia. Salon ma duże przeszklenia i otwarcie aż do dachu oraz anytesolę i kominek. Na poddaszu mieści się spora przestrzeń do indywidualnego zagospodarowania.Architektura i przemyślana funkcja są atutami tego nowoczesnego domu.
Konstrukcja
fundamenty: betonowe
ściany zewnętrzne: porotherm+styropian termo organika
ściany wewnętrzne: porotherm
rodzaj stropu: teriva
elewacje: tynk strukturalny, cegła klinkierowa
pokrycie dachu: dachówka ceramiczna
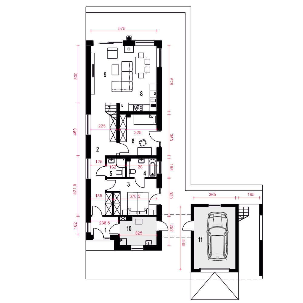
Rzuty
Parter
- m²
- 1. Wiatrołap3.8
- 2. Hol, komunikacja15.3
- 3. Pokój12.5
- 4. Łazienka4.2
- 5. WC2.6
- 6. Pokój11.4
- 7. Schody3.2
- 8. Kuchnia5.5
- 9. Salon25.3
- 10. Pom. tech. + CO*7.8
- 11. Garaż*19.6
Piętro
Dane techniczne
- Powierzchnia użytkowa115.1 m²
- Powierzchnia zabudowy158.2 m²
- KominekTak
- Liczba łazienek2
- Liczba pokoi4
- Powierzchnia dachu227.7 m²
- Długość domu20.6 m
- Szerokość domu15.5 m
- Wysokość domu7.4 m
- Minimalne wymiary działki28.6 x 22.5m
- GarażJednostanowiskowy
- Rodzaj dachuDwuspadowy
- Kąt nach. dachu45°
Instalacja grzewcza
- Instalacja grzewczaGaz
- Instalacja opcjonalna
Zawartość projektu
Zgodnie ze znowelizowaną Ustawą Prawo Budowlane art.34 ust.3, na projekt budowlany składają się trzy części:
- projekt zagospodarowania działki lub terenu
- projekt architektoniczno-budowlany
- projekt techniczny
Nasze projekty oferujemy w 3 egzemplarzach, zawierających projekt architektoniczno-budowlany i projekt techniczny. Projekt zagospodarowania działki lub terenu nie wchodzi w skład projektu oferowanego do sprzedaży. Projekt ten należy zlecić we własnym zakresie lokalnemu projektantowi, który opracuje go na podstawie danych zawartych w projekcie architektoniczno-budowlanym i technicznym, po dostosowaniu projektu do warunków lokalnych i wymagań inwestora.
UWAGA: wszystkie egzemplarze projektu zabezpieczone są hologramami, w części rysunkowej posiadają nadruki zabezpieczające w kolorze zielonym. Zalecamy aby po otrzymaniu przesyłki kontrolować czy na pierwszych stronach projektu znajduje się hologram i czy na rysunkach widoczne są w/w nadruki potwierdzające oryginalność projektu.
Wyrażamy zgodę na wszelkie zmiany zgodne z obowiązującymi przepisami pod warunkiem wprowadzenia ich przez uprawnioną osobę.
Wszystkie zmiany wymienione powyżej powinny być naniesione na oryginał projektu katalogowego trwałą techniką graficzną w kolorze czerwonym lub dołączone jako aneks i podpisane przez osobę uprawnioną dokonująca adaptacji.
**ważne informacje
Projekt w fazie koncepcji dostępny z wydłużonym terminem realizacji. Przy zamówieniu ustalamy termin i pobieramy zadatek 50% podstawowej ceny projektu (jako koszty usługi przygotowania dokumentacji do standardu projektu gotowego, w przypadku rezygnacji z usługi, zadatek nie podlega zwrotowi).
Cena za dodatkowy egzemplarz projektu jest zależna od nazwy projektu!
Polecane projekty
Dodatki
Bezpłatne dodatki
GratisZestaw umów
GratisZmiany w projekcie
GratisTablica budowy
GratisDziennik budowy
Płatne dodatki

Kosztorys - stan wykończony
540 zł

Projekt wentylacji mechanicznej
1 000 zł













