Projekt domu Cyrus III z garażem 2st.
- Typ projektuWolnostojący
- Powierzchnia użytkowa134.9 m²
- Kondygnacje
- GarażDwustanowiskowy
- DachWielospadowy
- Kąt nach. dachu25°
- Odbicie lustrzaneTak
- Czas realizacjimax. czas realizacji 10 dni Zobacz więcej >
Opis
Zgodność z WT 2021 i Eurokodami
Ze względu na dostosowywanie projektu do standardu WT 2021, czas realizacji może się różnić od standardowego.
Skontaktuj się z nami aby poznać szczegóły dotyczące wybranego projektu.
Opis projektu
Projekt Cyrus III to propozycja nowoczesnego domu parterowego - to inna wersja popularnego projektu Cyrus, z naszej kolekcji. Cyrus III posiada modne i ciekawe wykończenia elewacji w drewnie i w klinkierze, o ciepłych kolorach. Projekt zaprojektowany został dla 4-osobowej rodziny. Ten wygodny dom posiada przestronny pokój dzienny z kominkiem i "szklaną ścianą" z możliwością wyjścia na ogród, który sąsiaduje z otwartą wygodną kuchnią oraz jadalnią gdzie z powodzeniem zmieści się duży rodzinny stół jadalny. Przy kuchni zaprojektowano wygodną spiżarnię na zapasy.Poprzez funkcjonalny podział pomieszczeń domu na strefy dzienną i nocną zapewnia, całej rodzinie została zapewniona wygoda o poczucie komfortu. W kolejnej części domu, strefie prywatnej, przewidziano trzy wygodne sypialnie, garderobę i dwie łazienki. Jedna z nich dostępna jest z dwuosobowej sypialni. W projekcie - na poddaszu, zaprojektowano miejsce do celów magazynowych. Projekt Cyrus III wyposażony został w przybudowany garaż na dwa samochody, znajdziemy w nim sporo miejsca na rowery, czy kosiarkę. Mały kąt nachylenia dachu podkreśla elegancki i efektowny charakter domu. Nowoczesne podcienie z modnymi ramami na elewacji, podkreślają elegancki wygląd domu.
Konstrukcja
fundamenty: betonowe
ściany zewnętrzne: pustak ceram. porotherm+styropian termo organika
ściany wewnętrzne: porotherm / cegł.dziurawka
rodzaj stropu: teriva
elewacje: tynk strukturalny
pokrycie dachu: dachówka cem. lub cer.
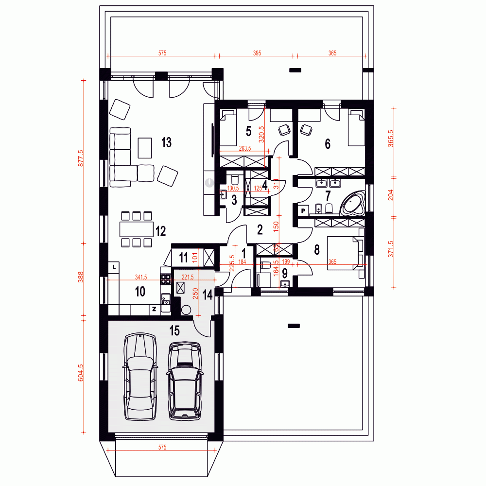
Rzuty
Parter
- m²
- 1. Wiatrołap4.1
- 2. Hol12
- 3. WC2.1
- 4. Garderoba2.3
- 5. Pokój11.6
- 6. Pokój13.1
- 7. Łazienka7.3
- 8. Pokój13.4
- 9. Łazienka3.3
- 10. Kuchnia13.1
- 11. Spiżarnia2.6
- 12. Jadalnia8.4
- 13. Salon41.6
- 14. Kotłownia*5
- 15. Garaż*33.9
Przekrój
Usytuowanie na działce
Dane techniczne
- Powierzchnia użytkowa134.9 m²
- Powierzchnia zabudowy218.8 m²
- KominekTak
- Liczba łazienek2
- Liczba pokoi4
- Powierzchnia dachu291.5 m²
- Kubatura486 m³
- Długość domu19.9 m
- Szerokość domu14.8 m
- Wysokość domu6.5 m
- Minimalne wymiary działki27.9 x 22.8m
- GarażDwustanowiskowy
- Rodzaj dachuWielospadowy
- Kąt nach. dachu25°
Instalacja grzewcza
- Instalacja grzewczaGaz
- Instalacja opcjonalna
Zawartość projektu
Zgodnie ze znowelizowaną Ustawą Prawo Budowlane art.34 ust.3, na projekt budowlany składają się trzy części:
- projekt zagospodarowania działki lub terenu
- projekt architektoniczno-budowlany
- projekt techniczny
Nasze projekty oferujemy w 3 egzemplarzach, zawierających projekt architektoniczno-budowlany i projekt techniczny. Projekt zagospodarowania działki lub terenu nie wchodzi w skład projektu oferowanego do sprzedaży. Projekt ten należy zlecić we własnym zakresie lokalnemu projektantowi, który opracuje go na podstawie danych zawartych w projekcie architektoniczno-budowlanym i technicznym, po dostosowaniu projektu do warunków lokalnych i wymagań inwestora.
UWAGA: wszystkie egzemplarze projektu zabezpieczone są hologramami, w części rysunkowej posiadają nadruki zabezpieczające w kolorze zielonym. Zalecamy aby po otrzymaniu przesyłki kontrolować czy na pierwszych stronach projektu znajduje się hologram i czy na rysunkach widoczne są w/w nadruki potwierdzające oryginalność projektu.
Wyrażamy zgodę na wszelkie zmiany zgodne z obowiązującymi przepisami pod warunkiem wprowadzenia ich przez uprawnioną osobę.
Wszystkie zmiany wymienione powyżej powinny być naniesione na oryginał projektu katalogowego trwałą techniką graficzną w kolorze czerwonym lub dołączone jako aneks i podpisane przez osobę uprawnioną dokonująca adaptacji.
**ważne informacje
Projekt w fazie koncepcji dostępny z wydłużonym terminem realizacji. Przy zamówieniu ustalamy termin i pobieramy zadatek 50% podstawowej ceny projektu (jako koszty usługi przygotowania dokumentacji do standardu projektu gotowego, w przypadku rezygnacji z usługi, zadatek nie podlega zwrotowi).
Cena za dodatkowy egzemplarz projektu jest zależna od nazwy projektu!
Polecane projekty
Dodatki
Bezpłatne dodatki
GratisZestaw umów
GratisZmiany w projekcie
GratisTablica budowy
GratisDziennik budowy
Płatne dodatki

Kosztorys - stan wykończony
540 zł

Projekt wentylacji mechanicznej
1 000 zł

















