- Typ projektuWolnostojący
- StylNowoczesny
- Powierzchnia użytkowa125.2 m²
- KondygnacjeParterowy, z poddaszem
- GarażJednostanowiskowy
- DachDwuspadowy
- Kąt nach. dachu40°
- Odbicie lustrzaneTak
- Czas realizacji14 dni Zobacz więcej >
Opis
Zgodność z WT 2021 i Eurokodami
Ze względu na dostosowywanie projektu do standardu WT 2021, czas realizacji może się różnić od standardowego.
Skontaktuj się z nami aby poznać szczegóły dotyczące wybranego projektu.
Opis projektu
Gotowy projekt D102C to nowoczesny dom jednorodzinny z poddaszem przeznaczony dla czteroosobowej rodziny. Dom idealny na wąska działkę. Prosta forma o nieskomplikowanej konstrukcji zaprojektowana na planie prostokąta zwieńczona dwuspadowym dachem pozwoli na szybką i ekonomiczną budowę oraz późniejszą eksploatację. Białą kolorystykę urozmaicają drewniane wykończenia elewacji. Zadaszony taras wraz z balkonem stanowią ciekawy i nowoczesny element bryły budynku. Projekt domu jednorodzinnego D102A jest doskonałą propozycją dla rodzin preferujących rozkład pomieszczeń podzielony na cześć dzienną i nocną, które cenią funkcjonalność, ale także elegancję i nowoczesność.Konstrukcja
Ściany zewnętrzne: dwuwarstwoweŚciany wewnętrzne: bloczki 12 cm
Strop: gęstożebrowy
Pokrycie dachu: blachodachówka
Elewacje: tynk cienkowarstwowy na fragm. płyty HPL.
Ogrzewanie: gazowe
PROJEKT SPEŁNIA WT2021
EP=70kWh
Rzuty
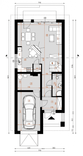
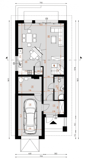
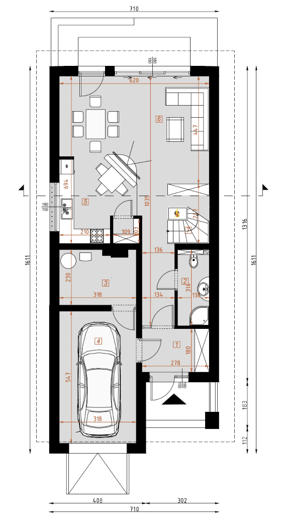
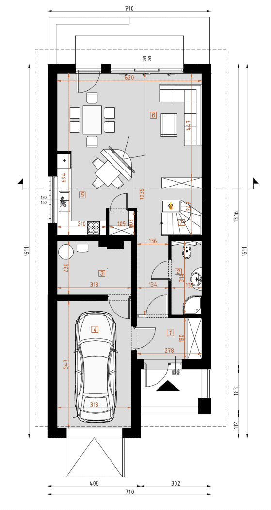
Parter
- przedsionek5.00
- korytarz6.58
- łazienka4.09
- kuchnia9.44
- spiżarnia1.11
- salon+jadalnia27.01
- pom. techniczne6.88
- garaż17.20
- taras 15.29
- taras 213.46
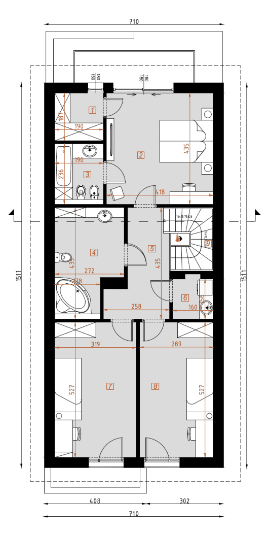
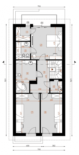
Poddasze
Dane techniczne
- Powierzchnia użytkowa125.2 m²
- Powierzchnia zabudowy105.46 m²
- Liczba łazienek3
- Liczba pokoi3
- Kubatura665 m³
- Wysokość domu7.93 m
- Minimalne wymiary działki24.11 x 14.1m
- GarażJednostanowiskowy
- Rodzaj dachuDwuspadowy
- Kąt nach. dachu40°
Zawartość projektu
*-ważne informacje dodatkowe, zmiany z dnia 22.05.2023r.
Projekty szkieletów, które nadal są koncepcjami, nie będą miały rysunków układów ścian i zestawienia drewna ścian (zestawienie więźby zostaje bez zmian).
Plomby w projektach pozostają bez zmian. Nie rozplombowany projekt będzie można zwrócić na dotychczasowych zasadach.
Projekty domów jednorodzinnych oraz garaży sprzedajemy w 5 egzemplarzach - 3 egzemplarze architektoniczno-budowlane oraz 2 egzemplarze techniczne.
Projekt architektoniczno-budowlany stanowi część projektu budowlanego, który jest podstawą do wydania Decyzji o pozwoleniu na budowę. Projekt budowlany składa się z:
- projektu architektoniczno-budowlanego,
- projektu technicznego,
- projektu zagospodarowania działki.
Część architektoniczno-konstrukcyjną:
- rzut fundamentów – dokładne rozmieszczenie fundamentów, wymiary ław fundamentowych i głębokość ich posadowienia.
- rzuty wszystkich kondygnacji (np. parter, piwnica, piętro) – rozmieszczenie i wymiary wszystkich pomieszczeń, rozmieszczenie i wielkość otworów okiennych i drzwiowych, rozmieszczenie kominów, sugerowana aranżacja wnętrz.
- rzut więźby dachowej – wymiary i rozmieszczenie elementów konstrukcji dachu.
- rzut dachu – wymiary dachu, kąt nachylenia wszystkich połaci dachu, rozmieszczenie okien połaciowych, lukarn, kominów.
- przekroje pionowe – rysunki budynku po pionowym przecięciu, pokazują wszystkie elementy konstrukcji budynku, czyli warstwy podłogi, stropów, dachu.
- elewacje (frontowa, dwie elewacje boczne, ogrodowa) – dokładny wygląd domu z każdej strony.
- zestawienie stolarki okiennej i drzwiowej – wymiary okien i drzwi wykorzystanych w projekcie
Część instalacyjną:
- schemat instalacji wodno-kanalizacyjnej
- schemat instalacji centralnego ogrzewania
- schemat instalacji elektrycznej
- schemat instalacji gazowej - jeśli jest przewidziana w projekcie.
Zmiany w projektach
- Razem z projektem możemy dostarczyć bezpłatnie podpisaną przez autora projektu zgodę na określone zmiany. W myśl ustawy o ochronie praw autorskich jest ona wymagana do wprowadzenia przez architekta adaptującego zmian adaptacyjnych w projekcie. Po otrzymaniu projektu należy udać się do lokalnego architekta, który naniesie dom na działkę i przygotuje projekt zagospodarowania działki oraz dokona zmian w projekcie.
Dodatki
Bezpłatne dodatki
GratisZestaw umów
GratisZmiany w projekcie
GratisTablica budowy
GratisDziennik budowy
GratisCharakterystyka energetyczna
Płatne dodatki

Dodatkowy egzemplarz projektu
450 zł

Kosztorys budowlany inwestorski
990 zł

Projekt wentylacji mechanicznej z rekuperacją
890 zł

Projekt ogrzewania podłogowego
790 zł

Projekt instalacji solarnej
990 zł












