Projekt domu D156A - WT2021
Promocja ważna do
30-03-2026
- Typ projektuWolnostojący
- StylTradycyjny
- Powierzchnia użytkowa135.76 m²
- KondygnacjeParterowy, z poddaszem
- GarażJednostanowiskowy
- DachDwuspadowy
- Kąt nach. dachu35°
- Odbicie lustrzaneTak
- Czas realizacji21 dni Zobacz więcej >
Opis
Zgodność z WT 2021 i Eurokodami
Ze względu na dostosowywanie projektu do standardu WT 2021, czas realizacji może się różnić od standardowego.
Skontaktuj się z nami aby poznać szczegóły dotyczące wybranego projektu.
Opis projektu
Dom D156A jest odpowiedzią na potrzeby naszych klientów, szukających miejskiego domu z poddaszem użytkowym i garażem. Prosta, czysta bryła oraz harmonijny podział w elewacjach czynią ten dom klasycznie eleganckim. Podstawowym założeniem przyjętym przy projekcie budynku było harmonijne wpisanie się w miejski krajobraz. W elewacji budynku poprzez materiał zaakcentowano wyraźnie, strefę wejściową. W bryle budynku oddzielono także funkcję mieszkalną dzienną od nocnej, jak również strefę mieszkalną od garażu i strefy gospodarczej.Konstrukcja
Ściany zewnętrzne: murowane z ociepleniem i licówkąŚciany wewnętrzne: bloczki 12 cm
Strop: gęstożebrowy Teriva
Pokrycie dachu: blachodachówka
Elewacje: tynk cienkowarstwowy na fragm. płyty z piaskowca lub imitacji kamienia.
EP=70 WT2021
Ogrzewanie gazowe
Rzuty
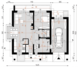
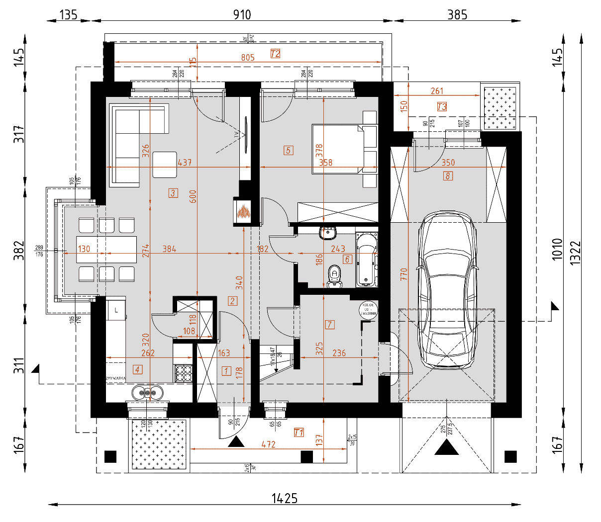
Parter
- przedsionek2.90
- hall7.97
- salon / jadalnia27.63
- kuchnia/spiżarnia8.65
- pokój13.54
- łazienka4.46
- pomieszczenie techniczne7.53
- garaż26.93
- taras 18.25
- taras 212.18
- taras 33.91
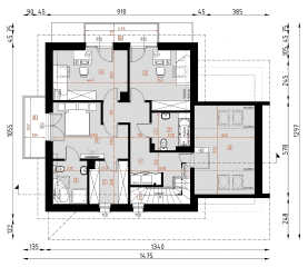
Poddasze
Dane techniczne
- Powierzchnia użytkowa135.76 m²
- Powierzchnia zabudowy129.88 m²
- Liczba łazienek3
- Liczba pokoi4
- Kubatura874.55 m³
- Wysokość domu8.82 m
- Minimalne wymiary działki18.1 x 21.25m
- GarażJednostanowiskowy
- Rodzaj dachuDwuspadowy
- Kąt nach. dachu35°
Zawartość projektu
Projekty szkieletów, które nadal są koncepcjami, nie będą miały rysunków układów ścian i zestawienia drewna ścian (zestawienie więźby zostaje bez zmian).
Plomby w projektach pozostają bez zmian. Nie rozplombowany projekt będzie można zwrócić na dotychczasowych zasadach.
Projekty domów jednorodzinnych oraz garaży sprzedajemy w 5 egzemplarzach - 3 egzemplarze architektoniczno-budowlane oraz 2 egzemplarze techniczne.
Projekt architektoniczno-budowlany stanowi część projektu budowlanego, który jest podstawą do wydania Decyzji o pozwoleniu na budowę. Projekt budowlany składa się z:
- projektu architektoniczno-budowlanego,
- projektu technicznego,
- projektu zagospodarowania działki.
Część architektoniczno-konstrukcyjną:
- rzut fundamentów – dokładne rozmieszczenie fundamentów, wymiary ław fundamentowych i głębokość ich posadowienia.
- rzuty wszystkich kondygnacji (np. parter, piwnica, piętro) – rozmieszczenie i wymiary wszystkich pomieszczeń, rozmieszczenie i wielkość otworów okiennych i drzwiowych, rozmieszczenie kominów, sugerowana aranżacja wnętrz.
- rzut więźby dachowej – wymiary i rozmieszczenie elementów konstrukcji dachu.
- rzut dachu – wymiary dachu, kąt nachylenia wszystkich połaci dachu, rozmieszczenie okien połaciowych, lukarn, kominów.
- przekroje pionowe – rysunki budynku po pionowym przecięciu, pokazują wszystkie elementy konstrukcji budynku, czyli warstwy podłogi, stropów, dachu.
- elewacje (frontowa, dwie elewacje boczne, ogrodowa) – dokładny wygląd domu z każdej strony.
- zestawienie stolarki okiennej i drzwiowej – wymiary okien i drzwi wykorzystanych w projekcie
Część instalacyjną:
- schemat instalacji wodno-kanalizacyjnej
- schemat instalacji centralnego ogrzewania
- schemat instalacji elektrycznej
- schemat instalacji gazowej - jeśli jest przewidziana w projekcie.
Zmiany w projektach
- Razem z projektem możemy dostarczyć bezpłatnie podpisaną przez autora projektu zgodę na określone zmiany. W myśl ustawy o ochronie praw autorskich jest ona wymagana do wprowadzenia przez architekta adaptującego zmian adaptacyjnych w projekcie. Po otrzymaniu projektu należy udać się do lokalnego architekta, który naniesie dom na działkę i przygotuje projekt zagospodarowania działki oraz dokona zmian w projekcie.
Polecane projekty
Dodatki
Bezpłatne dodatki
GratisZestaw umów
GratisZmiany w projekcie
GratisTablica budowy
GratisDziennik budowy
GratisCharakterystyka energetyczna
Płatne dodatki

Dodatkowy egzemplarz projektu
490 zł

Kosztorys budowlany inwestorski
990 zł

Projekt wentylacji mechanicznej z rekuperacją
890 zł

Projekt ogrzewania podłogowego
790 zł

Projekt instalacji solarnej do ciepłej wody
990 zł













