- Typ projektuWolnostojący
- StylDworkowy
- Powierzchnia użytkowa132.8 m²
- KondygnacjeParterowy
- GarażBez garażu
- DachCzterospadowy
- Kąt nach. dachu25°
- Odbicie lustrzaneTak
- Czas realizacji3 dni Zobacz więcej >
Opis
Zgodność z WT 2021 i Eurokodami
Ze względu na dostosowywanie projektu do standardu WT 2021, czas realizacji może się różnić od standardowego.
Skontaktuj się z nami aby poznać szczegóły dotyczące wybranego projektu.
Opis projektu
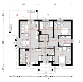
W układzie prezentowanego budynku oddzielono strefę dzienną od prywatnej. Od strony południowej zaprojektowano salon i jadalnię, od strony północnej sypialnie i pokój gościnny. Wejście znajduje się po wschodniej stronie budynku. Na tą stronę wychodzą także okna kuchni. Strefa dzienna składa się z hall’u, kuchni, salonu połączonego z jadalnią. Strefa prywatna składa się z trzech pokoi i łazienki, spiżarnia z piecem CO i termą CW. Funkcję komunikacyjną pełni hall. POSIADAMY ten projekt w kilku różnych wersjach, które można obejrzeć na naszej stronie internetowej. Zapraszamy!Konstrukcja
Ściany wewnętrzne: bloczki 12 cmStrop: drewniany (pas dolny dźwigarów dachowych)
Pokrycie dachu: dachówka ceramiczna
Elewacje: tynk cienkowarstwowy na styropianie, na fragmentach płytki elewacyjne imitujące cegły klinkierowe
Ogrzewanie - piec gazowy
EP70 kWh/m2.rok
Projekt zgodny z Wt2021
Rzuty
Parter
Dane techniczne
- Powierzchnia użytkowa132.8 m²
- Powierzchnia zabudowy164.95 m²
- Liczba łazienek2
- Liczba pokoi4
- Kubatura644.22 m³
- Wysokość domu6.5 m
- Minimalne wymiary działki20.42 x 22.82m
- GarażBez garażu
- Rodzaj dachuCzterospadowy
- Kąt nach. dachu25°
Zawartość projektu
*-ważne informacje dodatkowe, zmiany z dnia 22.05.2023r.
Projekty szkieletów, które nadal są koncepcjami, nie będą miały rysunków układów ścian i zestawienia drewna ścian (zestawienie więźby zostaje bez zmian).
Plomby w projektach pozostają bez zmian. Nie rozplombowany projekt będzie można zwrócić na dotychczasowych zasadach.
Projekty domów jednorodzinnych oraz garaży sprzedajemy w 5 egzemplarzach - 3 egzemplarze architektoniczno-budowlane oraz 2 egzemplarze techniczne.
Projekt architektoniczno-budowlany stanowi część projektu budowlanego, który jest podstawą do wydania Decyzji o pozwoleniu na budowę. Projekt budowlany składa się z:
- projektu architektoniczno-budowlanego,
- projektu technicznego,
- projektu zagospodarowania działki.
Część architektoniczno-konstrukcyjną:
- rzut fundamentów – dokładne rozmieszczenie fundamentów, wymiary ław fundamentowych i głębokość ich posadowienia.
- rzuty wszystkich kondygnacji (np. parter, piwnica, piętro) – rozmieszczenie i wymiary wszystkich pomieszczeń, rozmieszczenie i wielkość otworów okiennych i drzwiowych, rozmieszczenie kominów, sugerowana aranżacja wnętrz.
- rzut więźby dachowej – wymiary i rozmieszczenie elementów konstrukcji dachu.
- rzut dachu – wymiary dachu, kąt nachylenia wszystkich połaci dachu, rozmieszczenie okien połaciowych, lukarn, kominów.
- przekroje pionowe – rysunki budynku po pionowym przecięciu, pokazują wszystkie elementy konstrukcji budynku, czyli warstwy podłogi, stropów, dachu.
- elewacje (frontowa, dwie elewacje boczne, ogrodowa) – dokładny wygląd domu z każdej strony.
- zestawienie stolarki okiennej i drzwiowej – wymiary okien i drzwi wykorzystanych w projekcie
Część instalacyjną:
- schemat instalacji wodno-kanalizacyjnej
- schemat instalacji centralnego ogrzewania
- schemat instalacji elektrycznej
- schemat instalacji gazowej - jeśli jest przewidziana w projekcie.
Zmiany w projektach
- Razem z projektem możemy dostarczyć bezpłatnie podpisaną przez autora projektu zgodę na określone zmiany. W myśl ustawy o ochronie praw autorskich jest ona wymagana do wprowadzenia przez architekta adaptującego zmian adaptacyjnych w projekcie. Po otrzymaniu projektu należy udać się do lokalnego architekta, który naniesie dom na działkę i przygotuje projekt zagospodarowania działki oraz dokona zmian w projekcie.
Dodatki
Bezpłatne dodatki
GratisZestaw umów
GratisZmiany w projekcie
GratisTablica budowy
GratisDziennik budowy
GratisCharakterystyka energetyczna
Płatne dodatki

Dodatkowy egzemplarz projektu
450 zł

Kosztorys budowlany inwestorski
990 zł

Projekt wentylacji mechanicznej z rekuperacją
890 zł

Projekt ogrzewania podłogowego
790 zł

Projekt instalacji solarnej
990 zł










