Projekt domu D44 - Joanna WT2021
Promocja ważna do
30-03-2026
- Typ projektuWolnostojący
- StylNowoczesny
- Powierzchnia użytkowa142.33 m²
- KondygnacjeParterowy, z poddaszem
- GarażJednostanowiskowy
- DachDwuspadowy
- Kąt nach. dachu40°
- Odbicie lustrzaneTak
- Czas realizacjidni Zobacz więcej >
Opis
Zgodność z WT 2021 i Eurokodami
Ze względu na dostosowywanie projektu do standardu WT 2021, czas realizacji może się różnić od standardowego.
Skontaktuj się z nami aby poznać szczegóły dotyczące wybranego projektu.
Opis projektu
Dom parterowy z poddaszem użytkowym. Parter składa się z obszernego pokoju dziennego połączonego z otwartą jadalnią skąd przechodzimy do kuchni oraz z wyjściem na duży taras, gabinetu oraz łazienki i pomieszczenia gospodarczego oraz garażu. Schodami z pokoju dziennego dostajemy się na poddasze, na którym umiejscowione jeszcze dwie sypialnie, dwie łazienki oraz garderoba.Konstrukcja
Ściany zewnętrzne: dwuwarstwowe, beton komórkowy 24 cm + styropian 20cm;Strop: płyta żelbetowa
Konstrukcja dachu: krokwiowo-jętkowa
Pokrycie dachu: blachodachówka
Elewacja: tynk cienkowarstwowy, na fragmentach ścian deski i płytki klinkierowe
Ogrzewanie - gazowe
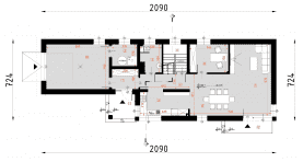
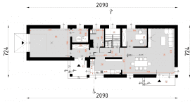
Rzuty
Parter
- przedsionek4.28 m²
- kotłownia4.42 m²
- łazienka4.60 m²
- korytarz6.30 m²
- kuchnia9.30 m²
- jadalnia13.23 m²
- salon23.45 m²
- gabinet8.70 m²
- schowek1.00 m²
- garaż22.40 m²
- taras5.35 m²
- taras5.04 m²
Poddasze
Dane techniczne
- Powierzchnia użytkowa142.33 m²
- Powierzchnia zabudowy131.74 m²
- Liczba łazienek2
- Liczba pokoi4
- Kubatura790 m³
- Wysokość domu7.82 m
- Minimalne wymiary działki28.9 x 15.24m
- GarażJednostanowiskowy
- Rodzaj dachuDwuspadowy
- Kąt nach. dachu40°
Zawartość projektu
Projekty szkieletów, które nadal są koncepcjami, nie będą miały rysunków układów ścian i zestawienia drewna ścian (zestawienie więźby zostaje bez zmian).
Plomby w projektach pozostają bez zmian. Nie rozplombowany projekt będzie można zwrócić na dotychczasowych zasadach.
Projekty domów jednorodzinnych oraz garaży sprzedajemy w 5 egzemplarzach - 3 egzemplarze architektoniczno-budowlane oraz 2 egzemplarze techniczne.
Projekt architektoniczno-budowlany stanowi część projektu budowlanego, który jest podstawą do wydania Decyzji o pozwoleniu na budowę. Projekt budowlany składa się z:
- projektu architektoniczno-budowlanego,
- projektu technicznego,
- projektu zagospodarowania działki.
Część architektoniczno-konstrukcyjną:
- rzut fundamentów – dokładne rozmieszczenie fundamentów, wymiary ław fundamentowych i głębokość ich posadowienia.
- rzuty wszystkich kondygnacji (np. parter, piwnica, piętro) – rozmieszczenie i wymiary wszystkich pomieszczeń, rozmieszczenie i wielkość otworów okiennych i drzwiowych, rozmieszczenie kominów, sugerowana aranżacja wnętrz.
- rzut więźby dachowej – wymiary i rozmieszczenie elementów konstrukcji dachu.
- rzut dachu – wymiary dachu, kąt nachylenia wszystkich połaci dachu, rozmieszczenie okien połaciowych, lukarn, kominów.
- przekroje pionowe – rysunki budynku po pionowym przecięciu, pokazują wszystkie elementy konstrukcji budynku, czyli warstwy podłogi, stropów, dachu.
- elewacje (frontowa, dwie elewacje boczne, ogrodowa) – dokładny wygląd domu z każdej strony.
- zestawienie stolarki okiennej i drzwiowej – wymiary okien i drzwi wykorzystanych w projekcie
Część instalacyjną:
- schemat instalacji wodno-kanalizacyjnej
- schemat instalacji centralnego ogrzewania
- schemat instalacji elektrycznej
- schemat instalacji gazowej - jeśli jest przewidziana w projekcie.
Zmiany w projektach
- Razem z projektem możemy dostarczyć bezpłatnie podpisaną przez autora projektu zgodę na określone zmiany. W myśl ustawy o ochronie praw autorskich jest ona wymagana do wprowadzenia przez architekta adaptującego zmian adaptacyjnych w projekcie. Po otrzymaniu projektu należy udać się do lokalnego architekta, który naniesie dom na działkę i przygotuje projekt zagospodarowania działki oraz dokona zmian w projekcie.
Polecane projekty
Dodatki
Bezpłatne dodatki
GratisZestaw umów
GratisZmiany w projekcie
GratisTablica budowy
GratisDziennik budowy
GratisCharakterystyka energetyczna
Płatne dodatki

Dodatkowy egzemplarz projektu
490 zł

Kosztorys budowlany inwestorski
990 zł

Projekt wentylacji mechanicznej z rekuperacją
890 zł

Projekt ogrzewania podłogowego
790 zł

Projekt instalacji solarnej do ciepłej wody
990 zł













