Projekt domu Daktyl bliźniak
Promocja ważna do
24-04-2026
- Typ projektuBliźniak
- Powierzchnia użytkowa191.2 m²
- Kondygnacje
- GarażBez garażu
- DachDwuspadowy
- Kąt nach. dachu40°
- Odbicie lustrzaneTak
- Czas realizacjimax. czas realizacji 10 dni Zobacz więcej >
Opis
Zgodność z WT 2021 i Eurokodami
Ze względu na dostosowywanie projektu do standardu WT 2021, czas realizacji może się różnić od standardowego.
Skontaktuj się z nami aby poznać szczegóły dotyczące wybranego projektu.
Opis projektu
(Uwaga: projekty typu bliźniak oferujemy jako domy dwulokalowe, projekt można zamówić również w zabudowie bliźniaczej)Ekonomiczny, projekt niewielkiego domu jednorodzinnego z dwuspadowym dachem. Daktyl przewidziany jest dla czteroosobowej rodziny. Główne, zadaszone wejście prowadzi do wiatrołapu. Stąd można dostać się do pomieszczenia technicznego oraz do mieszkalnej części dziennej. Pod częścią biegu schodowego zaprojektowano łazienkę. Z salonem połączony jest pokój gościnny. Kuchnia jest otwarta i posiada spiżarnię. W centralnej części domu zaprojektowano kominek. Obok kuchni przewidziano miejsce na stół. Z salonu wchodzi się schodami na poddasze, gdzie zlokalizowano trzy sypialnie oraz łazienkę z pralką.Daktyl to propozycja ekonomicznego i ekologicznego domu, który doskonale sprawdzi się jako dom całoroczny.
Konstrukcja
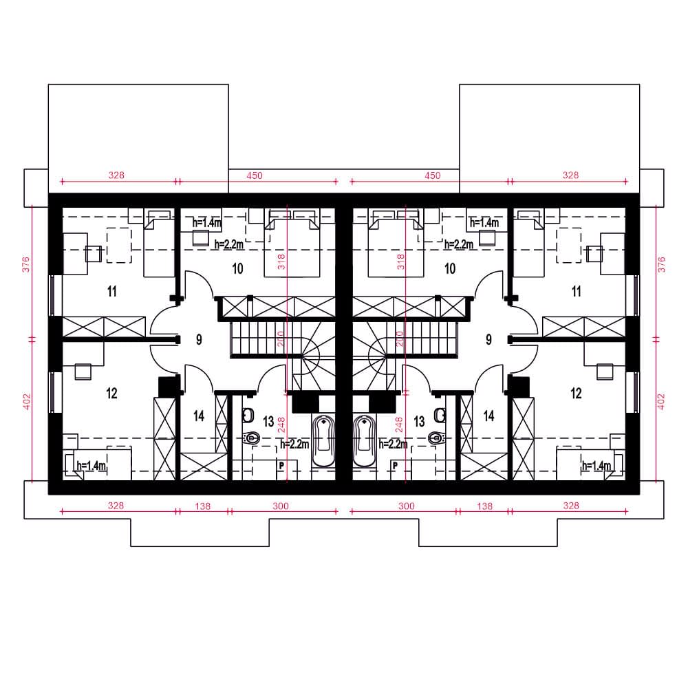
Rzuty
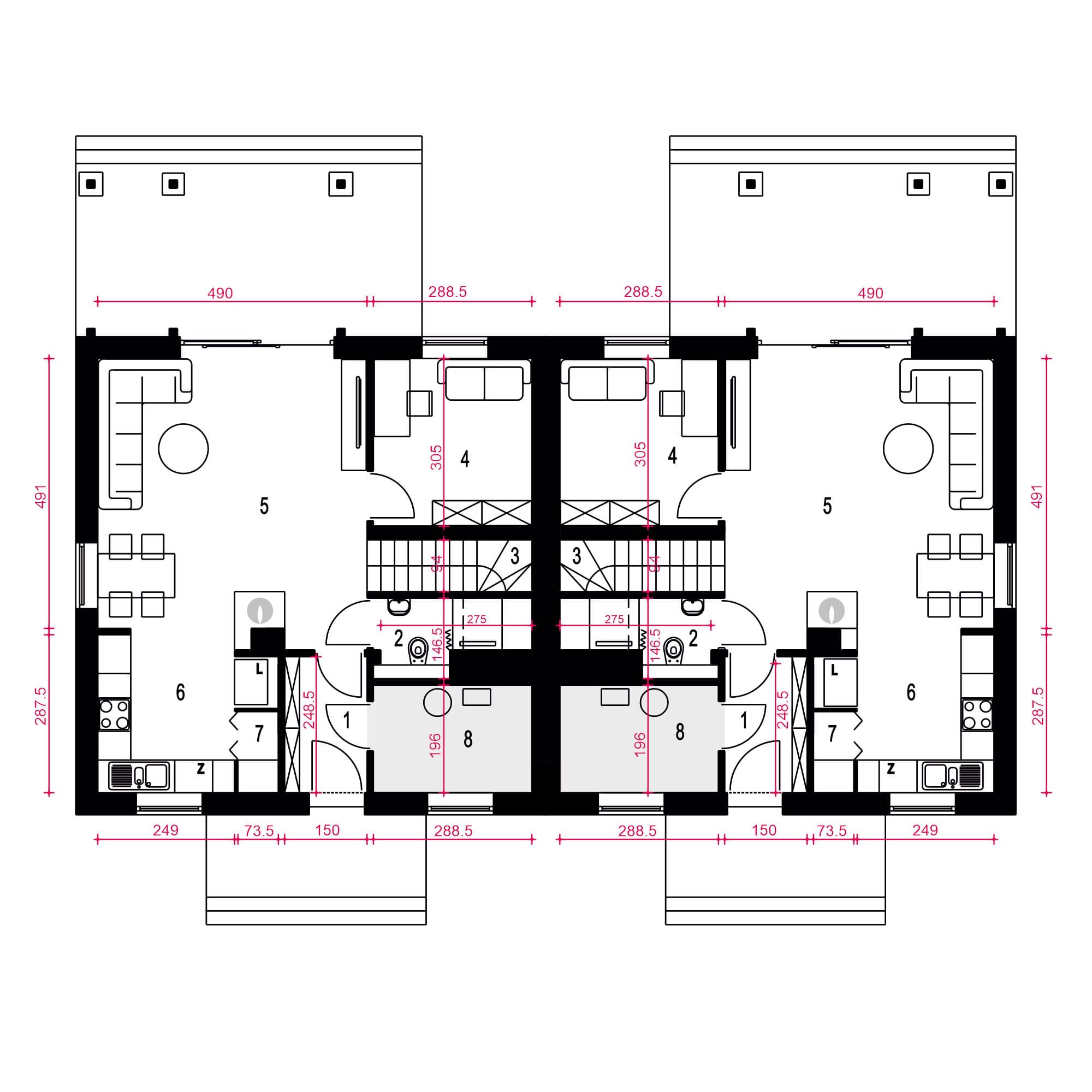
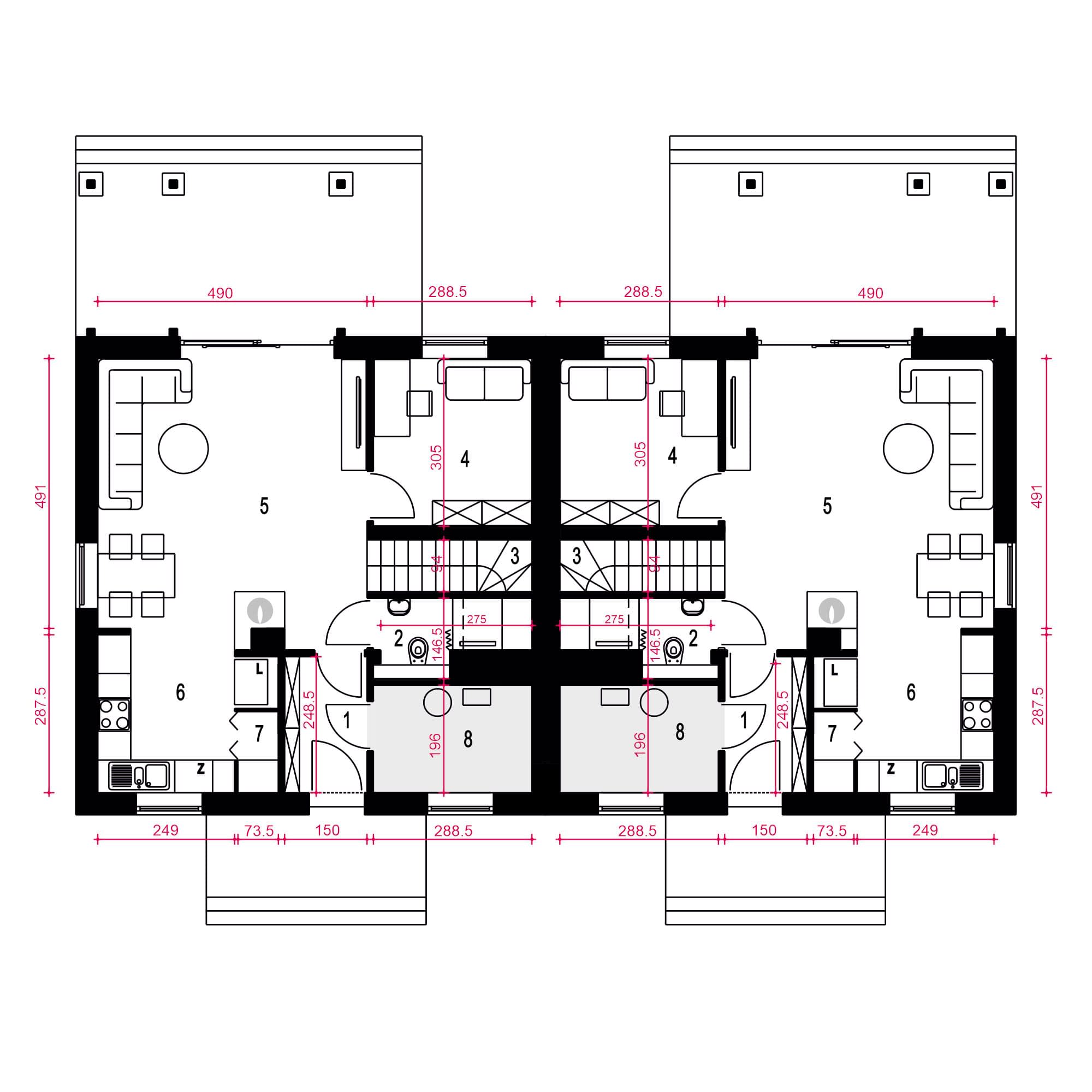
Parter
- m²
- 1. Wiatrołap3.4
- 2. Łazienka3.3
- 3. Schody4
- 4. Pokój8.6
- 5. Salon25
- 6. Kuchnia7.5
- 7. Spiżarnia1
- 8. Pom. techniczne CO*5.5
Piętro
Dane techniczne
- Powierzchnia użytkowa191.2 m²
- Powierzchnia zabudowy150 m²
- KominekTak
- Liczba łazienek4
- Liczba pokoi10
- Powierzchnia dachu279.6 m²
- Długość domu8.8 m
- Szerokość domu17.2 m
- Wysokość domu8.5 m
- Minimalne wymiary działki17.8 x 25.2m
- GarażBez garażu
- Rodzaj dachuDwuspadowy
- Kąt nach. dachu40°
Instalacja grzewcza
- Instalacja grzewczaGaz
Zawartość projektu
Zgodnie ze znowelizowaną Ustawą Prawo Budowlane art.34 ust.3, na projekt budowlany składają się trzy części:
- projekt zagospodarowania działki lub terenu
- projekt architektoniczno-budowlany
- projekt techniczny
Nasze projekty oferujemy w 3 egzemplarzach, zawierających projekt architektoniczno-budowlany i projekt techniczny. Projekt zagospodarowania działki lub terenu nie wchodzi w skład projektu oferowanego do sprzedaży. Projekt ten należy zlecić we własnym zakresie lokalnemu projektantowi, który opracuje go na podstawie danych zawartych w projekcie architektoniczno-budowlanym i technicznym, po dostosowaniu projektu do warunków lokalnych i wymagań inwestora.
UWAGA: wszystkie egzemplarze projektu zabezpieczone są hologramami, w części rysunkowej posiadają nadruki zabezpieczające w kolorze zielonym. Zalecamy aby po otrzymaniu przesyłki kontrolować czy na pierwszych stronach projektu znajduje się hologram i czy na rysunkach widoczne są w/w nadruki potwierdzające oryginalność projektu.
Wyrażamy zgodę na wszelkie zmiany zgodne z obowiązującymi przepisami pod warunkiem wprowadzenia ich przez uprawnioną osobę.
Wszystkie zmiany wymienione powyżej powinny być naniesione na oryginał projektu katalogowego trwałą techniką graficzną w kolorze czerwonym lub dołączone jako aneks i podpisane przez osobę uprawnioną dokonująca adaptacji.
**ważne informacje
Projekt w fazie koncepcji dostępny z wydłużonym terminem realizacji. Przy zamówieniu ustalamy termin i pobieramy zadatek 50% podstawowej ceny projektu (jako koszty usługi przygotowania dokumentacji do standardu projektu gotowego, w przypadku rezygnacji z usługi, zadatek nie podlega zwrotowi).
Cena za dodatkowy egzemplarz projektu jest zależna od nazwy projektu!
Dodatki
Bezpłatne dodatki
GratisZestaw umów
GratisZmiany w projekcie
GratisTablica budowy
GratisDziennik budowy
Płatne dodatki

Kosztorys - stan wykończony
540 zł

Projekt wentylacji mechanicznej
1 000 zł










