Projekt domu Dom Dla Ciebie 1 w3 A1 z garażem 2st.
- Typ projektuWolnostojący
- Powierzchnia użytkowa138.9 m²
- Kondygnacje
- GarażDwustanowiskowy
- DachDwuspadowy
- Kąt nach. dachu40°
- Odbicie lustrzaneTak
- Czas realizacjimax. czas realizacji 10 dni Zobacz więcej >
Opis
Zgodność z WT 2021 i Eurokodami
Ze względu na dostosowywanie projektu do standardu WT 2021, czas realizacji może się różnić od standardowego.
Skontaktuj się z nami aby poznać szczegóły dotyczące wybranego projektu.
Opis projektu
Dom Dla Ciebie 1 w3 z garażem dwustanowiskowym przeznaczony jest dla 4-5cio osobowej rodziny. Zaprojektowany jest z zachowaniem podziału na dwie strefy: dzienną na parterze i nocną na poddaszu. Na parterze mamy zaprojektowany wiatrołap, hol, kuchnię, salon z jadalnią i kominkiem oraz pokój usytuowanego od strony ogrodowej. Przy schodach mamy zaprojektowaną łazienkę z wanną oraz osobna pralnię. Obok mamy wejście do dwustanowiskowego garażu oraz kotłowni. Poddasze obejmuje trzy ustawne i dobrze doświetlone pokoje, każdy pokój z własnym balkonem. Na poddaszu zaprojektowano ogólnie dostępną łazienkę z narożną wanną i prysznicem. Nad garażem mamy do dyspozycji strych, który można wykorzystać na etapie adaptacji jako dodatkowe pomieszczenie (pokój, garderobę lub pomieszczenie rekreacyjne). Poddasze zaprojektowane jest pod dwuspadowym dachem o układzie kalenicowym, opartym na tradycyjnej więźbie dachowej i ściance kolankowej wys 0,9m. Projekt Dom Dla Ciebie 1 w3, to idealna propozycja domu dla osób poszukujących domu energooszczędnego, o stylowej architekturze i przemyślanej funkcji.
Konstrukcja
Rzuty
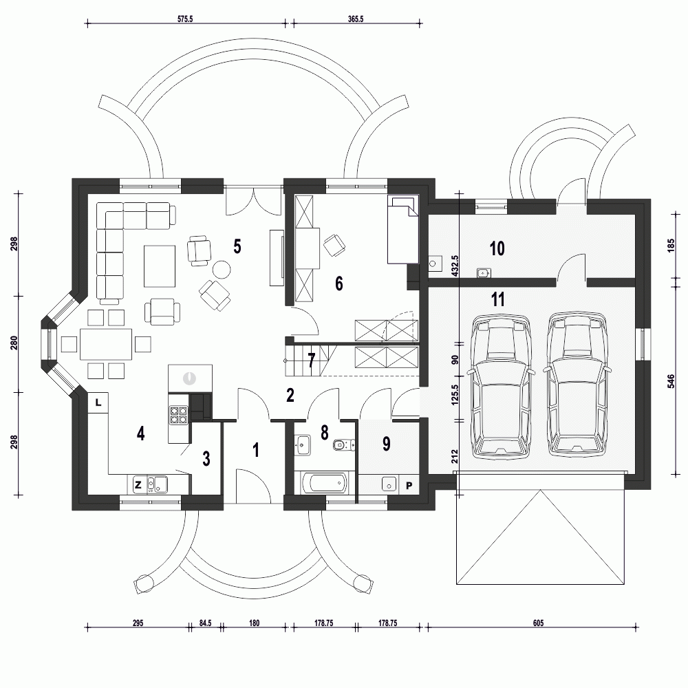
Parter
- m²
- 1. Wiatrołap3.7
- 2. Hol, garderoba8.2
- 3. Spiżarnia1.7
- 4. Kuchnia8.6
- 5. Salon+Jadalnia33.7
- 6. Pokój15.3
- 7. Schody3.5
- 8. Łazienka3.4
- 9. Pralnia*3.7
- 10. Kotłownia*11
- 11. Garaż*32.7
Piętro
Usytuowanie na działce
Dane techniczne
- Powierzchnia użytkowa138.9 m²
- Powierzchnia zabudowy158.2 m²
- KominekTak
- Liczba łazienek2
- Liczba pokoi5
- Powierzchnia dachu242.5 m²
- Długość domu9.7 m
- Szerokość domu17.8 m
- Wysokość domu8.7 m
- Minimalne wymiary działki17.7 x 25.8m
- GarażDwustanowiskowy
- Rodzaj dachuDwuspadowy
- Kąt nach. dachu40°
Instalacja grzewcza
- Instalacja grzewczaGaz
Zawartość projektu
Zgodnie ze znowelizowaną Ustawą Prawo Budowlane art.34 ust.3, na projekt budowlany składają się trzy części:
- projekt zagospodarowania działki lub terenu
- projekt architektoniczno-budowlany
- projekt techniczny
Nasze projekty oferujemy w 3 egzemplarzach, zawierających projekt architektoniczno-budowlany i projekt techniczny. Projekt zagospodarowania działki lub terenu nie wchodzi w skład projektu oferowanego do sprzedaży. Projekt ten należy zlecić we własnym zakresie lokalnemu projektantowi, który opracuje go na podstawie danych zawartych w projekcie architektoniczno-budowlanym i technicznym, po dostosowaniu projektu do warunków lokalnych i wymagań inwestora.
UWAGA: wszystkie egzemplarze projektu zabezpieczone są hologramami, w części rysunkowej posiadają nadruki zabezpieczające w kolorze zielonym. Zalecamy aby po otrzymaniu przesyłki kontrolować czy na pierwszych stronach projektu znajduje się hologram i czy na rysunkach widoczne są w/w nadruki potwierdzające oryginalność projektu.
Wyrażamy zgodę na wszelkie zmiany zgodne z obowiązującymi przepisami pod warunkiem wprowadzenia ich przez uprawnioną osobę.
Wszystkie zmiany wymienione powyżej powinny być naniesione na oryginał projektu katalogowego trwałą techniką graficzną w kolorze czerwonym lub dołączone jako aneks i podpisane przez osobę uprawnioną dokonująca adaptacji.
**ważne informacje
Projekt w fazie koncepcji dostępny z wydłużonym terminem realizacji. Przy zamówieniu ustalamy termin i pobieramy zadatek 50% podstawowej ceny projektu (jako koszty usługi przygotowania dokumentacji do standardu projektu gotowego, w przypadku rezygnacji z usługi, zadatek nie podlega zwrotowi).
Cena za dodatkowy egzemplarz projektu jest zależna od nazwy projektu!
Dodatki
Bezpłatne dodatki
GratisZestaw umów
GratisZmiany w projekcie
GratisTablica budowy
GratisDziennik budowy
Płatne dodatki

Kosztorys - stan wykończony
540 zł

Projekt wentylacji mechanicznej
1 000 zł











